LIFULL HOME'Sは物件鮮度No.1!※評価について
京阪本線 伏見桃山駅 徒歩28分(2DK/45.92㎡)
京阪本線 伏見桃山駅 徒歩28分(2DK/45.92㎡)
6.6万円/管理費等5,000円
2日前 更新
画像一覧
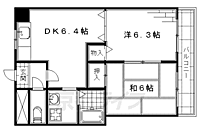
1/30間取り
2/30外観
3/30外観
4/30リビング/ダイニング
洋室
5/30室内
洋室
6/30寝室
洋室
7/30寝室
和室
8/30寝室
洋室
9/30寝室
和室
10/30子供部屋
洋室
11/30キッチン
キッチン
12/30キッチン
キッチン
13/30キッチン
キッチン
14/30浴室
風呂
15/30トイレ
トイレ
16/30洗面
洗面所
17/30洗面
洗面所
18/30収納
収納
19/30収納
収納
20/30玄関
玄関
21/30玄関
玄関
22/30バルコニー
ベランダ
23/30エントランス
エントランス
24/30駐車場
駐車場
25/30その他
眺望
26/30その他
エアコン
27/30その他
追炊き機能
28/30周辺
バロー下鳥羽店まで300メートル
29/30周辺
ファミリーマート 伏見横大路まで600メートル
30/30周辺
ダックス 伏見肥後町店まで1500メートル
間取り
外観
外観
リビング/ダイニング
室内
寝室
寝室
寝室
寝室
子供部屋
キッチン
キッチン
キッチン
浴室
トイレ
洗面
洗面
収納
収納
玄関
玄関
バルコニー
エントランス
駐車場
その他
その他
その他
周辺
周辺
周辺
お問合せ先 :株式会社エリッツ 深草店
住まい探し特典内容
電気・ガス・インターネットの手続き代行のご案内します。
- 利用条件
- 株式会社エリッツ 深草店で利用可
- 他特典との併用可
利用方法
来店時に本特典の画面をスマートフォンやタブレットでスタッフに提示、または画面印刷した用紙を提示ください。
有効期限 なし
ベランダ南向きで日当たり良いですよ--パノラマ掲載--
物件のこだわり/設備・条件
新築(非該当)
2階以上の物件(該当)
南向き(該当)
駐車場(非該当)
オートロック(該当)
エアコン(該当)
バス・トイレ別(該当)
追焚機能(非該当)
フローリング(該当)
ペット相談(非該当)
入居条件
二人入居可、保証人不要、即入居可キッチン/バス・トイレ
設備・サービス
オートロック、エアコン、シューズボックス、CATV、BS対応、光ファイバー、公営水道、都市ガス、下水、フローリング、バルコニー、室内洗濯機置場、南面バルコニー、エレベーター、バイク置き場あり、駐輪場ありその他
住まい探し特典あり備考
下鳥羽の閑静な住宅街にあるファミリー物件です。ベランダ南向きで日当たり良好ですよ。和室と洋室が一つずつあるのも、使い分けができて良いですね。お車をお持ちのご家族におすすめの物件です。・光ファイバーインターネット接続可
物件周辺の生活情報
学校
- 横大路小学校(490m)
- 伏見中学校(2,010m)
買い物
- コンビニ(600m)
- スーパー(300m)
- ドラッグストア(1,500m)
その他施設
- 総合病院(520m)
交通
- 京阪本線 伏見桃山駅 徒歩28分
- 普通(停車)
- 区間急行(通過)
- 急行(通過)
- 特急(通過)
- 通勤準急・準急(停車)
- 快速特急 洛楽(通過)
- 通勤快急・快速急行(通過)
- 近鉄京都線 近鉄丹波橋駅 徒歩32分
- 普通(停車)
- 準急(停車)
- 急行(停車)
※急行等の停車駅情報について
急行等の停車駅に関するデータは、随時更新をしておりますが、最新の内容であることを保証するものではありません。
最新かつ正確な情報につきましては、各鉄道会社のウェブサイトにてご確認ください
物件概要
- 建物構造
- RC(鉄筋コンクリート)
- 駐車場
- 近隣 8,000円(税無) 物件からの距離457m
- 総戸数
- 19戸
- 契約形態
- -
- 契約期間
- 2年間
- 更新料
- 新賃料の1ヶ月分
- その他費用
- 室内清掃費用:38,500円、安心入居サポート(初回):16,500円、駐輪代(原付(月額):1,100円、家賃保証料(月額):710円
- 保証会社
加入要
保証会社利用料:28、400円
- 住宅保険
- 要
- 管理
- -
- LIFULL HOME'S
物件番号 - 0110592-0282775
- 自社管理番号
- 1955-601
- 取引態様
- 仲介
- 会社名
- 株式会社エリッツ 深草店
営業スタッフコメント

株式会社エリッツ 深草店
金沓
深草エリアだけでなく、広域で対応可能です!
業界経験17年
資格宅地建物取引士、賃貸不動産経営管理士
- スタッフ情報
- 龍谷大学生様・伏見区のお部屋探しは賃貸のエリッツ深草店にお任せ下さい。賃貸のエリッツ深草店は、伏見区の賃貸物件を豊富に取り揃えております。龍谷大学の正面にあり、龍谷大学周辺の賃貸物件の取り扱い数は地域ナンバーワン。龍谷大学から徒歩1分なので、大学の授業の合間や授業終わりでもすぐに賃貸物件のご案内に行けますよ。もちろん龍谷大学の学生様以外にも、社会人の一人暮らしや、新婚、ご家族の方向けの賃貸物件もご紹介できます。伏見区深草エリアは、京阪・JR・地下鉄・近鉄と様々な沿線があり、商業施設も充実して、生活がとっても便利です。新婚様・ファミリー様にもオススメです。賃貸のエリッツ深草店には、龍大OBや伏見区で生まれ育ったスタッフが在籍しております。伏見区はもちろん、京都市内どのエリアでもお探しさせて頂きます。お部屋探し以外のことでもぜひご相談ください。ご来店スタッフ一同心よりお待ちしております。
龍谷大学生様・伏見区のお部屋探しは賃貸のエリッツ深草店にお任せ下さい。賃貸のエリッツ深草店は、伏見区の賃貸物件を豊富に取り揃えております。龍谷大学の正面にあり、龍谷大学周辺の賃貸物件の取り扱い数は地域ナンバーワン。龍谷大学から徒歩1分なので、大学の授業の合間や授業終わりでもすぐに賃貸物件のご案内に行けますよ。もちろん龍谷大学の学生様以外にも、社会人の一人暮らしや、新婚、ご家族の方向けの賃貸物件もご紹介できます。伏見区深草エリアは、京阪・JR・地下鉄・近鉄と様々な沿線があり、商業施設も充実して、生活がとっても便利です。新婚様・ファミリー様にもオススメです。賃貸のエリッツ深草店には、龍大OBや伏見区で生まれ育ったスタッフが在籍しております。伏見区はもちろん、京都市内どのエリアでもお探しさせて頂きます。お部屋探し以外のことでもぜひご相談ください。ご来店スタッフ一同心よりお待ちしております。
- 電話でお問合せ(通話無料)
お問合せ先 :株式会社エリッツ 深草店
不動産会社情報
株式会社エリッツ 深草店賃貸のエリッツ深草店

京都府京都市伏見区深草西浦町4丁目31番地
京阪本線 龍谷大前深草駅 徒歩5分
- 営業時間
- 10:00~19:00
- 定休日
- 水曜日(祝日を除く)、年末年始 ※部屋探しのお問い合わせは無休
優良店認定
伏見区のお部屋探しはエリッツ深草店へ。龍谷大学生様のお部屋探しは物件数NO,1のエリッツにお任せ下さい。新婚様向け物件も多数ございます。日本語学校の留学生も歓迎します。
- 店舗の特徴
- 引越し業者紹介可
- バリアフリー
- 社宅・寮物件取扱い
- オンライン相談可
- 保証人不要な物件あり
- 法人契約取扱い
電話でお問合せお客様の電話番号は不動産会社には通知されません
- 不動産会社に
つながります
お客様の電話番号は不動産会社に通知されません
- ※光IP電話、及びIP電話からはご利用になれません
- ※お電話によるお問合せは、店舗営業時間内にお願いします。つながらない場合は、お問合せフォームよりお問合せください
- ※不動産会社がお電話に出られなかった場合、お問合せいただいた後に不動産会社より折り返しのお電話がある場合がございます(お客様が非通知設定した場合は対象外です)
- ※株式会社LIFULLは電話会社が提供するサービスを介してお客様の発信者番号を受領後、折り返し専用の電話番号を発番してお問合せの不動産会社に通知します(お客様の発信者番号がお問合せの不動産会社に通知されることはございません)
- ※携帯電話からお問合せいただいた方に対し、株式会社LIFULLは電話会社が提供するメッセ―ジサービスを介してお客様の発信者番号を受領後、ショートメッセージ(SMS)またはLINE通知メッセージによるお問合せ内容に関する通知をお届けする場合があります
- ※お客様が通話中に不動産会社にお伝えになったお客様の個人情報及び、電話会社が発番する折り返し専用の電話番号は、お問合せ先不動産会社が資料送付・電子メール送信・電話連絡などの目的で保管する可能性があります。お問合せ先不動産会社が保管する個人情報の取扱いについては、各不動産会社に直接お問合せください
- ※株式会社LIFULLでは本サービスを円滑に運用するために、お客様の発信者番号をサービスご利用の控えとして一定期間保管いたします
- ※上記および株式会社LIFULLの個人情報の取扱い方針に同意のうえ、お電話ください
【LIFULL HOME'S物件番号】0110592-0282775【自社管理番号】1955-601
オンライン対応
オンライン内見・オンライン相談・IT重説に対応している物件です

「オンライン内見」「オンライン相談」「IT重説」とは?
物件の内見や不動産会社スタッフとの相談、契約前の重要事項説明をオンライン(ビデオ通話)で行うことができるサービスです。
オンライン内見
ビデオ通話で現地(物件)にいる不動産会社スタッフと映像・音声を使ってリアルタイムで会話しながら内見ができます。
オンライン相談
「物件について聞きたいことがある」など不動産会社スタッフへの相談もビデオ通話で行うことができます。
IT重説
契約前の重要事項説明(重説)をビデオ通話で行うことができます。
利用時の注意事項
- ビデオ通話については各不動産会社指定のものとなります。
- ビデオ通話利用時には通信が発生します。従量課金制通信サービスや通信量に上限があるネット回線・プランを利用する場合は、通信量にご注意ください。
- 通信速度やアプリの設定によってはビデオ通話の画質が低下することがあります。安定した画質で利用するためにも、Wi-Fi環境下での利用を推奨します。
- ご利用のビデオ通話アプリによっては、対象のOSやブラウザに制限がある場合があります。詳しくはお問合せ先不動産会社にご確認ください。
初期費用・月額費用をあわせて確認!この物件に住んだときの費用めやす
めやすを見るこの物件に住んだときの費用めやす
- 初期費用
- 月額費用
- 追加費用※ご確認ください
追加で費用が
かかる場合があります
必ずご確認ください
初期費用めやす約0円
追加で費用がかかります(※)敷金
66,000
- 礼金
66,000
賃料+共益費・管理費の1ヶ月分として換算
賃料の1ヶ月分+税として換算。不動産会社によって金額が異なるため正確な金額は不動産会社にお問合せください
※追加費用もチェック!
これらの項目以外にも費用がかかる場合があります。正確な金額は不動産会社にお問合せください。
- 初期費用
- 鍵交換費:不動産会社に要確認
- 室内清掃費:38,500円
- 火災保険費:不動産会社に要確認
- 月額費用
- 駐車場費:8,000円※近隣
- その他
- 安心入居サポート(初回):16500円
- 駐輪代(原付(月額):1100円
- 家賃保証料(月額):710円
- 保証会社
- 28、400円
不動産会社より
ベランダ南向きで日当たり良いですよ--パノラマ掲載--
下鳥羽の閑静な住宅街にあるファミリー物件です。ベランダ南向きで日当たり良好ですよ。和室と洋室が一つずつあるのも、使い分けができて良いですね。お車をお持ちのご家族におすすめの物件です。・光ファイバーインターネット接続可
- 保存する
- 共有する
- ※各種情報と現状に差異がある場合は、現状優先となります
- ※不動産会社が入力した情報を基に物件の位置を表示しています。詳しくは不動産会社までお問合せください
- ※不動産会社の方からの上記電話番号によるお問合せはお断りしております。こちら不動産会社詳細からお問合せください
- ※LIFULL HOME'Sは物件鮮度No.1を目指していきます。閲覧中の物件が「成約済である」「実際の物件情報と異なる点がある」などの場合、「掲載110番」からお問合せください
- ※QRコードは株式会社デンソーウェーブの登録商標です
したい暮らしのタグから探す
LIFULL HOME'S 地図・周辺情報
買い物
- ローソン 下鳥羽柳長店
- バロー 下鳥羽店
- ダックス伏見肥後町店
- ローソン 伏見下鳥羽平塚町店
- 西友 下鳥羽店
グルメ
- 大起水産 京都伏見店
- 餃子の王将 国道大手筋店
- コメダ珈琲店京都伏見店
- ブロンコビリー京都南店
- 丸亀製麺京都伏見店
育児・教育
- 下鳥羽こども園
- 京都市立下鳥羽小学校
- 京都市立伏見中学校
- かもがわ幼稚園
- 京都市立神川小学校
医療
- 医療法人社団蘇生会蘇生会総合病院介護医療院
- 医療法人社団蘇生会総合病院
- 一般財団法人仁風会京都南西病院
- 社会福祉法人浩照会伏見桃山総合病院
- 社会医療法人岡本病院(財団)伏見岡本病院
公共施設・郵便局
- 伏見下鳥羽郵便局
- 京都市久我のもり図書館
- 伏見警察署
- 伏見羽束師鴨川郵便局
- 京都市伏見中央図書館
公園
- 桂川緑地久我橋東詰公園
- 三栖公園
- 下鳥羽公園
- 鳥羽離宮跡公園
- 塔ノ森公園
利用可能な駅
- すべての駅
京阪本線
- 伏見桃山駅徒歩28分
- 中書島駅徒歩32分
- 丹波橋駅徒歩34分
- 墨染駅3.8km
近鉄京都線
- 桃山御陵前駅徒歩31分
- 近鉄丹波橋駅徒歩32分
- 伏見駅徒歩36分
- 竹田駅3.3km
JR奈良線
- 桃山駅3.1km
京阪宇治線
- 観月橋駅3.3km
- 周辺情報は2023年07月21日時点のものになります。
- 周辺情報は、参考情報としてのみご利用ください(周辺情報は、株式会社LIFULLが地図情報の提供事業者から提供を受けた情報とLIFULL HOME'Sの物件情報に基づき、独自の方法で抽出し提供しているものです。周辺情報は、移転や閉鎖等により情報が最新ではない、または正しくない場合がありますが、地図情報の提供事業者から提供された情報をそのまま周辺情報として表示しているため、正確かつ最新の情報へ修正することができないことがあります。)
- 周辺情報は、株式会社LIFULLが掲載するものであり、不動産物件情報を掲載している不動産会社が掲載するものではありません
- 交通情報の一部については、株式会社LIFULLが掲載するものであり、不動産物件情報を掲載している不動産会社が掲載するものではない場合があります。交通情報に関する質問などは株式会社LIFULLにお問合せください









