LIFULL HOME'Sは物件鮮度No.1!※評価について
西野八幡田町店舗付貸家(xx/3LDK/108.64m²)
西野八幡田町店舗付貸家(xx/3LDK/108.64m²)
10万円/管理費等-
2026/03/22 更新
画像一覧
1/30間取り
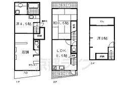
間取
2/30外観
3/30外観
4/30リビング/ダイニング
かなり綺麗な室内です
5/30リビング/ダイニング
オシャレな内装の店舗です
6/30リビング/ダイニング
8.5畳の和室です
7/30リビング/ダイニング
畳も壁も綺麗です
8/30リビング/ダイニング
8.5帖のLDKです
9/30リビング/ダイニング
東向きのお部屋です
10/30リビング/ダイニング
開放感があるので広く感じます
11/30リビング/ダイニング
店舗や倉庫として利用可能
12/30リビング/ダイニング
6帖の洋室です
13/30リビング/ダイニング
3Fのお部屋です
14/30リビング/ダイニング
落ち着いた雰囲気のお部屋です
15/30キッチン
広くて使いやすいキッチンです
16/30キッチン
店舗にキッチンも付いてますよ・
17/30キッチン
お好きなコンロを
18/30キッチン
作業スペース付き
19/30キッチン
2口コンロです
20/30浴室
タイルが可愛い浴室です
21/30トイレ
2Fのトイレです
22/30トイレ
店舗の方のトイレです
23/30洗面
かなり広い洗面台です
24/30収納
たくさん入ります
25/30設備
洗濯機は室内です
26/30設備
収納困りません・
27/30バルコニー
キッチン側
28/30バルコニー
和室側
29/30その他
1Fから2Fへの階段です
30/30周辺
京都中央信用金庫 西野支店まで89m
間取り
外観
外観
リビング/ダイニング
リビング/ダイニング
リビング/ダイニング
リビング/ダイニング
リビング/ダイニング
リビング/ダイニング
リビング/ダイニング
リビング/ダイニング
リビング/ダイニング
リビング/ダイニング
リビング/ダイニング
キッチン
キッチン
キッチン
キッチン
キッチン
浴室
トイレ
トイレ
洗面
収納
設備
設備
バルコニー
バルコニー
その他
周辺
住まい探し特典内容
インターネット無料診断
- 利用条件
- 株式会社京都ライフ 桂店で利用可
- 他特典との併用可
- 弊社での賃貸物件成約案件に限る
利用方法
来店時に本特典の画面をスマートフォンやタブレットでスタッフに提示、または画面印刷した用紙を提示ください。
有効期限 なし
生活環境良し店舗付住宅 鏡山小学校区店舗付住宅物件紹介 ペット飼育可能です
物件のこだわり/設備・条件
新築(非該当)
2階以上の物件(非該当)
駐車場(非該当)
即引渡し可(該当)
エレベーター(非該当)
設備・条件
システムキッチン、給湯、専用バス、専用トイレ、バス・トイレ別、追焚機能、シャワー、温水洗浄便座、洗面所独立、公営水道、都市ガス、下水、フローリング、バルコニー、室内洗濯機置場、駐輪場あり、事務所可(SOHO向け)、二人入居可、ペット相談、即引渡し可、住まい探し特典あり備考
西野八幡田町エリアから店舗付住宅の募集です 徒歩圏内にコンビニ・スーパー・銀行・郵便局・学校等揃っております ペットの飼育も可能ですので、1階でお店をしながら住宅スペースでペットとの共生生活をエンジョイしてください 物件情報はもちろん京都のエリア情報まで幅広く対応させていただきます!
物件周辺の生活情報
交通
- 京都地下鉄東西線 御陵駅 徒歩13分
- 普通(停車)
- 京阪京津線 御陵駅 徒歩13分
- 普通(停車)
※急行等の停車駅情報について
急行等の停車駅に関するデータは、随時更新をしておりますが、最新の内容であることを保証するものではありません。
最新かつ正確な情報につきましては、各鉄道会社のウェブサイトにてご確認ください
物件周辺の口コミ
- 京都府京都市山科区西野八幡田町に住む人の口コミ40代女性
子どもが3人の家族が多く、にぎやかでよい。幼稚園、保育園が多いので選べられるし、小学校中学校が近くにあるのもよい。小児科をはじめ多くの病院、クリニックも多く安心できる
口コミを見る
この物件周辺に住む人の口コミ
口コミは、LIFULL HOME'Sが実際にこの物件の周辺に住む18歳~69歳の男女を対象に、WEBアンケート調査を実施しています。内容には回答者の主観的な表現が含まれる場合があるほか、事実と異なる場合もございます。ご了承ください。
- 京都府京都市山科区西野八幡田町に住む人の口コミ40代女性
- 子どもが3人の家族が多く、にぎやかでよい。幼稚園、保育園が多いので選べられるし、小学校中学校が近くにあるのもよい。小児科をはじめ多くの病院、クリニックも多く安心できる
- 京都府京都市山科区西野八幡田町に住む人の口コミ30代女性
- 子供の数が多い。それだけ子育てに関する施設や場所があって、お母さんの数も多くて、子育てしやすい町。公園の数も多く、地域のお祭りに参加することで知らない人とも交流が増え、ますます町が好きになる
- 京都府京都市山科区西野八幡田町に住む人の口コミ20代女性
- 山科駅に行けばどこでも行けるように交通の便が良いところや、コンビニやスーパーが沢山あるので、目的に合わせて好きなスーパーに行けるところ
物件概要
- 建物構造
- 木造
- 駐車場
- 無
- 総戸数
- 1戸
- 建築面積
- -
- 敷地面積
- -
- 住宅保険
- 要
- 契約形態
- -
- 契約期間
- 2年間
- 更新料
- 新賃料の1ヶ月分
- その他費用
- 室内清掃費用:55,000円、入居者サポート:16,500円
- 管理
- -
- 現況
- 空家
- 引渡し
- 即時
- 見学可能な物件です。希望日時を予約できます(無料)
- 見学予約をする
- LIFULL HOME'S
物件番号 - 0110342-0239911
- 自社管理番号
- 64270-xx-06
- 取引態様
- 専任媒介
- 情報公開日
- 2026/03/05
- 情報更新日
- 2026/03/22
- 次回更新
予定日 - 2026/04/02
- 会社名
- 株式会社京都ライフ 桂店
営業スタッフコメント

株式会社京都ライフ 桂店
木村海心
西京区で一番「熱い」男です!!
業界経験1年
資格少額短期保険募集人
- スタッフ情報
- 創業40年の長い年月の中で蓄積された情報と交渉力をお客様にお届け。自信を持って物件のご紹介をさせて頂きます。お部屋探しは京都ライフまで。お問い合わせお待ちしております。
創業40年の長い年月の中で蓄積された情報と交渉力をお客様にお届け。自信を持って物件のご紹介をさせて頂きます。お部屋探しは京都ライフまで。お問い合わせお待ちしております。
- 電話でお問合せ(通話無料)
お問合せ先 :株式会社京都ライフ 桂店
不動産会社情報
桂エリアのお部屋探しは京都ライフ桂店へどうぞ。単身用〜新婚・ファミリー物件まで経験豊富なスタッフが全力でサポート!京大・経短大の新入生の皆様、初めてのシングルライフ!京都ライフへおまかせ下さい!
- 店舗の特徴
- 24時間管理物件取扱い
- 引越し業者紹介可
- 年中無休
- 駐車場あり
- 系列店舗での対応可
- オンライン相談可
- 保証人不要な物件あり
- 法人契約取扱い
- 女性スタッフ対応可
- 駅から歩いて3分以内
電話でお問合せお客様の電話番号は不動産会社には通知されません
- 不動産会社に
つながります
お客様の電話番号は不動産会社に通知されません
- ※光IP電話、及びIP電話からはご利用になれません
- ※お電話によるお問合せは、店舗営業時間内にお願いします。つながらない場合は、お問合せフォームよりお問合せください
- ※不動産会社がお電話に出られなかった場合、お問合せいただいた後に不動産会社より折り返しのお電話がある場合がございます(お客様が非通知設定した場合は対象外です)
- ※株式会社LIFULLは電話会社が提供するサービスを介してお客様の発信者番号を受領後、折り返し専用の電話番号を発番してお問合せの不動産会社に通知します(お客様の発信者番号がお問合せの不動産会社に通知されることはございません)
- ※携帯電話からお問合せいただいた方に対し、株式会社LIFULLは電話会社が提供するメッセ―ジサービスを介してお客様の発信者番号を受領後、ショートメッセージ(SMS)またはLINE通知メッセージによるお問合せ内容に関する通知をお届けする場合があります
- ※お客様が通話中に不動産会社にお伝えになったお客様の個人情報及び、電話会社が発番する折り返し専用の電話番号は、お問合せ先不動産会社が資料送付・電子メール送信・電話連絡などの目的で保管する可能性があります。お問合せ先不動産会社が保管する個人情報の取扱いについては、各不動産会社に直接お問合せください
- ※株式会社LIFULLでは本サービスを円滑に運用するために、お客様の発信者番号をサービスご利用の控えとして一定期間保管いたします
- ※上記および株式会社LIFULLの個人情報の取扱い方針に同意のうえ、お電話ください
【LIFULL HOME'S物件番号】0110342-0239911【自社管理番号】64270-xx-06
オンライン対応
オンライン相談に対応している物件です

「オンライン内見」「オンライン相談」「IT重説」とは?
物件の内見や不動産会社スタッフとの相談、契約前の重要事項説明をオンライン(ビデオ通話)で行うことができるサービスです。
オンライン内見
ビデオ通話で現地(物件)にいる不動産会社スタッフと映像・音声を使ってリアルタイムで会話しながら内見ができます。
オンライン相談
「物件について聞きたいことがある」など不動産会社スタッフへの相談もビデオ通話で行うことができます。
IT重説
契約前の重要事項説明(重説)をビデオ通話で行うことができます。
利用時の注意事項
- ビデオ通話については各不動産会社指定のものとなります。
- ビデオ通話利用時には通信が発生します。従量課金制通信サービスや通信量に上限があるネット回線・プランを利用する場合は、通信量にご注意ください。
- 通信速度やアプリの設定によってはビデオ通話の画質が低下することがあります。安定した画質で利用するためにも、Wi-Fi環境下での利用を推奨します。
- ご利用のビデオ通話アプリによっては、対象のOSやブラウザに制限がある場合があります。詳しくはお問合せ先不動産会社にご確認ください。
- 保存する
- 共有する
- ※各種情報と現状に差異がある場合は、現状優先となります
- ※不動産会社が入力した情報を基に物件の位置を表示しています。詳しくは不動産会社までお問合せください
- ※不動産会社の方からの上記電話番号によるお問合せはお断りしております。こちら不動産会社詳細からお問合せください
- ※LIFULL HOME'Sは物件鮮度No.1を目指していきます。「実際の物件情報と異なる点がある」「成約済の物件が掲載されている」などの場合は、こちらのフォーム掲載110番からお問合せください
- ※QRコードは株式会社デンソーウェーブの登録商標です







