LIFULL HOME'Sは物件鮮度No.1!※評価について
近鉄奈良線 近鉄奈良駅 バス16分 関西光量子科学研究所下車 徒歩3分(2階/1K/26.08m²)
近鉄奈良線 近鉄奈良駅 バス16分 関西光量子科学研究所下車 徒歩3分(2階/1K/26.08m²)
5.1万円/管理費等7,000円
2日前 更新
画像一覧
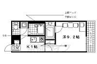
1/30間取り
2/30外観
3/30リビング/ダイニング
4/30リビング/ダイニング
5/30リビング/ダイニング
6/30寝室
7/30キッチン
8/30キッチン
9/30キッチン
10/30キッチン
11/30浴室
12/30浴室
13/30トイレ
14/30洗面
15/30収納
16/30設備
17/30設備
18/30設備
19/30設備
20/30設備
21/30設備
22/30設備
23/30設備
24/30玄関
25/30玄関
26/30バルコニー
27/30駐車場
28/30その他
セキュリティ
29/30その他
その他共有部分
30/30その他
その他共有部分
間取り
外観
リビング/ダイニング
リビング/ダイニング
リビング/ダイニング
寝室
キッチン
キッチン
キッチン
キッチン
浴室
浴室
トイレ
洗面
収納
設備
設備
設備
設備
設備
設備
設備
設備
玄関
玄関
バルコニー
駐車場
その他
その他
その他
お問合せ先 :賃貸のマサキ 尼ヶ辻店 正木商事株式会社
仲介手数料割引
【仲介手数料特別割引き】GO GO キャンペーン実施中!
- 利用条件
- 賃貸のマサキ 尼ヶ辻店 正木商事株式会社で利用可
- 他特典との併用はできませんので、ご注意ください。
- ※ご来店予約の方のみ対象 ※お一人様一回まで
利用方法
来店時に本特典の画面をスマートフォンやタブレットでスタッフに提示、または画面印刷した用紙を提示ください。
有効期限 なし
【仲介手数料無料0円】レオパレス提携店!初期費用がお得なお部屋のご案内は「無料」の賃貸のマサキへ!
基本情報
不動産用語- 賃料
- 5.1万円
- 管理費等
- 7,000円
初期費用などお気軽にお問合せください
- 敷金/礼金
- 無/1ヶ月
- 保証金/敷引・償却金
- -/-
- 交通
JR関西本線 平城山駅 3.6km
近鉄奈良線 近鉄奈良駅 バス16分 関西光量子科学研究所下車 徒歩3分
JR片町線(学研都市線) 木津駅 バス19分 関西光量子科学研究所下車 徒歩3分
- 所在地
京都府木津川市梅美台1丁目3-7
地図を見る- 築年月
- 2008年7月(築18年)
- 主要採光面
- 北西
- 専有面積
- 26.08㎡
- バルコニー面積
- -
- 所在階/階数
- 2階/4階建
見学可能な物件です。希望日時を予約できます(無料)
- 現況
- 空家
- 入居可能時期
- 即時

人気物件はすぐに埋まってしまいます。
気になったらお早めにお問合せください。
- 情報公開日
2025/12/04
56日前 公開
- 情報更新日
2026/01/27
2日前 更新
- 次回更新
予定日 - 2026/02/10
物件のこだわり/設備・条件
新築(非該当)
2階以上の物件(該当)
南向き(非該当)
駐車場あり(該当)
オートロック(該当)
エアコン(該当)
バス・トイレ別(該当)
追焚機能(非該当)
フローリング(非該当)
ペット相談(非該当)
入居条件
二人入居可、保証人不要、即入居可キッチン/バス・トイレ
設備・サービス
オートロック、防犯カメラ、TVモニタ付インターホン、エアコン、クローゼット、シューズボックス、光ファイバー、公営水道、下水、バルコニー、室内洗濯機置場、家具・家電付き、照明器具付き、駐車場あり、駐輪場ありその他
初期費用カード決済可、住まい探し特典あり備考
月額「環境維持費550円(税込)、引落手数料525円(税込)」 室内の仕様は現状と異なることがありますので、詳しくはスタッフまでご確認下さい。
物件周辺の生活情報
買い物
- コンビニ(453m)
- スーパー(240m)
- 商店街(2,938m)
- ドラッグストア(203m)
その他施設
- 公園(526m)
- 銀行(2,972m)
- 梅美台公園(526m)
交通
- 近鉄奈良線 近鉄奈良駅 バス16分 関西光量子科学研究所下車 徒歩3分
- 普通(停車)
- 区間準急(停車)
- 準急(停車)
- 急行(停車)
- 快速急行(停車)
- JR片町線(学研都市線) 木津駅 バス19分 関西光量子科学研究所下車 徒歩3分
- 普通(停車)
- 区間快速(停車)
- 快速(停車)
※急行等の停車駅情報について
急行等の停車駅に関するデータは、随時更新をしておりますが、最新の内容であることを保証するものではありません。
最新かつ正確な情報につきましては、各鉄道会社のウェブサイトにてご確認ください
物件周辺の口コミ
- 京都府木津川市梅美台に住む人の口コミ30代男性
喧騒な環境とは程遠く閑静な住宅地が多くて住みやすい。スーパーセンターも多くあり、買い物にも困らない。人も多すぎず、混雑にも合わなくてストレスが溜まらない。道も広くて道路環境も良いため。
口コミを見る
この物件周辺に住む人の口コミ
口コミは、LIFULL HOME'Sが実際にこの物件の周辺に住む18歳~69歳の男女を対象に、WEBアンケート調査を実施しています。内容には回答者の主観的な表現が含まれる場合があるほか、事実と異なる場合もございます。ご了承ください。
- 京都府木津川市梅美台に住む人の口コミ30代男性
- 喧騒な環境とは程遠く閑静な住宅地が多くて住みやすい。スーパーセンターも多くあり、買い物にも困らない。人も多すぎず、混雑にも合わなくてストレスが溜まらない。道も広くて道路環境も良いため。
- 京都府木津川市梅美台に住む人の口コミ30代男性
- 都会では無いので住宅費が抑えられる。でも車で少し走れば、奈良、大阪、京都、滋賀と遊びに出やすい。(ユニバに一時間で行ける)
- 京都府木津川市梅美台に住む人の口コミ20代女性
- 今のところ特にないかなと感じてます。出たらその都度いうよくきしようかとすはははそにだだな
- 京都府木津川市梅美台に住む人の口コミ20代女性
- 新興住宅地なので日々開発が進み住みやすさが増しているので。まだまだ不便な点はあるがとても快適な環境であるから
- 京都府木津川市梅美台に住む人の口コミ30代男性
- バスでないと駅までは遠いのがなんてん。他は不便じゃないと思うの。
- 京都府木津川市梅美台に住む人の口コミ20代女性
- 都会すぎず田舎すぎず、中間のような街で道も混まないし人もそこまで多くないし、かといって不便でもないのでとても気に入っています。
- 京都府木津川市梅美台に住む人の口コミ30代女性
- 道が広くて、道路の死角が少ないから、みやすい。子育て医療が充実している
- 京都府木津川市梅美台に住む人の口コミ30代女性
- 子供も医療負担額が、月200円の支払いだけでいいのと、子供が夜中などに体調が悪くなった時の救急対応病院か近くにある、道幅が広い。
- 京都府木津川市梅美台に住む人の口コミ30代女性
- 同世代が近所に多い新興住宅地。徒歩圏内にスーパーや100均一、郵便局がある。少し車で行けば、ホームセンターや大きいスーパーもあるし、困らない。
- 京都府木津川市梅美台に住む人の口コミ30代女性
- 徒歩では遠い距離にスーパーなどがあるし、遠くにいく場合、バスも少なく最寄駅も遠い。ほとんどが坂道だから車が無いと不便。外から来た移住者が多いのでどんな人がいるかわからないところは不安なところ。
物件概要
- 建物構造
- 鉄骨造
- 駐車場
- 空有 (18台) 5,500円(税込) 物件からの距離0m
- 総戸数
- 32戸
- 契約形態
- -
- 契約期間
- -
- 更新料
- 16,500円
- その他費用
- 鍵交換費用:16,500円、室内清掃費用:41,800円
- 保証会社
加入要
保証会社利用料: 保証会社の利用 利用料の100%~120%
- 住宅保険
- 要
- 管理
- -
- LIFULL HOME'S
物件番号 - 0109319-0061512
- 自社管理番号
- 539943
- 取引態様
- 仲介
- 会社名
- 賃貸のマサキ 尼ヶ辻店 正木商事株式会社
営業スタッフコメント

賃貸のマサキ 尼ヶ辻店 正木商事株式会社
岡野七美
熱意と精一杯の笑顔での接客を心がけています
業界経験2年
資格少額短期保険募集人
- 会社実績や特徴・サービス情報
- はじめまして。奈良のおもてなし「奈良ゴコロ」でお馴染みの賃貸のマサキです。 この度は数多くの不動産情報より弊社掲載物件をご覧頂きましてありがとうございます。 創業1965年の弊社ではホームズへ掲載しきれないくらいの豊富で新鮮な不動産情報がまだまだございます。また、地元に精通した私達だけが知っているあのお店やこのお店、教育関係、生活環境等の情報もお客様目線でアドバイスいたしますのでお気軽に賃貸のマサキまでご連絡ください。 奈良ゴコロとは 昔、奈良では「大仏商法」と言って東大寺の参詣客が立ち寄るのを待ち、集める努力をしない言い表し方がありました。 弊社も歴史、実績だけではなく「信頼とおもてなしを大切にしたい」この思いが奈良のおもてなし「奈良ゴコロ」です。 キャンペーン情報 ご来店予約で仲介手数料5,500円引き「Go Goキャンペーン」実施中 奈良県の大学生全て「仲介手数料0〜半額」で下宿先をご紹介
はじめまして。奈良のおもてなし「奈良ゴコロ」でお馴染みの賃貸のマサキです。 この度は数多くの不動産情報より弊社掲載物件をご覧頂きましてありがとうございます。 創業1965年の弊社ではホームズへ掲載しきれないくらいの豊富で新鮮な不動産情報がまだまだございます。また、地元に精通した私達だけが知っているあのお店やこのお店、教育関係、生活環境等の情報もお客様目線でアドバイスいたしますのでお気軽に賃貸のマサキまでご連絡ください。 奈良ゴコロとは 昔、奈良では「大仏商法」と言って東大寺の参詣客が立ち寄るのを待ち、集める努力をしない言い表し方がありました。 弊社も歴史、実績だけではなく「信頼とおもてなしを大切にしたい」この思いが奈良のおもてなし「奈良ゴコロ」です。 キャンペーン情報 ご来店予約で仲介手数料5,500円引き「Go Goキャンペーン」実施中 奈良県の大学生全て「仲介手数料0〜半額」で下宿先をご紹介
- 電話でお問合せ(通話無料)
お問合せ先 :賃貸のマサキ 尼ヶ辻店 正木商事株式会社
不動産会社情報
賃貸のマサキ 尼ヶ辻店 正木商事株式会社

奈良県奈良市三条大路5丁目2−40
近鉄橿原線 尼ヶ辻駅 徒歩6分
- 営業時間
- 09:30~19:00
- 定休日
- 1月〜4月無休(5月〜12月水曜日)
- 担当者
- 木原一憲
優良店認定
【創業1965年】専用無料駐車場完備!グーグル口コミ総数2800件以上・平均評価4.8「エリア×賃貸仲介」No.1の賃貸のマサキは取扱い件数2万件以上。エリアに詳しい賃貸専門家在籍!
- 店舗の特徴
- 賃貸管理業務
- リフォーム対応
- 引越し業者紹介可
- 駐車場あり
- オンライン相談可
- 保証人不要な物件あり
- 法人契約取扱い
- 女性スタッフ対応可
- 19時以降も営業
電話でお問合せお客様の電話番号は不動産会社には通知されません
- 不動産会社に
つながります
お客様の電話番号は不動産会社に通知されません
- ※光IP電話、及びIP電話からはご利用になれません
- ※お電話によるお問合せは、店舗営業時間内にお願いします。つながらない場合は、お問合せフォームよりお問合せください
- ※不動産会社がお電話に出られなかった場合、お問合せいただいた後に不動産会社より折り返しのお電話がある場合がございます(お客様が非通知設定した場合は対象外です)
- ※株式会社LIFULLは電話会社が提供するサービスを介してお客様の発信者番号を受領後、折り返し専用の電話番号を発番してお問合せの不動産会社に通知します(お客様の発信者番号がお問合せの不動産会社に通知されることはございません)
- ※携帯電話からお問合せいただいた方に対し、株式会社LIFULLは電話会社が提供するメッセ―ジサービスを介してお客様の発信者番号を受領後、ショートメッセージ(SMS)またはLINE通知メッセージによるお問合せ内容に関する通知をお届けする場合があります
- ※お客様が通話中に不動産会社にお伝えになったお客様の個人情報及び、電話会社が発番する折り返し専用の電話番号は、お問合せ先不動産会社が資料送付・電子メール送信・電話連絡などの目的で保管する可能性があります。お問合せ先不動産会社が保管する個人情報の取扱いについては、各不動産会社に直接お問合せください
- ※株式会社LIFULLでは本サービスを円滑に運用するために、お客様の発信者番号をサービスご利用の控えとして一定期間保管いたします
- ※上記および株式会社LIFULLの個人情報の取扱い方針に同意のうえ、お電話ください
【LIFULL HOME'S物件番号】0109319-0061512【自社管理番号】539943
オンライン対応
オンライン相談に対応している物件です

「オンライン内見」「オンライン相談」「IT重説」とは?
物件の内見や不動産会社スタッフとの相談、契約前の重要事項説明をオンライン(ビデオ通話)で行うことができるサービスです。
オンライン内見
ビデオ通話で現地(物件)にいる不動産会社スタッフと映像・音声を使ってリアルタイムで会話しながら内見ができます。
オンライン相談
「物件について聞きたいことがある」など不動産会社スタッフへの相談もビデオ通話で行うことができます。
IT重説
契約前の重要事項説明(重説)をビデオ通話で行うことができます。
利用時の注意事項
- ビデオ通話については各不動産会社指定のものとなります。
- ビデオ通話利用時には通信が発生します。従量課金制通信サービスや通信量に上限があるネット回線・プランを利用する場合は、通信量にご注意ください。
- 通信速度やアプリの設定によってはビデオ通話の画質が低下することがあります。安定した画質で利用するためにも、Wi-Fi環境下での利用を推奨します。
- ご利用のビデオ通話アプリによっては、対象のOSやブラウザに制限がある場合があります。詳しくはお問合せ先不動産会社にご確認ください。
初期費用・月額費用をあわせて確認!この物件に住んだときの費用めやす
めやすを見るこの物件に住んだときの費用めやす
- 初期費用
- 月額費用
- 追加費用※ご確認ください
追加で費用が
かかる場合があります
必ずご確認ください
初期費用めやす約0円
追加で費用がかかります(※)敷金
0
- 礼金
51,000
賃料+共益費・管理費の1ヶ月分として換算
賃料の1ヶ月分+税として換算。不動産会社によって金額が異なるため正確な金額は不動産会社にお問合せください
※追加費用もチェック!
これらの項目以外にも費用がかかる場合があります。正確な金額は不動産会社にお問合せください。
- 初期費用
- 鍵交換費:16,500円
- 室内清掃費:41,800円
- 火災保険費:不動産会社に要確認
- 月額費用
- 駐車場費:5,500円(税込)※契約任意
- 保証会社
- 保証会社の利用 利用料の100%~120%
不動産会社より
【仲介手数料無料0円】レオパレス提携店!初期費用がお得なお部屋のご案内は「無料」の賃貸のマサキへ!
月額「環境維持費550円(税込)、引落手数料525円(税込)」 室内の仕様は現状と異なることがありますので、詳しくはスタッフまでご確認下さい。
- 保存する
- 共有する
- ※各種情報と現状に差異がある場合は、現状優先となります
- ※不動産会社が入力した情報を基に物件の位置を表示しています。詳しくは不動産会社までお問合せください
- ※不動産会社の方からの上記電話番号によるお問合せはお断りしております。こちら不動産会社詳細からお問合せください
- ※LIFULL HOME'Sは物件鮮度No.1を目指していきます。閲覧中の物件が「成約済である」「実際の物件情報と異なる点がある」などの場合、「掲載110番」からお問合せください
- ※QRコードは株式会社デンソーウェーブの登録商標です
したい暮らしのタグから探す
LIFULL HOME'S 地図・周辺情報
買い物
- ファミリーマート 木津梅美台店
- バロー 木津川店
- サンドラッグ木津川店
- ローソン 木津川州見台店
- ダイソー中村屋梅美台店
グルメ
- なか卯 フォレストモール木津川店
- はま寿司フォレストモール木津川店
- バーミヤン 京都木津川店
- サガミ 木津川城山台店
- 無添くら寿司 木津川店
育児・教育
- 幼保連携型認定こども園梅美台こども園
- 木津川市立梅美台小学校
- 木津川市立木津南中学校
- 幼保連携型認定こども園なごみこども園
- 奈良市立鼓阪北小学校
医療
- 京都山城総合医療センター
公共施設・郵便局
- 木津梅美台郵便局
- 木津川市役所
- 奈良青山郵便局
- 平城山駅前郵便局
- 奈良法蓮郵便局
公園
- 青山近隣公園
- ロート奈良鴻ノ池パーク
- 上人ケ平遺跡公園
- 佐保山近隣公園
利用可能な駅
- 徒歩10分以内
近鉄奈良線
- 近鉄奈良駅 バス16分 関西光量子科学研究所下車徒歩3分
JR片町線(学研都市線)
- 木津駅 バス19分 関西光量子科学研究所下車徒歩3分
- すべての駅
JR関西本線
- 平城山駅3.6km
- 周辺情報は2023年07月21日時点のものになります。
- 周辺情報は、参考情報としてのみご利用ください(周辺情報は、株式会社LIFULLが地図情報の提供事業者から提供を受けた情報とLIFULL HOME'Sの物件情報に基づき、独自の方法で抽出し提供しているものです。周辺情報は、移転や閉鎖等により情報が最新ではない、または正しくない場合がありますが、地図情報の提供事業者から提供された情報をそのまま周辺情報として表示しているため、正確かつ最新の情報へ修正することができないことがあります。)
- 周辺情報は、株式会社LIFULLが掲載するものであり、不動産物件情報を掲載している不動産会社が掲載するものではありません
- 交通情報の一部については、株式会社LIFULLが掲載するものであり、不動産物件情報を掲載している不動産会社が掲載するものではない場合があります。交通情報に関する質問などは株式会社LIFULLにお問合せください








