LIFULL HOME'Sは物件鮮度No.1!※評価について
プレサンス THE KYOTO 華苑(1階/102/1K/23.2m²)
プレサンス THE KYOTO 華苑(1階/102/1K/23.2m²)
7.75万円/管理費等11,000円
3時間前 更新
画像一覧
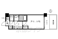
1/30間取り
間取
2/30外観
3/30外観
4/30リビング/ダイニング
5/30リビング/ダイニング
6/30リビング/ダイニング
7/30リビング/ダイニング
8/30リビング/ダイニング
9/30リビング/ダイニング
10/30室内
11/30室内
12/30キッチン
13/30キッチン
14/30浴室
15/30浴室
16/30トイレ
17/30洗面
18/30収納
19/30収納
シューズボックス
20/30設備
21/30設備
22/30設備
23/30玄関
24/30バルコニー
25/30バルコニー
26/30その他
27/30その他
28/30その他
29/30その他
30/30周辺
京都札ノ辻郵便局まで116m
間取り
外観
外観
リビング/ダイニング
リビング/ダイニング
リビング/ダイニング
リビング/ダイニング
リビング/ダイニング
リビング/ダイニング
室内
室内
キッチン
キッチン
浴室
浴室
トイレ
洗面
収納
収納
設備
設備
設備
玄関
バルコニー
バルコニー
その他
その他
その他
その他
周辺
LINEチャットでも 相談できます
お問合せ先 :株式会社京都ライフ 京都駅前店
1〜4月は引越しシーズンのピークです。お問合せはお早めに!
仲介手数料割引
仲介手数料が家賃の半月分(消費税)です。
- 利用条件
- 株式会社京都ライフ 京都駅前店で利用可
- 他特典との併用はできませんので、ご注意ください。
- ・法人契約・事業用物件は除く。 ・積水ハウス、大東建託の管理物件は除く。
利用方法
来店時に本特典の画面をスマートフォンやタブレットでスタッフに提示、または画面印刷した用紙を提示ください。
有効期限 なし
定期借家
この物件の契約期間は、2年間です
※定期借家物件は、賃貸借契約期間満了後、原則として契約の更新ができない物件です。貸主との合意があれば再契約が可能な場合があります
プレサンス Wi−Fi無料 京都市南区から高級分譲、プレサンスシリーズが登場です。
物件のこだわり/設備・条件
新築(非該当)
2階以上の物件(非該当)
南向き(非該当)
駐車場(非該当)
オートロック(該当)
エアコン(該当)
バス・トイレ別(該当)
追焚機能(非該当)
フローリング(該当)
ペット相談(非該当)
入居条件
二人入居可、保証人不要キッチン/バス・トイレ
設備・サービス
オートロック、防犯カメラ、TVモニタ付インターホン、エアコン、シューズボックス、CATV、CS対応、BS対応、インターネット対応、インターネット使用料無料、公営水道、都市ガス、下水、フローリング、専用庭付き、室内洗濯機置場、照明器具付き、エレベーター、ゴミ出し24時間OK、宅配ボックス、バイク置き場あり、駐輪場ありその他
分譲賃貸、住まい探し特典あり備考
駅や、イオンモールが徒歩圏内で大変便利です。さらに充実した設備と美しいデザインが光ります。Wi−Fi無料で使えるのも嬉しい特典です。お気軽に京都ライフまでお問い合わせ下さい。 物件情報はもちろん京都のエリア情報まで幅広く対応させていただきます!
物件周辺の生活情報
買い物
- コンビニ(195m)
- スーパー(152m)
その他施設
- 銀行(323m)
- 京都札ノ辻郵便局(116m)
交通
- 京都市営烏丸線 十条駅 徒歩4分
- 普通(停車)
- 急行(停車)
- 京都市営烏丸線 九条駅 徒歩7分
- 普通(停車)
- 急行(停車)
※急行等の停車駅情報について
急行等の停車駅に関するデータは、随時更新をしておりますが、最新の内容であることを保証するものではありません。
最新かつ正確な情報につきましては、各鉄道会社のウェブサイトにてご確認ください
物件周辺の口コミ
- 京都府京都市下京区東洞院通七条下る西入に住む人の口コミ10代女性
もともと京都に住みたくて京都の大学に進学したので、今は憧れていた生活ができている。でも、夜道を歩くのは少し怖いし、酔っ払いの人が駅にたくさんいたりして、田舎出身の私には少し刺激が大きすぎることもある。
口コミを見る
この物件周辺に住む人の口コミ
口コミは、LIFULL HOME'Sが実際にこの物件の周辺に住む18歳~69歳の男女を対象に、WEBアンケート調査を実施しています。内容には回答者の主観的な表現が含まれる場合があるほか、事実と異なる場合もございます。ご了承ください。
- 京都府京都市下京区東洞院通七条下る西入に住む人の口コミ10代女性
- もともと京都に住みたくて京都の大学に進学したので、今は憧れていた生活ができている。でも、夜道を歩くのは少し怖いし、酔っ払いの人が駅にたくさんいたりして、田舎出身の私には少し刺激が大きすぎることもある。
- 京都府京都市下京区東塩小路向畑町に住む人の口コミ20代女性
- 広い通りが近いため車やバイクの音がたまに大きく感じる。頻繁に工事が行われており、朝から騒音が聞こえる。
- 京都府京都市下京区猪熊通梅小路下るに住む人の口コミ20代女性
- 駅やバスも多く使えて、コンビニも4店舗、公園や飲食店もあり、少し行けば川に行けるし、都会と自然のちょうどいいところを味わえる。できればずっとこのあたりに住みたいです!
- 京都府京都市南区上鳥羽苗代町に住む人の口コミ30代女性
- 駅が近くにあり、バス停も比較的近くにある。コンビニも徒歩圏内で3件あるから。
- 京都府京都市南区西九条菅田町に住む人の口コミ30代女性
- スーパーや駅が近い、保育園も多く公園も歩いて行ける距離にあるので大変便利。不満点は住宅が多く部屋の間取りがせまいのでもう少し広ければいいなと思う。
- 京都府京都市南区西九条川原城町に住む人の口コミ30代女性
- 治安のよい閑静な住宅街で、かつ、大きな駅やショッピングモールにもそこそこ近い。街中に出るのは少し不便だが、家賃が安いので、まあ満足している。
- 京都府京都市南区東九条松田町に住む人の口コミ20代女性
- 交通の便がいい。桜や紅葉が綺麗。美味しいお店が多い。建物が低い。碁盤の目のため道がわかりやすい
- 京都府京都市下京区七条通大宮西入下るに住む人の口コミ20代女性
- 大きな公園やアクティビティを楽しめる場所がある。スーパーは近くにないがコンビニは種類豊富で充実している
- 京都府京都市南区西九条島町に住む人の口コミ20代女性
- 京都駅近くですごく便利。地下鉄バス私鉄JRがあり待たなくても移動できる。車を持っているが、待たなくても生活できる。都会。
- 京都府京都市下京区黒門通木津屋橋下るに住む人の口コミ10代女性
- 交通の便がよく、近くにコンビニやイオンがあるため買い物に困らない
物件概要
- 建物構造
- RC(鉄筋コンクリート)
- 駐車場
- 空無
- 総戸数
- 49戸
- 契約形態
定期借家
- 契約期間
- 2年間
- 更新料
- 新賃料の1ヶ月分
- その他費用
- 鍵交換費用:33,000円、室内清掃費用:55,000円、リブクラブ:2,200円、事務手数料:22,000円、退去時精算手数料:5,500円
- 保証会社
加入要
保証会社利用料:初回:月額賃料等の100%、更新時:2万円/1年
- 住宅保険
- 要
- 管理
- -
- LIFULL HOME'S
物件番号 - 0105901-0244825
- 自社管理番号
- 77654-102
- 取引態様
- 仲介
- 会社名
- 株式会社京都ライフ 京都駅前店
営業スタッフコメント

株式会社京都ライフ 京都駅前店営業
新井温美
やればできる!
業界経験1年
- 会社実績や特徴・サービス情報
- 京都で昭和53年の創業より培ってきた安心と信頼の賃貸不動産会社「京都ライフ」です。 物件掲載数も京都で一番豊富です。 お探しの同じエリア内や近隣の駅からじっくりお部屋探しをして、理想の賃貸物件を見つけられるようお手伝いさせて頂きます。 京都でお部屋探しをご希望の方や掲載物件以外の賃貸情報のご依頼、お部屋に関するご質問などもお気軽にお問合せください。
京都で昭和53年の創業より培ってきた安心と信頼の賃貸不動産会社「京都ライフ」です。 物件掲載数も京都で一番豊富です。 お探しの同じエリア内や近隣の駅からじっくりお部屋探しをして、理想の賃貸物件を見つけられるようお手伝いさせて頂きます。 京都でお部屋探しをご希望の方や掲載物件以外の賃貸情報のご依頼、お部屋に関するご質問などもお気軽にお問合せください。
- 電話でお問合せ(通話無料)
お問合せ先 :株式会社京都ライフ 京都駅前店
不動産会社情報
株式会社京都ライフ 京都駅前店京都ライフ京都駅前店
京都府京都市下京区塩小路通東洞院西入東塩小路町717-1 京都駅前ビル2階
JR東海道・山陽本線 京都駅 徒歩2分
- 営業時間
- 09:30~19:00
- 定休日
- 年中無休(盆正月を除く)
京都不動産会社部屋付け数No1京都ライフ京都駅前店です。京都最大級の情報量のもと、お客様にピッタリのお部屋をご紹介させて頂きます。スタッフ全員が「ありがとう」の心で楽しいお部屋探しのお手伝いいたします
- 店舗の特徴
- 賃貸管理業務
- 24時間管理物件取扱い
- リフォーム対応
- 引越し業者紹介可
- 年中無休
- 保証人不要な物件あり
- 法人契約取扱い
- 女性スタッフ対応可
- 駅から歩いて3分以内
電話でお問合せお客様の電話番号は不動産会社には通知されません
- 不動産会社に
つながります
お客様の電話番号は不動産会社に通知されません
- ※光IP電話、及びIP電話からはご利用になれません
- ※お電話によるお問合せは、店舗営業時間内にお願いします。つながらない場合は、お問合せフォームよりお問合せください
- ※不動産会社がお電話に出られなかった場合、お問合せいただいた後に不動産会社より折り返しのお電話がある場合がございます(お客様が非通知設定した場合は対象外です)
- ※株式会社LIFULLは電話会社が提供するサービスを介してお客様の発信者番号を受領後、折り返し専用の電話番号を発番してお問合せの不動産会社に通知します(お客様の発信者番号がお問合せの不動産会社に通知されることはございません)
- ※携帯電話からお問合せいただいた方に対し、株式会社LIFULLは電話会社が提供するメッセ―ジサービスを介してお客様の発信者番号を受領後、ショートメッセージ(SMS)またはLINE通知メッセージによるお問合せ内容に関する通知をお届けする場合があります
- ※お客様が通話中に不動産会社にお伝えになったお客様の個人情報及び、電話会社が発番する折り返し専用の電話番号は、お問合せ先不動産会社が資料送付・電子メール送信・電話連絡などの目的で保管する可能性があります。お問合せ先不動産会社が保管する個人情報の取扱いについては、各不動産会社に直接お問合せください
- ※株式会社LIFULLでは本サービスを円滑に運用するために、お客様の発信者番号をサービスご利用の控えとして一定期間保管いたします
- ※上記および株式会社LIFULLの個人情報の取扱い方針に同意のうえ、お電話ください
【LIFULL HOME'S物件番号】0105901-0244825【自社管理番号】77654-102
オンライン対応
オンライン相談に対応している物件です

「オンライン内見」「オンライン相談」「IT重説」とは?
物件の内見や不動産会社スタッフとの相談、契約前の重要事項説明をオンライン(ビデオ通話)で行うことができるサービスです。
オンライン内見
ビデオ通話で現地(物件)にいる不動産会社スタッフと映像・音声を使ってリアルタイムで会話しながら内見ができます。
オンライン相談
「物件について聞きたいことがある」など不動産会社スタッフへの相談もビデオ通話で行うことができます。
IT重説
契約前の重要事項説明(重説)をビデオ通話で行うことができます。
利用時の注意事項
- ビデオ通話については各不動産会社指定のものとなります。
- ビデオ通話利用時には通信が発生します。従量課金制通信サービスや通信量に上限があるネット回線・プランを利用する場合は、通信量にご注意ください。
- 通信速度やアプリの設定によってはビデオ通話の画質が低下することがあります。安定した画質で利用するためにも、Wi-Fi環境下での利用を推奨します。
- ご利用のビデオ通話アプリによっては、対象のOSやブラウザに制限がある場合があります。詳しくはお問合せ先不動産会社にご確認ください。
初期費用・月額費用をあわせて確認!この物件に住んだときの費用めやす
めやすを見るこの物件に住んだときの費用めやす
- 初期費用
- 月額費用
- 追加費用※ご確認ください
追加で費用が
かかる場合があります
必ずご確認ください
初期費用めやす約0円
追加で費用がかかります(※)敷金
0
- 礼金
77,500
賃料+共益費・管理費の1ヶ月分として換算
賃料の1ヶ月分+税として換算。不動産会社によって金額が異なるため正確な金額は不動産会社にお問合せください
※追加費用もチェック!
これらの項目以外にも費用がかかる場合があります。正確な金額は不動産会社にお問合せください。
- 初期費用
- 鍵交換費:33,000円
- 室内清掃費:55,000円
- 火災保険費:不動産会社に要確認
- その他
- リブクラブ:2200円
- 事務手数料:22000円
- 退去時精算手数料:5500円
- 保証会社
- 初回:月額賃料等の100%、更新時:2万円/1年
不動産会社より
プレサンス Wi−Fi無料 京都市南区から高級分譲、プレサンスシリーズが登場です。
駅や、イオンモールが徒歩圏内で大変便利です。さらに充実した設備と美しいデザインが光ります。Wi−Fi無料で使えるのも嬉しい特典です。お気軽に京都ライフまでお問い合わせ下さい。 物件情報はもちろん京都のエリア情報まで幅広く対応させていただきます!
- 保存する
- 共有する
- ※各種情報と現状に差異がある場合は、現状優先となります
- ※不動産会社が入力した情報を基に物件の位置を表示しています。詳しくは不動産会社までお問合せください
- ※不動産会社の方からの上記電話番号によるお問合せはお断りしております。こちら不動産会社詳細からお問合せください
- ※LIFULL HOME'Sは物件鮮度No.1を目指していきます。閲覧中の物件が「成約済である」「実際の物件情報と異なる点がある」などの場合、「掲載110番」からお問合せください
- ※QRコードは株式会社デンソーウェーブの登録商標です
LIFULL HOME'S 地図・周辺情報
買い物
- ファミリーマート 烏丸十条店
- ジャパン 京都十条店
- ダックスイオンモールKYOTO店
- ローソン 烏丸札ノ辻店
- 生鮮スーパーケント東寺店
グルメ
- ステーキガスト 京都十条通店
- ガスト 京都十条通店(から好し取扱店)
- 吉野家 京都九条店
- 和食さと 大石橋店
- モスバーガー 近鉄東寺駅前店
育児・教育
- 東和保育園
- 京都市立九条弘道小学校
- 京都市立凌風小中学校
- 隨林寺保育園
- 京都市立九条塔南小学校
医療
- 洛和会ヘルスケアシステム洛和会東寺南病院
- 医療法人社団親和会京都脊椎脊髄外科・眼科病院
- 医療法人五木田病院介護医療院
- 医療法人社団育成会京都久野病院介護医療院
- 光仁病院
公共施設・郵便局
- 京都札ノ辻郵便局
- 京都市南図書館
- 京都府南警察署
- 京都十条郵便局
- 京都市吉祥院図書館
公園
- 梅小路公園
- 深草墓園
- 梅小路公園
- 唐橋西寺公園
- 深草西浦南公園
利用可能な駅
- 徒歩10分以内
京都市営烏丸線
- 十条駅徒歩4分
- 九条駅徒歩7分
- すべての駅
近鉄京都線
- 十条駅徒歩11分
- 東寺駅徒歩15分
- 上鳥羽口駅徒歩19分
- 竹田駅徒歩35分
京阪本線
- 鳥羽街道駅徒歩18分
- 伏見稲荷駅徒歩22分
- 龍谷大前深草駅徒歩28分
- 七条駅徒歩32分
- 藤森駅3.1km
- 清水五条駅3.3km
JR東海道・山陽本線
- 京都駅徒歩18分
- 西大路駅3.1km
JR奈良線
- 東福寺駅徒歩22分
- 稲荷駅徒歩25分
京都市営烏丸線
- くいな橋駅徒歩23分
- 五条駅徒歩32分
JR山陰本線
- 梅小路京都西駅徒歩35分
- 丹波口駅3.6km
- 周辺情報は2023年07月21日時点のものになります。
- 周辺情報は、参考情報としてのみご利用ください(周辺情報は、株式会社LIFULLが地図情報の提供事業者から提供を受けた情報とLIFULL HOME'Sの物件情報に基づき、独自の方法で抽出し提供しているものです。周辺情報は、移転や閉鎖等により情報が最新ではない、または正しくない場合がありますが、地図情報の提供事業者から提供された情報をそのまま周辺情報として表示しているため、正確かつ最新の情報へ修正することができないことがあります。)
- 周辺情報は、株式会社LIFULLが掲載するものであり、不動産物件情報を掲載している不動産会社が掲載するものではありません
- 交通情報の一部については、株式会社LIFULLが掲載するものであり、不動産物件情報を掲載している不動産会社が掲載するものではない場合があります。交通情報に関する質問などは株式会社LIFULLにお問合せください
















