LIFULL HOME'Sは物件鮮度No.1!※評価について
物件概要
- お問合せ状況
- 現在この物件はお問合せできません
- 交通
- 所在地
東京都足立区綾瀬4丁目
地図を見る- 築年月
- 1985年12月(築36年)
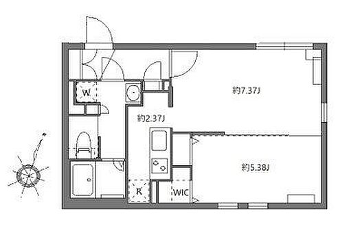
- 間取り
- 2DK
- 主要採光面
- 西
- 専有面積
- 42㎡
- 所在階/階数
- 5階/5階建
- 建物構造
- RC(鉄筋コンクリート)
- 総戸数
- 20戸
物件のこだわり/設備・条件
新築(非該当)
2階以上の物件(該当)
南向き(非該当)
駐車場(非該当)
オートロック(非該当)
エアコン(非該当)
バス・トイレ別(該当)
追焚機能(非該当)
フローリング(該当)
ペット相談可(該当)
位置
角部屋入居条件
楽器不可、二人入居可、ペット可キッチン/バス・トイレ
IHコンロ、コンロ二口、専用バス、専用トイレ、バス・トイレ別、シャワー、洗面所独立設備・サービス
防犯カメラ、トランクルーム、クローゼット、シューズボックス、光ファイバー、公営水道、下水、オール電化、フローリング、バルコニー、室内洗濯機置場、タイル貼り、エレベーター、耐震構造(新耐震基準適合)、駐輪場あり
物件周辺の生活情報
学校
- 足立区立弘道小学校(337m)
- 東綾瀬中学校(329m)
買い物
- コンビニ(183m)
- スーパー(153m)
- 商店街(227m)
- ドラッグストア(305m)
その他施設
- 総合病院(443m)
- 公園(5m)
- 銀行(63m)
交通
- 東京メトロ千代田線 綾瀬駅 徒歩5分
- 普通(停車)
- JR常磐線 綾瀬駅 徒歩5分
- 普通(停車)
- 特別快速(通過)
- 快速線普通列車(通過)
- 快速(通過)
※急行等の停車駅情報について
急行等の停車駅に関するデータは、随時更新をしておりますが、最新の内容であることを保証するものではありません。
最新かつ正確な情報につきましては、各鉄道会社のウェブサイトにてご確認ください
LIFULL HOME'S 地図・周辺情報
買い物
- セブンイレブン 綾瀬店
- ベルクス 足立綾瀬店
- ユニバーサルドラッグ綾瀬店
- セブンイレブン 足立綾瀬3丁目店
- イトーヨーカドー 綾瀬店
グルメ
- 平城苑 綾瀬本店
- サイゼリヤ 綾瀬駅前店
- しゃぶしゃぶ温野菜綾瀬店
- 天丼てんや 綾瀬店
- 焼肉酒家牛角綾瀬店
育児・教育
- キッズガーデン足立綾瀬
- 足立区立弘道小学校
- 足立区立東綾瀬中学校
- チェリッシュ綾瀬
- 足立区立綾瀬小学校
医療
- 医療法人社団綾瀬病院
- 医療法人社団日岩会下井病院
- 慈光会堀切中央病院
- 医療法人社団栄悠会綾瀬循環器病院
- 慈生会等潤病院
公共施設・郵便局
- 綾瀬駅前郵便局
- 葛飾区立こすげ地区図書館
- 綾瀬警察署
- 足立綾瀬郵便局
- 足立区立やよい図書館
公園
- 東綾瀬公園
- しょうぶ沼公園
- 一ツ家第一公園
- 上千葉砂原公園
- 大谷田公園
利用可能な駅
- 徒歩10分以内
東京メトロ千代田線
- 綾瀬駅徒歩5分
JR常磐線
- 綾瀬駅徒歩5分
- すべての駅
つくばエクスプレス
- 青井駅徒歩14分
- 六町駅徒歩31分
東武伊勢崎線
- 小菅駅徒歩18分
- 五反野駅徒歩20分
- 梅島駅徒歩37分
- 堀切駅3.1km
- 牛田駅3.4km
東京メトロ千代田線
- 北綾瀬駅徒歩26分
京成本線
- 堀切菖蒲園駅徒歩30分
- 京成関屋駅3.5km
- お花茶屋駅3.5km
JR常磐線
- 亀有駅徒歩31分
- 北千住駅3.9km
- 周辺情報は2023年07月21日時点のものになります。
- 周辺情報は、参考情報としてのみご利用ください(周辺情報は、株式会社LIFULLが地図情報の提供事業者から提供を受けた情報とLIFULL HOME'Sの物件情報に基づき、独自の方法で抽出し提供しているものです。周辺情報は、移転や閉鎖等により情報が最新ではない、または正しくない場合がありますが、地図情報の提供事業者から提供された情報をそのまま周辺情報として表示しているため、正確かつ最新の情報へ修正することができないことがあります。)
- 周辺情報は、株式会社LIFULLが掲載するものであり、不動産物件情報を掲載している不動産会社が掲載するものではありません
- 交通情報の一部については、株式会社LIFULLが掲載するものであり、不動産物件情報を掲載している不動産会社が掲載するものではない場合があります。交通情報に関する質問などは株式会社LIFULLにお問合せください




































