LIFULL HOME'Sは物件鮮度No.1!※評価について
京都市営烏丸線 竹田駅 徒歩3分
5.3万円/管理費等3,000円
4時間前 更新
画像一覧
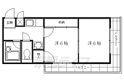
1/30間取り
間取
2/30外観
3/30外観
4/30リビング/ダイニング
5/30リビング/ダイニング
6/30リビング/ダイニング
7/30キッチン
8/30キッチン
9/30キッチン
10/30キッチン
11/30浴室
12/30浴室
13/30トイレ
14/30洗面
15/30収納
16/30収納
17/30収納
18/30収納
19/30収納
20/30設備
21/30設備
22/30設備
23/30設備
24/30設備
25/30玄関
26/30バルコニー
27/30その他
28/30その他
29/30その他
30/30周辺
京都竹田郵便局まで232m 竹田駅から最寄の郵便局。裏手が竹田駅です。
間取り
外観
外観
リビング/ダイニング
リビング/ダイニング
リビング/ダイニング
キッチン
キッチン
キッチン
キッチン
浴室
浴室
トイレ
洗面
収納
収納
収納
収納
収納
設備
設備
設備
設備
設備
玄関
バルコニー
その他
その他
その他
周辺
LINEチャットでも 相談できます
お問合せ先 :株式会社京都ライフ 長岡店
仲介手数料割引
ご成約時仲介手数料家賃の50%(税別)に割引させていただきます。
- 利用条件
- 株式会社京都ライフ 長岡店で利用可
- 他特典との併用はできませんので、ご注意ください。
- ・法人契約、事業用物件は対象外 ・積水ハウス、大東建託の管理物件は対象外
利用方法
来店時に本特典の画面をスマートフォンやタブレットでスタッフに提示、または画面印刷した用紙を提示ください。
有効期限 なし
家賃と間取が反比例 更新料1ヶ月分 2口ガスコンロ設置可 室内洗濯
物件のこだわり/設備・条件
新築(非該当)
2階以上の物件(該当)
南向き(非該当)
駐車場(非該当)
オートロック(非該当)
エアコン(該当)
バス・トイレ別(該当)
追焚機能(非該当)
フローリング(該当)
ペット相談(非該当)
入居条件
二人入居可キッチン/バス・トイレ
設備・サービス
エアコン、CATV、光ファイバー、公営水道、都市ガス、下水、フローリング、バルコニー、室内洗濯機置場、エレベーター、駐輪場ありその他
住まい探し特典あり備考
竹田駅まで3分 この近さは魅力的・更新料1ヶ月分 2口ガスコンロ可 室内洗濯 この条件でお2人入居も可能です 京都の賃貸は京都ライフまでお待ちしております。ご質問、ご不明な点等がございましたらお気軽にお電話、メールにてお問い合わせくださいませ。 物件情報はもちろん京都のエリア情報まで幅広く対応させていただきます!
物件周辺の生活情報
学校
- 竹田小学校(580m)
- 藤森中学校(1,060m)
買い物
- コンビニ(453m)
- スーパー(945m)
その他施設
- 総合病院(1,800m)
- 銀行(583m)
- ホームセンターコーナンくいな橋店(836m)
交通
- 京都市営烏丸線 竹田駅 徒歩3分
- 普通(停車)
- 急行(停車)
- 近鉄京都線 竹田駅 徒歩3分
- 普通(停車)
- 準急(停車)
- 急行(停車)
※急行等の停車駅情報について
急行等の停車駅に関するデータは、随時更新をしておりますが、最新の内容であることを保証するものではありません。
最新かつ正確な情報につきましては、各鉄道会社のウェブサイトにてご確認ください
物件周辺の口コミ
- 京都府京都市伏見区竹田桶ノ井町に住む人の口コミ30代女性
治安がいいとは言えないが、家賃の安さと交通の便の良さは気に入っているため。
口コミを見る
この物件周辺に住む人の口コミ
口コミは、LIFULL HOME'Sが実際にこの物件の周辺に住む18歳~69歳の男女を対象に、WEBアンケート調査を実施しています。内容には回答者の主観的な表現が含まれる場合があるほか、事実と異なる場合もございます。ご了承ください。
- 京都府京都市伏見区竹田桶ノ井町に住む人の口コミ30代女性
- 治安がいいとは言えないが、家賃の安さと交通の便の良さは気に入っているため。
- 京都府京都市伏見区深草西浦町8丁目に住む人の口コミ20代男性
- 生活をする上で、衣食住及び交通の面で不自由することがないから。
- 京都府京都市伏見区竹田田中宮町に住む人の口コミ30代女性
- 行きたい美容院などが近く無いので、不便なのと道が危ない所が多い
- 京都府京都市伏見区竹田桶ノ井町に住む人の口コミ30代女性
- 四条や京都駅ほどはオシャレなお店はないけど、電車でわりとすぐ行ける。食品や日用品などは近くでそろえられるし、それ以外も特に困ったことはないから。
- 京都府京都市伏見区深草西浦町8丁目に住む人の口コミ20代男性
- 近所にコンビニや飲食店が多く、学生に優しい価格で販売されている。
- 京都府京都市伏見区竹田七瀬川町に住む人の口コミ30代女性
- 生活をしてて、困ることがない。交通の便がよく色々な場所にでていきやすい
- 京都府京都市伏見区竹田田中宮町に住む人の口コミ20代女性
- 住み始めて1年ですが、住みやすい環境だと思います。今は夫婦二人暮し、不便に思うこともありません。今後、出産や子育てとなると、医療機関や託児所など、心配になる事も出てくるかも知れません。
- 京都府京都市伏見区竹田浄菩提院町に住む人の口コミ20代女性
- 電車に乗れば交通の不便はないが、スーパー以外の気の利いた店が少ない
- 京都府京都市南区上鳥羽北島田町に住む人の口コミ20代女性
- 引っ越してきたばかりですが便利です。まだお店の開拓などはできてないですが目につく場所に飲食店があるイメージです。車通りが多い一本道なので、信号が少ないのがマイナスポイントです。
- 京都府京都市伏見区深草西浦町8丁目に住む人の口コミ20代女性
- 生活必需品は徒歩圏内で揃う。電車も色々通っているため、移動しやすい。
物件概要
- 建物構造
- RC(鉄筋コンクリート)
- 駐車場
- 無
- 総戸数
- 47戸
- 契約形態
- -
- 契約期間
- 2年間
- 更新料
- 22,000円
- その他費用
- 水道代:2,200円、スマイルパック:20,000円、口座振替手数料:330円
- 保証会社
加入要
保証会社:グリーン保証
保証会社利用料:初回:月額賃料等の50%、更新時:月額賃料等の50%(初回保証料および更新保証料ともに最低保証料22000円)
- 住宅保険
- 要
- 管理
- 管理員:巡回
- LIFULL HOME'S
物件番号 - 0100861-0210073
- 自社管理番号
- 02895-206-08
- 取引態様
- 仲介
- 会社名
- 株式会社京都ライフ 長岡店
営業スタッフコメント

株式会社京都ライフ 長岡店マネージャー
池田泰雅
貴方の希望の物件必ず見つけます。
業界経験10年
資格宅地建物取引士、少額短期保険募集人
- 会社実績や特徴・サービス情報
- 当店は長岡京市を中心に向日市、大山崎町、久世、羽束師と周辺地域全ての物件情報を網羅していると自負しております。豊富な物件情報はもちろん、エリア情報に至るまで「お客様第一主義」の心でサポートさせて頂きますので、ご来店いただけば「満足のいく1日」を提供させて頂けると確信しております。来客用ガレージ・キッズスペースをご用意しておりますので、お気軽にご来店下さい。 創業40年、地域密着に拘らせて頂いた京都最大級の物件情報をもとに、誠心誠意、ご満足頂けるお部屋をご紹介させて頂きます。 お部屋を探しは京都ライフ 長岡店へ、お気軽にお立ち寄りください。
当店は長岡京市を中心に向日市、大山崎町、久世、羽束師と周辺地域全ての物件情報を網羅していると自負しております。豊富な物件情報はもちろん、エリア情報に至るまで「お客様第一主義」の心でサポートさせて頂きますので、ご来店いただけば「満足のいく1日」を提供させて頂けると確信しております。来客用ガレージ・キッズスペースをご用意しておりますので、お気軽にご来店下さい。 創業40年、地域密着に拘らせて頂いた京都最大級の物件情報をもとに、誠心誠意、ご満足頂けるお部屋をご紹介させて頂きます。 お部屋を探しは京都ライフ 長岡店へ、お気軽にお立ち寄りください。
- 電話でお問合せ(通話無料)
お問合せ先 :株式会社京都ライフ 長岡店
不動産会社情報
京都のお部屋探しでしたら創業40年、京都を知り尽くしている京都ライフにお任せ下さい。
- 店舗の特徴
- 賃貸管理業務
- 24時間管理物件取扱い
- リフォーム対応
- 引越し業者紹介可
- 年中無休
- 保証人不要な物件あり
- 法人契約取扱い
- 駅から歩いて3分以内
電話でお問合せお客様の電話番号は不動産会社には通知されません
- 不動産会社に
つながります
お客様の電話番号は不動産会社に通知されません
- ※光IP電話、及びIP電話からはご利用になれません
- ※お電話によるお問合せは、店舗営業時間内にお願いします。つながらない場合は、お問合せフォームよりお問合せください
- ※不動産会社がお電話に出られなかった場合、お問合せいただいた後に不動産会社より折り返しのお電話がある場合がございます(お客様が非通知設定した場合は対象外です)
- ※株式会社LIFULLは電話会社が提供するサービスを介してお客様の発信者番号を受領後、折り返し専用の電話番号を発番してお問合せの不動産会社に通知します(お客様の発信者番号がお問合せの不動産会社に通知されることはございません)
- ※携帯電話からお問合せいただいた方に対し、株式会社LIFULLは電話会社が提供するメッセ―ジサービスを介してお客様の発信者番号を受領後、ショートメッセージ(SMS)またはLINE通知メッセージによるお問合せ内容に関する通知をお届けする場合があります
- ※お客様が通話中に不動産会社にお伝えになったお客様の個人情報及び、電話会社が発番する折り返し専用の電話番号は、お問合せ先不動産会社が資料送付・電子メール送信・電話連絡などの目的で保管する可能性があります。お問合せ先不動産会社が保管する個人情報の取扱いについては、各不動産会社に直接お問合せください
- ※株式会社LIFULLでは本サービスを円滑に運用するために、お客様の発信者番号をサービスご利用の控えとして一定期間保管いたします
- ※上記および株式会社LIFULLの個人情報の取扱い方針に同意のうえ、お電話ください
【LIFULL HOME'S物件番号】0100861-0210073【自社管理番号】02895-206-08
初期費用・月額費用をあわせて確認!この物件に住んだときの費用めやす
めやすを見るこの物件に住んだときの費用めやす
- 初期費用
- 月額費用
- 追加費用※ご確認ください
追加で費用が
かかる場合があります
必ずご確認ください
初期費用めやす約0円
追加で費用がかかります(※)敷金
53,000
- 礼金
0
賃料+共益費・管理費の1ヶ月分として換算
賃料の1ヶ月分+税として換算。不動産会社によって金額が異なるため正確な金額は不動産会社にお問合せください
※追加費用もチェック!
これらの項目以外にも費用がかかる場合があります。正確な金額は不動産会社にお問合せください。
- 初期費用
- 鍵交換費:不動産会社に要確認
- 室内清掃費:不動産会社に要確認
- 火災保険費:不動産会社に要確認
- その他
- 水道代:2200円
- スマイルパック:20000円
- 口座振替手数料:330円
- 保証会社
- 初回:月額賃料等の50%、更新時:月額賃料等の50%(初回保証料および更新保証料ともに最低保証料22000円)
不動産会社より
家賃と間取が反比例 更新料1ヶ月分 2口ガスコンロ設置可 室内洗濯
竹田駅まで3分 この近さは魅力的・更新料1ヶ月分 2口ガスコンロ可 室内洗濯 この条件でお2人入居も可能です 京都の賃貸は京都ライフまでお待ちしております。ご質問、ご不明な点等がございましたらお気軽にお電話、メールにてお問い合わせくださいませ。 物件情報はもちろん京都のエリア情報まで幅広く対応させていただきます!
- 保存する
- 共有する
- ※各種情報と現状に差異がある場合は、現状優先となります
- ※不動産会社が入力した情報を基に物件の位置を表示しています。詳しくは不動産会社までお問合せください
- ※不動産会社の方からの上記電話番号によるお問合せはお断りしております。こちら不動産会社詳細からお問合せください
- ※LIFULL HOME'Sは物件鮮度No.1を目指していきます。閲覧中の物件が「成約済である」「実際の物件情報と異なる点がある」などの場合、「掲載110番」からお問合せください
- ※QRコードは株式会社デンソーウェーブの登録商標です
したい暮らしのタグから探す
LIFULL HOME'S 地図・周辺情報
買い物
- セブンイレブン 京都竹田西内畑町店
- FLET’S竹田店
- ダックス伏見新堀川店
- ファミリーマート 竹田駅前店
- フレスコ 竹田店
グルメ
- 和食さと 竹田店
- にぎり長次郎 竹田店
- マクドナルド 1号線上鳥羽店
- 餃子の王将 上鳥羽店
- 吉野家 1号線京都南インター店
育児・教育
- 京都市立竹田幼稚園
- 京都市立竹田小学校
- 京都市立藤森中学校
- モーツァルトしずかこども園
- 京都市立上鳥羽小学校
医療
- 医療法人五木田病院介護医療院
- 医療法人清水会京都リハビリテーション病院
- 社会医療法人岡本病院(財団)伏見岡本病院
- 独立行政法人国立病院機構京都医療センター
- 医療法人社団育生会京都久野病院
公共施設・郵便局
- 京都竹田郵便局
- 京都市吉祥院図書館
- 京都市伏見区役所深草支所
- 京都小久保郵便局
- 京都市伏見中央図書館
公園
- 竹田公園
- 深草西浦南公園
- 鳥羽離宮跡公園
- 東向公園
- 下鳥羽公園
利用可能な駅
- 徒歩10分以内
京都市営烏丸線
- 竹田駅徒歩3分
近鉄京都線
- 竹田駅徒歩3分
- すべての駅
京都市営烏丸線
- くいな橋駅徒歩14分
- 十条駅徒歩29分
- 九条駅3.2km
近鉄京都線
- 上鳥羽口駅徒歩17分
- 伏見駅徒歩21分
- 十条駅徒歩30分
- 近鉄丹波橋駅徒歩37分
- 東寺駅3.1km
- 桃山御陵前駅3.5km
京阪本線
- 藤森駅徒歩23分
- 墨染駅徒歩27分
- 龍谷大前深草駅徒歩30分
- 丹波橋駅徒歩35分
- 伏見稲荷駅徒歩36分
- 鳥羽街道駅3.2km
- 伏見桃山駅3.4km
JR奈良線
- 稲荷駅徒歩35分
- JR藤森駅徒歩35分
- 周辺情報は2023年07月21日時点のものになります。
- 周辺情報は、参考情報としてのみご利用ください(周辺情報は、株式会社LIFULLが地図情報の提供事業者から提供を受けた情報とLIFULL HOME'Sの物件情報に基づき、独自の方法で抽出し提供しているものです。周辺情報は、移転や閉鎖等により情報が最新ではない、または正しくない場合がありますが、地図情報の提供事業者から提供された情報をそのまま周辺情報として表示しているため、正確かつ最新の情報へ修正することができないことがあります。)
- 周辺情報は、株式会社LIFULLが掲載するものであり、不動産物件情報を掲載している不動産会社が掲載するものではありません
- 交通情報の一部については、株式会社LIFULLが掲載するものであり、不動産物件情報を掲載している不動産会社が掲載するものではない場合があります。交通情報に関する質問などは株式会社LIFULLにお問合せください
















