LIFULL HOME'Sは物件鮮度No.1!※評価について
物件のこだわり/設備・条件
新築(非該当)
2階以上の物件(非該当)
南向き(非該当)
駐車場あり(該当)
オートロック(非該当)
エアコン(該当)
バス・トイレ別(該当)
追焚機能(非該当)
フローリング(該当)
ペット相談(非該当)
位置
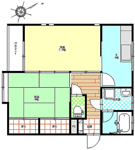
角部屋キッチン/バス・トイレ
給湯、専用バス、専用トイレ、バス・トイレ別、シャワー、シャワー付洗面化粧台、洗面所独立設備・サービス
TVモニタ付インターホン、エアコン、光ファイバー、公営水道、プロパンガス、浄化槽、フローリング、バルコニー、室内洗濯機置場、照明器具付き、駐車場あり備考
仲介手数料53,900円は借主負担/退去時室内清掃費用25,300円〜49,500円は借主負担※対象物件の料金はお問合せ下さい。(部屋タイプがメゾネットの場合、4,125円が加算されます。また家電付き物件の場合、清掃料金として1家電当たり1,375円が加算されます。一戸建て等の場合は個別に見積となります。)
物件周辺の生活情報
学校
- 佐渡市立金井小学校(680m)
- 佐渡市立金井中学校(940m)
買い物
- コンビニ(1,120m)
- スーパー(1,410m)
- ドラッグストア(1,470m)
その他施設
- 総合病院(550m)
- 公園(1,980m)
- 銀行(100m)
物件概要
- 建物構造
- 木造
- 駐車場
- 空有 (2台) 無料 駐車場2台目料金:別途2,000円
- 総戸数
- 10戸
- 契約形態
- -
- 契約期間
- -
- 更新料
- -
- その他費用
- 仲介手数料:53,900円、室内清掃費用:31,900円
- 保証会社
利用可
保証会社:株式会社オリコフォレントインシュア
保証会社利用料:(契約時)賃料等の50%※最低保証料20,000円/(月々)毎月の支払総額の1%
- 住宅保険
- 要
- 管理
- 管理会社:株式会社萩田換地
- LIFULL HOME'S
物件番号 - 0100485-0001416
- 自社管理番号
- k-01-0045-206
- 取引態様
- 仲介
- 会社名
- 株式会社萩田換地
- 電話でお問合せ(通話無料)
お問合せ先 :株式会社萩田換地
不動産会社情報
電話でお問合せお客様の電話番号は不動産会社には通知されません
- 不動産会社に
つながります
お客様の電話番号は不動産会社に通知されません
- ※光IP電話、及びIP電話からはご利用になれません
- ※お電話によるお問合せは、店舗営業時間内にお願いします。つながらない場合は、お問合せフォームよりお問合せください
- ※不動産会社がお電話に出られなかった場合、お問合せいただいた後に不動産会社より折り返しのお電話がある場合がございます(お客様が非通知設定した場合は対象外です)
- ※株式会社LIFULLは電話会社が提供するサービスを介してお客様の発信者番号を受領後、折り返し専用の電話番号を発番してお問合せの不動産会社に通知します(お客様の発信者番号がお問合せの不動産会社に通知されることはございません)
- ※携帯電話からお問合せいただいた方に対し、株式会社LIFULLは電話会社が提供するメッセ―ジサービスを介してお客様の発信者番号を受領後、ショートメッセージ(SMS)またはLINE通知メッセージによるお問合せ内容に関する通知をお届けする場合があります
- ※お客様が通話中に不動産会社にお伝えになったお客様の個人情報及び、電話会社が発番する折り返し専用の電話番号は、お問合せ先不動産会社が資料送付・電子メール送信・電話連絡などの目的で保管する可能性があります。お問合せ先不動産会社が保管する個人情報の取扱いについては、各不動産会社に直接お問合せください
- ※株式会社LIFULLでは本サービスを円滑に運用するために、お客様の発信者番号をサービスご利用の控えとして一定期間保管いたします
- ※上記および株式会社LIFULLの個人情報の取扱い方針に同意のうえ、お電話ください
【LIFULL HOME'S物件番号】0100485-0001416【自社管理番号】k-01-0045-206
初期費用・月額費用をあわせて確認!この物件に住んだときの費用めやす
めやすを見るこの物件に住んだときの費用めやす
- 初期費用
- 月額費用
- 追加費用※ご確認ください
追加で費用が
かかる場合があります
必ずご確認ください
※追加費用もチェック!
これらの項目以外にも費用がかかる場合があります。正確な金額は不動産会社にお問合せください。
- 初期費用
- 鍵交換費:不動産会社に要確認
- 室内清掃費:31,900円
- 火災保険費:不動産会社に要確認
- 月額費用
- 駐車場費:無料
- 保証会社
- (契約時)賃料等の50%※最低保証料20,000円/(月々)毎月の支払総額の1%
不動産会社より
(金井)総合病院、教育施設、買い物施設が徒歩10分圏内に充実。
仲介手数料53,900円は借主負担/退去時室内清掃費用25,300円〜49,500円は借主負担※対象物件の料金はお問合せ下さい。(部屋タイプがメゾネットの場合、4,125円が加算されます。また家電付き物件の場合、清掃料金として1家電当たり1,375円が加算されます。一戸建て等の場合は個別に見積となります。)
- 保存する
- 共有する
- ※各種情報と現状に差異がある場合は、現状優先となります
- ※不動産会社が入力した情報を基に物件の位置を表示しています。詳しくは不動産会社までお問合せください
- ※不動産会社の方からの上記電話番号によるお問合せはお断りしております。こちら不動産会社詳細からお問合せください
- ※LIFULL HOME'Sは物件鮮度No.1を目指していきます。閲覧中の物件が「成約済である」「実際の物件情報と異なる点がある」などの場合、「掲載110番」からお問合せください
- ※QRコードは株式会社デンソーウェーブの登録商標です
したい暮らしのタグから探す
LIFULL HOME'S 地図・周辺情報
買い物
- シティコンビニエンスタイム24
- フレッシュマツヤ 金井店
- ツルハドラッグ佐渡泉店
- ローソン 佐渡中興店
- ひらせいホームセンター 佐渡店
グルメ
- はなまるうどん 佐渡佐和田店
- ミスタードーナツ 佐渡佐和田ショップ
- タリーズコーヒー佐渡佐和田店
- 吉野家 佐渡佐和田店
育児・教育
- 佐渡市立金井保育園
- 佐渡市立金井小学校
- 佐渡市立金井中学校
- 平泉保育園
医療
- 新潟県厚生農業協同組合連合会佐渡総合病院
公共施設・郵便局
- 金井郵便局
- 佐渡市立中央図書館
- 佐渡市役所
- 泉簡易郵便局
- 貝塚簡易郵便局
公園
- 金井運動公園
利用可能な駅
- 徒歩10分以内
バス
- 金井下車徒歩3分
- 周辺情報は2023年07月21日時点のものになります。
- 周辺情報は、参考情報としてのみご利用ください(周辺情報は、株式会社LIFULLが地図情報の提供事業者から提供を受けた情報とLIFULL HOME'Sの物件情報に基づき、独自の方法で抽出し提供しているものです。周辺情報は、移転や閉鎖等により情報が最新ではない、または正しくない場合がありますが、地図情報の提供事業者から提供された情報をそのまま周辺情報として表示しているため、正確かつ最新の情報へ修正することができないことがあります。)
- 周辺情報は、株式会社LIFULLが掲載するものであり、不動産物件情報を掲載している不動産会社が掲載するものではありません
- 交通情報の一部については、株式会社LIFULLが掲載するものであり、不動産物件情報を掲載している不動産会社が掲載するものではない場合があります。交通情報に関する質問などは株式会社LIFULLにお問合せください









