LIFULL HOME'Sは物件鮮度No.1!※評価について
サーパスシティ西院日照町(6階/619/3LDK/70.22m²)
サーパスシティ西院日照町(6階/619/3LDK/70.22m²)
16万円/管理費等-
17時間前 更新
画像一覧
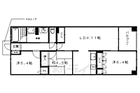
1/30間取り
間取
2/30外観
3/30外観
4/30リビング/ダイニング
5/30リビング/ダイニング
6/30リビング/ダイニング
7/30リビング/ダイニング
8/30リビング/ダイニング
9/30リビング/ダイニング
10/30リビング/ダイニング
11/30リビング/ダイニング
12/30キッチン
13/30キッチン
14/30キッチン
15/30浴室
16/30浴室
17/30トイレ
18/30洗面
19/30洗面
20/30洗面
21/30収納
22/30設備
23/30設備
24/30設備
25/30玄関
26/30玄関
27/30バルコニー
28/30その他
29/30その他
30/30周辺
右京郵便局まで79m 西小路高辻を西いきました南側にございます。
間取り
外観
外観
リビング/ダイニング
リビング/ダイニング
リビング/ダイニング
リビング/ダイニング
リビング/ダイニング
リビング/ダイニング
リビング/ダイニング
リビング/ダイニング
キッチン
キッチン
キッチン
浴室
浴室
トイレ
洗面
洗面
洗面
収納
設備
設備
設備
玄関
玄関
バルコニー
その他
その他
周辺
LINEチャットでも
相談できます
お問合せ先 :株式会社京都ライフ 丹波橋店
1〜4月は引越しシーズンのピークです。お問合せはお早めに!
仲介手数料割引
仲介手数料が家賃の半月分(税別)です。
- 利用条件
- 株式会社京都ライフ 丹波橋店で利用可
- 他特典との併用可
- ・法人契約、事業用物件は除く。 ・積水ハウス、大東建託の管理物件は除く。
利用方法
来店時に本特典の画面をスマートフォンやタブレットでスタッフに提示、または画面印刷した用紙を提示ください。
有効期限 なし
西院駅徒歩圏内 分譲賃貸ならではの設備と共用部が魅力ですよ。
物件のこだわり/設備・条件
新築(非該当)
2階以上の物件(該当)
南向き(非該当)
駐車場あり(該当)
オートロック(該当)
エアコン(非該当)
バス・トイレ別(該当)
追焚機能(該当)
フローリング(該当)
ペット相談(非該当)
入居条件
二人入居可キッチン/バス・トイレ
設備・サービス
オートロック、管理人常駐、TVモニタ付インターホン、床暖房、シューズボックス、BS対応、光ファイバー、インターネット使用料無料、公営水道、都市ガス、下水、フローリング、バルコニー、室内洗濯機置場、エレベーター、宅配ボックス、駐車場あり、駐輪場ありその他
分譲賃貸、住まい探し特典あり備考
京都市右京区 西院エリアの分譲賃貸マンションです。京福、阪急のダブルアクセス。嬉しい3点セパレートに浴室乾燥機、追い焚き機能付浴室、システムキッチン、温水洗浄便座など充実の設備。オートロック、TVホンでセキュリティも安心です。コンビニ、スーパー、ドラッグストアなど近くにあって便利ですよ。インターネットは光対応、無料でご利用... 物件情報はもちろん京都のエリア情報まで幅広く対応させていただきます!
物件周辺の生活情報
買い物
- コンビニ(219m)
- スーパー(125m)
- ドラッグストア(356m)
その他施設
- 総合病院(960m)
- 銀行(555m)
- 右京郵便局(79m)
交通
- 阪急京都本線 西院駅 徒歩10分
- 普通(停車)
- 準急(停車)
- 堺筋準急(停車)
- 通勤特急(停車)
- 特急(通過)
- 急行(停車)
- 準特急(停車)
- 阪急京都本線 西京極駅 徒歩14分
- 普通(停車)
- 準急(停車)
- 堺筋準急(停車)
- 通勤特急(通過)
- 特急(通過)
- 急行(停車)
- 準特急(通過)
※急行等の停車駅情報について
急行等の停車駅に関するデータは、随時更新をしておりますが、最新の内容であることを保証するものではありません。
最新かつ正確な情報につきましては、各鉄道会社のウェブサイトにてご確認ください
物件周辺の口コミ
- 京都府京都市右京区西院日照町に住む人の口コミ40代女性
カーシェアサービスがもっと充実してほしいが、概ね満足している。教育環境は良くないが、行政の問題なのでどうしようもない。
口コミを見る
この物件周辺に住む人の口コミ
口コミは、LIFULL HOME'Sが実際にこの物件の周辺に住む18歳~69歳の男女を対象に、WEBアンケート調査を実施しています。内容には回答者の主観的な表現が含まれる場合があるほか、事実と異なる場合もございます。ご了承ください。
- 京都府京都市右京区西院日照町に住む人の口コミ40代女性
- カーシェアサービスがもっと充実してほしいが、概ね満足している。教育環境は良くないが、行政の問題なのでどうしようもない。
- 京都府京都市右京区西院日照町に住む人の口コミ40代女性
- 生活に必要な買い物ができる場所が数か所あり、買いたい物や値段などでどの店で買うか選択出来て良い。ほぼ自転車での移動だが、バスが多く、車での移動がしにくい市内なども利便性が良い。
- 京都府京都市右京区西院日照町に住む人の口コミ40代女性
- 通勤、通園、買い物など日常生活に必要なものは近くに揃っていて便利だから
- 京都府京都市右京区西院日照町に住む人の口コミ40代女性
- 洗練された暮らしではないが、田舎よりは過ごしやすく、観光地にも行きやすい。
- 京都府京都市右京区西院日照町に住む人の口コミ40代女性
- スーパーも病院も近くにあって便利でいいけど、ポイ捨てがヒドイ。
- 京都府京都市右京区山ノ内池尻町に住む人の口コミ60代女性
- 日常の買物がとても便利 バスの便がよい 役所や税務署、年金事務所などが徒歩圏内にある
- 京都府京都市右京区松原通春日西入に住む人の口コミ50代男性
- 日常生活には不便がありません。世代も適度に混じっており、バランスが取れた町です。中所得以上であり、治安は良い。
- 京都府京都市中京区壬生東檜町に住む人の口コミ30代女性
- 買い物、通勤、子育て、カフェなどの外食、病院もいっぱいある。自然はあまりないけれど、それ以外のものは何でも充実しているから。
- 京都府京都市右京区山ノ内苗町に住む人の口コミ60代男性
- 住むには一応近所で済ませるので便利。バスの路線数が多いので、朝は100本以上バスが来る。地下鉄、電車通っている。
- 京都府京都市右京区西京極西大丸町に住む人の口コミ40代女性
- 生まれてずっと住んでいるので他の地域と比べる事はできないが、駅やスーパーや公園が近くにあり生活するにはとても便利だから。
物件概要
- 建物構造
- RC(鉄筋コンクリート)
- 駐車場
- 空有 1,100円(税込) 駐車料金:1100円〜22000円
- 総戸数
- 135戸
- 契約形態
- -
- 契約期間
- 2年間
- 更新料
- 新賃料の1ヶ月分
- その他費用
- 室内清掃費用:77,000円、抗菌除菌処理代:30,800円、入居者サポート:770円
- 保証会社
加入要
保証会社:オリコフォレント
保証会社利用料:初回:月額賃料等の50%、月額:保証料として月額賃料等の1.5%
- 住宅保険
- 要
- 管理
- 管理員:常駐
- LIFULL HOME'S
物件番号 - 0100118-0266439
- 自社管理番号
- 40664-619-05
- 取引態様
- 仲介
- 会社名
- 株式会社京都ライフ 丹波橋店
営業スタッフコメント

株式会社京都ライフ 丹波橋店
横山琢己
良い部屋ご紹介させて頂きます!ご希望条件のお部屋探しをお手伝いいたします!
業界経験4年
資格少額短期保険募集人
- 会社実績や特徴・サービス情報
- 京都市内部屋付け数3年連続1位。(株式会社全国賃貸住宅新聞調べ) 当店は京阪本線と近鉄京都線が交わり伏見区でも人気の高い「丹波橋」にある京阪丹波橋駅の西に位置しております。
京都市内部屋付け数3年連続1位。(株式会社全国賃貸住宅新聞調べ) 当店は京阪本線と近鉄京都線が交わり伏見区でも人気の高い「丹波橋」にある京阪丹波橋駅の西に位置しております。
- 電話でお問合せ(通話無料)
お問合せ先 :株式会社京都ライフ 丹波橋店
不動産会社情報
伏見区全域くまなくネット!京都ライフでは仲介手数料が家賃の半月分!京都のお部屋探しは、創業45年、京都ライフにお任せ下さい!
- 店舗の特徴
- 賃貸管理業務
- 24時間管理物件取扱い
- 引越し業者紹介可
- 年中無休
- 駐車場あり
- 系列店舗での対応可
- オンライン相談可
- 保証人不要な物件あり
- 法人契約取扱い
- 駅から歩いて3分以内
電話でお問合せお客様の電話番号は不動産会社には通知されません
- 不動産会社に
つながります
お客様の電話番号は不動産会社に通知されません
- ※光IP電話、及びIP電話からはご利用になれません
- ※お電話によるお問合せは、店舗営業時間内にお願いします。つながらない場合は、お問合せフォームよりお問合せください
- ※不動産会社がお電話に出られなかった場合、お問合せいただいた後に不動産会社より折り返しのお電話がある場合がございます(お客様が非通知設定した場合は対象外です)
- ※株式会社LIFULLは電話会社が提供するサービスを介してお客様の発信者番号を受領後、折り返し専用の電話番号を発番してお問合せの不動産会社に通知します(お客様の発信者番号がお問合せの不動産会社に通知されることはございません)
- ※携帯電話からお問合せいただいた方に対し、株式会社LIFULLは電話会社が提供するメッセ―ジサービスを介してお客様の発信者番号を受領後、ショートメッセージ(SMS)またはLINE通知メッセージによるお問合せ内容に関する通知をお届けする場合があります
- ※お客様が通話中に不動産会社にお伝えになったお客様の個人情報及び、電話会社が発番する折り返し専用の電話番号は、お問合せ先不動産会社が資料送付・電子メール送信・電話連絡などの目的で保管する可能性があります。お問合せ先不動産会社が保管する個人情報の取扱いについては、各不動産会社に直接お問合せください
- ※株式会社LIFULLでは本サービスを円滑に運用するために、お客様の発信者番号をサービスご利用の控えとして一定期間保管いたします
- ※上記および株式会社LIFULLの個人情報の取扱い方針に同意のうえ、お電話ください
【LIFULL HOME'S物件番号】0100118-0266439【自社管理番号】40664-619-05
オンライン対応
オンライン相談に対応している物件です

「オンライン内見」「オンライン相談」「IT重説」とは?
物件の内見や不動産会社スタッフとの相談、契約前の重要事項説明をオンライン(ビデオ通話)で行うことができるサービスです。
オンライン内見
ビデオ通話で現地(物件)にいる不動産会社スタッフと映像・音声を使ってリアルタイムで会話しながら内見ができます。
オンライン相談
「物件について聞きたいことがある」など不動産会社スタッフへの相談もビデオ通話で行うことができます。
IT重説
契約前の重要事項説明(重説)をビデオ通話で行うことができます。
利用時の注意事項
- ビデオ通話については各不動産会社指定のものとなります。
- ビデオ通話利用時には通信が発生します。従量課金制通信サービスや通信量に上限があるネット回線・プランを利用する場合は、通信量にご注意ください。
- 通信速度やアプリの設定によってはビデオ通話の画質が低下することがあります。安定した画質で利用するためにも、Wi-Fi環境下での利用を推奨します。
- ご利用のビデオ通話アプリによっては、対象のOSやブラウザに制限がある場合があります。詳しくはお問合せ先不動産会社にご確認ください。
初期費用・月額費用をあわせて確認!この物件に住んだときの費用めやす
めやすを見るこの物件に住んだときの費用めやす
- 初期費用
- 月額費用
- 追加費用※ご確認ください
追加で費用が
かかる場合があります
必ずご確認ください
初期費用めやす約0円
追加で費用がかかります(※)敷金
160,000
- 礼金
320,000
賃料+共益費・管理費の1ヶ月分として換算
賃料の1ヶ月分+税として換算。不動産会社によって金額が異なるため正確な金額は不動産会社にお問合せください
※追加費用もチェック!
これらの項目以外にも費用がかかる場合があります。正確な金額は不動産会社にお問合せください。
- 初期費用
- 鍵交換費:不動産会社に要確認
- 室内清掃費:77,000円
- 火災保険費:不動産会社に要確認
- 月額費用
- 駐車場費:1,100円(税込)※契約任意
- その他
- 抗菌除菌処理代:30800円
- 入居者サポート:770円
- 保証会社
- 初回:月額賃料等の50%、月額:保証料として月額賃料等の1.5%
不動産会社より
西院駅徒歩圏内 分譲賃貸ならではの設備と共用部が魅力ですよ。
京都市右京区 西院エリアの分譲賃貸マンションです。京福、阪急のダブルアクセス。嬉しい3点セパレートに浴室乾燥機、追い焚き機能付浴室、システムキッチン、温水洗浄便座など充実の設備。オートロック、TVホンでセキュリティも安心です。コンビニ、スーパー、ドラッグストアなど近くにあって便利ですよ。インターネットは光対応、無料でご利用... 物件情報はもちろん京都のエリア情報まで幅広く対応させていただきます!
- 保存する
- 共有する
- ※各種情報と現状に差異がある場合は、現状優先となります
- ※不動産会社が入力した情報を基に物件の位置を表示しています。詳しくは不動産会社までお問合せください
- ※不動産会社の方からの上記電話番号によるお問合せはお断りしております。こちら不動産会社詳細からお問合せください
- ※LIFULL HOME'Sは物件鮮度No.1を目指していきます。閲覧中の物件が「成約済である」「実際の物件情報と異なる点がある」などの場合、「掲載110番」からお問合せください
- ※QRコードは株式会社デンソーウェーブの登録商標です
同じ建物の他の部屋
LIFULL HOME'S 地図・周辺情報
買い物
- ファミリーマート 西院清水町店
- 業務スーパー 西院店
- ウエルシア右京西院月双店
- セブンイレブン 西院月双町店
- イオンスタイル京都五条
グルメ
- 揚げ天まるイオン五条
- バーミヤン イオンモール京都五条店
- スターバックスコーヒーイオンモール京都五条店
- サンマルクカフェイオンモール京都五条店
- 串家物語 イオンモール京都五条店
育児・教育
- 清明保育園
- 京都市立葛野小学校
- 京都市立四条中学校
- 西院保育園
- 京都市立山ノ内小学校
医療
- 医療法人社団京健会介護医療院さいきょう
- 医療法人社団京健会さいきょうクリニック
- 一般財団法人京都地域医療学際研究所がくさい病院
- 地方独立行政法人京都市立病院機構京都市立病院
- 安威医院
公共施設・郵便局
- 右京郵便局
- 京都市右京中央図書館
- 京都市右京区役所
- 京都四条乾郵便局
- 京都市中央図書館
公園
- 西院公園
- 東大丸公園
- 光徳公園
- 梅小路公園
- 梅小路公園
利用可能な駅
- 徒歩10分以内
阪急京都本線
- 西院駅徒歩10分
- すべての駅
阪急京都本線
- 西京極駅徒歩14分
- 大宮駅徒歩32分
京福電気鉄道嵐山本線
- 西院駅徒歩14分
- 山ノ内駅徒歩16分
- 西大路三条駅徒歩19分
- 嵐電天神川駅徒歩24分
- 蚕ノ社駅徒歩27分
- 四条大宮駅徒歩31分
- 太秦広隆寺駅徒歩34分
- 帷子ノ辻駅3.6km
京都地下鉄東西線
- 西大路御池駅徒歩22分
- 太秦天神川駅徒歩25分
- 二条城前駅3.5km
JR山陰本線
- 丹波口駅徒歩27分
- 円町駅徒歩31分
- 二条駅徒歩33分
- 花園駅徒歩35分
- 梅小路京都西駅3.1km
- 太秦駅3.6km
JR東海道・山陽本線
- 西大路駅徒歩36分
京福電気鉄道北野線
- 撮影所前駅3.3km
- 常盤駅3.6km
阪急嵐山線
- 上桂駅3.5km
- 周辺情報は2023年07月21日時点のものになります。
- 周辺情報は、参考情報としてのみご利用ください(周辺情報は、株式会社LIFULLが地図情報の提供事業者から提供を受けた情報とLIFULL HOME'Sの物件情報に基づき、独自の方法で抽出し提供しているものです。周辺情報は、移転や閉鎖等により情報が最新ではない、または正しくない場合がありますが、地図情報の提供事業者から提供された情報をそのまま周辺情報として表示しているため、正確かつ最新の情報へ修正することができないことがあります。)
- 周辺情報は、株式会社LIFULLが掲載するものであり、不動産物件情報を掲載している不動産会社が掲載するものではありません
- 交通情報の一部については、株式会社LIFULLが掲載するものであり、不動産物件情報を掲載している不動産会社が掲載するものではない場合があります。交通情報に関する質問などは株式会社LIFULLにお問合せください









