このページは物件の広告情報ではありません。
過去にLIFULL HOME'Sへ掲載された不動産情報と提携先の地図情報を元に生成した参考情報です。また、一般から投稿された情報など主観的な情報も含みます。
情報更新日: 2025/11/27
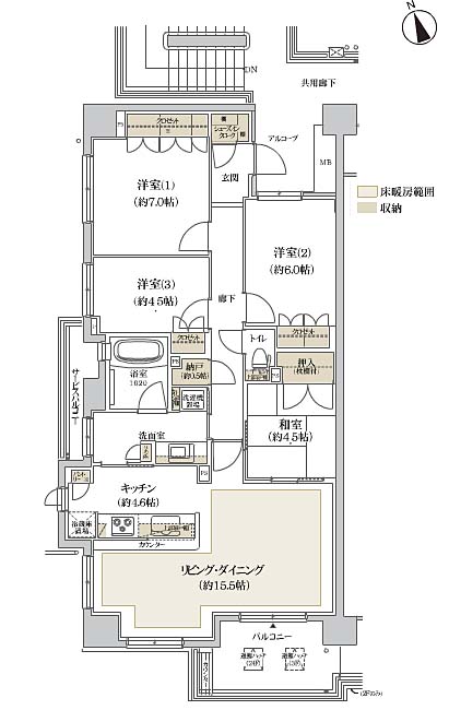
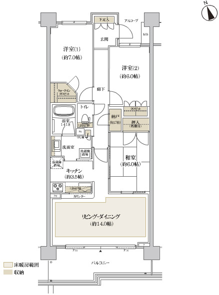
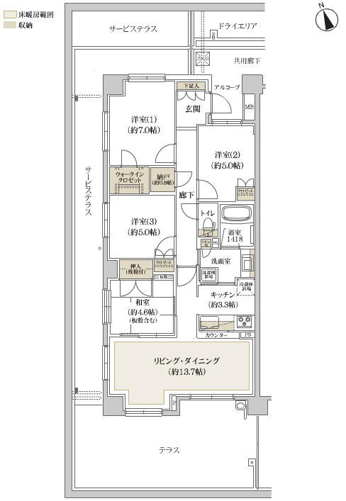
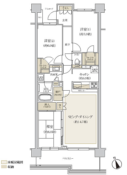
THE CENTER HOUSE
| 所在地 | 神奈川県横浜市 都筑区牛久保西2丁目25番1(地番) |
|---|---|
| 交通 |
|
スポンサーリンク
THE CENTER HOUSEの建物情報
物件概要
| 物件種別 | マンション |
|---|---|
| 築年月(築年数) | 2011年1月 (築15年) |
| 建物構造 | RC造地上3階、RC造地上3階地下1階、RC造地上5階地下1階 |
| 総戸数/総区画数 | 242戸 |
| 敷地全体面積 | 18,817.84m2 |
| 土地権利 | 所有権 |
| 施工会社 | 三井住友建設株式会社 |
| 売主 | 伊藤忠都市開発株式会社、パナホーム株式会社 首都圏環境開発支社、大和ハウス工業株式会社 東京支社 |
| 販売会社 | 野村不動産アーバンネット株式会社(代理)、伊藤忠ハウジング株式会社(代理) |
設備・条件
- 追い焚き
- 浴室乾燥機
- システムキッチン
- 床暖房
- ブロードバンド
- オートロック
- 防犯カメラ
- キッズルーム
- 駐車場完備
- 住宅性能評価書
- スーパー800m以内
- 小学校800m以内
※最新の状態と異なる場合があります
売りたい不動産をお持ちの方へ
このエリアの所有不動産を査定する
売却査定手続きの流れ、費用相場や注意点など不動産売却について詳しく知りたい方はLIFULL HOME'S 不動産査定へ
THE CENTER HOUSEの周辺施設
-
買い物
日用品 -
- Fit Care DEPOT中川店
- カルディコーヒーファームモザイクモール港北店
- Seriaモザイクモール港北店
- アインズ&トルペモザイクモール港北店
- 買い物
大型店 -
- ミキハウスマム&ベイビーモザイクモール港北店
- 都筑阪急
- エディオン モザイクモール港北店
- 西松屋 モザイクモール港北店
- グルメ
-
- 江戸前びっくり寿司 センター北店
- 木曽路 港北ニュータウン店
- 無添くら寿司 モザイクモール港北店
- 餃子の王将 モザイクモール港北店
- 娯楽施設
-
- 牛久保西公園
- 牛久保公園
- 山崎公園プール
- 中川八幡山公園
- 文化施設
-
- 横浜市歴史博物館
- 役所
公共施設 -
- 横浜センター北駅前郵便局
- 中川駅前郵便局
- 横浜すみれが丘郵便局
- 保育施設
-
- つづきルーテル保育園
- マーマセンター北保育園
- パレット保育園牛久保西
- 金の星幼稚園
- 学校
-
- 横浜市立都筑小学校
- 私立東京都市大学横浜キャンパス
- 横浜市立牛久保小学校
- 横浜市立中川西小学校
THE CENTER HOUSE周辺の物件情報
周辺の問合せ可能な物件
神奈川県横浜市都筑区の問合せ可能な物件のうち、この物件の周辺にあるものから表示しています
賃貸
-
募集中
- スカイプラザ
- 8.9万円
- 横浜市営地下鉄ブルーライン 中川駅 徒歩9分
- 神奈川県横浜市都筑区牛久保西2丁目
- 46.17m² / 2DK
-
募集中
- 横浜市営地下鉄ブルーライン 中川駅 徒歩8分
- 8.9万円
- 横浜市営地下鉄ブルーライン 中川駅 徒歩8分
- 神奈川県横浜市都筑区牛久保西2丁目20-19
- 46.17m² / 2DK
-
募集中
- ストレリチア.M
- 9.2万円
- 横浜市営地下鉄ブルーライン 中川駅 徒歩7分
- 神奈川県横浜市都筑区牛久保西2丁目2-17
- 30.85m² / 1K
-
募集中
- クレッシェンド・中川
- 10.7万円
- 横浜市営地下鉄ブルーライン 中川駅 徒歩5分
- 神奈川県横浜市都筑区牛久保西2丁目4-8
- 53.46m² / 3LDK
-
募集中
- メゾンプリミエールB
- 12.3万円
- 横浜市営地下鉄グリーンライン センター北駅 徒歩9分
- 神奈川県横浜市都筑区牛久保西1丁目1-12
- 51.0m² / 2LDK
-
募集中
- リビング・フォーA
- 17万円
- 横浜市営地下鉄ブルーライン センター北駅 徒歩7分
- 神奈川県横浜市都筑区牛久保西1丁目6-28
- 71.02m² / 3LDK
-
募集中
- コルティーレNAKAGAWA
- 19万円
- 横浜市営地下鉄ブルーライン センター北駅 徒歩10分
- 神奈川県横浜市都筑区中川5丁目
- 83.05m² / 3LDK
-
募集中
- アネシス
- 13万円
- 横浜市営地下鉄ブルーライン 中川駅 徒歩8分
- 神奈川県横浜市都筑区牛久保2丁目14-15
- 47.94m² / 2LDK
-
募集中
- グリーンパーク西
- 8.6万円
- 横浜市営地下鉄ブルーライン センター北駅 徒歩13分
- 神奈川県横浜市都筑区牛久保西3丁目13-9
- 54.63m² / 2LDK
-
募集中
- コートビレッジA
- 14.2万円
- 横浜市営地下鉄ブルーライン 中川駅 徒歩8分
- 神奈川県横浜市都筑区牛久保2丁目11-26
- 80.59m² / 3LDK
中古マンション
-
売出し中
- 安心を買うなら、朝日土地建物へ港北ガーデンヒルズ A棟
- 8798万円
- 横浜市営地下鉄ブルーライン 中川駅 徒歩3分
- 神奈川県横浜市都筑区中川1丁目
- 138.49m² / 4LDK
-
売出し中
- ミオカステーロ港北中川IV
- 8680万円
- 横浜市営地下鉄ブルーライン 中川駅 徒歩2分
- 神奈川県横浜市都筑区中川1丁目
- 81.05m² / 3LDK
-
売出し中
- マイキャッスルセンター北II
- 7980万円
- 横浜市営地下鉄ブルーライン センター北駅 徒歩4分
- 神奈川県横浜市都筑区中川中央1丁目39-7
- 75.52m² / 3LDK
-
売出し中
- オーベル港北中川
- 6590万円
- 横浜市営地下鉄ブルーライン 中川駅 徒歩2分
- 神奈川県横浜市都筑区中川1丁目
- 68.47m² / 3LDK
-
売出し中
- ライオンズ横浜すみれが丘マスターレジデンス
- 4850万円
- 横浜市営地下鉄ブルーライン 中川駅 徒歩17分
- 神奈川県横浜市都筑区すみれが丘43-13
- 81.65m² / 3LDK
-
売出し中
- ライオンズ港北ニュータウンローレルコート
- 6480万円
- 横浜市営地下鉄グリーンライン 北山田駅 徒歩12分
- 神奈川県横浜市都筑区北山田5丁目17-27
- 75.01m² / 3LDK
-
売出し中
- 港北ニュータウンビュープラザセンター北 3-6号棟
- 3999万円
- 横浜市営地下鉄グリーンライン 北山田駅 徒歩11分
- 神奈川県横浜市都筑区南山田1丁目
- 65.88m² / 2LDK
-
売出し中
- 港北ニュータウンビュープラザセンター北
- 4099万円
- 横浜市営地下鉄ブルーライン センター北駅 徒歩10分
- 神奈川県横浜市都筑区南山田1丁目3-4
- 65.88m² / 2LDK
一戸建て
-
売出し中
- 南山田の中古戸建
- 5290万円
- 横浜市営地下鉄グリーンライン 北山田駅 徒歩11分
- 神奈川県横浜市都筑区南山田1丁目
- 97.35m² / 3SLDK
-
売出し中
- 横浜市都筑区茅ケ崎中央 センター南駅
- 6980万円
- 横浜市営地下鉄ブルーライン センター南駅 徒歩10分
- 神奈川県横浜市都筑区茅ケ崎中央
- 101.12m² / 4LDK
-
売出し中
- 都筑区すみれが丘 新築分譲住宅 1号棟
- 7480万円
- 横浜市営地下鉄ブルーライン 中川駅 徒歩15分
- 神奈川県横浜市都筑区すみれが丘
- 89.42m² / 3LDK
-
売出し中
- 横浜市都筑区荏田南4丁目 中古戸建て
- 5990万円
- 東急田園都市線 江田駅 徒歩16分
- 神奈川県横浜市都筑区荏田南4丁目
- 98.78m² / 3LDK
-
売出し中
- 横浜市営地下鉄グリーンライン センター北駅 徒歩18分
- 4480万円
- 横浜市営地下鉄グリーンライン センター北駅 徒歩18分
- 神奈川県横浜市都筑区大棚町
- 101.01m² / 3LDK
-
売出し中
- 大棚町2016年築中古戸建
- 4480万円
- 横浜市営地下鉄ブルーライン センター北駅 徒歩18分
- 神奈川県横浜市都筑区大棚町
- 101.01m² / 2SLDK
-
売出し中
- 横浜市営地下鉄ブルーライン「センター南」駅 徒歩8分~8分
- 13,490万円
- 横浜市営地下鉄ブルーライン「センター南」駅 徒歩8分~8分
- 神奈川県横浜市都筑区荏田東4丁目6-14他
- 108.14m² / 3LDK(3号地)、4LDK(2号地)
-
売出し中
- 都筑区荏田東3丁目 中古戸建
- 1億5800万円
- 横浜市営地下鉄グリーンライン センター南駅 徒歩15分
- 神奈川県横浜市都筑区荏田東3丁目
- 149.85m² / 3LDK
-
売出し中
- 帰りたくなる家 都筑区勝田町/限定1棟
- 7990万円
- 横浜市営地下鉄ブルーライン センター北駅 徒歩16分
- 神奈川県横浜市都筑区勝田町
- 108.67m² / 4R
-
売出し中
- 都筑区荏田南5丁目 2号棟 全2棟
- 9180万円
- 横浜市営地下鉄ブルーライン センター南駅 徒歩20分
- 神奈川県横浜市都筑区荏田南5丁目
- 122.32m² / 3LDK
注文住宅
※表示価格は延べ床面積約132m²の場合の建物価格の参考値です
-
資料請求受付中
- 3000万円〜
- セキスイハイム
- 【セキスイハイム|平屋】ザ・デザイナーズハイムD1
-
資料請求受付中
- 2000万円〜
- 一条工務店
- 【一条工務店】 建築実例集3冊セット(HOME’S限定)
-
資料請求受付中
- 3000万円〜
- 株式会社スウェーデンハウス
- 【スウェーデンハウス】お客様満足度総合第1位の声「No.1 Sweden House News」
-
資料請求受付中
- 2324万円〜
- ヤマト住建株式会社
- 【エネージュLCCM】脱炭素社会へ!住まいのすべての過程でCO2排出量を抑える住宅
-
資料請求受付中
- 3200万円〜
- ダイワハウス
- 【ダイワハウス】 xevoΣ<ジーヴォシグマ> ~天井高2m72cmの高さというゆとり空間~
-
資料請求受付中
- 1868万円〜
- タマホーム株式会社
- 大安心の家シリーズ
-
資料請求受付中
- -
- へーベルハウス
- 【ヘーベルハウス】:ヘーベルハウス総合カタログ
物件の種類から探す
横浜市都筑区で募集中の物件のみを検索できます
掲載情報に誤りや問題がある場合
LIFULL HOME'Sは「不動産会社」ではなく「情報掲載サイト」です
- ※管理会社の情報はLIFULL HOME'Sでは保持していないためお答えできません。お問合せはお控えください
- ※最新の募集状況は掲載中の不動産会社があれば、不動産会社へ直接お問合せください
掲載情報の訂正依頼 専用ダイヤル
0120-987-243
- 専用ダイヤル受付時間:10:00〜18:00
- ※土日・祝日、臨時休業日は除く
不動産データのご利用について
不動産事業におけるDX、サービスの改善、新規事業開発等をご検討中の方へ不動産データの活用をご提案します。LIFULL HOME'Sで集約した不動産情報や外部データは、不動産事業DX、不正決済防止、ローン審査、事業開発、研究等さまざまな事業でご活用いただいています。詳しくは以下よりご確認ください。
不動産アーカイブご利用アンケートにご協力ください
不動産アーカイブの掲載情報は、LIFULL HOME'S掲載の不動産情報および提携先の不動産情報を統計情報として集積したものであり、その存在や信憑性を保証するものではありません。