このページは物件の広告情報ではありません。
過去にLIFULL HOME'Sへ掲載された不動産情報と提携先の地図情報を元に生成した参考情報です。また、一般から投稿された情報など主観的な情報も含みます。
情報更新日: 2025/12/03
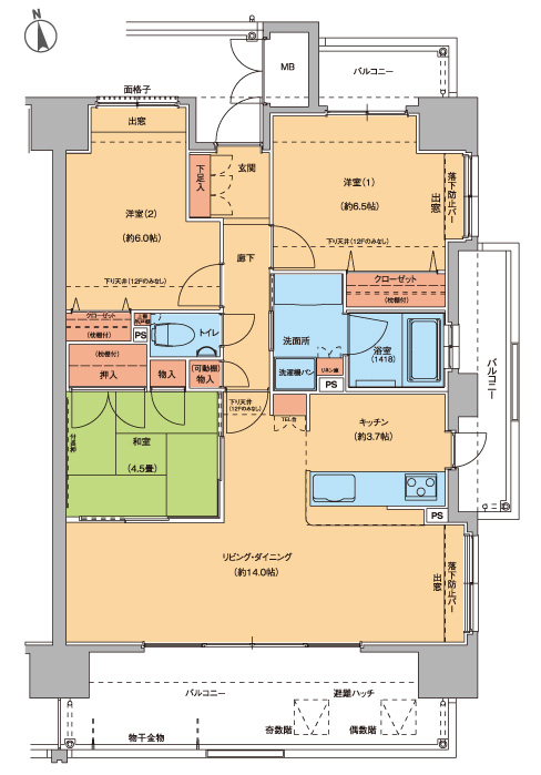
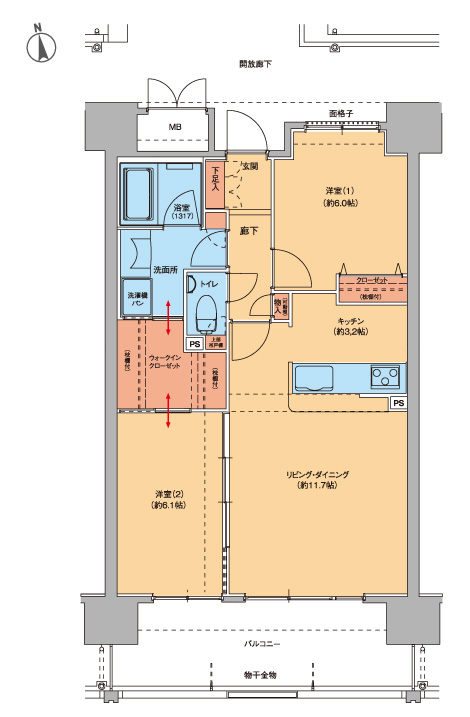
エヌ・グランデ豊成
スポンサーリンク
エヌ・グランデ豊成の建物情報
物件概要
| 物件種別 | マンション |
|---|---|
| 築年月(築年数) | 2012年5月 (築14年) |
| 建物構造 | RC12階建 |
| 総戸数/総区画数 | 33戸 |
| 敷地全体面積 | 1217.69m2 |
| 管理人 | 巡回 |
| 用途地域 | 準工業 |
| 地目 | 宅地 |
| 土地権利 | 所有権 |
| 施工会社 | 株式会社中本屋工務店 |
| 売主 | 株式会社中本屋工務店 |
| 販売会社 | 株式会社アーヴェル・エステート(代理) |
設備・条件
- オール電化
- 追い焚き
- 浴室乾燥機
- IHコンロ
- システムキッチン
- 食器洗い乾燥機
- ブロードバンド
- オートロック
- 防犯カメラ
- 駐車場完備
- 環境にやさしい
- スーパー800m以内
- コンビニ400m以内
- 小学校800m以内
※最新の状態と異なる場合があります
売りたい不動産をお持ちの方へ
このエリアの所有不動産を査定する
売却査定手続きの流れ、費用相場や注意点など不動産売却について詳しく知りたい方はLIFULL HOME'S 不動産査定へ
エヌ・グランデ豊成の周辺施設
-
買い物
日用品 -
- ザグザグ福富店
- セブンイレブン 岡山豊成3丁目店
- セブンイレブン 岡山バイパス豊成店
- ディスカウントドラッグコスモス福富店
- 買い物
大型店 -
- コーナンPRO岡山豊成店
- ゴルフ5 岡山青江店
- ヤマダデンキテックランドNew岡南店
- ヤマダデンキヤマダアウトレット岡南店
- グルメ
-
- ジョリーパスタ 青江店
- はなまるうどん 岡山泉田店
- すき家 岡山福田店
- スシロー 岡山新福店
- 娯楽施設
-
- 青江公園
- 快活CLUB岡山青江店
- 岡山市立市民屋内温水プール
- 役所
公共施設 -
- 岡山芳泉郵便局
- 岡山青江郵便局
- 岡山豊成郵便局
- 保育施設
-
- 土の子保育園
- かわい保育園
- アートチャイルドケア岡山豊成保育園
- 白鳩保育園
エヌ・グランデ豊成周辺の物件情報
周辺の問合せ可能な物件
岡山県岡山市南区の問合せ可能な物件のうち、この物件の周辺にあるものから表示しています
賃貸
-
募集中
- オンフォレスト芳泉
- 5.3万円
- JR宇野線 備前西市駅 徒歩36分
- 岡山県岡山市南区豊成3丁目
- 30.96m² / 1K
-
募集中
- JR宇野線 備前西市駅 3.3km
- 2.7万円
- JR宇野線 備前西市駅 3.3km
- 岡山県岡山市南区豊成3丁目
- 23.18m² / 1K
-
募集中
- JR宇野線 備前西市駅 3.3km
- 5.3万円
- JR宇野線 備前西市駅 3.3km
- 岡山県岡山市南区豊成3丁目
- 30.96m² / 1K
-
募集中
- JR宇野線 備前西市駅 徒歩33分
- 5.6万円
- JR宇野線 備前西市駅 徒歩33分
- 岡山県岡山市南区豊成3丁目
- 61.61m² / 2LDK
-
募集中
- ベルメゾン東光豊成
- 5.6万円
- バス 福富西一丁目下車 徒歩4分
- 岡山県岡山市南区豊成3丁目
- 61.61m² / 2LDK
-
募集中
- コープエスポワールII棟
- 2.7万円
- バス 福富西一丁目下車 徒歩4分
- 岡山県岡山市南区豊成3丁目
- 23.18m² / 1K
-
募集中
- ラフィネヴィラ豊成
- 4.5万円
- JR宇野線 備前西市駅 徒歩34分
- 岡山県岡山市南区豊成3丁目
- 61.92m² / 3DK
-
募集中
- JR宇野線 備前西市駅 3.2km
- 4.5万円
- JR宇野線 備前西市駅 3.2km
- 岡山県岡山市南区豊成3丁目
- 61.92m² / 3DK
-
募集中
- サニーパーク
- 4万円
- バス 福富西1丁目下車 徒歩7分
- 岡山県岡山市南区豊成3丁目
- 39.75m² / 2DK
-
募集中
- JR宇野線 備前西市駅 3.2km
- 5.4万円
- JR宇野線 備前西市駅 3.2km
- 岡山県岡山市南区豊成3丁目
- 45.5m² / 1LDK
新築マンション
※完成後1年以上経過した未入居の物件が含まれている場合があります
中古マンション
-
売出し中
- シティパル芳泉壱番館
- 2190万円
- JR宇野線 備前西市駅 徒歩35分
- 岡山県岡山市南区豊成3丁目
- 66.68m² / 3LDK
-
売出し中
- ディアステージ芳泉
- 2290万円
- JR宇野線 備前西市駅 徒歩35分
- 岡山県岡山市南区豊成3丁目
- 68.93m² / 3LDK
-
売出し中
- クリーンピア豊成
- 1300万円
- JR山陽本線 岡山駅 バス20分 豊成下車 徒歩5分
- 岡山県岡山市南区豊成1丁目
- 78.53m² / 2LDK
-
売出し中
- ペルル新福 703
- 1499万円
- 岡山電気軌道清輝橋線 清輝橋駅 徒歩37分
- 岡山県岡山市南区新福1丁目4-24
- 71.42m² / 2SLDK
-
売出し中
- サーパス福富
- 1690万円
- JR宇野線 備前西市駅 3.9km
- 岡山県岡山市南区福富中1丁目
- 66.75m² / 3LDK
-
売出し中
- ヴェルディ・ザ・ガーデン芳泉ウエスト
- 4500万円
- バス 福田公会堂前下車 徒歩3分
- 岡山県岡山市南区福富西2丁目
- 79.35m² / 2SLDK
-
売出し中
- ライオンズマンション豊成
- 1680万円
- 岡山電気軌道清輝橋線 清輝橋駅 徒歩30分
- 岡山県岡山市南区豊成1丁目6-7
- 62.2m² / 2LDK
-
売出し中
- サーパス福富公園
- 2498万円
- JR山陽本線 岡山駅 バス38分 福富西1丁目バス停下車 徒歩7分
- 岡山県岡山市南区福富中1丁目
- 89.0m² / 4LDK
-
売出し中
- ヴェルディ芳泉
- 2580万円
- JR宇野線 備前西市駅 徒歩18分
- 岡山県岡山市南区泉田1丁目
- 70.83m² / 3LDK
-
売出し中
- サーパス新保緑道公園
- 2690万円
- JR山陽本線 岡山駅 バス21分 青江西下車 徒歩5分
- 岡山県岡山市南区新保
- 74.65m² / 3LDK
一戸建て
-
売出し中
- 岡山市南区豊成三丁目 中古一戸建
- 620万円
- JR宇野線 備前西市駅 3.1km
- 岡山県岡山市南区豊成3丁目
- 53.82m² / 3DK
-
売出し中
- JR宇野線 備前西市駅 3.5km
- 3280万円
- JR宇野線 備前西市駅 3.5km
- 岡山県岡山市南区福富西3丁目
- 67.15m² / 1SLDK
-
売出し中
- 新福一丁目 戸建て
- 550万円
- JR宇野線 大元駅 3.5km
- 岡山県岡山市南区新福1丁目
- 76.12m² / 4DK
-
売出し中
- 岡山市南区芳泉4丁目10-24-3
- 2350万円
- JR宇野線 備前西市駅 3.2km
- 岡山県岡山市南区芳泉4丁目10-24-3
- 89.81m² / 3LDK
-
売出し中
- 岡山市南区芳泉4丁目 既存住宅
- 4980万円
- JR山陽本線 岡山駅 バス37分 南ふれあいセンター下車 徒歩10分
- 岡山県岡山市南区芳泉4丁目
- 139.94m² / 4SLDK
-
売出し中
- 新築戸建 よかタウン 岡山市南区福富中2丁目1期
- 2580万円
- JR宇野線 備前西市駅 4.2km
- 岡山県岡山市南区福富中2丁目
- 101.6m² / 4LDK
-
売出し中
- JR宇野線 備前西市駅 4.1km
- 890万円
- JR宇野線 備前西市駅 4.1km
- 岡山県岡山市南区福田
- 72.1m² / 4DK
-
売出し中
- 岡山市南区福田 戸建
- 890万円
- JR山陽本線 岡山駅 バス33分 福田下車 徒歩4分
- 岡山県岡山市南区福田
- 87.85m² / 4DK
-
売出し中
- 福田 戸建て
- 2680万円
- 岡山電気軌道清輝橋線 清輝橋駅 4.4km
- 岡山県岡山市南区福田
- 110.75m² / 4LDK
-
売出し中
- 新築戸建 よかタウン 岡山市南区福富中2丁目2期
- 3280万円
- JR宇野線 備前西市駅 5.4km
- 岡山県岡山市南区福富中2丁目
- 108.86m² / 4LDK
注文住宅
※表示価格は延べ床面積約132m²の場合の建物価格の参考値です
-
資料請求受付中
- 2800万円〜
- ひのき住宅【工務店で建てるデザイナーズハウス】
- ひのき住宅 リーフレット
-
資料請求受付中
- 1760万円〜
- ヘルシーホーム
- Hellouse(ハロウス) 低価格×高品質×デザイン
-
資料請求受付中
- 3000万円〜
- セキスイハイム
- 【セキスイハイム|平屋】ザ・デザイナーズハイムD1
-
資料請求受付中
- 2800万円〜
- ミサワホーム株式会社
- 【MISAWA】ミサワホーム代表カタログ3冊セット(HOME'S限定)
-
資料請求受付中
- 2520万円〜
- 株式会社イチマルホーム
- 平屋
-
資料請求受付中
- 3200万円〜
- 無添加住宅 コラボハウス
- 完全フリー注文住宅!自然素材の家
-
資料請求受付中
- 1868万円〜
- タマホーム株式会社
- 大安心の家シリーズ
-
資料請求受付中
- 2400万円〜
- 株式会社イシン住宅研究所 岡山支店
- 家づくり教科書
-
資料請求受付中
- 3200万円〜
- 三井ホーム株式会社
- 三井ホームのご紹介
-
資料請求受付中
- -
- へーベルハウス
- 【ヘーベルハウス】:ヘーベルハウス総合カタログ
周辺の建物情報
物件の種類から探す
岡山市南区で募集中の物件のみを検索できます
掲載情報に誤りや問題がある場合
LIFULL HOME'Sは「不動産会社」ではなく「情報掲載サイト」です
- ※管理会社の情報はLIFULL HOME'Sでは保持していないためお答えできません。お問合せはお控えください
- ※最新の募集状況は掲載中の不動産会社があれば、不動産会社へ直接お問合せください
掲載情報の訂正依頼 専用ダイヤル
0120-987-243
- 専用ダイヤル受付時間:10:00〜18:00
- ※土日・祝日、臨時休業日は除く
不動産データのご利用について
不動産事業におけるDX、サービスの改善、新規事業開発等をご検討中の方へ不動産データの活用をご提案します。LIFULL HOME'Sで集約した不動産情報や外部データは、不動産事業DX、不正決済防止、ローン審査、事業開発、研究等さまざまな事業でご活用いただいています。詳しくは以下よりご確認ください。
不動産アーカイブご利用アンケートにご協力ください
不動産アーカイブの掲載情報は、LIFULL HOME'S掲載の不動産情報および提携先の不動産情報を統計情報として集積したものであり、その存在や信憑性を保証するものではありません。