このページは物件の広告情報ではありません。
過去にLIFULL HOME'Sへ掲載された不動産情報と提携先の地図情報を元に生成した参考情報です。また、一般から投稿された情報など主観的な情報も含みます。
情報更新日: 2026/04/11
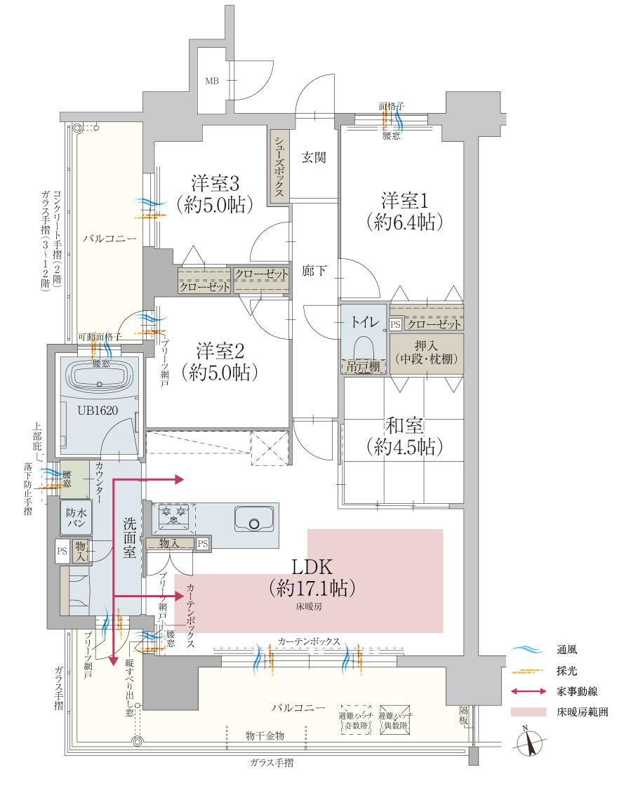
オーヴィジョン新南陽駅前II
| 所在地 | 山口県周南市清水二丁目1383番9(地番) |
|---|---|
| 交通 |
|
| 価格 | 3,460万円~5,160万円 |
| 最多価格帯 | 3,700万円台(4戸) |
| 管理費等 | 11,200円~13,800円(月額) |
| 修繕積立金 | 7,000円~8,600円(月額) |
スポンサーリンク
オーヴィジョン新南陽駅前IIの建物情報
物件概要
| 物件種別 | マンション |
|---|---|
| 築年月(築年数) | 2027年11月 (完成予定) |
| 建物構造 | 鉄筋コンクリート造・地上12階建 |
| 販売個数(区画数) | 24戸 |
| 総戸数/総区画数 | 56戸 |
| 敷地全体面積 | 2,147.55m2 |
| 管理形態 | 全部委託 |
| 用途地域 | 商業 |
| 土地権利 | 所有権 |
| 建築確認番号 | 第ERI-25024192号(2025年(令和7年)11月14日付) |
| 施工会社 | 澤田建設株式会社 |
| 売主 | 株式会社エス トラスト |
| 販売会社 | オリエルホーム株式会社(代理) |
設備・条件
- 追い焚き
- 浴室乾燥機
- コンロ三口以上
- システムキッチン
- 食器洗い乾燥機
- 高効率給湯器
- 浄水器・活水器
- 床暖房
- ブロードバンド
- 4LDK以上
- バリアフリー
- 複層ガラス採用(二重サッシ・防犯サッシ等)
- オートロック
- 防犯カメラ
- セキュリティ充実
- エレベーター
- 宅配ボックス
- 住宅性能評価書
- 環境にやさしい
- スーパー800m以内
※最新の状態と異なる場合があります
売りたい不動産をお持ちの方へ
このエリアの所有不動産を査定する
売却査定手続きの流れ、費用相場や注意点など不動産売却について詳しく知りたい方はLIFULL HOME'S 不動産査定へ
オーヴィジョン新南陽駅前IIの周辺施設
-
買い物
日用品 -
- ゆめタウン 新南陽
- ダイソーゆめタウン新南陽店
- セブンイレブン 周南政所店
- セブンイレブン 周南古泉店
- 買い物
大型店 -
- ハニーズ 新南陽店
- ユニクロ ゆめタウン新南陽店
- ファッションセンターしまむら 新南陽店
- エディオン 政所店
- グルメ
-
- モスバーガー 新南陽店
- すき家 周南新南陽店
- 丸亀製麺周南店
- 娯楽施設
-
- 周南市学び・交流プラザ
- TOSOH PARK永源山
- 日新製鋼(株)周南製鋼所グラウンド
- 役所
公共施設 -
- 新南陽政所郵便局
- 周南市立新南陽図書館
- 新南陽開作郵便局
- 医療
-
- 周南市立新南陽市民病院
- 保育施設
-
- 周南市立富田東幼稚園
- こもれび保育園
- すみれ保育園
- 周南市立川崎保育園
- 学校
-
- 周南市立富田東小学校
- 周南市立富田中学校
- 山口県立新南陽高校
※学区外の学校が含まれる場合があります。実際の学区は必ず各自治体へご確認ください。
オーヴィジョン新南陽駅前II周辺の物件情報
周辺の問合せ可能な物件
山口県周南市の問合せ可能な物件のうち、この物件の周辺にあるものから表示しています
賃貸
-
募集中
- ガーデンハウス周南 B
- 5万円
- JR山陽本線 新南陽駅 徒歩10分
- 山口県周南市古泉2丁目
- 31.7m² / 1K
-
募集中
- JR山陽本線 新南陽駅 徒歩10分
- 5万円
- JR山陽本線 新南陽駅 徒歩10分
- 山口県周南市古泉2丁目
- 31.7m² / 1K
-
募集中
- ガーデンハウス周南 A
- 5.1万円
- JR山陽本線 新南陽駅 徒歩11分
- 山口県周南市古泉2丁目
- 30.46m² / 1K
-
募集中
- レオパレスセジュールII
- 6万円
- JR山陽本線 新南陽駅 徒歩13分
- 山口県周南市古泉2丁目
- 22.35m² / 1K
-
募集中
- レオパレスセジュールII
- 4.3万円
- JR山陽本線 新南陽駅 徒歩13分
- 山口県周南市古泉2丁目
- 22.35m² / 1K
-
募集中
- エテルノ・リアン
- 5.7万円
- JR山陽本線 新南陽駅 徒歩5分
- 山口県周南市中央町
- 26.93m² / 1K
-
募集中
- シュロスヤマナカ
- 5.9万円
- JR山陽本線 新南陽駅 徒歩7分
- 山口県周南市政所1丁目
- 35.3m² / 1LDK
-
募集中
- レオネクスト古泉
- 6.9万円
- JR山陽本線 新南陽駅 徒歩14分
- 山口県周南市古泉2丁目
- 26.5m² / ワンルーム
-
募集中
- アルモニー K I
- 5.9万円
- JR山陽本線 新南陽駅 徒歩10分
- 山口県周南市桶川町
- 27.69m² / 1K
-
募集中
- レオパレスエイワ
- 5.9万円
- JR山陽本線 新南陽駅 徒歩6分
- 山口県周南市中央町
- 22.35m² / 1K
新築マンション
※完成後1年以上経過した未入居の物件が含まれている場合があります
中古マンション
-
売出し中
- ゆめタウン新南陽まで徒歩4分 サーパス新南陽第三
- 1190万円
- JR山陽本線 新南陽駅 徒歩8分
- 山口県周南市古川町
- 70.59m² / 3LDK
-
売出し中
- ペット相談可オール電化最上階ですオーヴィジョン政所II
- 2850万円
- JR山陽本線 新南陽駅 徒歩8分
- 山口県周南市政所2丁目
- 74.16m² / 2SLDK
-
売出し中
- 専用庭付です サーパス新南陽
- 780万円
- JR山陽本線 新南陽駅 徒歩12分
- 山口県周南市川手2丁目
- 71.29m² / 3LDK
-
売出し中
- 4LDKです アーク徳山2階
- 880万円
- JR山陽本線 新南陽駅 徒歩37分
- 山口県周南市南浦山町
- 73.67m² / 4LDK
-
売出し中
- ペット可マンションLFB再生住宅−サンシティ徳山駅前ー
- 1798万円
- JR山陽本線 徳山駅 徒歩3分
- 山口県周南市千代田町
- 67.23m² / 3LDK
-
売出し中
- 梅園ハイツ 4階部分
- 798万円
- JR山陽本線 徳山駅 徒歩17分
- 山口県周南市梅園町3丁目
- 66.08m² / 2LDK
-
売出し中
- パークヒルズ代々木通グランドステージ
- 2780万円
- JR山陽本線 徳山駅 徒歩8分
- 山口県周南市代々木通1丁目
- 117.55m² / 3LDK
-
売出し中
- 築浅マンションサンパーク梅園レジデンス
- 3498万円
- JR山陽本線 徳山駅 徒歩14分
- 山口県周南市梅園町3丁目
- 63.55m² / 3LDK
-
売出し中
- 20帖以上の広々LDK グラン・ドムール徳山
- 1200万円
- JR山陽本線 徳山駅 徒歩5分
- 山口県周南市築港町
- 77.06m² / 1LDK
-
売出し中
- 徳山駅前スカイマンション
- 278万円
- JR山陽本線 徳山駅 徒歩4分
- 山口県周南市築港町12-1
- 19.43m² / ワンルーム
一戸建て
-
売出し中
- 9/2公開NEWセルリアンステージ周南市政所3丁目
- 3380万円
- JR山陽本線 新南陽駅 徒歩10分
- 山口県周南市政所4丁目
- 101.85m² / 4SLDK
-
売出し中
- オール電化 セルリアンステージ周南市野村一丁目
- 2680万円
- JR山陽本線 徳山駅 徒歩14分
- 山口県周南市野村1丁目
- 96.88m² / 3LDK
-
売出し中
- JR山陽本線「新南陽」駅 徒歩20分~20分
- 4,580万円
- JR山陽本線「新南陽」駅 徒歩20分~20分
- 山口県周南市大字富田字中溝3049番15
- 104.66m² / 3LDK(15号地)
-
売出し中
- ダイイチホームズ様施工のお家です周南市大字下上
- 2280万円
- JR山陽本線 新南陽駅 徒歩27分
- 山口県周南市大字下上
- 95.64m² / 4LDK
-
売出し中
- 内覧できますオール電化周南市下上
- 3580万円
- JR山陽本線 新南陽駅 徒歩23分
- 山口県周南市大字下上
- 105.99m² / 3LDK
-
売出し中
- 内覧できますオール電化周南市下上
- 3580万円
- JR山陽本線 新南陽駅 徒歩23分
- 山口県周南市大字下上
- 106.82m² / 3LDK
-
売出し中
- 国道2号線まですぐ周南市大字下上
- 490万円
- JR山陽本線 新南陽駅 徒歩20分
- 山口県周南市大字下上
- 76.17m² / 3LDK
-
売出し中
- トキヲミルヒカリ下上新築分譲住宅
- 4400万円
- JR山陽本線 新南陽駅 徒歩21分
- 山口県周南市大字下上
- 94.03m² / 3SLDK
-
売出し中
- 大和ハウス様施工のお家です周南市大神一丁目
- 3150万円
- JR山陽本線 新南陽駅 徒歩30分
- 山口県周南市大神1丁目
- 104.43m² / 4LDK
-
売出し中
- 周南市平野一丁目 4LDK
- 2580万円
- JR山陽本線 新南陽駅 徒歩22分
- 山口県周南市平野1丁目
- 124.33m² / 4LDK
注文住宅
※表示価格は延べ床面積約132m²の場合の建物価格の参考値です
-
資料請求受付中
- 3000万円〜
- セキスイハイム
- 【セキスイハイム|平屋】ザ・デザイナーズハイムD1
-
資料請求受付中
- 3600万円〜
- 住楽の家
- 景色、光、風、外部との繋がりを大切にした絶景住宅
-
資料請求受付中
- 3200万円〜
- 大和ハウス
- 【大和ハウス】天井高2m72cmの高さというゆとり空間 xevoΣ<ジーヴォシグマ>
-
資料請求受付中
- 2800万円〜
- ミサワホーム株式会社
- 【MISAWA】ミサワホーム代表カタログ3冊セット(HOME'S限定)
-
資料請求受付中
- 2000万円〜
- 一条工務店
- 【一条工務店】 建築実例集3冊セット(HOME’S限定)
-
資料請求受付中
- 2240万円〜
- いえとち本舗
- イエテラス コンセプトブック
-
資料請求受付中
- 1868万円〜
- タマホーム株式会社
- 大安心の家シリーズ
-
資料請求受付中
- -
- 積水ハウス
- BRAND BOOK
-
資料請求受付中
- 1840万円〜
- タナカホームズ
- 【全棟ZEH断熱性能】平屋も2階建ても1199万円(税込)~コスパのいいマイホーム タナカホームズ ブランドブック
-
資料請求受付中
- 3400万円〜
- へーベルハウス
- 【ヘーベルハウス】:ヘーベルハウス総合カタログ
エリア・駅で絞り込んで探す
山口県のオーヴィジョンが含まれるマンション
周辺の建物情報
物件の種類から探す
周南市で募集中の物件のみを検索できます
掲載情報に誤りや問題がある場合
LIFULL HOME'Sは「不動産会社」ではなく「情報掲載サイト」です
- ※管理会社の情報はLIFULL HOME'Sでは保持していないためお答えできません。お問合せはお控えください
- ※最新の募集状況は掲載中の不動産会社があれば、不動産会社へ直接お問合せください
掲載情報の訂正依頼 専用ダイヤル
0120-987-243
- 専用ダイヤル受付時間:10:00〜18:00
- ※土日・祝日、臨時休業日は除く
不動産データのご利用について
不動産事業におけるDX、サービスの改善、新規事業開発等をご検討中の方へ不動産データの活用をご提案します。LIFULL HOME'Sで集約した不動産情報や外部データは、不動産事業DX、不正決済防止、ローン審査、事業開発、研究等さまざまな事業でご活用いただいています。詳しくは以下よりご確認ください。
不動産アーカイブご利用アンケートにご協力ください
不動産アーカイブの掲載情報は、LIFULL HOME'S掲載の不動産情報および提携先の不動産情報を統計情報として集積したものであり、その存在や信憑性を保証するものではありません。