このページは物件の広告情報ではありません。
過去にLIFULL HOME'Sへ掲載された不動産情報と提携先の地図情報を元に生成した参考情報です。また、一般から投稿された情報など主観的な情報も含みます。
情報更新日: 2025/11/30
プラウド自由が丘ヒルトップ
スポンサーリンク
プラウド自由が丘ヒルトップの建物情報
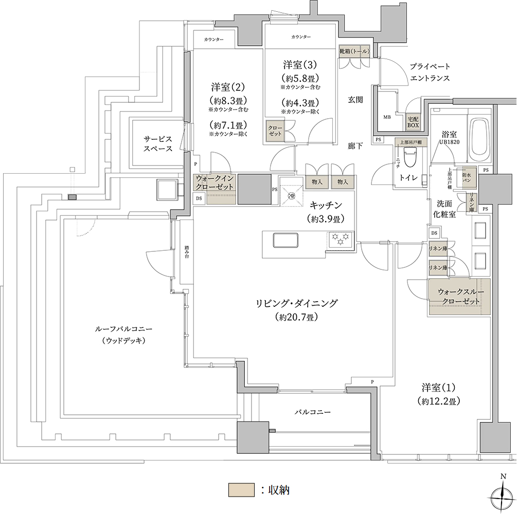
物件概要
| 物件種別 | マンション |
|---|---|
| 築年月(築年数) | 2026年12月 (完成予定) |
| 建物構造 | 鉄筋コンクリート(一部鉄骨造)地上9階建て |
| 販売個数(区画数) | 未定 |
| 総戸数/総区画数 | 31戸 |
| 敷地全体面積 | 1392.10m2 |
| 用途地域 | 第一種低層住宅専用、第一種中高層住居専用、第一種住居 |
| 土地権利 | 所有権 |
| 建築確認番号 | 第BVJ-TOK25-11-0138号※今後計画変更を提出する場合があります。 |
| 施工会社 | 木内建設株式会社東京本店 |
| 売主 | 野村不動産株式会社(国土交通大臣(14)第1370号)・株式会社長谷工不動産(国土交通大臣(6)第5600号) |
| 販売会社 | 野村不動産株式会社(販売提携・代理)・株式会社長谷工アーベスト(販売提携・代理) |
設備・条件
- 追い焚き
- システムキッチン
- シングル&DINKS向け
- オートロック
- 100m2以上
※最新の状態と異なる場合があります
売りたい不動産をお持ちの方へ
このエリアの所有不動産を査定する
売却査定手続きの流れ、費用相場や注意点など不動産売却について詳しく知りたい方はLIFULL HOME'S 不動産査定へ
プラウド自由が丘ヒルトップの周辺施設
-
買い物
日用品 -
- ザ・ガーデン 自由が丘自由が丘店
- セブンイレブン 自由が丘学園通り店
- クリエイトエス・ディー目黒八雲店
- ナチュラルローソン 八雲三丁目店
- 買い物
大型店 -
- JOURNAL STANDARD自由が丘店
- Luz自由が丘
- 無印良品 イデーショップ自由が丘店
- next自由が丘店
- グルメ
-
- あえん自由が丘店
- 焼肉酒家牛角自由が丘店
- 焼肉トラジ自由が丘店
- スターバックスコーヒー自由が丘店
- 娯楽施設
-
- 宮前公園庭球場
- ONE STARゴルフスタジオ自由ケ丘店
- セントラルフィットネスクラブ自由が丘
- 駒沢ラケットクラブ
- 役所
公共施設 -
- 目黒八雲二郵便局
- 世田谷深沢一郵便局
- 目黒自由が丘郵便局
- 目黒区立緑が丘図書館
- 医療
-
- 医療法人社団青葉会世田谷神経内科病院
- 医療法人財団日扇会第一病院
- 保育施設
-
- にじいろ保育園自由が丘目黒通り
- にじいろ保育園八雲
- 若草幼稚園
- アスクやくも保育園
- 学校
-
- 私立自由ケ丘学園高校
- 目黒区立宮前小学校
- 産業能率大学自由が丘キャンパス
- 私立自由が丘産能短期大学
プラウド自由が丘ヒルトップ周辺の物件情報
周辺の問合せ可能な物件
東京都目黒区の問合せ可能な物件のうち、この物件の周辺にあるものから表示しています
賃貸
-
募集中
- ルイシャトレ自由が丘
- 42万円
- 東急東横線 自由が丘駅 徒歩10分
- 東京都目黒区自由が丘2丁目
- 82.48m² / 3LDK
-
募集中
- ノースハイツ自由が丘
- 9.2万円
- 東急東横線 自由が丘駅 徒歩10分
- 東京都目黒区自由が丘2丁目
- 30.01m² / 1DK
-
募集中
- 自由が丘戸建
- 43万円
- 東急東横線 自由が丘駅 徒歩10分
- 東京都目黒区自由が丘3丁目1
- 143.17m² / 5SLDK
-
募集中
- リブリ・自由が丘
- 9.8万円
- 東急東横線 自由が丘駅 徒歩13分
- 東京都目黒区八雲3丁目24-21
- 22.6m² / 1K
-
募集中
- エクセレントシティ自由が丘
- 33万円
- 東急東横線 自由が丘駅 徒歩11分
- 東京都目黒区八雲3丁目12-11
- 78.57m² / 2SLDK
-
募集中
- 東急東横線 自由が丘駅 徒歩11分
- 33万円
- 東急東横線 自由が丘駅 徒歩11分
- 東京都目黒区八雲3丁目12-11
- 78.57m² / 2SLDK
-
募集中
- 東急東横線 自由が丘駅 徒歩13分
- 9.8万円
- 東急東横線 自由が丘駅 徒歩13分
- 東京都目黒区八雲3丁目24-21
- 22.6m² / 1K
-
募集中
- Kハウス
- 10.5万円
- 東急東横線 自由が丘駅 徒歩8分
- 東京都目黒区自由が丘2丁目
- 27.3m² / 2K
-
募集中
- 東急東横線 自由が丘駅 徒歩10分
- 28.5万円
- 東急東横線 自由が丘駅 徒歩10分
- 東京都目黒区八雲3丁目12-24
- 81.41m² / 3LDK
-
募集中
- コリーヌ自由が丘
- 28.5万円
- 東急東横線 自由が丘駅 徒歩10分
- 東京都目黒区八雲3丁目12-24
- 81.41m² / 3LDK
新築マンション
※完成後1年以上経過した未入居の物件が含まれている場合があります
-
売出し中
- リムテラス都立大学ヴィオラ
- 1億1680万円
- 東急東横線 都立大学駅 徒歩3分
- 東京都目黒区中根2丁目12-16
- 96.76m² / 2SLDK
-
売出し中
- 東急目黒線「不動前」駅 徒歩6分
- 未定
- 東急目黒線「不動前」駅 徒歩6分
- 東京都目黒区下目黒三丁目7番(地番)
- 80.86m² / 1LDK~2LDK+S
-
売出し中
- 東急東横線「都立大学」駅 徒歩15分
- 11,988万円
- 東急東横線「都立大学」駅 徒歩15分
- 東京都目黒区八雲四丁目7番5 (地番)
- 71.78m² / 3LDK
-
売出し中
- JR山手線「恵比寿」駅 徒歩9分
- 未定
- JR山手線「恵比寿」駅 徒歩9分
- 東京都目黒区三田二丁目144番3(地番)
- 82.85m² / 2LDK ~ 3LDK
中古マンション
-
売出し中
- 自由ヶ丘アーバンライフ
- 6980万円
- 東急東横線 自由が丘駅 徒歩6分
- 東京都目黒区自由が丘2丁目
- 56.7m² / 1SLDK
-
売出し中
- 東急東横線 自由が丘駅 徒歩9分
- 3498万円
- 東急東横線 自由が丘駅 徒歩9分
- 東京都目黒区自由が丘2丁目
- 37.43m² / 1LDK
-
売出し中
- 自由ヶ丘第5マンション
- 3498万円
- 東急東横線 自由が丘駅 徒歩9分
- 東京都目黒区自由が丘2丁目
- 37.43m² / 1LDK
-
売出し中
- 自由が丘セントラルマンション
- 4980万円
- 東急大井町線 自由が丘駅 徒歩11分
- 東京都目黒区八雲3丁目
- 48.47m² / 2LDK
-
売出し中
- 東急東横線 都立大学駅 徒歩9分
- 3890万円
- 東急東横線 都立大学駅 徒歩9分
- 東京都目黒区中根1丁目
- 42.01m² / 1LDK
-
売出し中
- 秀和第二自由が丘レジデンス
- 3899万円
- 東急東横線 都立大学駅 徒歩9分
- 東京都目黒区中根1丁目21-16
- 42.02m² / 1LDK
-
売出し中
- ディアナコート八雲
- 9980万円
- 東急東横線 都立大学駅 徒歩8分
- 東京都目黒区八雲2丁目11-23
- 57.6m² / 1LDK
-
売出し中
- 自由ケ丘スカイハイツ
- 6180万円
- 東急東横線 都立大学駅 徒歩9分
- 東京都目黒区八雲2丁目10-24
- 56.7m² / 1LDK
-
売出し中
- 藤和目黒八雲ホームズ
- 1億4500万円
- 東急東横線 都立大学駅 徒歩13分
- 東京都目黒区八雲3丁目4-10
- 88.78m² / 2SLDK
-
売出し中
- イトーピア自由が丘イデア
- 2億9800万円
- 東急東横線 自由が丘駅 徒歩6分
- 東京都目黒区自由が丘3丁目9-18
- 101.72m² / 3LDK
一戸建て
-
売出し中
- 目黒区自由が丘3丁目 中古戸建
- 2億7900万円
- 東急東横線 自由が丘駅 徒歩13分
- 東京都目黒区自由が丘3丁目
- 137.25m² / 4LDK
-
売出し中
- 東急東横線「都立大学」駅 徒歩15分
- 未定
- 東急東横線「都立大学」駅 徒歩15分
- 東京都目黒区八雲3丁目67-9
- 108.19m² / 3LDK(1号地、2号地)
-
売出し中
- 東急東横線 都立大学駅 徒歩12分
- 1億5500万円
- 東急東横線 都立大学駅 徒歩12分
- 東京都目黒区八雲3丁目
- 124.5m² / 4SLDK
-
売出し中
- 目黒区自由が丘1丁目
- 2億7700万円
- 東急東横線 自由が丘駅 徒歩8分
- 東京都目黒区自由が丘1丁目
- 181.98m² / 3LDK
-
売出し中
- 目黒区緑が丘2丁目 一戸建て
- 1億3800万円
- 東急東横線 自由が丘駅 徒歩8分
- 東京都目黒区緑が丘2丁目18
- 78.33m² / 3LDK
-
売出し中
- 目黒区緑が丘二丁目 戸建て
- 1億3800万円
- 東急東横線 自由が丘駅 徒歩8分
- 東京都目黒区緑が丘2丁目18-6
- 78.33m² / 2SLDK
-
売出し中
- 東急東横線 自由が丘駅 徒歩8分
- 1億3800万円
- 東急東横線 自由が丘駅 徒歩8分
- 東京都目黒区緑が丘2丁目
- 78.33m² / 2SLDK
-
売出し中
- 目黒区八雲5丁目 中古戸建
- 1億4780万円
- 東急東横線 都立大学駅 徒歩13分
- 東京都目黒区八雲5丁目
- 95.76m² / 1SLDK
-
売出し中
- 目黒区緑が丘1丁目 一戸建て
- 1億7880万円
- 東急大井町線 緑が丘駅 徒歩6分
- 東京都目黒区緑が丘1丁目
- 139.65m² / 3SLDK
-
売出し中
- 目黒区緑が丘1丁目 新築
- 1億8980万円
- 東急大井町線 緑が丘駅 徒歩2分
- 東京都目黒区緑が丘1丁目
- 154.91m² / 4LDK
注文住宅
※表示価格は延べ床面積約132m²の場合の建物価格の参考値です
エリア・駅で絞り込んで探す
東京都のプラウドが含まれるマンション
物件の種類から探す
目黒区で募集中の物件のみを検索できます
掲載情報に誤りや問題がある場合
LIFULL HOME'Sは「不動産会社」ではなく「情報掲載サイト」です
- ※管理会社の情報はLIFULL HOME'Sでは保持していないためお答えできません。お問合せはお控えください
- ※最新の募集状況は掲載中の不動産会社があれば、不動産会社へ直接お問合せください
掲載情報の訂正依頼 専用ダイヤル
0120-987-243
- 専用ダイヤル受付時間:10:00〜18:00
- ※土日・祝日、臨時休業日は除く
不動産データのご利用について
不動産事業におけるDX、サービスの改善、新規事業開発等をご検討中の方へ不動産データの活用をご提案します。LIFULL HOME'Sで集約した不動産情報や外部データは、不動産事業DX、不正決済防止、ローン審査、事業開発、研究等さまざまな事業でご活用いただいています。詳しくは以下よりご確認ください。
不動産アーカイブご利用アンケートにご協力ください
不動産アーカイブの掲載情報は、LIFULL HOME'S掲載の不動産情報および提携先の不動産情報を統計情報として集積したものであり、その存在や信憑性を保証するものではありません。