このページは物件の広告情報ではありません。
過去にLIFULL HOME'Sへ掲載された不動産情報と提携先の地図情報を元に生成した参考情報です。また、一般から投稿された情報など主観的な情報も含みます。
情報更新日: 2026/04/03
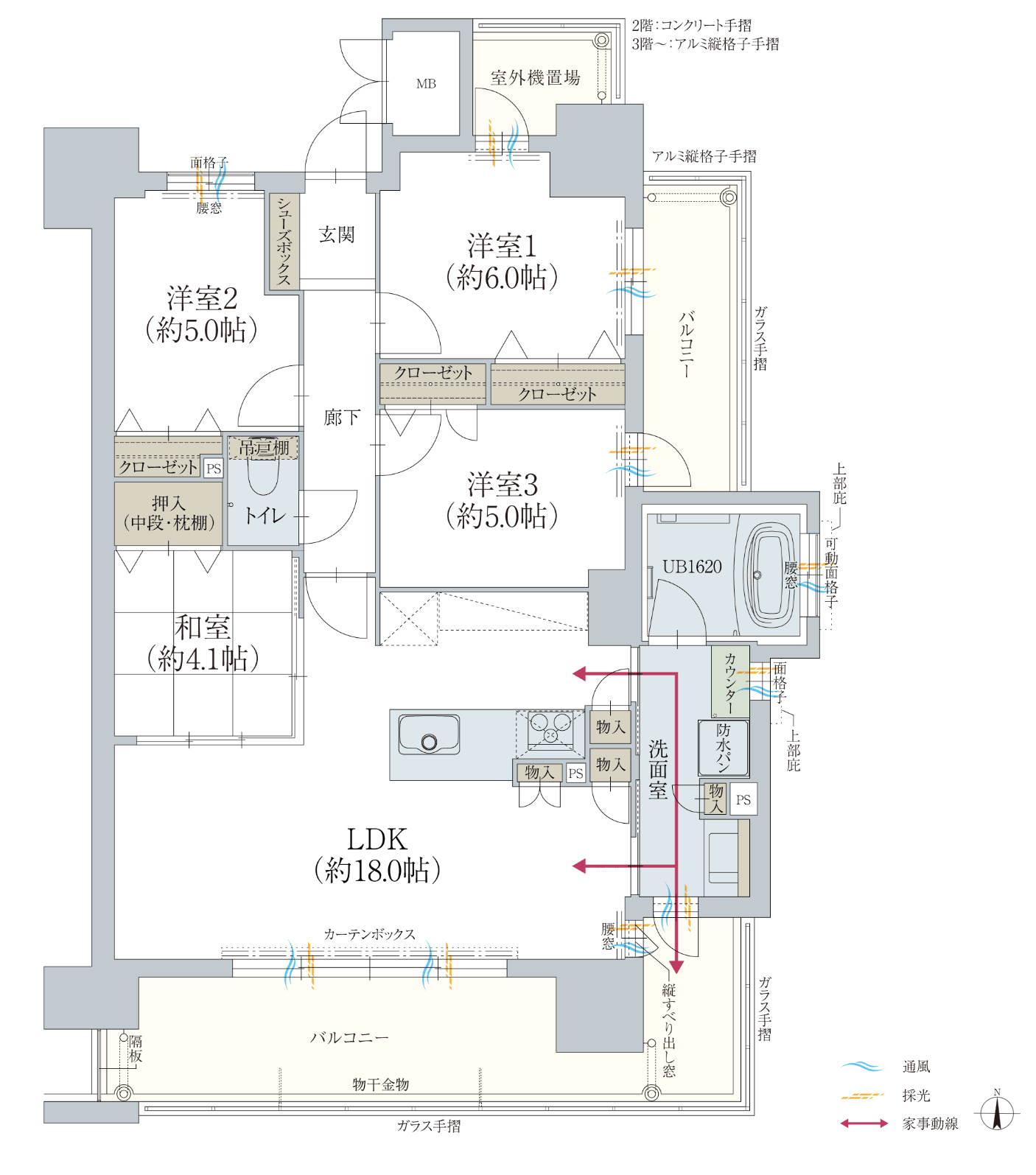
オーヴィジョン岩国麻里布
| 所在地 | 山口県岩国市麻里布町二丁目73番1(地番) |
|---|---|
| 交通 |
|
| 価格 | 3,380万円~5,580万円 |
| 最多価格帯 | 4,000万円台(4戸) |
| 管理費等 | 12,000円~16,100円(月額) |
| 修繕積立金 | 6,400円~8,500円(月額) |
スポンサーリンク
オーヴィジョン岩国麻里布の建物情報
物件概要
| 物件種別 | マンション |
|---|---|
| 築年月(築年数) | 2027年6月 (完成予定) |
| 建物構造 | 鉄筋コンクリート造・地上14階建 |
| 販売個数(区画数) | 21戸 |
| 総戸数/総区画数 | 78戸 |
| 敷地全体面積 | 1,989.98m2 |
| 管理形態 | 全部委託 |
| 用途地域 | 商業 |
| 土地権利 | 所有権 |
| 建築確認番号 | 第ERI-24037357号(2025年(令和7年)1月27日付) |
| 施工会社 | 株式会社共立 |
| 売主 | 株式会社エス トラスト |
| 販売会社 | 株式会社エストラスト不動産販売(代理)、株式会社トラストエステート(代理)、株式会社トライズ(代理) |
設備・条件
- 追い焚き
- 浴室乾燥機
- コンロ三口以上
- システムキッチン
- 食器洗い乾燥機
- 高効率給湯器
- 浄水器・活水器
- ブロードバンド
- シングル&DINKS向け
- 4LDK以上
- バリアフリー
- 複層ガラス採用(二重サッシ・防犯サッシ等)
- オートロック
- 防犯カメラ
- セキュリティ充実
- エレベーター
- 駐車場完備
- 宅配ボックス
- 環境にやさしい
- 子育てに優しい環境
- スーパー800m以内
- コンビニ400m以内
- 小学校800m以内
- 公園400m以内
※最新の状態と異なる場合があります
売りたい不動産をお持ちの方へ
このエリアの所有不動産を査定する
売却査定手続きの流れ、費用相場や注意点など不動産売却について詳しく知りたい方はLIFULL HOME'S 不動産査定へ
オーヴィジョン岩国麻里布の周辺施設
-
買い物
日用品 -
- Can★Doフジグラン岩国店
- フジグラン 岩国
- ウォンツ岩国まりふ店
- ローソン 岩国麻里布二丁目店
- 買い物
大型店 -
- 福屋 岩国店
- エディオン 岩国店
- エディオン 今津店
- ヤマダデンキテックランド岩国店
- グルメ
-
- まいどおおきに食堂 岩国今津食堂
- 焼肉酒家牛角岩国駅前店
- CoCo壱番屋 岩国JR駅前店
- かつ庵岩国店
- 娯楽施設
-
- 自遊空間岩国駅前店
- 役所
公共施設 -
- 岩国郵便局
- 岩国警察署
- 岩国市役所
- 岩国市中央図書館麻里布分室
- 医療
-
- 医療法人光風会岩国中央病院
- 保育施設
-
- 岩国市立えきまえ保育園
- 認定こども園岩国東幼稚園
- 認定こども園岩国めぐみ幼稚園
- 麻里布保育園
- 学校
-
- 岩国市立東小学校
- 岩国市立東中学校
- 岩国市立麻里布小学校
- 山口県立岩国商業高校東分校
※学区外の学校が含まれる場合があります。実際の学区は必ず各自治体へご確認ください。
オーヴィジョン岩国麻里布周辺の物件情報
周辺の問合せ可能な物件
山口県岩国市の問合せ可能な物件のうち、この物件の周辺にあるものから表示しています
賃貸
-
募集中
- シャトー・COCORO
- 3.5万円
- JR山陽本線 岩国駅 徒歩8分
- 山口県岩国市今津町1丁目
- 43.06m² / 2DK
-
募集中
- レインボーマンション
- 8万円
- JR山陽本線 岩国駅 徒歩9分
- 山口県岩国市麻里布町6丁目
- 63.6m² / 3LDK
-
募集中
- Anpalace
- 2.8万円
- JR山陽本線 岩国駅 徒歩3分
- 山口県岩国市麻里布町3丁目
- 18.63m² / 1K
-
募集中
- リゾナーレ麻里布
- 7.5万円
- JR山陽本線 岩国駅 徒歩8分
- 山口県岩国市麻里布町6丁目
- 61.65m² / 3DK
-
募集中
- レオパレスAGA
- 4.7万円
- JR山陽本線 岩国駅 徒歩11分
- 山口県岩国市三笠町1丁目
- 23.18m² / 1K
-
募集中
- 新天ビル
- 3.2万円
- JR山陽本線 岩国駅 徒歩5分
- 山口県岩国市麻里布町3丁目
- 30.37m² / 1K
-
募集中
- 見室不動産ビル
- 3.5万円
- JR山陽本線 岩国駅 徒歩5分
- 山口県岩国市麻里布町3丁目
- 18.31m² / ワンルーム
-
募集中
- アパルトマンIMAZU
- 4万円
- JR山陽本線 岩国駅 徒歩9分
- 山口県岩国市今津町2丁目
- 36.36m² / 2DK
-
募集中
- ファミール三笠
- 6.8万円
- JR山陽本線 岩国駅 徒歩15分
- 山口県岩国市三笠町1丁目
- 58.46m² / 3DK
-
募集中
- バルミー今津
- 8.4万円
- JR山陽本線 岩国駅 徒歩10分
- 山口県岩国市今津町1丁目
- 76.71m² / 3LDK
中古マンション
一戸建て
-
売出し中
- リーブルガーデン今津町3丁目
- 2980万円
- JR山陽本線 岩国駅 徒歩15分
- 山口県岩国市今津町3丁目4-
- 105.98m² / 2SLDK
-
売出し中
- 山口県岩国市今津町3丁目
- 3080万円
- JR山陽本線 岩国駅 徒歩17分
- 山口県岩国市今津町3丁目
- 109.71m² / 4LDK
-
売出し中
- 山口県岩国市元町3丁目
- 2990万円
- JR山陽本線 岩国駅 徒歩9分
- 山口県岩国市元町3丁目
- 99.78m² / 4LDK
-
売出し中
- JR山陽本線 岩国駅 徒歩21分
- 5500万円
- JR山陽本線 岩国駅 徒歩21分
- 山口県岩国市今津町4丁目
- 282.37m² / 3LDK
-
売出し中
- 山手町2丁目
- 830万円
- JR山陽本線 岩国駅 徒歩26分
- 山口県岩国市山手町2丁目
- 109.29m² / 4LDK
-
売出し中
- JR山陽本線 岩国駅 徒歩26分
- 3800万円
- JR山陽本線 岩国駅 徒歩26分
- 山口県岩国市室の木町2丁目
- 112.61m² / 4LDK
-
売出し中
- JR山陽本線 岩国駅 徒歩29分
- 450万円
- JR山陽本線 岩国駅 徒歩29分
- 山口県岩国市山手町2丁目56-20
- 77.83m² / 4DK
-
売出し中
- リーブルガーデン室の木町4丁目
- 2780万円
- JR岩徳線 西岩国駅 徒歩20分
- 山口県岩国市室の木町4丁目88-
- 112.67m² / 4LDK
-
売出し中
- JR山陽本線「岩国」駅 車で約2.0km
- 3,698万円~3,880万円
- JR山陽本線「岩国」駅 車で約2.0km
- 山口県岩国市車町3丁目514番13(地番)、他
- 163.76m² / 4LDK
-
売出し中
- いわくにバス「向今津」 徒歩4分
- 5,420万円
- いわくにバス「向今津」 徒歩4分
- 山口県岩国市車町二丁目297番10
- 105.2m² / 4LDK
注文住宅
※表示価格は延べ床面積約132m²の場合の建物価格の参考値です
-
資料請求受付中
- -
- アキュラホーム(AQ Group)
- 「超空間の家」
-
資料請求受付中
- -
- 積水ハウス
- BRAND BOOK
-
資料請求受付中
- 3000万円〜
- セキスイハイム
- 【セキスイハイム】総合カタログ(heimism)
-
資料請求受付中
- 2240万円〜
- いえとち本舗
- イエテラス コンセプトブック
-
資料請求受付中
- 2800万円〜
- ミサワホーム株式会社
- 【MISAWA】ミサワホーム代表カタログ3冊セット(HOME'S限定)
-
資料請求受付中
- 1868万円〜
- タマホーム株式会社
- 大安心の家シリーズ
-
資料請求受付中
- 1840万円〜
- タナカホームズ
- 【全棟ZEH断熱性能】平屋も2階建ても1199万円(税込)~コスパのいいマイホーム タナカホームズ ブランドブック
-
資料請求受付中
- 3200万円〜
- 大和ハウス
- 【大和ハウス】 xevoΣ<ジーヴォシグマ> ~天井高2m72cmの高さというゆとり空間~
-
資料請求受付中
- 2000万円〜
- 一条工務店
- 【一条工務店】 建築実例集3冊セット(HOME’S限定)
-
資料請求受付中
- 2600万円〜
- アイデザインホーム株式会社 広島支店
- 【アイデザインホーム】カタログ5冊セット「COMPANY PROFILE(会社案内)」&「CASE STUDIES(実例集)」&「OWNER'S VOICE(インタビュー集)」
エリア・駅で絞り込んで探す
山口県のオーヴィジョンが含まれるマンション
物件の種類から探す
岩国市で募集中の物件のみを検索できます
掲載情報に誤りや問題がある場合
LIFULL HOME'Sは「不動産会社」ではなく「情報掲載サイト」です
- ※管理会社の情報はLIFULL HOME'Sでは保持していないためお答えできません。お問合せはお控えください
- ※最新の募集状況は掲載中の不動産会社があれば、不動産会社へ直接お問合せください
掲載情報の訂正依頼 専用ダイヤル
0120-987-243
- 専用ダイヤル受付時間:10:00〜18:00
- ※土日・祝日、臨時休業日は除く
不動産データのご利用について
不動産事業におけるDX、サービスの改善、新規事業開発等をご検討中の方へ不動産データの活用をご提案します。LIFULL HOME'Sで集約した不動産情報や外部データは、不動産事業DX、不正決済防止、ローン審査、事業開発、研究等さまざまな事業でご活用いただいています。詳しくは以下よりご確認ください。
不動産アーカイブご利用アンケートにご協力ください
不動産アーカイブの掲載情報は、LIFULL HOME'S掲載の不動産情報および提携先の不動産情報を統計情報として集積したものであり、その存在や信憑性を保証するものではありません。