このページは物件の広告情報ではありません。
過去にLIFULL HOME'Sへ掲載された不動産情報と提携先の地図情報を元に生成した参考情報です。また、一般から投稿された情報など主観的な情報も含みます。
情報更新日: 2026/04/02
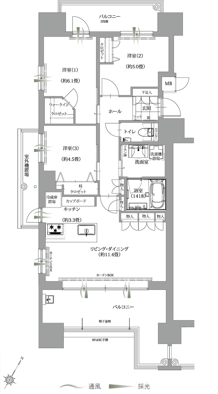
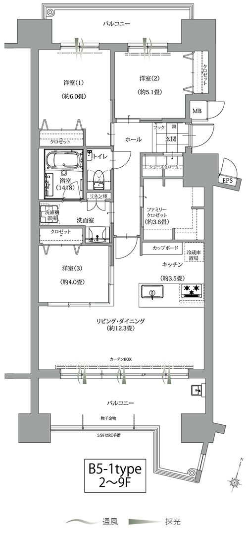
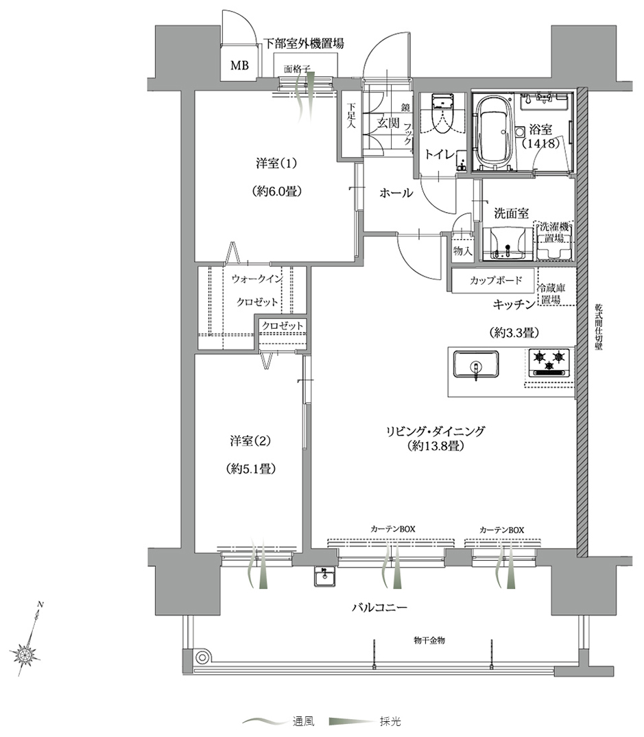
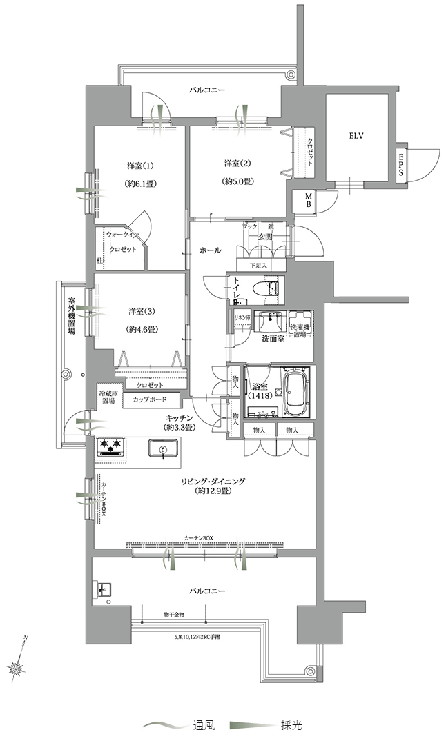
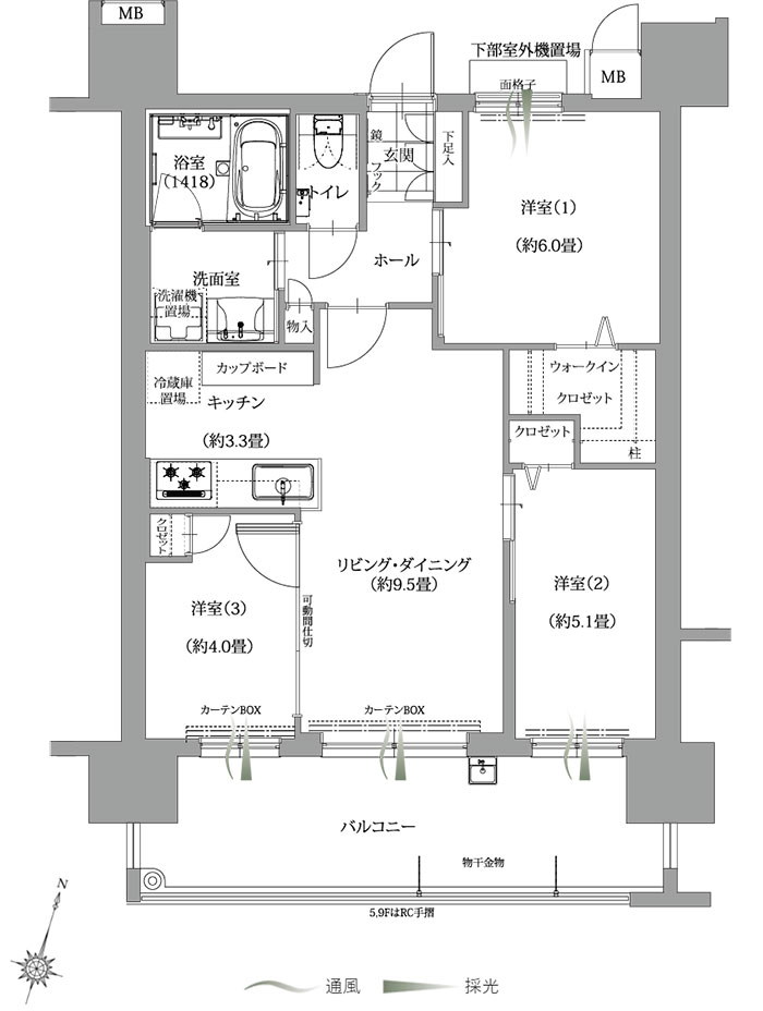
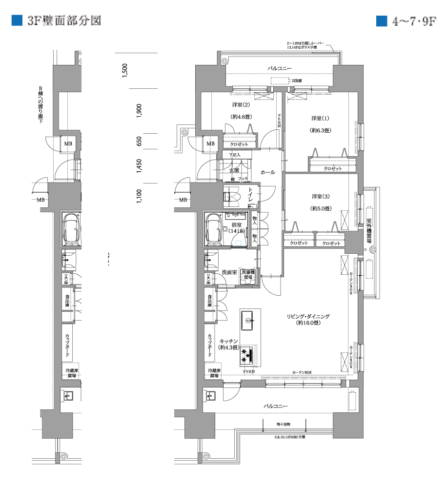
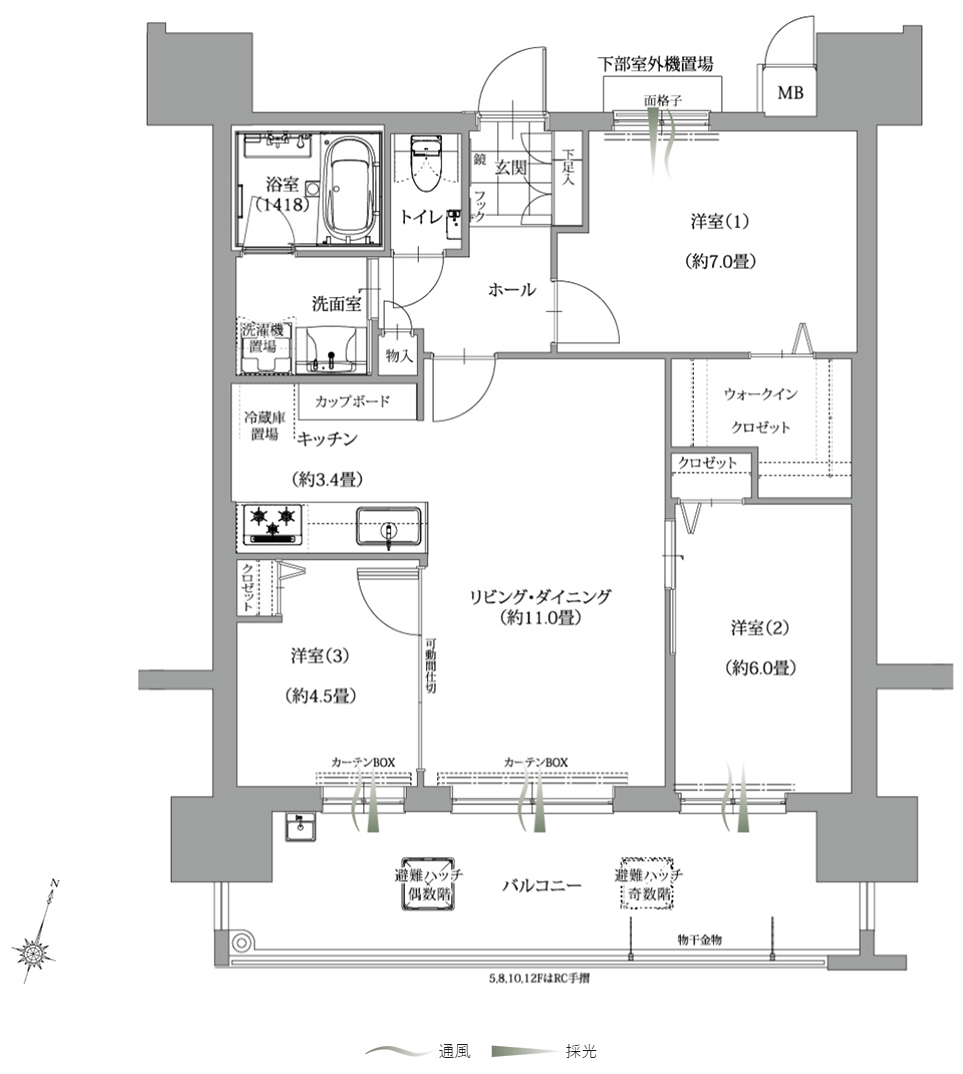
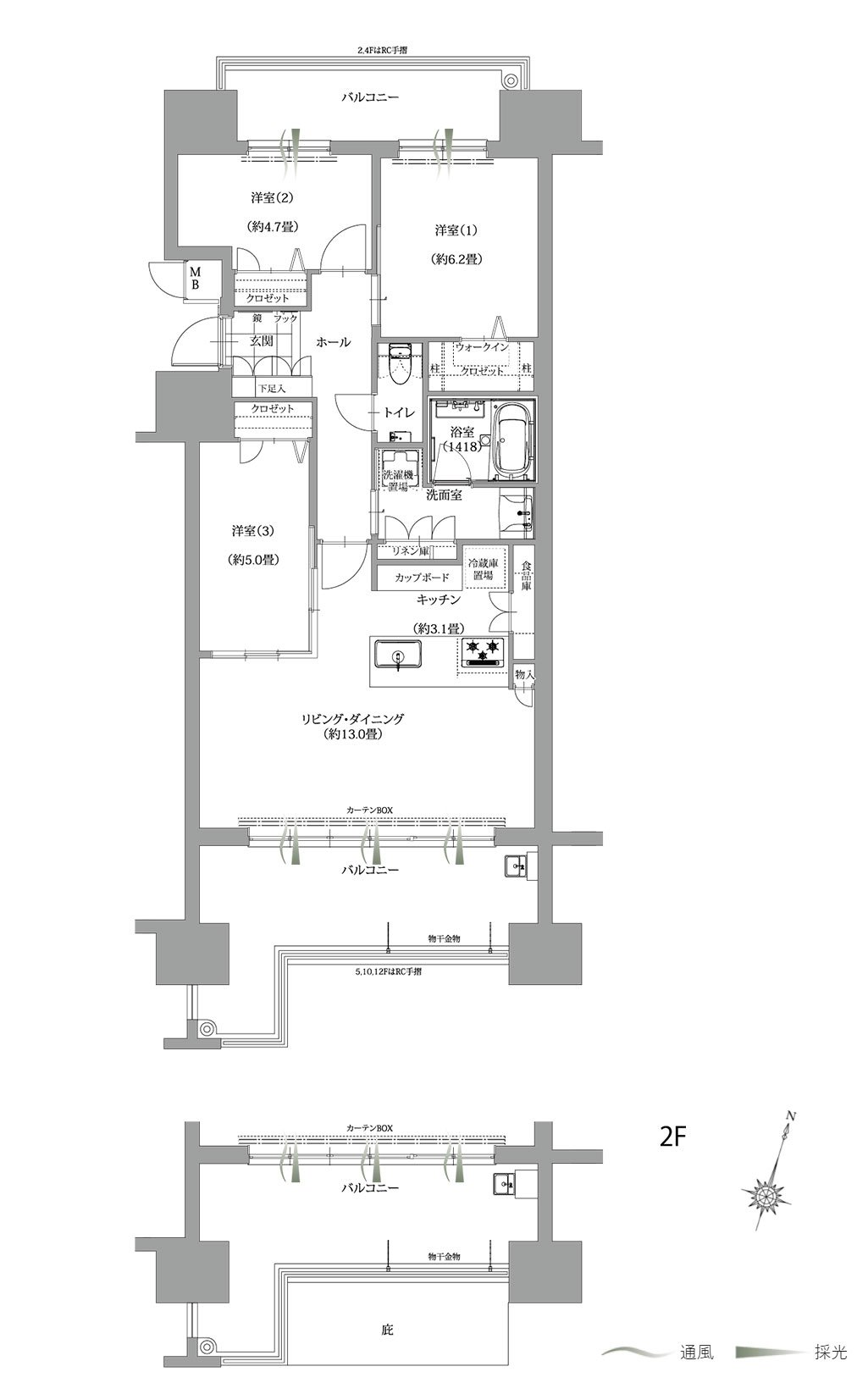
エンクレストガーデン福岡
| 所在地 | 福岡県福岡市中央区小笹4丁目78番1(地番) |
|---|---|
| 交通 |
|
| 価格 | 4,330万円~6,630万円 |
| 最多価格帯 | 4,400万円台(3戸) |
| 管理費等 | 7,300円~10,200円(月額) |
| 修繕積立金 | 5,930円~8,280円(月額) |
スポンサーリンク
エンクレストガーデン福岡の建物情報
物件概要
| 物件種別 | マンション |
|---|---|
| 築年月(築年数) | 2025年12月 (築1年) |
| 建物構造 | RC14階建一部鉄骨 |
| 販売個数(区画数) | 19戸 |
| 総戸数/総区画数 | 364戸 |
| 敷地全体面積 | 10272.84m2 |
| 用途地域 | 第一種中高層住居専用 |
| 土地権利 | 所有権 |
| 建築確認番号 | 第ERI-22048927号(2023年2月21日)※竣工までに変更申請を行う場合があります。 |
| 施工会社 | 福田・旭建設工事共同企業体 |
| 売主 | 株式会社えんホールディングス |
| 販売会社 | 株式会社えんコーポレーション(代理)、株式会社アーム・レポ(代理)、株式会社長谷工アーベスト(代理) |
設備・条件
- 追い焚き
- 浴室乾燥機
- IHコンロ
- コンロ三口以上
- システムキッチン
- 食器洗い乾燥機
- 高効率給湯器
- 浄水器・活水器
- ウォークインクローゼット
- ブロードバンド
- シングル&DINKS向け
- 4LDK以上
- 複層ガラス採用(二重サッシ・防犯サッシ等)
- オートロック
- 防犯カメラ
- 管理人常駐
- セキュリティ充実
- エレベーター
- ごみ出し24時間OK
- ペット用施設
- キッズルーム
- 駐車場完備
- 宅配ボックス
- コンシェルジュサービス
- デザイナーズ
- 住宅性能評価書
- 南向き
- 即入居可
- 環境にやさしい
- スーパー800m以内
- コンビニ400m以内
- 公園400m以内
※最新の状態と異なる場合があります
売りたい不動産をお持ちの方へ
このエリアの所有不動産を査定する
売却査定手続きの流れ、費用相場や注意点など不動産売却について詳しく知りたい方はLIFULL HOME'S 不動産査定へ
エンクレストガーデン福岡の周辺施設
-
買い物
日用品 -
- ローソン 福岡小笹団地前店
- Can★Do小笹店
- ドラッグイレブン小笹店
- サニー 小笹店
- 買い物
大型店 -
- ファッションセンターしまむら 平和店
- ヤマダデンキテックランド福岡城南店デジタル館
- 西松屋 福岡桜坂店
- グルメ
-
- はま寿司福岡小笹店
- ウエスト 小笹店
- モスバーガー 笹丘店
- リンガーハット イオンスタイル笹丘店
- 娯楽施設
-
- 福岡市植物園
- 南公園
- 福岡市動物園
- 平和中央公園野球場・ソフトボール場
- 役所
公共施設 -
- 福岡小笹郵便局
- 福岡笹丘郵便局
- 医療
-
- 平尾山病院
- 医療法人財団博愛会博愛会病院
- 保育施設
-
- くるみ保育園
- 笹丘セレーナ保育園
- 小笹幼稚園
- 森のおうち保育園
- 学校
-
- 私立上智福岡高校
- 私立上智福岡中学校
- 福岡市立笹丘小学校
- 福岡市立平尾中学校
※学区外の学校が含まれる場合があります。実際の学区は必ず各自治体へご確認ください。
エンクレストガーデン福岡周辺の物件情報
周辺の問合せ可能な物件
福岡県福岡市中央区の問合せ可能な物件のうち、この物件の周辺にあるものから表示しています
賃貸
-
募集中
- ウェルホール・パティオ
- 6.5万円
- 福岡市地下鉄七隈線 桜坂駅 徒歩18分
- 福岡県福岡市中央区小笹4丁目
- 44.88m² / 1LDK
-
募集中
- SIMA笹丘(シマササオカ)
- 6.9万円
- バス 笹丘2丁目下車 徒歩2分
- 福岡県福岡市中央区笹丘2丁目
- 31.43m² / 1K
-
募集中
- バス 笹丘2丁目まで徒歩2分
- 6.9万円
- バス 笹丘2丁目まで徒歩2分
- 福岡県福岡市中央区笹丘2丁目
- 31.43m² / 1K
-
募集中
- ドミナス小笹中央公園
- 9.9万円
- 福岡市地下鉄七隈線 桜坂駅 徒歩21分
- 福岡県福岡市中央区小笹3丁目
- 68.14m² / 3LDK
-
募集中
- 輝国清島住宅
- 15万円
- 福岡市地下鉄七隈線 六本松駅 徒歩18分
- 福岡県福岡市中央区輝国2丁目11-56
- 125.44m² / 4SLDK
-
募集中
- ロマネスクヴューコート植物園
- 9.5万円
- 福岡市地下鉄七隈線 桜坂駅 徒歩19分
- 福岡県福岡市中央区小笹5丁目16-58
- 59.58m² / 2LDK
-
募集中
- ユニヴェール小笹
- 15.8万円
- 福岡市地下鉄七隈線 桜坂駅 徒歩24分
- 福岡県福岡市中央区小笹3丁目
- 79.48m² / 3LDK
-
募集中
- 福岡市地下鉄七隈線 桜坂駅 徒歩25分
- 11.7万円
- 福岡市地下鉄七隈線 桜坂駅 徒歩25分
- 福岡県福岡市中央区小笹3丁目9番44
- 55.17m² / 2LDK
-
募集中
- パークホームズ六本松フォレストクロス
- 18.5万円
- 福岡市地下鉄七隈線 六本松駅 徒歩12分
- 福岡県福岡市中央区輝国2丁目
- 69.01m² / 3LDK
-
募集中
- Gentiana scabra
- 12.1万円
- 福岡市地下鉄七隈線 桜坂駅 徒歩22分
- 福岡県福岡市中央区小笹3丁目9番44号
- 57.15m² / 2LDK
新築マンション
※完成後1年以上経過した未入居の物件が含まれている場合があります
-
売出し中
- 福岡市地下鉄空港線「唐人町」駅 徒歩8分
- 8,380万円~8,580万円
- 福岡市地下鉄空港線「唐人町」駅 徒歩8分
- 福岡県福岡市中央区荒戸三丁目253番(地番)
- 73.22m² / 3LDK
-
売出し中
- 福岡市地下鉄空港線「西新」駅 徒歩6分
- 3,270万円~3,660万円
- 福岡市地下鉄空港線「西新」駅 徒歩6分
- 福岡県福岡市中央区今川二丁目六区233番1、福岡市中央区今川二丁目6番34
- 34.02m² / 1LDK
-
売出し中
- 福岡市地下鉄七隈線「六本松」駅 徒歩4分 (約312m)
- 4,180万円、5,480万円、5,580万円、6,680万円、7,080万円
- 福岡市地下鉄七隈線「六本松」駅 徒歩4分 (約312m)
- 福岡県福岡市中央区梅光園1丁目31番(地番)
- 61.52m² / 1LDK・2LDK・3LDK
-
売出し中
- 福岡市地下鉄七隈線「六本松」駅 徒歩10分 (約800m)
- 23,980万円
- 福岡市地下鉄七隈線「六本松」駅 徒歩10分 (約800m)
- 福岡県福岡市中央区草香江2丁目17区268番1(地番)
- 139.09m² / 3LDK
-
売出し中
- 福岡市地下鉄七隈線「六本松」駅 徒歩7分 (約550m)
- 14,980万円
- 福岡市地下鉄七隈線「六本松」駅 徒歩7分 (約550m)
- 福岡県福岡市中央区草香江1丁目7区189番(地番)住居表示:未定
- 93.92m² / 4LDK
-
売出し中
- グランドメゾン福岡 The Central Luxe
- 2億7000万円
- 西鉄天神大牟田線 薬院駅 徒歩2分
- 福岡県福岡市中央区渡辺通2丁目
- 110.97m² / 3LDK
-
売出し中
- 福岡市地下鉄七隈線「薬院大通」駅 徒歩7分 サブエントランスより約530m
- 1億1900万円(2戸)
- 福岡市地下鉄七隈線「薬院大通」駅 徒歩7分 サブエントランスより約530m
- 福岡県福岡市 中央区浄水通48-2
- 88.53m² / 3LDK(2戸)
-
売出し中
- 福岡市地下鉄空港線「大濠公園」駅 徒歩7分
- 6390万円(1戸)
- 福岡市地下鉄空港線「大濠公園」駅 徒歩7分
- 福岡県福岡市 中央区荒戸3丁目104-1
- 56.85m² / 2LDK(1戸)
中古マンション
-
売出し中
- リーベスト小笹
- 3200万円
- 西鉄天神大牟田線 西鉄平尾駅 バス13分 小笹中央公園前下車 徒歩2分
- 福岡県福岡市中央区小笹4丁目
- 71.63m² / 2SLDK
-
売出し中
- チサンマンション小笹
- 2199万円
- 福岡市地下鉄七隈線 桜坂駅 徒歩21分
- 福岡県福岡市中央区小笹3丁目11-27
- 65.97m² / 2LDK
-
売出し中
- オリエントハイツ小笹 第1 B棟
- 2480万円
- 西鉄バス 小笹中央公園前下車 徒歩4分
- 福岡県福岡市中央区小笹3丁目13-9
- 90.72m² / 5LDK
-
売出し中
- D’ レスティア植物園
- 3980万円
- 福岡市地下鉄七隈線 桜坂駅 徒歩25分
- 福岡県福岡市中央区小笹5丁目
- 80.31m² / 3LDK
-
売出し中
- アーバンパレス小笹ステージ
- 4380万円
- 西鉄天神大牟田線 西鉄平尾駅 バス9分 小笹中央公園下車 徒歩5分
- 福岡県福岡市中央区小笹3丁目
- 76.4m² / 3LDK
-
売出し中
- 三愛シティライフ小笹
- 1127万円
- 福岡市地下鉄七隈線 桜坂駅 徒歩23分
- 福岡県福岡市中央区小笹5丁目4-17
- 60.75m² / 3LDK
-
売出し中
- 輝国住宅1号棟
- 2280万円
- 福岡市地下鉄七隈線 六本松駅 徒歩14分
- 福岡県福岡市中央区輝国2丁目
- 64.42m² / 3LDK
-
売出し中
- ダイアパレス輝国
- 3480万円
- 福岡市地下鉄七隈線 六本松駅 徒歩10分
- 福岡県福岡市中央区輝国2丁目
- 90.2m² / 3LDK
-
売出し中
- ソピア平尾山荘
- 2498万円
- 西鉄天神大牟田線 西鉄平尾駅 徒歩15分
- 福岡県福岡市中央区平尾5丁目
- 71.3m² / 3LDK
-
売出し中
- パークハイツ平尾山荘24棟
- 2580万円
- 西鉄天神大牟田線 西鉄平尾駅 徒歩17分
- 福岡県福岡市中央区平尾5丁目14-24
- 79.44m² / 3LDK
一戸建て
-
売出し中
- 福岡市地下鉄七隈線「六本松」駅 徒歩21分
- 3698万円
- 福岡市地下鉄七隈線「六本松」駅 徒歩21分
- 福岡県福岡市中央区小笹4丁目
- 100.0m² / 4LDK
-
売出し中
- 福岡市地下鉄七隈線「六本松」駅 徒歩20分
- 3,698万円
- 福岡市地下鉄七隈線「六本松」駅 徒歩20分
- 福岡県福岡市中央区小笹4丁目
- 100.81m² / 4LDK
-
売出し中
- 福岡市中央区小笹4丁目1期 1号棟(全2棟)
- 3698万円
- 福岡市地下鉄七隈線 桜坂駅 徒歩22分
- 福岡県福岡市中央区小笹4丁目14-31
- 100.81m² / 4LDK
-
売出し中
- 福岡市地下鉄七隈線「六本松」駅 徒歩19分
- 5,690~5,890万円
- 福岡市地下鉄七隈線「六本松」駅 徒歩19分
- 福岡県福岡市中央区小笹4丁目
- 130.92m² / 4LDK
-
売出し中
- 福岡市地下鉄七隈線 六本松駅 徒歩16分
- 7480万円
- 福岡市地下鉄七隈線 六本松駅 徒歩16分
- 福岡県福岡市中央区輝国2丁目
- 143.26m² / 3LDK
-
売出し中
- 福岡市地下鉄七隈線「六本松」駅 徒歩22分
- 5899万円・5999万円
- 福岡市地下鉄七隈線「六本松」駅 徒歩22分
- 福岡県福岡市中央区輝国2丁目
- 111.81m² / 4LDK
-
売出し中
- 福岡市中央区輝国2丁目1期 1号棟(全2棟)
- 5899万円
- 福岡市地下鉄七隈線 六本松駅 徒歩17分
- 福岡県福岡市中央区輝国2丁目25-52
- 111.81m² / 4LDK
-
売出し中
- 福岡市中央区輝国2丁目1期 2号棟(全2棟)
- 5999万円
- 福岡市地下鉄七隈線 六本松駅 徒歩17分
- 福岡県福岡市中央区輝国2丁目25-52
- 111.42m² / 4LDK
-
売出し中
- 福岡市地下鉄七隈線「六本松」駅 徒歩17分
- 5,899~5,999万円
- 福岡市地下鉄七隈線「六本松」駅 徒歩17分
- 福岡県福岡市中央区輝国2丁目
- 111.81m² / 4LDK
-
売出し中
- 福岡市地下鉄七隈線「六本松」駅 徒歩19分
- 5899万円~5999万円
- 福岡市地下鉄七隈線「六本松」駅 徒歩19分
- 福岡県福岡市中央区輝国2丁目
- 111.81m² / 4LDK
注文住宅
※表示価格は延べ床面積約132m²の場合の建物価格の参考値です
-
資料請求受付中
- 3400万円〜
- ディー・アンド・エイチ株式会社
- 2,975万円~の家づくり|カタログ4冊セット|『ZEH基準の高性能住宅+福岡の土地情報に強いD&H』家づくりに関することをトータルでご提案。
-
資料請求受付中
- -
- アキュラホーム(AQ Group)
- 「超空間の家」
-
資料請求受付中
- 2800万円〜
- ミサワホーム株式会社
- 【MISAWA】ミサワホーム代表カタログ3冊セット(HOME'S限定)
-
資料請求受付中
- 3400万円〜
- へーベルハウス
- 【ヘーベルハウス】:ヘーベルハウス総合カタログ
-
資料請求受付中
- 4000万円〜
- 株式会社谷川建設
- オーダーメイド住宅 HINOCA
-
資料請求受付中
- 2800万円〜
- 【悠悠ホーム | 健康、快適、長寿命の家】
- 【悠悠ホーム】オーナー様邸 施工実例集 20選 《人気の平屋間取り付き》
-
資料請求受付中
- 1868万円〜
- タマホーム株式会社
- 大安心の家シリーズ
-
資料請求受付中
- 3000万円〜
- セキスイハイム
- 【セキスイハイム】総合カタログ(heimism)
-
資料請求受付中
- 2000万円〜
- 一条工務店
- 【一条工務店】 建築実例集3冊セット(HOME’S限定)
-
資料請求受付中
- 3200万円〜
- 大和ハウス
- 【大和ハウス】 xevoΣ<ジーヴォシグマ> ~天井高2m72cmの高さというゆとり空間~
エリア・駅で絞り込んで探す
福岡県のエンクレストが含まれるマンション
周辺の建物情報
物件の種類から探す
福岡市中央区で募集中の物件のみを検索できます
掲載情報に誤りや問題がある場合
LIFULL HOME'Sは「不動産会社」ではなく「情報掲載サイト」です
- ※管理会社の情報はLIFULL HOME'Sでは保持していないためお答えできません。お問合せはお控えください
- ※最新の募集状況は掲載中の不動産会社があれば、不動産会社へ直接お問合せください
掲載情報の訂正依頼 専用ダイヤル
0120-987-243
- 専用ダイヤル受付時間:10:00〜18:00
- ※土日・祝日、臨時休業日は除く
不動産データのご利用について
不動産事業におけるDX、サービスの改善、新規事業開発等をご検討中の方へ不動産データの活用をご提案します。LIFULL HOME'Sで集約した不動産情報や外部データは、不動産事業DX、不正決済防止、ローン審査、事業開発、研究等さまざまな事業でご活用いただいています。詳しくは以下よりご確認ください。
不動産アーカイブご利用アンケートにご協力ください
不動産アーカイブの掲載情報は、LIFULL HOME'S掲載の不動産情報および提携先の不動産情報を統計情報として集積したものであり、その存在や信憑性を保証するものではありません。