このページは物件の広告情報ではありません。
過去にLIFULL HOME'Sへ掲載された不動産情報と提携先の地図情報を元に生成した参考情報です。また、一般から投稿された情報など主観的な情報も含みます。
情報更新日: 2025/11/24
ルピアコート保谷
| 所在地 | 東京都西東京市下保谷五丁目839番3(地番) |
|---|---|
| 交通 |
|
| 価格 | 未定 |
| 管理費等 | 16,910円~19,140円(月額) |
| 修繕積立金 | 9,470円~10,710円(月額) |
スポンサーリンク
ルピアコート保谷の建物情報
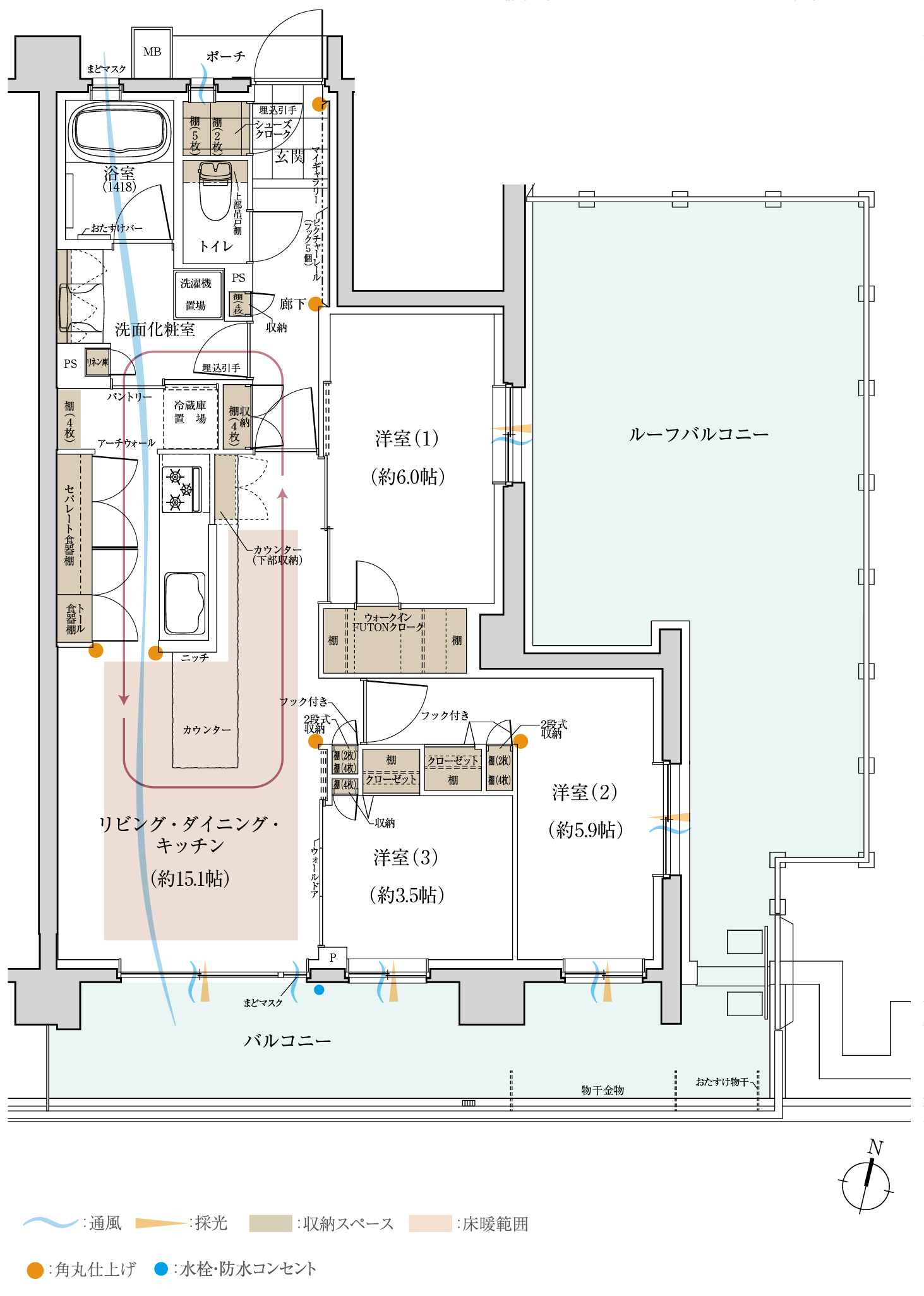
物件概要
| 物件種別 | マンション |
|---|---|
| 築年月(築年数) | 2026年2月 (完成予定) |
| 建物構造 | 鉄筋コンクリート造・地上5階建 |
| 販売個数(区画数) | 未定 |
| 総戸数/総区画数 | 25戸 |
| 敷地全体面積 | 1,616.03m2 |
| 用途地域 | 第一種低層住宅専用、第一種中高層住居専用 |
| 土地権利 | 所有権 |
| 建築確認番号 | 第UHEC建確R060594号(令和6年11月22日付) |
| 施工会社 | 多田建設株式会社 |
| 売主 | 株式会社中央住宅 |
| 販売会社 | 株式会社東京中央建物(代理) |
設備・条件
- 追い焚き
- システムキッチン
- シングル&DINKS向け
- オートロック
※最新の状態と異なる場合があります
売りたい不動産をお持ちの方へ
このエリアの所有不動産を査定する
売却査定手続きの流れ、費用相場や注意点など不動産売却について詳しく知りたい方はLIFULL HOME'S 不動産査定へ
ルピアコート保谷の周辺施設
-
買い物
日用品 -
- ドラッグセイムス下保谷店
- セブンイレブン 西東京下保谷3丁目店
- セブンイレブン 西東京東町3丁目店
- マツモトキヨシ保谷北口駅前店
- 買い物
大型店 -
- 西松屋 保谷駅南店
- グルメ
-
- バーガーキングエミオ保谷店
- モスバーガー 保谷店
- いきなりステーキ保谷駅前店
- 松屋 保谷店
- 娯楽施設
-
- セントラルフィットネスクラブ保谷
- 西東京市健康広場多目的運動広場
- 保谷グリーンゴルフセンター
- 役所
公共施設 -
- 保谷駅前郵便局
- 下保谷二郵便局
- 西東京市保谷駅前図書館
- 保谷東町郵便局
- 医療
-
- 保谷厚生病院
- 医療法人社団保谷病院
- 保育施設
-
- 西東京ユーカリ保育園
- みらいく保谷園
- こまどり保育園
- Coco-ro保育園
- 学校
-
- 西東京市立保谷第一小学校
- 練馬区立大泉第六小学校
- 西東京市立明保中学校
- 西東京市立青嵐中学校
ルピアコート保谷周辺の物件情報
周辺の問合せ可能な物件
東京都西東京市の問合せ可能な物件のうち、この物件の周辺にあるものから表示しています
賃貸
-
募集中
- リラフォートM
- 14.3万円
- 西武池袋線 保谷駅 徒歩8分
- 東京都西東京市下保谷5丁目9-3
- 54.96m² / 2LDK
-
募集中
- 西武池袋線 保谷駅 徒歩6分
- 8.1万円
- 西武池袋線 保谷駅 徒歩6分
- 東京都西東京市下保谷5丁目
- 18.81m² / 1K
-
募集中
- ピュア保谷一番館
- 8.1万円
- 西武池袋線 保谷駅 徒歩6分
- 東京都西東京市下保谷5丁目12-15
- 18.81m² / 1K
-
募集中
- 西武池袋線 保谷駅 徒歩9分
- 10.3万円
- 西武池袋線 保谷駅 徒歩9分
- 東京都西東京市下保谷5丁目7-17
- 38.4m² / 1LDK
-
募集中
- PREMAVERA
- 10.3万円
- 西武池袋線 保谷駅 徒歩9分
- 東京都西東京市下保谷5丁目7-17
- 38.4m² / 1LDK
-
募集中
- グリ−ンセフィラB
- 9.1万円
- 西武池袋線 保谷駅 徒歩9分
- 東京都西東京市下保谷2丁目7-26
- 38.5m² / 1LDK
-
募集中
- シアターハイム下保谷
- 6.5万円
- 西武池袋線 保谷駅 徒歩4分
- 東京都西東京市下保谷5丁目13-13
- 21.08m² / 1K
-
募集中
- 西武池袋線 保谷駅 徒歩4分
- 7.4万円
- 西武池袋線 保谷駅 徒歩4分
- 東京都西東京市下保谷4丁目1-17
- 21.07m² / ワンルーム
-
募集中
- リヴァティ保谷
- 7.4万円
- 西武池袋線 保谷駅 徒歩4分
- 東京都西東京市下保谷4丁目
- 11.5m² / ワンルーム
-
募集中
- ドルメン保谷
- 4.7万円
- 西武池袋線 保谷駅 徒歩4分
- 東京都西東京市下保谷4丁目
- 14.18m² / ワンルーム
新築マンション
※完成後1年以上経過した未入居の物件が含まれている場合があります
中古マンション
-
売出し中
- ライオンズマンション保谷
- 4090万円
- 西武池袋線 保谷駅 徒歩12分
- 東京都西東京市下保谷5丁目
- 68.44m² / 3LDK
-
売出し中
- ライオンズガーデン保谷
- 3898万円
- 西武池袋線 保谷駅 徒歩6分
- 東京都西東京市下保谷4丁目
- 57.95m² / 3DK
-
売出し中
- 西武池袋線 保谷駅 徒歩5分
- 1980万円
- 西武池袋線 保谷駅 徒歩5分
- 東京都西東京市東町3丁目
- 43.94m² / 1LDK
-
売出し中
- 西東京市東町3丁目 中古マンション
- 2480万円
- 西武池袋線 保谷駅 徒歩4分
- 東京都西東京市東町3丁目
- 50.76m² / 2LDK
-
売出し中
- グランドハイム保谷
- 1980万円
- 西武池袋線 保谷駅 徒歩7分
- 東京都西東京市東町3丁目
- 43.94m² / 1LDK
-
売出し中
- グランドハイム保谷
- 1980万円
- 西武池袋線 保谷駅 徒歩5分
- 東京都西東京市東町3丁目
- 43.94m² / 1LDK
-
売出し中
- ヴィルヌーブ保谷
- 4880万円
- 西武池袋線 保谷駅 徒歩15分
- 東京都西東京市栄町1丁目
- 66.83m² / 3LDK
-
売出し中
- 西武池袋線 保谷駅 徒歩12分
- 4880万円
- 西武池袋線 保谷駅 徒歩12分
- 東京都西東京市栄町1丁目
- 66.83m² / 3LDK
-
売出し中
- ヴェレーナ西東京碧山の森
- 4480万円
- 西武池袋線 保谷駅 徒歩14分
- 東京都西東京市中町3丁目
- 75.77m² / 3LDK
-
売出し中
- 西武池袋線 ひばりヶ丘駅 徒歩3分
- 3580万円
- 西武池袋線 ひばりヶ丘駅 徒歩3分
- 東京都西東京市谷戸町3丁目
- 65.14m² / 2LDK
一戸建て
-
売出し中
- 西東京市下保谷1丁目 LDK17.3
- 4800万円
- 西武池袋線 保谷駅 徒歩12分
- 東京都西東京市下保谷1丁目
- 83.1m² / 3LDK
-
売出し中
- 西東京市下保谷2丁目 新築一戸建て 2号棟
- 4980万円
- 西武池袋線 保谷駅 徒歩12分
- 東京都西東京市下保谷2丁目
- 70.46m² / 3LDK
-
売出し中
- 西武池袋線「保谷」駅 徒歩12分
- 4980万円
- 西武池袋線「保谷」駅 徒歩12分
- 東京都西東京市下保谷2
- 70.46m² / 1LDK+2S+2WIC+小屋裏収納
-
売出し中
- 西東京市下保谷2丁目 新築戸建 全2棟 2号棟
- 4980万円
- 西武池袋線 保谷駅 徒歩12分
- 東京都西東京市下保谷2丁目
- 70.46m² / 1SLDK
-
売出し中
- 西東京市下保谷2丁目 新築一戸建住宅 全2棟 (保谷店)
- 4980万円
- 西武池袋線 保谷駅 徒歩12分
- 東京都西東京市下保谷2丁目
- 70.46m² / 1SLDK
-
売出し中
- 西東京市下保谷2丁目の新築戸建
- 4480万円
- 西武池袋線 保谷駅 徒歩14分
- 東京都西東京市下保谷2丁目
- 99.72m² / 3SLDK
-
売出し中
- 西武池袋線 保谷駅 徒歩11分
- 5990万円
- 西武池袋線 保谷駅 徒歩11分
- 東京都西東京市下保谷3丁目
- 78.56m² / 3LDK
-
売出し中
- 西東京市下保谷3丁目 新築戸建 1号棟
- 5990万円
- 西武池袋線 保谷駅 徒歩11分
- 東京都西東京市下保谷3丁目
- 78.56m² / 2SLDK
-
売出し中
- 西東京市下保谷3丁目 新築戸建 2号棟
- 5790万円
- 西武池袋線 保谷駅 徒歩11分
- 東京都西東京市下保谷3丁目
- 76.54m² / 2SLDK
-
売出し中
- 西東京市下保谷3丁目 新築戸建 3号棟
- 6390万円
- 西武池袋線 保谷駅 徒歩11分
- 東京都西東京市下保谷3丁目
- 86.05m² / 4LDK
注文住宅
※表示価格は延べ床面積約132m²の場合の建物価格の参考値です
エリア・駅で絞り込んで探す
東京都のルピアコートが含まれるマンション
周辺の建物情報
物件の種類から探す
西東京市で募集中の物件のみを検索できます
掲載情報に誤りや問題がある場合
LIFULL HOME'Sは「不動産会社」ではなく「情報掲載サイト」です
- ※管理会社の情報はLIFULL HOME'Sでは保持していないためお答えできません。お問合せはお控えください
- ※最新の募集状況は掲載中の不動産会社があれば、不動産会社へ直接お問合せください
掲載情報の訂正依頼 専用ダイヤル
0120-987-243
- 専用ダイヤル受付時間:10:00〜18:00
- ※土日・祝日、臨時休業日は除く
不動産データのご利用について
不動産事業におけるDX、サービスの改善、新規事業開発等をご検討中の方へ不動産データの活用をご提案します。LIFULL HOME'Sで集約した不動産情報や外部データは、不動産事業DX、不正決済防止、ローン審査、事業開発、研究等さまざまな事業でご活用いただいています。詳しくは以下よりご確認ください。
不動産アーカイブご利用アンケートにご協力ください
不動産アーカイブの掲載情報は、LIFULL HOME'S掲載の不動産情報および提携先の不動産情報を統計情報として集積したものであり、その存在や信憑性を保証するものではありません。