このページは物件の広告情報ではありません。
過去にLIFULL HOME'Sへ掲載された不動産情報と提携先の地図情報を元に生成した参考情報です。また、一般から投稿された情報など主観的な情報も含みます。
情報更新日: 2025/11/26
クレストプライムタワー東小金井
| 所在地 | 東京都小金井市梶野町5丁目1143番地3他(地番) |
|---|---|
| 交通 |
|
| 価格 | 10,300万円・11,400万円 |
| 管理費等 | 27,600円・27,700円 |
| 修繕積立金 | 6,600円 |
スポンサーリンク
クレストプライムタワー東小金井の建物情報
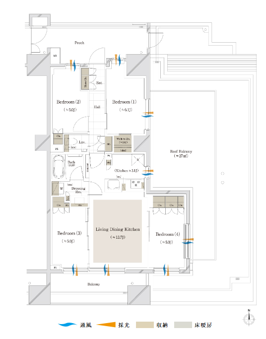
物件概要
| 物件種別 | マンション |
|---|---|
| 築年月(築年数) | 2027年1月 (完成予定) |
| 建物構造 | 鉄筋コンクリ-ト造 地上20階建 |
| 販売個数(区画数) | 2戸 |
| 総戸数/総区画数 | 151戸 |
| 敷地全体面積 | 2847.10m2 |
| 用途地域 | 商業 |
| 土地権利 | 所有権 |
| 建築確認番号 | JCIA確認S23第00066号(04)(令和7年8月20日付) |
| 施工会社 | ピーエス・コンストラクション株式会社 |
| 売主 | 株式会社ゴールドクレスト |
| 販売会社 | 株式会社ゴールドクレスト住宅販売(販売代理) |
設備・条件
- 太陽光発電
- 追い焚き
- 浴室乾燥機
- IHコンロ
- コンロ三口以上
- システムキッチン
- 食器洗い乾燥機
- ディスポーザー
- 高効率給湯器
- 浄水器・活水器
- 床暖房
- ウォークインクローゼット
- ブロードバンド
- バリアフリー
- 複層ガラス採用(二重サッシ・防犯サッシ等)
- オートロック
- 防犯カメラ
- 管理人常駐
- セキュリティ充実
- エレベーター
- ごみ出し24時間OK
- 宅配ボックス
- コンシェルジュサービス
- 環境にやさしい
- 子育てに優しい環境
- スーパー800m以内
- コンビニ400m以内
- 小学校800m以内
- 公園400m以内
- フィットネス施設(プール含む)800m以内
- 複数路線
※最新の状態と異なる場合があります
売りたい不動産をお持ちの方へ
このエリアの所有不動産を査定する
売却査定手続きの流れ、費用相場や注意点など不動産売却について詳しく知りたい方はLIFULL HOME'S 不動産査定へ
クレストプライムタワー東小金井の周辺施設
-
買い物
日用品 -
- ファミリーマート サンズ東小金井駅北口店
- マルエツ 東小金井駅北口店
- 地産マルシェ東小金井店
- トモズ東小金井店
- 買い物
大型店 -
- nonowa東小金井
- 西松屋 小金井緑町店
- グルメ
-
- スターバックスコーヒーnonowa東小金井店
- 吉野家 東小金井駅前店
- 松屋 東小金井店
- から好し東小金井店
- 娯楽施設
-
- 梶野公園
- 栗山公園
- 栗山公園健康運動センター
- 文化施設
-
- 東京農工大学科学博物館
- 役所
公共施設 -
- 東小金井駅前郵便局
- 小金井緑町郵便局
- 小金井東町郵便局
- 小金井市立図書館東分室
- 医療
-
- 医療法人社団総合会武蔵野中央病院
- 保育施設
-
- 第六コスモ保育園
- 駅前コスモ保育園
- キッズガーデン東小金井駅前
- ひがし保育園
- 学校
-
- 小金井市立小金井第三小学校
- 小金井市立東小学校
- 私立東京電機大学中学校
- 私立東京電機大学高校
クレストプライムタワー東小金井周辺の物件情報
周辺の問合せ可能な物件
東京都小金井市の問合せ可能な物件のうち、この物件の周辺にあるものから表示しています
賃貸
-
募集中
- クリオ東小金井パークフロント
- 24.2万円
- JR中央本線 東小金井駅 徒歩2分
- 東京都小金井市梶野町5丁目
- 75.73m² / 3LDK
-
募集中
- Wood Land2
- 7万円
- JR中央線 東小金井駅 徒歩2分
- 東京都小金井市東町4丁目46-5
- 21.1m² / 1K
-
募集中
- アクシス東小金井
- 7.8万円
- JR中央本線 東小金井駅 徒歩2分
- 東京都小金井市梶野町5丁目
- 28.0m² / 1K
-
募集中
- JR中央線 東小金井駅 徒歩1分
- 7万円
- JR中央線 東小金井駅 徒歩1分
- 東京都小金井市東町4丁目42-13
- 29.8m² / 2K
-
募集中
- KIハイツ
- 7万円
- JR中央線 東小金井駅 徒歩1分
- 東京都小金井市東町4丁目42-13
- 29.8m² / 2K
-
募集中
- 宮澤ビル
- 6万円
- JR中央線 東小金井駅 徒歩2分
- 東京都小金井市東町4丁目43-9
- 19.3m² / 1K
-
募集中
- JR中央線 東小金井駅 徒歩2分
- 6.3万円
- JR中央線 東小金井駅 徒歩2分
- 東京都小金井市東町4丁目
- 16.39m² / ワンルーム
-
募集中
- SunTerrace東
- 7.2万円
- JR中央線 東小金井駅 徒歩1分
- 東京都小金井市東町4丁目41-23
- 22.35m² / ワンルーム
-
募集中
- JR中央線 東小金井駅 徒歩1分
- 7.2万円
- JR中央線 東小金井駅 徒歩1分
- 東京都小金井市東町4丁目41-23
- 22.35m² / ワンルーム
-
募集中
- JR中央線 東小金井駅 徒歩2分
- 7.8万円
- JR中央線 東小金井駅 徒歩2分
- 東京都小金井市梶野町5丁目2-27
- 28.0m² / 1K
新築マンション
※完成後1年以上経過した未入居の物件が含まれている場合があります
中古マンション
-
売出し中
- ネクステージ東小金井
- 5980万円
- JR中央線 東小金井駅 徒歩8分
- 東京都小金井市梶野町2丁目
- 60.0m² / 2SLDK
-
売出し中
- 武蔵小金井サンハイツ
- 4180万円
- JR中央線 東小金井駅 徒歩11分
- 東京都小金井市緑町5丁目
- 66.03m² / 3LDK
-
売出し中
- ライオンズガーデン武蔵小金井
- 2980万円
- JR中央線 武蔵小金井駅 徒歩12分
- 東京都小金井市緑町5丁目18-19
- 66.85m² / 3LDK
-
売出し中
- 小金井第2コーポラス
- 2698万円
- JR中央線 武蔵小金井駅 徒歩11分
- 東京都小金井市緑町5丁目
- 50.22m² / 2LDK
-
売出し中
- 小金井武蔵野ヒルズ
- 4790万円
- JR中央線 武蔵小金井駅 徒歩12分
- 東京都小金井市緑町5丁目
- 66.42m² / 3LDK
-
売出し中
- JR中央線 武蔵小金井駅 徒歩11分
- 2698万円
- JR中央線 武蔵小金井駅 徒歩11分
- 東京都小金井市緑町5丁目
- 50.22m² / 2LDK
-
売出し中
- プラウド小金井緑町
- 8480万円
- JR中央線 武蔵小金井駅 徒歩12分
- 東京都小金井市緑町5丁目
- 73.26m² / 3LDK
-
売出し中
- 菱和パレス武蔵小金井
- 4980万円
- JR中央線 武蔵小金井駅 徒歩10分
- 東京都小金井市本町2丁目
- 63.6m² / 1LDK
-
売出し中
- クラックスハイム小金井
- 2580万円
- JR中央線 武蔵小金井駅 徒歩7分
- 東京都小金井市本町1丁目
- 71.02m² / 3DK
-
売出し中
- プラウド小金井桜町
- 7980万円
- JR中央線 武蔵小金井駅 徒歩12分
- 東京都小金井市桜町1丁目
- 75.32m² / 2LDK
一戸建て
-
売出し中
- JR中央線 東小金井駅 徒歩11分
- 4280万円
- JR中央線 東小金井駅 徒歩11分
- 東京都小金井市梶野町1丁目
- 88.61m² / 4LDK
-
売出し中
- 小金井市東町4丁目 中古戸建
- 6980万円
- JR中央線 東小金井駅 徒歩8分
- 東京都小金井市東町4丁目
- 116.32m² / 5LDK
-
売出し中
- 小金井市東町2丁目 戸建 A号棟
- 6290万円
- 西武多摩川線 新小金井駅 徒歩7分
- 東京都小金井市東町2丁目
- 67.99m² / 3LDK
-
売出し中
- 小金井市東町2丁目 全3棟A号棟 新築分譲住宅
- 6290万円
- 西武多摩川線 新小金井駅 徒歩7分
- 東京都小金井市東町2丁目3-17
- 67.9m² / 3LDK
-
売出し中
- 西武多摩川線「新小金井」駅 徒歩7分
- 6290万円
- 西武多摩川線「新小金井」駅 徒歩7分
- 東京都小金井市東町2
- 67.99m² / 3LDK+ステップインロフト
-
売出し中
- 梶野町三丁目 全3棟 1号棟
- 7380万円
- JR中央線 東小金井駅 徒歩12分
- 東京都小金井市梶野町3丁目
- 80.06m² / 3LDK
-
売出し中
- 梶野町3丁目 全3棟 3号棟
- 7380万円
- JR中央線 東小金井駅 徒歩12分
- 東京都小金井市梶野町3丁目
- 80.0m² / 3LDK
-
売出し中
- 西武多摩川線 新小金井駅 徒歩9分
- 7980万円
- 西武多摩川線 新小金井駅 徒歩9分
- 東京都小金井市東町1丁目
- 119.24m² / 5LDK
-
売出し中
- JR中央線「武蔵小金井」駅 徒歩13分
- 8499万円
- JR中央線「武蔵小金井」駅 徒歩13分
- 東京都小金井市中町2
- 87.99m² / 3SLDK+WIC
-
売出し中
- HPに内見動画あります/小金井市中町2丁目 新築戸建
- 8499万円
- JR中央線 武蔵小金井駅 徒歩23分
- 東京都小金井市中町2丁目
- 87.99m² / 3SLDK
注文住宅
※表示価格は延べ床面積約132m²の場合の建物価格の参考値です
-
資料請求受付中
- 1868万円〜
- タマホーム株式会社
- 大安心の家シリーズ
-
資料請求受付中
- 3000万円〜
- 株式会社スウェーデンハウス
- 【スウェーデンハウス】お客様満足度総合第1位の声「No.1 Sweden House News」
-
資料請求受付中
- 2000万円〜
- 一条工務店
- 【一条工務店】 建築実例集3冊セット(HOME’S限定)
-
資料請求受付中
- -
- へーベルハウス
- 【ヘーベルハウス】:ヘーベルハウス総合カタログ
-
資料請求受付中
- 3000万円〜
- セキスイハイム
- 【セキスイハイム|平屋】ザ・デザイナーズハイムD1
-
資料請求受付中
- 2324万円〜
- ヤマト住建株式会社
- 【エネージュLCCM】脱炭素社会へ!住まいのすべての過程でCO2排出量を抑える住宅
エリア・駅で絞り込んで探す
東京都のプライムが含まれるマンション
周辺の建物情報
物件の種類から探す
小金井市で募集中の物件のみを検索できます
掲載情報に誤りや問題がある場合
LIFULL HOME'Sは「不動産会社」ではなく「情報掲載サイト」です
- ※管理会社の情報はLIFULL HOME'Sでは保持していないためお答えできません。お問合せはお控えください
- ※最新の募集状況は掲載中の不動産会社があれば、不動産会社へ直接お問合せください
掲載情報の訂正依頼 専用ダイヤル
0120-987-243
- 専用ダイヤル受付時間:10:00〜18:00
- ※土日・祝日、臨時休業日は除く
不動産データのご利用について
不動産事業におけるDX、サービスの改善、新規事業開発等をご検討中の方へ不動産データの活用をご提案します。LIFULL HOME'Sで集約した不動産情報や外部データは、不動産事業DX、不正決済防止、ローン審査、事業開発、研究等さまざまな事業でご活用いただいています。詳しくは以下よりご確認ください。
不動産アーカイブご利用アンケートにご協力ください
不動産アーカイブの掲載情報は、LIFULL HOME'S掲載の不動産情報および提携先の不動産情報を統計情報として集積したものであり、その存在や信憑性を保証するものではありません。