このページは物件の広告情報ではありません。
過去にLIFULL HOME'Sへ掲載された不動産情報と提携先の地図情報を元に生成した参考情報です。また、一般から投稿された情報など主観的な情報も含みます。
情報更新日: 2025/12/01
シティタワー東京田町
| 所在地 | 東京都港区芝浦2丁目1番75(地番) |
|---|---|
| 交通 |
|
| 価格 | 未定 |
| 管理費等 | 20590円 ~ 36000円 |
| 修繕積立金 | 15430円 ~ 27560円 |
スポンサーリンク
シティタワー東京田町の建物情報
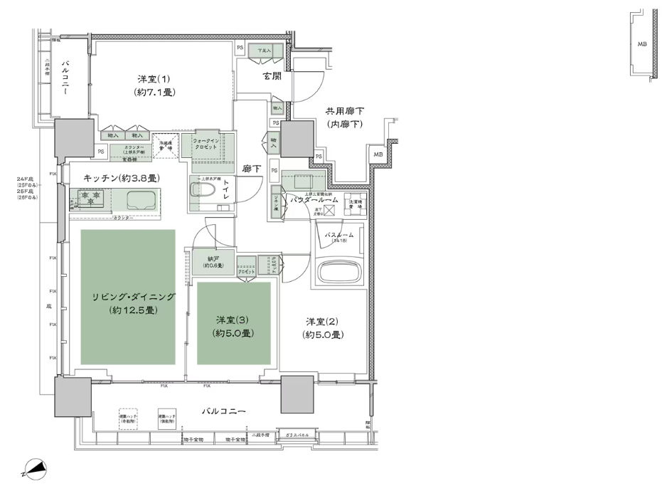
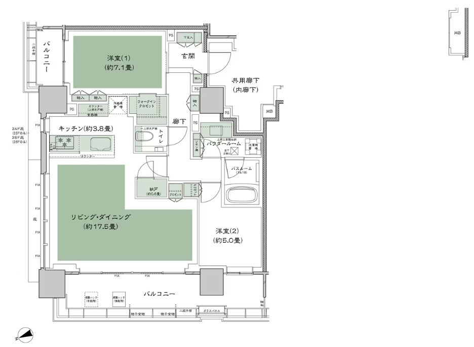
物件概要
| 物件種別 | マンション |
|---|---|
| 築年月(築年数) | 2027年2月 (完成予定) |
| 建物構造 | 鉄筋コンクリート造 一部鉄骨造・地下2階地上34階建 |
| 販売個数(区画数) | 未定 |
| 総戸数/総区画数 | 180戸 |
| 敷地全体面積 | 1,622.16平米 |
| 用途地域 | 準工業 |
| 地目 | 宅地 |
| 土地権利 | 所有権 |
| 建築確認番号 | 第ERI-23039252号(2023年12月27日付)、第ERI-24018385号(2024年10月23日付)、第ERI-25018774号(2025年7月18日付) |
| 施工会社 | 前田建設工業株式会社東京建築支店 |
| 売主 | 住友不動産株式会社 |
| 販売会社 | 売主/住友不動産株式会社 |
設備・条件
- 追い焚き
- 浴室乾燥機
- システムキッチン
- ディスポーザー
- 床暖房
- シングル&DINKS向け
- 内廊下
- オートロック
- 防犯カメラ
- エレベーター
- ごみ出し24時間OK
- 宅配ボックス
- コンシェルジュサービス
- 外断熱
- 免震構造
- 子育てに優しい環境
- スーパー800m以内
- コンビニ400m以内
- 小学校800m以内
- 公園400m以内
- フィットネス施設(プール含む)800m以内
- 複数路線
※最新の状態と異なる場合があります
売りたい不動産をお持ちの方へ
このエリアの所有不動産を査定する
売却査定手続きの流れ、費用相場や注意点など不動産売却について詳しく知りたい方はLIFULL HOME'S 不動産査定へ
シティタワー東京田町の周辺施設
-
買い物
日用品 -
- ローソン 芝浦2丁目店
- セブンイレブン 芝浦ベイワード店
- セブンイレブン 港区芝浦1丁目店
- ローソンストア100 芝浦二丁目店
- 買い物
大型店 -
- ムスブ田町SHOPS&RESTAURANTS
- SUIT SELECT TAMACHI
- グルメ
-
- なか卯 芝浦店
- プロントムスブ田町店
- 牛たん酒場たん之助msb田町店
- むさしの森Dinerムスブ田町店
- 娯楽施設
-
- 東京ポートボウル
- 港区スポーツセンター
- 埠頭少年野球場
- Golf&Fitness Point芝浦
- 役所
公共施設 -
- 港芝四郵便局
- シーバンスN館内郵便局
- 芝一郵便局
- 港芝浦郵便局
- 医療
-
- 社会福祉法人恩賜財団母子愛育会総合母子保健センター愛育病院
- 保育施設
-
- にじのいるか保育園芝浦
- 太陽の子芝浦二丁目保育園
- 港区立しばうら保育園分園
- アンジェリカ田町保育園
- 学校
-
- 港区立芝浜小学校
- 国立東京工業大学附属科学技術高校
- 私立芝国際中学校
- 私立芝国際高校
シティタワー東京田町周辺の物件情報
周辺の問合せ可能な物件
東京都港区の問合せ可能な物件のうち、この物件の周辺にあるものから表示しています
賃貸
-
募集中
- JR山手線 田町駅 徒歩8分
- 11.8万円
- JR山手線 田町駅 徒歩8分
- 東京都港区芝浦2丁目
- 20.6m² / 1K
-
募集中
- パレステュディオ芝浦City
- 11.8万円
- JR山手線 田町駅 徒歩8分
- 東京都港区芝浦2丁目
- 20.6m² / 1K
-
募集中
- スカイコートパレス芝浦
- 11.21万円
- JR京浜東北・根岸線 田町駅 徒歩10分
- 東京都港区芝浦2丁目3-32
- 25.52m² / 1K
-
募集中
- JR京浜東北・根岸線 田町駅 徒歩10分
- 11.21万円
- JR京浜東北・根岸線 田町駅 徒歩10分
- 東京都港区芝浦2丁目3-32
- 25.52m² / 1K
-
募集中
- パークタワー芝浦ベイワード アーバンウイング
- 32.5万円
- JR山手線 田町駅 徒歩8分
- 東京都港区芝浦2丁目
- 68.21m² / 2LDK
-
募集中
- キョウエイハイツ田町
- 15.5万円
- 新交通ゆりかもめ 芝浦ふ頭駅 徒歩9分
- 東京都港区芝浦2丁目2-15
- 41.35m² / 1LDK
-
募集中
- コンフォリア芝浦II
- 23.6万円
- JR山手線 田町駅 徒歩10分
- 東京都港区芝浦2丁目8-3
- 51.5m² / 1LDK
-
募集中
- JR山手線 田町駅 徒歩10分
- 23.6万円
- JR山手線 田町駅 徒歩10分
- 東京都港区芝浦2丁目8-3
- 51.5m² / 1LDK
-
募集中
- シティ田町
- 17.8万円
- JR山手線 田町駅 徒歩11分
- 東京都港区芝浦2丁目
- 46.26m² / 2DK
-
募集中
- JR京浜東北・根岸線 田町駅 徒歩10分
- 13.1万円
- JR京浜東北・根岸線 田町駅 徒歩10分
- 東京都港区海岸3丁目2-6
- 25.9m² / 1K
新築マンション
※完成後1年以上経過した未入居の物件が含まれている場合があります
-
売出し中
- 東京メトロ南北線「麻布十番」駅 徒歩6分
- 未定
- 東京メトロ南北線「麻布十番」駅 徒歩6分
- 東京都港区南麻布二丁目4-51(地名地番)
- 60.17m² / 1LDK・2LDK
-
売出し中
- ジオグランデ白金台
- 5億9800万円
- 東京メトロ南北線 白金台駅 徒歩4分
- 東京都港区白金台3丁目
- 107.69m² / 3LDK
-
売出し中
- 三田ガーデンヒルズ ウエストヒル
- 4億8000万円
- 東京メトロ南北線 麻布十番駅 徒歩5分
- 東京都港区三田1丁目4-60
- 70.68m² / 2LDK
-
売出し中
- 東京メトロ南北線「白金高輪」駅 徒歩7分
- 未定
- 東京メトロ南北線「白金高輪」駅 徒歩7分
- 東京都港区三田五丁目11番3
- 62.08m² / 1K・1LDK・2LDK
-
売出し中
- 都営三田線「三田」駅 徒歩8分
- 未定
- 都営三田線「三田」駅 徒歩8分
- 東京都港区三田二丁目8番3(地番)
- 80.62m² / 2LDK~3LDK
-
売出し中
- リビオタワー品川
- 2億5800万円
- JR山手線 品川駅 徒歩13分
- 東京都港区港南3丁目7
- 71.78m² / 3LDK
-
売出し中
- 麻布台ヒルズレジデンスB
- 2億9500万円
- 東京メトロ南北線 六本木一丁目駅 徒歩3分
- 東京都港区麻布台1丁目32
- 32.68m² / 1K
-
売出し中
- 麻布台ヒルズレジデンスB
- 2億9500万円
- 東京メトロ南北線 六本木一丁目駅 徒歩3分
- 東京都港区麻布台1丁目
- 32.68m² / ワンルーム
-
売出し中
- JR山手線「品川」駅 徒歩13分 (港南口)
- 未定
- JR山手線「品川」駅 徒歩13分 (港南口)
- 東京都港区港南3丁目7-2(地番)
- 103.39m² / 1LDK~3LDK
-
売出し中
- 東京メトロ日比谷線「神谷町」駅 徒歩2分
- 24,000万円~39,000万円
- 東京メトロ日比谷線「神谷町」駅 徒歩2分
- 東京都港区虎ノ門三丁目209-1他(地番)
- 75.13m² / 2LD・K
中古マンション
-
売出し中
- インプレストタワー芝浦エアレジデンス
- 1億3980万円
- JR山手線 田町駅 徒歩8分
- 東京都港区芝浦2丁目
- 55.52m² / 2LDK
-
売出し中
- 秀和田町レジデンス
- 6300万円
- JR山手線 田町駅 徒歩9分
- 東京都港区芝浦2丁目4番6号
- 52.51m² / 1LDK
-
売出し中
- パークタワー芝浦ベイワードオーシャンウィング
- 1億5500万円
- JR山手線 田町駅 徒歩8分
- 東京都港区芝浦2丁目7-11
- 71.64m² / 2SLDK
-
売出し中
- パークタワー芝浦ベイワードオーシャンウイング
- 1億7480万円
- JR山手線 田町駅 徒歩8分
- 東京都港区芝浦2丁目7-11
- 84.41m² / 3LDK
-
売出し中
- サンフル芝浦キャナルオーパス
- 1億4900万円
- JR山手線 田町駅 徒歩11分
- 東京都港区芝浦2丁目3-27
- 72.21m² / 2LDK
-
売出し中
- ブランズタワー芝浦
- 3億2800万円
- JR山手線 田町駅 徒歩9分
- 東京都港区芝浦2丁目
- 80.07m² / 3LDK
-
売出し中
- ブランズタワー芝浦
- 4億5800万円
- JR山手線 田町駅 徒歩8分
- 東京都港区芝浦2丁目
- 103.11m² / 3LDK
-
売出し中
- カテリーナ三田タワースイート
- 3億円
- 都営浅草線 三田駅 徒歩3分
- 東京都港区芝公園4丁目16-2
- 70.31m² / 2LDK
-
売出し中
- グローバルフロントタワー
- 2億7990万円
- 都営三田線 三田駅 徒歩8分
- 東京都港区芝浦1丁目
- 70.18m² / 3SLDK
一戸建て
-
売出し中
- 東麻布2丁目 戸建
- 6億円
- 都営大江戸線 赤羽橋駅 徒歩4分
- 東京都港区東麻布2丁目31-3
- 148.32m² / 2LDK
-
売出し中
- 港区麻布台三丁目 RC造戸建
- 6億5800万円
- 都営大江戸線 麻布十番駅 徒歩8分
- 東京都港区麻布台3丁目
- 209.94m² / 5LDK
-
売出し中
- 港区白金6丁目 一戸建て
- 1億6500万円
- 東京メトロ南北線 白金台駅 徒歩10分
- 東京都港区白金6丁目12
- 123.62m² / 3LDK
-
売出し中
- 港区南麻布4丁目 中古戸建
- 9480万円
- 東京メトロ日比谷線 広尾駅 徒歩6分
- 東京都港区南麻布4丁目
- 81.74m² / 4LDK
-
売出し中
- 港区南麻布4丁目中古戸建
- 1億6750万円
- 東京メトロ日比谷線 広尾駅 徒歩8分
- 東京都港区南麻布4丁目
- 119.65m² / 3SLDK
-
売出し中
- 港区六本木7丁目中古戸建
- 8億2000万円
- 東京メトロ日比谷線 六本木駅 徒歩3分
- 東京都港区六本木7丁目
- 220.57m² / 5LDK
-
売出し中
- 西麻布4丁目中古戸建
- 2億9500万円
- 東京メトロ日比谷線 広尾駅 徒歩7分
- 東京都港区西麻布4丁目
- 101.85m² / 3LDK
-
売出し中
- 赤坂 3階建てTERRACE付き 一戸建て
- 2億円
- 東京メトロ千代田線 赤坂駅 徒歩6分
- 東京都港区赤坂6丁目
- 124.22m² / 2SLDK
-
売出し中
- A HOUSE TOKYO
- 3億6000万円
- 東京メトロ千代田線 乃木坂駅 徒歩12分
- 東京都港区西麻布2丁目
- 136.35m² / 3SLDK
-
売出し中
- 港区赤坂4丁目
- 2億9000万円
- 東京メトロ千代田線 赤坂駅 徒歩6分
- 東京都港区赤坂4丁目
- 120.46m² / 3LDK
注文住宅
※表示価格は延べ床面積約132m²の場合の建物価格の参考値です
-
資料請求受付中
- -
- へーベルハウス
- 【ヘーベルハウス】:ヘーベルハウス総合カタログ
-
資料請求受付中
- 2600万円〜
- 株式会社アイ工務店 東京支店
- 【東京 展示場ご来場者歓迎!】憧れのスキップフロアが叶える大収納【アイ工務店】
-
資料請求受付中
- -
- 積水ハウス
- BRAND BOOK
-
資料請求受付中
- 2000万円〜
- 一条工務店
- 【一条工務店】 建築実例集3冊セット(HOME’S限定)
-
資料請求受付中
- 3200万円〜
- 三井ホーム株式会社
- 三井ホームのご紹介
-
資料請求受付中
- -
- アキュラホーム(AQ Group)
- 「超空間の家」
-
資料請求受付中
- 1868万円〜
- タマホーム株式会社
- 大安心の家シリーズ
-
資料請求受付中
- 3000万円〜
- セキスイハイム
- 【セキスイハイム|平屋】ザ・デザイナーズハイムD1
エリア・駅で絞り込んで探す
賃貸
東京都のシティタワーが含まれるマンション
物件の種類から探す
港区で募集中の物件のみを検索できます
掲載情報に誤りや問題がある場合
LIFULL HOME'Sは「不動産会社」ではなく「情報掲載サイト」です
- ※管理会社の情報はLIFULL HOME'Sでは保持していないためお答えできません。お問合せはお控えください
- ※最新の募集状況は掲載中の不動産会社があれば、不動産会社へ直接お問合せください
掲載情報の訂正依頼 専用ダイヤル
0120-987-243
- 専用ダイヤル受付時間:10:00〜18:00
- ※土日・祝日、臨時休業日は除く
不動産データのご利用について
不動産事業におけるDX、サービスの改善、新規事業開発等をご検討中の方へ不動産データの活用をご提案します。LIFULL HOME'Sで集約した不動産情報や外部データは、不動産事業DX、不正決済防止、ローン審査、事業開発、研究等さまざまな事業でご活用いただいています。詳しくは以下よりご確認ください。
不動産アーカイブご利用アンケートにご協力ください
不動産アーカイブの掲載情報は、LIFULL HOME'S掲載の不動産情報および提携先の不動産情報を統計情報として集積したものであり、その存在や信憑性を保証するものではありません。