このページは物件の広告情報ではありません。
過去にLIFULL HOME'Sへ掲載された不動産情報と提携先の地図情報を元に生成した参考情報です。また、一般から投稿された情報など主観的な情報も含みます。
情報更新日: 2025/12/03
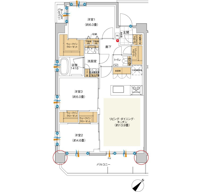
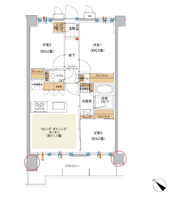
ミオカステーロ大倉山
| 所在地 | 神奈川県横浜市港北区大豆戸町859番3(地番) |
|---|---|
| 交通 |
|
スポンサーリンク
ミオカステーロ大倉山の建物情報
物件概要
| 物件種別 | マンション |
|---|---|
| 築年月(築年数) | 2024年11月 (築2年) |
| 建物構造 | 鉄筋コンクリート造 地上6階建て |
| 総戸数/総区画数 | 31戸 |
| 敷地全体面積 | 989.33m2 |
| 延べ床面積 | 2,508.12m2 |
| 管理人 | 日勤 |
| 用途地域 | 第一種住居 |
| 土地権利 | 所有権 |
| 建築確認番号 | 第R05普及協会00099号(令和5年8月8日) / 開発許可:横浜市建調整指令第2023開1104号(令和5年7月6日) |
| 施工会社 | 山田建設株式会社 |
| 売主 | 山田建設株式会社 |
| 販売会社 | 株式会社自在空間(代理)、株式会社ワールドレジデンシャル(復代理) |
設備・条件
- 追い焚き
- 浴室乾燥機
- IHコンロ
- コンロ三口以上
- システムキッチン
- 食器洗い乾燥機
- 高効率給湯器
- 浄水器・活水器
- 床暖房
- ウォークインクローゼット
- ブロードバンド
- バリアフリー
- 複層ガラス採用(二重サッシ・防犯サッシ等)
- オートロック
- 防犯カメラ
- セキュリティ充実
- エレベーター
- ごみ出し24時間OK
- 宅配ボックス
- 住宅性能評価書
- 環境にやさしい
- 子育てに優しい環境
- スーパー800m以内
- コンビニ400m以内
- 小学校800m以内
- 公園400m以内
- フィットネス施設(プール含む)800m以内
※最新の状態と異なる場合があります
売りたい不動産をお持ちの方へ
このエリアの所有不動産を査定する
売却査定手続きの流れ、費用相場や注意点など不動産売却について詳しく知りたい方はLIFULL HOME'S 不動産査定へ
ミオカステーロ大倉山の周辺施設
-
買い物
日用品 -
- セブンイレブン 横浜大豆戸町店
- ユーコープ 大豆戸店
- ファミリーマート 港北太尾町店
- ヨークマート 大倉山店
- 買い物
大型店 -
- Olympic大倉山店
- 紳士服コナカ 新横浜店
- グルメ
-
- 壱鵠堂新横浜店
- バーミヤン 新横浜店
- モスバーガー 大倉山店
- ラ・オハナ新横浜店
- 娯楽施設
-
- 横浜市港北スポーツセンター第1体育室
- 太尾公園テニスコート
- 太尾公園野球場
- 横浜アリーナサブアリーナ
- 役所
公共施設 -
- 横浜太尾南郵便局
- 港北警察署
- 新横浜三郵便局
- 横浜大倉山郵便局
- 保育施設
-
- 大豆戸どろんこ保育園
- くっくおさんぽ保育園ふとお
- 横浜市太尾保育園
- アスク大倉山保育園
- 学校
-
- 横浜市立大綱小学校
- 横浜市立大豆戸小学校
- 横浜市立大綱中学校
- 横浜市立太尾小学校
ミオカステーロ大倉山周辺の物件情報
周辺の問合せ可能な物件
神奈川県横浜市港北区の問合せ可能な物件のうち、この物件の周辺にあるものから表示しています
賃貸
-
募集中
- ウィステリア弐番館
- 9.8万円
- 東急東横線 大倉山駅 徒歩10分
- 神奈川県横浜市港北区大倉山4丁目6-10
- 45.2m² / 2DK
-
募集中
- ハイム有留
- 7.5万円
- 東急東横線 大倉山駅 徒歩10分
- 神奈川県横浜市港北区大倉山4丁目12-17
- 42.23m² / 2DK
-
募集中
- フェリクス大倉山
- 19.4万円
- 東急東横線 大倉山駅 徒歩12分
- 神奈川県横浜市港北区大倉山4丁目16-2
- 61.61m² / 2LDK
-
募集中
- スウィートウォーレン
- 9.8万円
- 東急東横線 大倉山駅 徒歩8分
- 神奈川県横浜市港北区大倉山4丁目
- 43.74m² / 2DK
-
募集中
- スカイコート大倉山
- 4.59万円
- 東急東横線 大倉山駅 徒歩11分
- 神奈川県横浜市港北区大豆戸町
- 23.43m² / ワンルーム
-
募集中
- ヒロタマンション大倉山
- 4.3万円
- 東急東横線 大倉山駅 徒歩10分
- 神奈川県横浜市港北区大倉山4丁目
- 17.0m² / ワンルーム
-
募集中
- 東急東横線 大倉山駅 徒歩10分
- 11.3万円
- 東急東横線 大倉山駅 徒歩10分
- 神奈川県横浜市港北区大倉山4丁目
- 40.57m² / 1LDK
-
募集中
- レオパレスヴィーブル
- 8.3万円
- 東急東横線 大倉山駅 徒歩11分
- 神奈川県横浜市港北区大豆戸町953
- 20.28m² / 1K
-
募集中
- 東急東横線 大倉山駅 徒歩11分
- 7.7万円
- 東急東横線 大倉山駅 徒歩11分
- 神奈川県横浜市港北区大豆戸町953
- 20.28m² / 1K
-
募集中
- ピュアハイム大倉山
- 12.4万円
- 東急東横線 大倉山駅 徒歩7分
- 神奈川県横浜市港北区大倉山4丁目4-23
- 30.3m² / 1LDK
新築マンション
※完成後1年以上経過した未入居の物件が含まれている場合があります
中古マンション
-
売出し中
- 大倉山ハイム参号棟
- 4990万円
- 東急東横線 大倉山駅 徒歩12分
- 神奈川県横浜市港北区大豆戸町
- 74.16m² / 3LDK
-
売出し中
- ナイスアーバン大倉山
- 4380万円
- 東急東横線 大倉山駅 徒歩10分
- 神奈川県横浜市港北区大倉山4丁目11-36
- 57.02m² / 3LDK
-
売出し中
- 大倉山ハイム 1号棟
- 4999万円
- 東急東横線 大倉山駅 徒歩9分
- 神奈川県横浜市港北区大倉山4丁目
- 82.35m² / 3LDK
-
売出し中
- エレベーター停車階 専用使用権付駐車場「大倉山ハイム1号棟」
- 4999万円
- 東急東横線 大倉山駅 徒歩9分
- 神奈川県横浜市港北区大倉山4丁目5-1
- 82.35m² / 3LDK
-
売出し中
- 大倉山ハイム7号棟
- 4880万円
- 東急東横線 大倉山駅 徒歩13分
- 神奈川県横浜市港北区大豆戸町803-2
- 66.75m² / 3LDK
-
売出し中
- 藤和大倉山コープ
- 3970万円
- 東急東横線 大倉山駅 徒歩10分
- 神奈川県横浜市港北区大豆戸町516-1
- 75.6m² / 3LDK
-
売出し中
- 藤和大倉山コープIII
- 1850万円
- JR横浜線 新横浜駅 徒歩11分
- 神奈川県横浜市港北区大豆戸町785番2
- 49.61m² / 3DK
-
売出し中
- ハイセレサ菊名アクティール
- 5498万円
- 東急東横線 菊名駅 徒歩12分
- 神奈川県横浜市港北区大豆戸町
- 70.4m² / 3LDK
-
売出し中
- ハイセレサ菊名アクティ―ル
- 5498万円
- JR横浜線 菊名駅 徒歩12分
- 神奈川県横浜市港北区大豆戸町
- 70.92m² / 3LDK
-
売出し中
- ナビウス大倉山
- 6100万円
- 東急東横線 大倉山駅 徒歩5分
- 神奈川県横浜市港北区大倉山3丁目
- 73.36m² / 3LDK
一戸建て
-
売出し中
- 港北区大倉山7丁目 新築分譲住宅
- 4990万円
- 東急東横線 大倉山駅 徒歩15分
- 神奈川県横浜市港北区大倉山7丁目
- 81.14m² / 2SLDK
-
売出し中
- 横浜市港北区大倉山6丁目 中古一戸建て
- 6180万円
- 横浜市営地下鉄ブルーライン 新羽駅 徒歩14分
- 神奈川県横浜市港北区大倉山6丁目
- 99.58m² / 3SLDK
-
売出し中
- 港北区篠原北1丁目 新築一戸建て 2号棟
- 7890万円
- 東急東横線 菊名駅 徒歩8分
- 神奈川県横浜市港北区篠原北1丁目
- 96.05m² / 3LDK
-
売出し中
- 港北区篠原北1丁目2期2棟
- 8090万円
- JR横浜線 新横浜駅 徒歩13分
- 神奈川県横浜市港北区篠原北1丁目16-37
- 96.05m² / 3LDK
-
売出し中
- 港北区篠原北1丁目2期2棟
- 8090万円
- JR横浜線 新横浜駅 徒歩13分
- 神奈川県横浜市港北区篠原北1丁目
- 96.05m² / 3LDK
-
売出し中
- JR横浜線「菊名」駅 徒歩8分
- 7890~7890万円
- JR横浜線「菊名」駅 徒歩8分
- 神奈川県横浜市港北区篠原北1丁目
- 96.05m² / 3LDK~3LDK
-
売出し中
- 東急東横線 大倉山駅 徒歩12分
- 7790万円
- 東急東横線 大倉山駅 徒歩12分
- 神奈川県横浜市港北区大曽根台
- 101.02m² / 4LDK
-
売出し中
- 東急東横線 大倉山駅 徒歩12分
- 7990万円
- 東急東横線 大倉山駅 徒歩12分
- 神奈川県横浜市港北区大曽根台
- 105.99m² / 4LDK
-
売出し中
- 新築分譲戸建 新横浜 全2棟 No.1
- 7890万円
- JR横浜線 菊名駅 徒歩8分
- 神奈川県横浜市港北区篠原北1丁目
- 96.05m² / 3LDK
-
売出し中
- 東急東横線 菊名駅 徒歩13分
- 7280万円
- 東急東横線 菊名駅 徒歩13分
- 神奈川県横浜市港北区大豆戸町
- 114.6m² / 3SLDK
注文住宅
※表示価格は延べ床面積約132m²の場合の建物価格の参考値です
-
資料請求受付中
- 1868万円〜
- タマホーム株式会社
- 大安心の家シリーズ
-
資料請求受付中
- -
- アキュラホーム(AQ Group)
- 「超空間の家」
-
資料請求受付中
- -
- 積水ハウス
- BRAND BOOK
-
資料請求受付中
- -
- へーベルハウス
- 【ヘーベルハウス】:ヘーベルハウス総合カタログ
-
資料請求受付中
- 3200万円〜
- ダイワハウス
- 【ダイワハウス】 xevoΣ<ジーヴォシグマ> ~天井高2m72cmの高さというゆとり空間~
-
資料請求受付中
- 2000万円〜
- 一条工務店
- 【一条工務店】 建築実例集3冊セット(HOME’S限定)
-
資料請求受付中
- 2800万円〜
- ミサワホーム株式会社
- 【MISAWA】ミサワホーム代表カタログ3冊セット(HOME'S限定)
-
資料請求受付中
- 2324万円〜
- ヤマト住建株式会社
- 【エネージュLCCM】脱炭素社会へ!住まいのすべての過程でCO2排出量を抑える住宅
-
資料請求受付中
- 3200万円〜
- 三井ホーム株式会社
- 三井ホームのご紹介
-
資料請求受付中
- 3000万円〜
- セキスイハイム
- 【セキスイハイム|平屋】ザ・デザイナーズハイムD1
エリア・駅で絞り込んで探す
賃貸
神奈川県のミオカステーロが含まれるマンション
物件の種類から探す
横浜市港北区で募集中の物件のみを検索できます
掲載情報に誤りや問題がある場合
LIFULL HOME'Sは「不動産会社」ではなく「情報掲載サイト」です
- ※管理会社の情報はLIFULL HOME'Sでは保持していないためお答えできません。お問合せはお控えください
- ※最新の募集状況は掲載中の不動産会社があれば、不動産会社へ直接お問合せください
掲載情報の訂正依頼 専用ダイヤル
0120-987-243
- 専用ダイヤル受付時間:10:00〜18:00
- ※土日・祝日、臨時休業日は除く
不動産データのご利用について
不動産事業におけるDX、サービスの改善、新規事業開発等をご検討中の方へ不動産データの活用をご提案します。LIFULL HOME'Sで集約した不動産情報や外部データは、不動産事業DX、不正決済防止、ローン審査、事業開発、研究等さまざまな事業でご活用いただいています。詳しくは以下よりご確認ください。
不動産アーカイブご利用アンケートにご協力ください
不動産アーカイブの掲載情報は、LIFULL HOME'S掲載の不動産情報および提携先の不動産情報を統計情報として集積したものであり、その存在や信憑性を保証するものではありません。