このページは物件の広告情報ではありません。
過去にLIFULL HOME'Sへ掲載された不動産情報と提携先の地図情報を元に生成した参考情報です。また、一般から投稿された情報など主観的な情報も含みます。
情報更新日: 2026/04/03
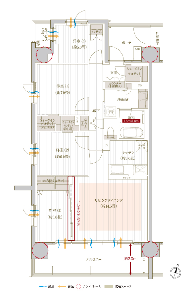
デュオヒルズ長野権堂
| 所在地 | 長野県長野市大字鶴賀字腰巻2261番1他9筆(地番) |
|---|---|
| 交通 |
|
スポンサーリンク
デュオヒルズ長野権堂の建物情報
物件概要
| 物件種別 | マンション |
|---|---|
| 築年月(築年数) | 2025年2月 (築2年) |
| 建物構造 | 鉄筋コンクリート造 地上17階建 |
| 総戸数/総区画数 | 112戸 |
| 敷地全体面積 | 3,078.19m2 |
| 用途地域 | 商業 |
| 土地権利 | 所有権 |
| 建築確認番号 | 第UHEC建確R040634号(令和5年1月4日付) |
| 施工会社 | 大末建設株式会社 |
| 売主 | 株式会社フージャースコーポレーション |
| 販売会社 | 株式会社フージャースコーポレーション(売主) |
設備・条件
- 追い焚き
- システムキッチン
- シングル&DINKS向け
- オートロック
※最新の状態と異なる場合があります
売りたい不動産をお持ちの方へ
デュオヒルズ長野権堂の周辺施設
-
買い物
日用品 -
- 綿半スーパーセンター権堂店
- ダイソー綿半スーパーセンター権堂店
- セブンイレブン 長野問御所店
- セブンイレブン 長野権堂店
- 買い物
大型店 -
- 綿半スーパーセンター 権堂店
- TOiGO
- タビオながの東急店
- ミキハウスながの東急店
- グルメ
-
- らあめん花月嵐長野権堂店
- モスバーガー 長野SBC前店
- イタリアントマトカフェジュニア長野TOiGO店
- ロイヤルホスト 昭和通店
- 娯楽施設
-
- 長野松竹相生座・長野ロキシー1・2
- THE 3RD PLANET 長野大通り店
- 長野グランドシネマズ
- 快活CLUB長野昭和通り店
- 文化施設
-
- 北野カルチュラルセンター
- 信濃教育博物館
- 役所
公共施設 -
- 長野権堂郵便局
- 長野緑郵便局
- 長野鶴賀郵便局
- 善光寺郵便局
- 医療
-
- 中澤産婦人科病院
- 長野医療生活協同組合長野中央病院
- 医療法人淳和会小林病院
- 医療法人公生会竹重病院
- 保育施設
-
- 長野市後町保育園
- 秋葉保育園
- 若葉保育園
- 聖フランシスコ保育園
- 学校
-
- 長野市立鍋屋田小学校
- 国立大学法人信州大学長野(教育)キャンパス
- 長野市立柳町中学校
- 長野市立城山小学校
※学区外の学校が含まれる場合があります。実際の学区は必ず各自治体へご確認ください。
デュオヒルズ長野権堂周辺の物件情報
周辺の問合せ可能な物件
長野県長野市の問合せ可能な物件のうち、この物件の周辺にあるものから表示しています
賃貸
-
募集中
- JR信越本線 長野駅 徒歩13分
- 7.6万円
- JR信越本線 長野駅 徒歩13分
- 長野県長野市大字鶴賀
- 35.87m² / 1LDK
-
募集中
- ヴェルミリオン鶴賀
- 7.5万円
- 長野電鉄長野線 市役所前駅 徒歩2分
- 長野県長野市大字鶴賀1601-5
- 35.87m² / 1LDK
-
募集中
- 山京長野パレス
- 11万円
- JR北陸新幹線 長野駅 徒歩13分
- 長野県長野市大字鶴賀権堂町1437-5
- 72.52m² / 1LDK
-
募集中
- グランドハイツ表参道弐番館
- 13万円
- JR北陸新幹線 長野駅 徒歩15分
- 長野県長野市大字長野東後町21番地
- 74.15m² / 3LDK
-
募集中
- サンマルタンコーポ
- 4万円
- 長野電鉄長野線 市役所前駅 徒歩5分
- 長野県長野市大字鶴賀上千歳町
- 22.0m² / ワンルーム
-
募集中
- グランドハイツ表参道東館
- 12.5万円
- 長野電鉄長野線 権堂駅 徒歩5分
- 長野県長野市大字鶴賀権堂町2395
- 90.0m² / 3LDK
-
募集中
- サンセットプラザ
- 3.2万円
- 長野電鉄長野線 権堂駅 徒歩8分
- 長野県長野市大字鶴賀権堂町
- 19.65m² / 1K
-
募集中
- アメニティ18
- 3.7万円
- 長野電鉄長野線 権堂駅 徒歩4分
- 長野県長野市大字鶴賀
- 23.49m² / 1K
-
募集中
- アパーテル21
- 4.8万円
- 長野電鉄長野線 権堂駅 徒歩2分
- 長野県長野市大字鶴賀田町
- 24.2m² / 1K
-
募集中
- アメニティ18
- 3.7万円
- 長野電鉄長野線 権堂駅 徒歩5分
- 長野県長野市大字鶴賀権堂町
- 24.0m² / 1K
新築マンション
※完成後1年以上経過した未入居の物件が含まれている場合があります
中古マンション
-
売出し中
- ポレスター長野大通り
- 3680万円
- 長野電鉄長野線 権堂駅 徒歩1分
- 長野県長野市大字鶴賀権堂町
- 78.18m² / 2LDK
-
売出し中
- ダイアパレス長野大通り
- 1149万円
- 長野電鉄長野線 権堂駅 徒歩4分
- 長野県長野市大字三輪1320-2
- 35.11m² / 2DK
-
売出し中
- サーパス長野南県
- 3880万円
- JR信越本線 長野駅 徒歩13分
- 長野県長野市大字南長野南県町
- 74.09m² / 3LDK
-
売出し中
- グランドハイツ石堂 7F
- 3390万円
- JR北陸新幹線 長野駅 徒歩6分
- 長野県長野市大字南長野北石堂町
- 94.21m² / 3SLDK
-
売出し中
- サーパス石堂ゲートマークス
- 3890万円
- JR北陸新幹線 長野駅 徒歩8分
- 長野県長野市大字南長野北石堂町1205-1
- 68.24m² / 1SLDK
-
売出し中
- ユニティー石堂
- 350万円
- JR信越本線 長野駅 徒歩5分
- 長野県長野市大字南長野字幅下南石堂町1252-9
- 16.51m² / ワンルーム
-
売出し中
- 第一コーポラス
- 899万円
- 長野電鉄長野線 権堂駅 徒歩9分
- 長野県長野市大字鶴賀東鶴賀町
- 64.53m² / 2SLDK
-
売出し中
- メゾン桜枝町
- 150万円
- 長野電鉄長野線 善光寺下駅 徒歩15分
- 長野県長野市大字長野桜枝町1222-1
- 24.06m² / 1K
一戸建て
-
売出し中
- 長野市横沢町古家付土地
- 3100万円
- JR北陸新幹線 長野駅 徒歩26分
- 長野県長野市大字長野横沢町
- 148.08m² / 5LDK
-
売出し中
- JR北陸新幹線「長野」駅 徒歩15分
- 5,930万円
- JR北陸新幹線「長野」駅 徒歩15分
- 長野県長野市大字鶴賀字屋敷添245-7
- 101.85m² / 4LDK(2号地)
-
売出し中
- リーブルガーデン.S長野箱清水第3全1棟
- 3790万円
- 長野電鉄長野線 善光寺下駅 徒歩16分
- 長野県長野市箱清水2丁目
- 108.47m² / 4LDK
-
売出し中
- 新築戸建 リーブルガーデン箱清水第3
- 3790万円
- 長野電鉄長野線 善光寺下駅 徒歩14分
- 長野県長野市箱清水2丁目
- 108.47m² / 4SLDK
-
売出し中
- 長野電鉄長野線「本郷」駅 徒歩9分
- 4,490万円~4,530万円
- 長野電鉄長野線「本郷」駅 徒歩9分
- 長野県長野市三輪1丁目1091-58他
- 97.72m² / 3LDK(1号地)、4LDK(2号地)
-
売出し中
- 中古戸建 平柴台
- 1600万円
- JR信越本線 長野駅 徒歩22分
- 長野県長野市平柴台
- 74.51m² / 3DK
-
売出し中
- 長野電鉄長野線「本郷」駅 徒歩7分~7分
- 4,850万円~4,880万円
- 長野電鉄長野線「本郷」駅 徒歩7分~7分
- 長野県長野市三輪2丁目22番8他
- 102.68m² / 4LDK(1号地、2号地)
-
売出し中
- 中古戸建 高田
- 2198万円
- 長野電鉄長野線 市役所前駅 徒歩27分
- 長野県長野市大字高田
- 75.35m² / 3LDK
-
売出し中
- 長野市上松2丁目
- 3490万円
- 長野電鉄長野線 本郷駅 徒歩19分
- 長野県長野市上松2丁目155-2
- 108.06m² / 4LDK
-
売出し中
- 中古戸建 三輪2丁目
- 2498万円
- 長野電鉄長野線 桐原駅 徒歩7分
- 長野県長野市三輪2丁目
- 122.11m² / 4LDK
注文住宅
※表示価格は延べ床面積約132m²の場合の建物価格の参考値です
-
資料請求受付中
- 2360万円〜
- JUST PIA HOUSE
- ジャストピアハウスカタログ
-
資料請求受付中
- 3200万円〜
- 大和ハウス
- 【大和ハウス】 xevoΣ<ジーヴォシグマ> ~天井高2m72cmの高さというゆとり空間~
-
資料請求受付中
- 2800万円〜
- アルプスピアホーム
- Hot Pia Letter
-
資料請求受付中
- 3400万円〜
- ミツヤジーホーム株式会社
- 地下室のある家
-
資料請求受付中
- 3000万円〜
- セキスイハイム
- 【セキスイハイム】総合カタログ(heimism)
-
資料請求受付中
- 2800万円〜
- ミサワホーム株式会社
- 【MISAWA】ミサワホーム代表カタログ3冊セット(HOME'S限定)
-
資料請求受付中
- 3120万円〜
- 株式会社日本ハウスホールディングス長野営業所
- クレステージ28「悠華」
-
資料請求受付中
- -
- 積水ハウス
- BRAND BOOK
-
資料請求受付中
- 1600万円〜
- 秀光ビルド 長野店
- 住宅総合カタログ
-
資料請求受付中
- 1868万円〜
- タマホーム株式会社
- 大安心の家シリーズ
エリア・駅で絞り込んで探す
賃貸
長野県のデュオヒルズが含まれるマンション
物件の種類から探す
長野市で募集中の物件のみを検索できます
掲載情報に誤りや問題がある場合
LIFULL HOME'Sは「不動産会社」ではなく「情報掲載サイト」です
- ※管理会社の情報はLIFULL HOME'Sでは保持していないためお答えできません。お問合せはお控えください
- ※最新の募集状況は掲載中の不動産会社があれば、不動産会社へ直接お問合せください
掲載情報の訂正依頼 専用ダイヤル
0120-987-243
- 専用ダイヤル受付時間:10:00〜18:00
- ※土日・祝日、臨時休業日は除く
不動産データのご利用について
不動産事業におけるDX、サービスの改善、新規事業開発等をご検討中の方へ不動産データの活用をご提案します。LIFULL HOME'Sで集約した不動産情報や外部データは、不動産事業DX、不正決済防止、ローン審査、事業開発、研究等さまざまな事業でご活用いただいています。詳しくは以下よりご確認ください。
不動産アーカイブご利用アンケートにご協力ください
不動産アーカイブの掲載情報は、LIFULL HOME'S掲載の不動産情報および提携先の不動産情報を統計情報として集積したものであり、その存在や信憑性を保証するものではありません。