このページは物件の広告情報ではありません。
過去にLIFULL HOME'Sへ掲載された不動産情報と提携先の地図情報を元に生成した参考情報です。また、一般から投稿された情報など主観的な情報も含みます。
情報更新日: 2026/03/27
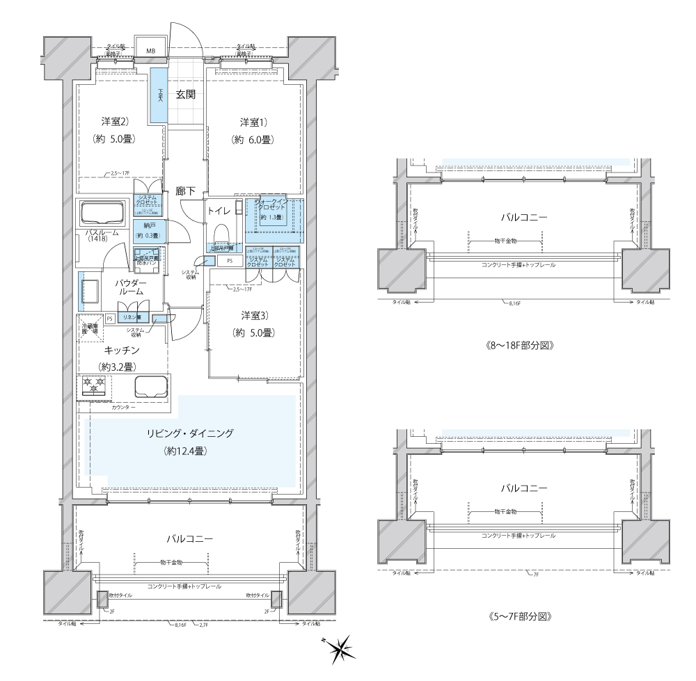
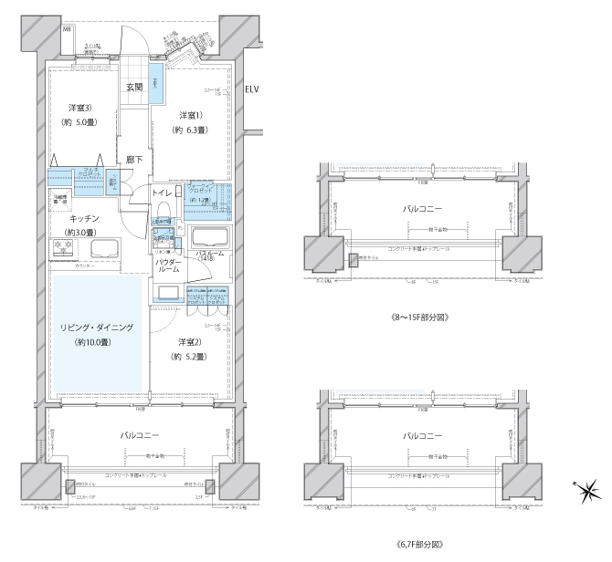
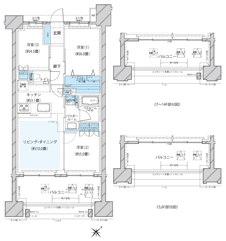
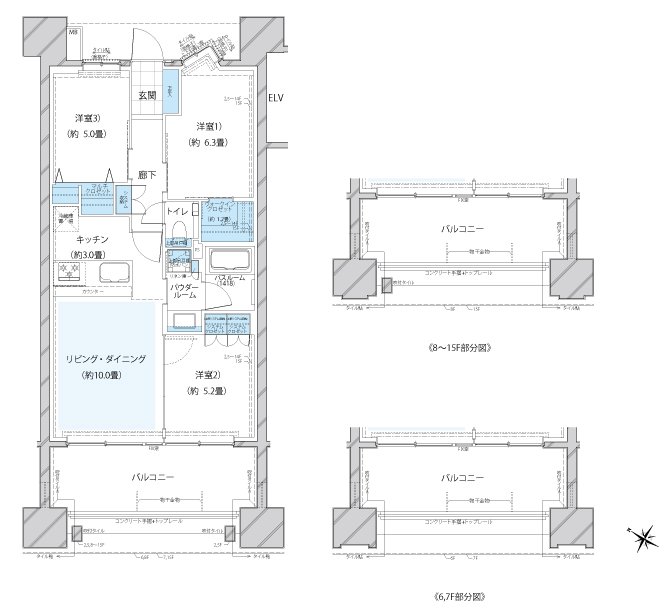
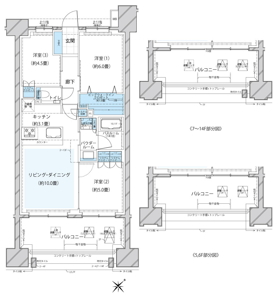
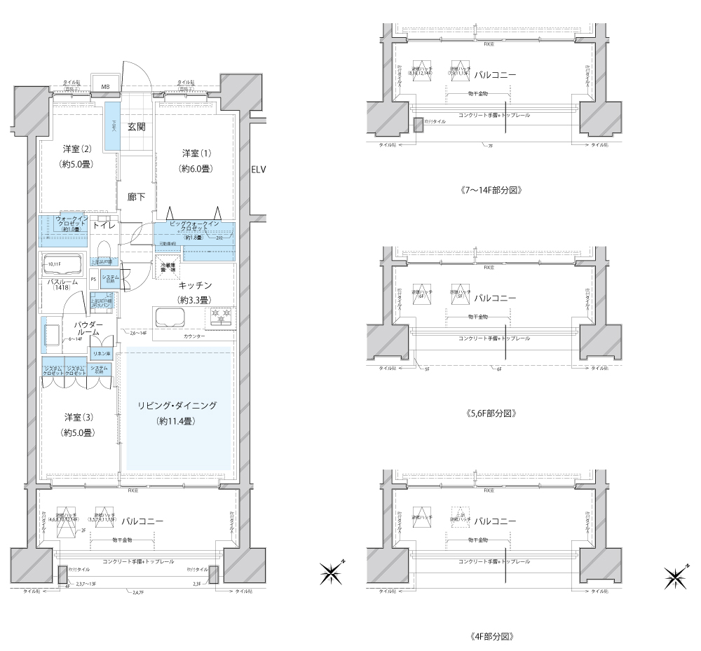
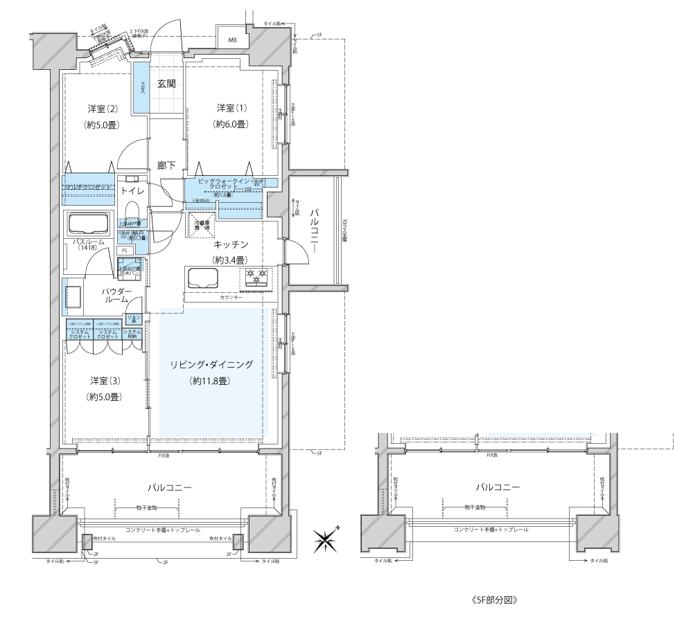
ヴェレーナグラン北赤羽マスタープレイス&マナープレイス
| 所在地 | 東京都北区浮間一丁目4番1(地番)【マスタープレイス】 東京都北区浮間一丁目1番8(地番)【マナープレイス】 |
|---|---|
| 交通 |
|
スポンサーリンク
ヴェレーナグラン北赤羽マスタープレイス&マナープレイスの建物情報
物件概要
| 物件種別 | マンション |
|---|---|
| 築年月(築年数) | 2025年1月 (築2年) |
| 建物構造 | 【マスタープレイス】鉄筋コンクリート造地上19階建 ※一部鉄骨造 【マナープレイス】鉄筋コンクリート造地上15階建 ※一部鉄骨造 |
| 総戸数/総区画数 | 318戸 |
| 敷地全体面積 | 【マスタープレイス】9,315.48m2(登記簿予定・実測・建築確認対象敷地面積)【マナープレイス】2,186.39m2 (登記簿予定・実測・建築確認対象敷地面積) |
| 用途地域 | 工業 |
| 土地権利 | 所有権 |
| 建築確認番号 | 【マスタープレイス】JCIA確認S22第00037号[2022年(令和4年)7月25日付]【マナープレイス】JCIA確認S22第00038号[2022年(令和4年)7月14日付] |
| 施工会社 | 株式会社長谷工コーポレーション |
| 売主 | 大和地所レジデンス株式会社 |
| 販売会社 | 大和地所レジデンス株式会社(売主) |
設備・条件
- 追い焚き
- 浴室乾燥機
- システムキッチン
- 食器洗い乾燥機
- 高効率給湯器
- 浄水器・活水器
- 床暖房
- ウォークインクローゼット
- ブロードバンド
- 複層ガラス採用(二重サッシ・防犯サッシ等)
- オートロック
- 防犯カメラ
- セキュリティ充実
- エレベーター
- ごみ出し24時間OK
- ペット用施設
- キッズルーム
- 宅配ボックス
- デザイナーズ
- 住宅性能評価書
- 環境にやさしい
- 子育てに優しい環境
- スーパー800m以内
- 小学校800m以内
- 公園400m以内
※最新の状態と異なる場合があります
売りたい不動産をお持ちの方へ
このエリアの所有不動産を査定する
売却査定手続きの流れ、費用相場や注意点など不動産売却について詳しく知りたい方はLIFULL HOME'S 不動産査定へ
ヴェレーナグラン北赤羽マスタープレイス&マナープレイスの周辺施設
-
買い物
日用品 -
- ファミリーマート 浮間一丁目店
- Can★Do北赤羽店
- ライフ 北赤羽店
- どらっぐぱぱす浮間店
- 買い物
大型店 -
- ファッションセンターしまむら 浮間店
- グルメ
-
- 松屋 北赤羽店
- すき家 北赤羽駅浮間口店
- マクドナルド 北赤羽駅前店
- CoCo壱番屋 JR北赤羽駅前店
- 娯楽施設
-
- 赤羽台四丁目公園
- 川口市浮間ゴルフ場
- 新荒川大橋サッカー場
- 役所
公共施設 -
- 赤羽北二郵便局
- 北浮間郵便局
- 北浮間二郵便局
- 北区立赤羽北図書館
- 医療
-
- 医療法人社団博栄会浮間中央病院
- 公益社団法人地域医療振興協会東京北医療センター
- 保育施設
-
- 北区立浮間さくら草保育園
- 浮間保育園
- うきま絆保育園
- うきま絆第二保育園
- 学校
-
- 北区立浮間小学校
- 北区立袋小学校
- 北区立西浮間小学校
- 東京都立桐ヶ丘高校
※学区外の学校が含まれる場合があります。実際の学区は必ず各自治体へご確認ください。
ヴェレーナグラン北赤羽マスタープレイス&マナープレイス周辺の物件情報
周辺の問合せ可能な物件
東京都北区の問合せ可能な物件のうち、この物件の周辺にあるものから表示しています
賃貸
-
募集中
- JR埼京線 北赤羽駅 徒歩4分
- 7.6万円
- JR埼京線 北赤羽駅 徒歩4分
- 東京都北区浮間1丁目5-37
- 21.11m² / 1K
-
募集中
- JR埼京線 北赤羽駅 徒歩4分
- 7.3万円
- JR埼京線 北赤羽駅 徒歩4分
- 東京都北区浮間1丁目6-20
- 29.16m² / 2K
-
募集中
- 永山コーポ
- 7.5万円
- JR埼京線 北赤羽駅 徒歩2分
- 東京都北区浮間1丁目
- 25.0m² / 2K
-
募集中
- JR埼京線 北赤羽駅 徒歩1分
- 7万円
- JR埼京線 北赤羽駅 徒歩1分
- 東京都北区浮間1丁目1-7
- 25.0m² / 2K
-
募集中
- ソラーナ北赤羽
- 6.8万円
- JR埼京線 北赤羽駅 徒歩2分
- 東京都北区浮間1丁目1-15
- 15.56m² / 1K
-
募集中
- JR埼京線 北赤羽駅 徒歩2分
- 6.8万円
- JR埼京線 北赤羽駅 徒歩2分
- 東京都北区浮間1丁目
- 15.56m² / 1K
-
募集中
- スプラウト北赤羽
- 8.9万円
- JR埼京線 北赤羽駅 徒歩3分
- 東京都北区浮間1丁目
- 26.16m² / 1K
-
募集中
- JR埼京線 北赤羽駅 徒歩3分
- 8.9万円
- JR埼京線 北赤羽駅 徒歩3分
- 東京都北区浮間1丁目7-5
- 26.16m² / 1K
-
募集中
- JR埼京線 北赤羽駅 徒歩4分
- 12.4万円
- JR埼京線 北赤羽駅 徒歩4分
- 東京都北区浮間3丁目29-10
- 54.31m² / 2LDK
-
募集中
- ライブ赤羽
- 12.1万円
- JR埼京線 北赤羽駅 徒歩4分
- 東京都北区浮間3丁目
- 55.2m² / 2LDK
新築マンション
※完成後1年以上経過した未入居の物件が含まれている場合があります
-
売出し中
- JR京浜東北・根岸線「赤羽」駅 徒歩7分
- 未定
- JR京浜東北・根岸線「赤羽」駅 徒歩7分
- 東京都北区赤羽南二丁目199番他(地番)
- 80.21m² / 1LD・K+2S~4LD・K
-
売出し中
- JR京浜東北・根岸線「赤羽」駅 徒歩8分
- 11,000万円~14,300万円
- JR京浜東北・根岸線「赤羽」駅 徒歩8分
- 東京都北区神谷二丁目51番1(地番)
- 72.62m² / 1LD・K+2S~3LD・K
-
売出し中
- JR京浜東北・根岸線「王子」駅 徒歩5分
- 未定
- JR京浜東北・根岸線「王子」駅 徒歩5分
- 東京都北区王子本町一丁目4番1(地番)
- 99.06m² / 1LDK~3LDK
-
売出し中
- JR京浜東北・根岸線 東十条駅 徒歩5分
- 7440万円
- JR京浜東北・根岸線 東十条駅 徒歩5分
- 東京都北区東十条4丁目8-12
- 55.98m² / 2LDK
-
売出し中
- JR京浜東北・根岸線「赤羽」駅 徒歩6分
- 未定
- JR京浜東北・根岸線「赤羽」駅 徒歩6分
- 東京都北区赤羽二丁目3番21、23(地番)
- 127.06m² / 1LDK~3LDK
中古マンション
-
売出し中
- クリオレジダンス北赤羽
- 6780万円
- JR埼京線 北赤羽駅 徒歩3分
- 東京都北区浮間1丁目1-21
- 75.75m² / 3LDK
-
売出し中
- アクトピア北赤羽参番館
- 5780万円
- JR埼京線 北赤羽駅 徒歩2分
- 東京都北区赤羽北2丁目
- 65.7m² / 2LDK
-
売出し中
- アクトピア北赤羽四番館
- 7680万円
- JR埼京線 北赤羽駅 徒歩4分
- 東京都北区赤羽北2丁目7
- 76.76m² / 3LDK
-
売出し中
- 2022年竣工 北赤羽駅3分ヴェレーナグラン赤羽北フロント
- 7990万円
- JR埼京線 北赤羽駅 徒歩3分
- 東京都北区赤羽北2丁目
- 68.68m² / 3LDK
-
売出し中
- ソルフェスタ赤羽
- 5499万円
- JR埼京線 北赤羽駅 徒歩5分
- 東京都北区赤羽北1丁目15-5
- 65.54m² / 3LDK
-
売出し中
- ソルフェスタ赤羽
- 5499万円
- JR埼京線 北赤羽駅 徒歩5分
- 東京都北区赤羽北1丁目
- 65.54m² / 3LDK
-
売出し中
- BLANCNOIR Kita-Akabane
- 2480万円
- JR埼京線 北赤羽駅 徒歩2分
- 東京都北区赤羽北2丁目1661番地2、1661番地4
- 24.04m² / 1K
-
売出し中
- ディアハイム赤羽
- 4190万円
- JR埼京線 北赤羽駅 徒歩6分
- 東京都北区赤羽北1丁目18-1
- 62.26m² / 3LDK
一戸建て
-
売出し中
- JR埼京線 北赤羽駅 徒歩8分
- 6980万円
- JR埼京線 北赤羽駅 徒歩8分
- 東京都北区浮間1丁目
- 102.63m² / 3SLDK
-
売出し中
- JR埼京線 北赤羽駅 徒歩8分
- 7280万円
- JR埼京線 北赤羽駅 徒歩8分
- 東京都北区浮間1丁目
- 105.87m² / 3SLDK
-
売出し中
- JR埼京線 北赤羽駅 徒歩9分
- 6580万円
- JR埼京線 北赤羽駅 徒歩9分
- 東京都北区浮間2丁目
- 100.02m² / 3SLDK
-
売出し中
- LDK19帖「岩淵町Selection」
- 6780万円
- 東京メトロ南北線 赤羽岩淵駅 徒歩5分
- 東京都北区岩淵町
- 92.58m² / 2SLDK
-
売出し中
- 北区赤羽西6丁目 一戸建て
- 5990万円
- 都営三田線 本蓮沼駅 徒歩12分
- 東京都北区赤羽西6丁目24
- 83.61m² / 4LDK
-
売出し中
- 北区赤羽西4丁目不動産
- 7300万円
- JR埼京線 赤羽駅 徒歩8分
- 東京都北区赤羽西4丁目28-15
- 100.1m² / 4LDK
-
売出し中
- 北区岩渕町
- 6790万円
- 東京メトロ南北線 赤羽岩淵駅 徒歩7分
- 東京都北区岩淵町
- 56.33m² / 2SLDK
-
売出し中
- 岩淵町 中古戸建
- 6790万円
- 東京メトロ南北線 赤羽岩淵駅 徒歩7分
- 東京都北区岩淵町
- 80.94m² / 2SLDK
-
売出し中
- 岩淵町 中古戸建
- 5680万円
- 東京メトロ南北線 赤羽岩淵駅 徒歩7分
- 東京都北区岩淵町
- 73.81m² / 2SLDK
-
売出し中
- 北区赤羽西4丁目 新築戸建限定1棟
- 4180万円
- JR京浜東北・根岸線 赤羽駅 徒歩12分
- 東京都北区赤羽西4丁目
- 43.13m² / 2LDK
エリア・駅で絞り込んで探す
東京都のヴェレーナグランが含まれるマンション
物件の種類から探す
北区で募集中の物件のみを検索できます
掲載情報に誤りや問題がある場合
LIFULL HOME'Sは「不動産会社」ではなく「情報掲載サイト」です
- ※管理会社の情報はLIFULL HOME'Sでは保持していないためお答えできません。お問合せはお控えください
- ※最新の募集状況は掲載中の不動産会社があれば、不動産会社へ直接お問合せください
掲載情報の訂正依頼 専用ダイヤル
0120-987-243
- 専用ダイヤル受付時間:10:00〜18:00
- ※土日・祝日、臨時休業日は除く
不動産データのご利用について
不動産事業におけるDX、サービスの改善、新規事業開発等をご検討中の方へ不動産データの活用をご提案します。LIFULL HOME'Sで集約した不動産情報や外部データは、不動産事業DX、不正決済防止、ローン審査、事業開発、研究等さまざまな事業でご活用いただいています。詳しくは以下よりご確認ください。
不動産アーカイブご利用アンケートにご協力ください
不動産アーカイブの掲載情報は、LIFULL HOME'S掲載の不動産情報および提携先の不動産情報を統計情報として集積したものであり、その存在や信憑性を保証するものではありません。