このページは物件の広告情報ではありません。
過去にLIFULL HOME'Sへ掲載された不動産情報と提携先の地図情報を元に生成した参考情報です。また、一般から投稿された情報など主観的な情報も含みます。
情報更新日: 2026/04/03
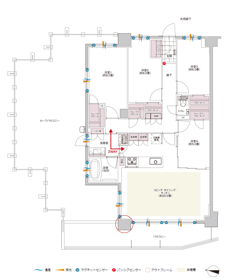
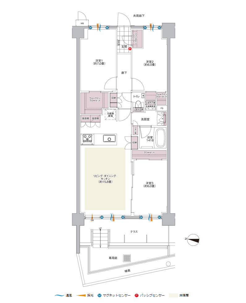
ミオカステーロ鎌倉大船II
スポンサーリンク
ミオカステーロ鎌倉大船IIの建物情報
物件概要
| 物件種別 | マンション |
|---|---|
| 築年月(築年数) | 2019年2月 (築8年) |
| 建物構造 | 鉄筋コンクリート造 地上7階建 |
| 総戸数/総区画数 | 25戸 |
| 敷地全体面積 | 1009.35m2 |
| 延べ床面積 | 2257.09m2 |
| 管理人 | 日勤 |
| 用途地域 | 準工業 |
| 土地権利 | 所有権 |
| 建築確認番号 | 第H29普及協会00245号(H30.3.12) |
| 施工会社 | 山田建設株式会社 |
| 売主 | 山田建設株式会社 |
| 販売会社 | 株式会社自在空間(代理) |
設備・条件
- 追い焚き
- 浴室乾燥機
- 浴室1.6×2.0m以上
- IHコンロ
- コンロ三口以上
- システムキッチン
- 食器洗い乾燥機
- 高効率給湯器
- 浄水器・活水器
- 床暖房
- ウォークインクローゼット
- ブロードバンド
- バリアフリー
- 複層ガラス採用(二重サッシ・防犯サッシ等)
- オートロック
- 防犯カメラ
- セキュリティ充実
- エレベーター
- ごみ出し24時間OK
- 宅配ボックス
- 住宅性能評価書
- 環境にやさしい
- スーパー800m以内
- コンビニ400m以内
- 総合病院800m以内
- 公園400m以内
- 複数路線
※最新の状態と異なる場合があります
売りたい不動産をお持ちの方へ
このエリアの所有不動産を査定する
売却査定手続きの流れ、費用相場や注意点など不動産売却について詳しく知りたい方はLIFULL HOME'S 不動産査定へ
ミオカステーロ鎌倉大船IIの周辺施設
-
買い物
日用品 -
- セブンイレブン 鎌倉大船6丁目店
- ファミリーマート 大船谷之前店
- ファミリーマート 大船二丁目店
- ダイソー大船松竹SC店
- 買い物
大型店 -
- ハニーズ イトーヨーカドー大船店
- ファッションセンターしまむら 西友大船店
- マックハウス 西友大船店
- 靴下屋 ルミネウィング大船店
- グルメ
-
- デニーズ 大船店
- サイゼリヤ 大船松竹SC店
- リンガーハット イトーヨーカドー大船店
- タリーズコーヒーイトーヨーカドー大船店
- 娯楽施設
-
- 快活CLUB大船駅前店
- 岩瀬下関防災公園
- 役所
公共施設 -
- 大船警察署
- 鎌倉大船三郵便局
- 鎌倉市大船図書館
- 大船郵便局
- 医療
-
- 社会医療法人財団互恵会大船中央病院
- 保育施設
-
- 清心保育園
- おおぞら幼稚園
- 聖アンナの園
- プレップおおぞら保育園
- 学校
-
- 鎌倉市立大船中学校
- 私立鎌倉女子大学
- 鎌倉市立大船小学校
- 鎌倉市立小坂小学校
※学区外の学校が含まれる場合があります。実際の学区は必ず各自治体へご確認ください。
ミオカステーロ鎌倉大船II周辺の物件情報
周辺の問合せ可能な物件
神奈川県鎌倉市の問合せ可能な物件のうち、この物件の周辺にあるものから表示しています
賃貸
-
募集中
- JR東海道本線 大船駅 徒歩10分
- 8.4万円
- JR東海道本線 大船駅 徒歩10分
- 神奈川県鎌倉市大船5丁目
- 27.04m² / 1K
-
募集中
- エクセラ鎌倉
- 8.3万円
- JR東海道本線 大船駅 徒歩10分
- 神奈川県鎌倉市大船5丁目4-20
- 27.04m² / 1K
-
募集中
- ラヴィエ鎌倉大船
- 10.5万円
- JR東海道本線 大船駅 徒歩11分
- 神奈川県鎌倉市大船6丁目5-63
- 46.55m² / 1LDK
-
募集中
- JR京浜東北・根岸線 大船駅 徒歩9分
- 7.6万円
- JR京浜東北・根岸線 大船駅 徒歩9分
- 神奈川県鎌倉市大船6丁目3-5
- 20.1m² / ワンルーム
-
募集中
- SACRAS KAMAKURA A棟
- 7.6万円
- JR京浜東北・根岸線 大船駅 徒歩9分
- 神奈川県鎌倉市大船6丁目3-5
- 20.1m² / ワンルーム
-
募集中
- 第1オキタハイム
- 5.5万円
- JR京浜東北・根岸線 大船駅 徒歩13分
- 神奈川県鎌倉市大船6丁目
- 29.74m² / 2DK
-
募集中
- タウンハイツ大船
- 3.9万円
- JR東海道本線 大船駅 徒歩15分
- 神奈川県鎌倉市大船6丁目
- 16.2m² / 1K
-
募集中
- JR京浜東北・根岸線 大船駅 徒歩15分
- 9.8万円
- JR京浜東北・根岸線 大船駅 徒歩15分
- 神奈川県鎌倉市大船6丁目5-43
- 74.0m² / 4DK
-
募集中
- ジャパンビル大船
- 9.8万円
- JR京浜東北・根岸線 大船駅 徒歩15分
- 神奈川県鎌倉市大船6丁目5-43
- 74.0m² / 4DK
-
募集中
- JR東海道本線 大船駅 徒歩18分
- 4.1万円
- JR東海道本線 大船駅 徒歩18分
- 神奈川県鎌倉市大船6丁目
- 17.01m² / 1K
新築マンション
※完成後1年以上経過した未入居の物件が含まれている場合があります
中古マンション
-
売出し中
- ナイスパークステイツ鎌倉大船
- 5999万円
- 湘南モノレール 大船駅 徒歩12分
- 神奈川県鎌倉市大船5丁目2-17
- 71.73m² / 3LDK
-
売出し中
- アスティオス鎌倉岩瀬
- 5790万円
- JR京浜東北・根岸線 大船駅 徒歩9分
- 神奈川県鎌倉市岩瀬1丁目4-10
- 67.46m² / 3LDK
-
売出し中
- Refrise鎌倉岩瀬
- 3790万円
- JR東海道本線 大船駅 徒歩14分
- 神奈川県鎌倉市岩瀬1丁目
- 78.59m² / 3LDK
-
売出し中
- レーベンハイム鎌倉マナーハウス
- 3790万円
- JR東海道本線 大船駅 バス15分 今泉下車 徒歩4分
- 神奈川県鎌倉市岩瀬925
- 67.46m² / 3LDK
-
売出し中
- DIKマンション大船
- 3190万円
- JR東海道本線 大船駅 徒歩5分
- 神奈川県鎌倉市岡本2丁目
- 61.3m² / 2LDK
-
売出し中
- DIKマンション大船
- 3190万円
- JR東海道本線 大船駅 徒歩5分
- 神奈川県鎌倉市岡本2丁目
- 61.3m² / 2LDK
-
売出し中
- DIKマンション大船
- 3190万円
- JR東海道本線 大船駅 徒歩5分
- 神奈川県鎌倉市岡本
- 61.3m² / 2LDK
-
売出し中
- カマクラ大船コーポ
- 2898万円
- JR横須賀線 大船駅 徒歩4分
- 神奈川県鎌倉市岡本1丁目
- 61.98m² / 2LDK
一戸建て
-
売出し中
- 新築一戸建 鎌倉市大船4丁目 3号棟
- 4580万円
- JR東海道本線 大船駅 徒歩14分
- 神奈川県鎌倉市大船4丁目
- 90.71m² / 2SLDK
-
売出し中
- コンフォート大船4丁目 新築一戸建て 1号棟
- 4580万円
- JR京浜東北・根岸線 大船駅 徒歩14分
- 神奈川県鎌倉市大船4丁目
- 90.71m² / 2SLDK
-
売出し中
- JR東海道本線 大船駅 徒歩14分
- 4580万円
- JR東海道本線 大船駅 徒歩14分
- 神奈川県鎌倉市大船4丁目
- 90.71m² / 2SLDK
-
売出し中
- JR東海道本線 大船駅 徒歩18分
- 1980万円
- JR東海道本線 大船駅 徒歩18分
- 神奈川県鎌倉市大船6丁目
- 110.13m² / 4LDK
-
売出し中
- JR東海道本線 大船駅 徒歩20分
- 2980万円
- JR東海道本線 大船駅 徒歩20分
- 神奈川県鎌倉市大船
- 56.28m² / 3DK
-
売出し中
- 鎌倉市大船4丁目 新築戸建 全4棟1号棟
- 5580万円
- JR東海道本線 大船駅 徒歩16分
- 神奈川県鎌倉市大船4丁目
- 99.36m² / 3SLDK
-
売出し中
- 鎌倉市大船4丁目 新築戸建 全4棟2号棟
- 5480万円
- JR東海道本線 大船駅 徒歩16分
- 神奈川県鎌倉市大船4丁目
- 102.09m² / 2SLDK
-
売出し中
- 鎌倉市大船4丁目 新築戸建 全4棟4号棟
- 5380万円
- JR東海道本線 大船駅 徒歩16分
- 神奈川県鎌倉市大船4丁目
- 100.01m² / 2SLDK
-
売出し中
- 鎌倉市大船4丁目 新築戸建 全4棟 2号棟
- 5280万円
- JR東海道本線 大船駅 徒歩16分
- 神奈川県鎌倉市大船4丁目
- 102.09m² / 2SLDK
-
売出し中
- 鎌倉市大船4丁目 新築戸建 全4棟 1号棟
- 5380万円
- JR東海道本線 大船駅 徒歩16分
- 神奈川県鎌倉市大船4丁目
- 99.36m² / 3SLDK
注文住宅
※表示価格は延べ床面積約132m²の場合の建物価格の参考値です
-
資料請求受付中
- 3400万円〜
- へーベルハウス
- 【ヘーベルハウス】:ヘーベルハウス総合カタログ
-
資料請求受付中
- -
- アキュラホーム(AQ Group)
- 「超空間の家」
-
資料請求受付中
- 3000万円〜
- セキスイハイム
- 【セキスイハイム】総合カタログ(heimism)
-
資料請求受付中
- 3200万円〜
- 大和ハウス
- 【大和ハウス】 xevoΣ<ジーヴォシグマ> ~天井高2m72cmの高さというゆとり空間~
-
資料請求受付中
- 2000万円〜
- 一条工務店
- 【一条工務店】 建築実例集3冊セット(HOME’S限定)
-
資料請求受付中
- 2800万円〜
- ミサワホーム株式会社
- 【MISAWA】ミサワホーム代表カタログ3冊セット(HOME'S限定)
-
資料請求受付中
- -
- 積水ハウス
- BRAND BOOK
-
資料請求受付中
- 1868万円〜
- タマホーム株式会社
- 大安心の家シリーズ
エリア・駅で絞り込んで探す
神奈川県のミオカステーロが含まれるマンション
物件の種類から探す
鎌倉市で募集中の物件のみを検索できます
掲載情報に誤りや問題がある場合
LIFULL HOME'Sは「不動産会社」ではなく「情報掲載サイト」です
- ※管理会社の情報はLIFULL HOME'Sでは保持していないためお答えできません。お問合せはお控えください
- ※最新の募集状況は掲載中の不動産会社があれば、不動産会社へ直接お問合せください
掲載情報の訂正依頼 専用ダイヤル
0120-987-243
- 専用ダイヤル受付時間:10:00〜18:00
- ※土日・祝日、臨時休業日は除く
不動産データのご利用について
不動産事業におけるDX、サービスの改善、新規事業開発等をご検討中の方へ不動産データの活用をご提案します。LIFULL HOME'Sで集約した不動産情報や外部データは、不動産事業DX、不正決済防止、ローン審査、事業開発、研究等さまざまな事業でご活用いただいています。詳しくは以下よりご確認ください。
不動産アーカイブご利用アンケートにご協力ください
不動産アーカイブの掲載情報は、LIFULL HOME'S掲載の不動産情報および提携先の不動産情報を統計情報として集積したものであり、その存在や信憑性を保証するものではありません。