このページは物件の広告情報ではありません。
過去にLIFULL HOME'Sへ掲載された不動産情報と提携先の地図情報を元に生成した参考情報です。また、一般から投稿された情報など主観的な情報も含みます。
情報更新日: 2026/04/02
レーベン長岡南町LEXIS
スポンサーリンク
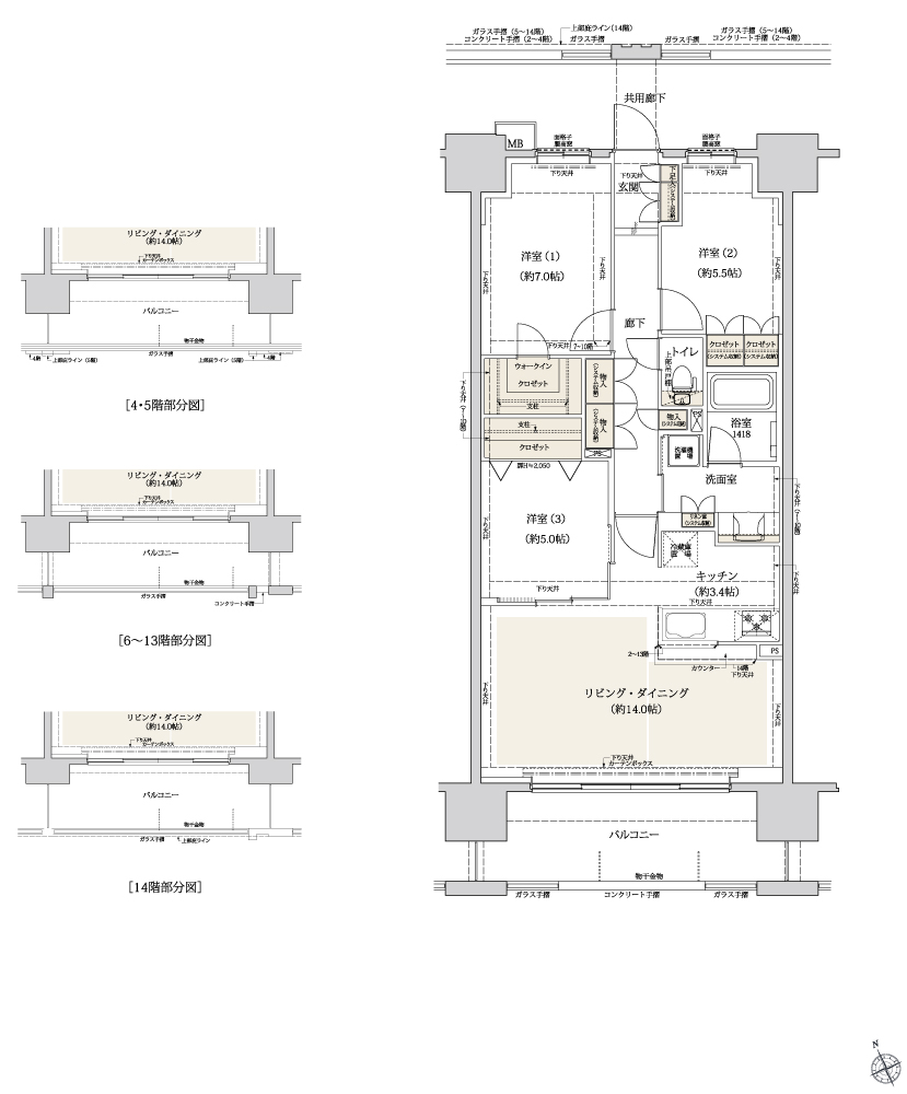
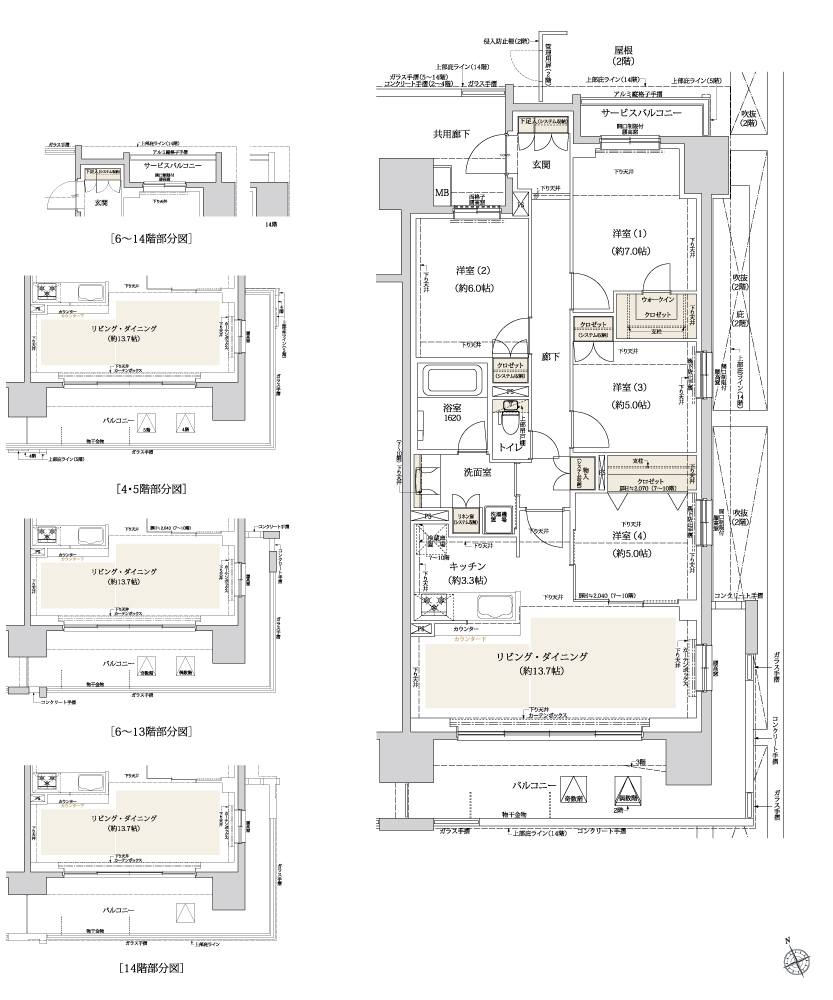
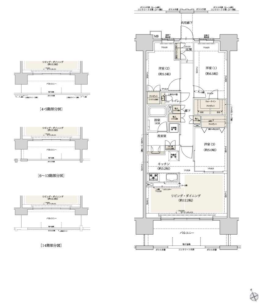
レーベン長岡南町LEXISの建物一覧
レーベン長岡南町LEXISの建物情報
物件概要
| 物件種別 | マンション |
|---|---|
| 築年月(築年数) | 2019年8月 (築7年) |
| 建物構造 | 鉄筋コンクリート造地上14階建 |
| 総戸数/総区画数 | 78戸 |
| 敷地全体面積 | 2,622.75m2 |
| 用途地域 | 近隣商業 |
| 土地権利 | 所有権 |
| 建築確認番号 | 完成済のため省略 |
| 施工会社 | 株式会社加賀田組 新潟支店 |
| 売主 | 株式会社タカラレーベン |
| 販売会社 | 株式会社タカラレーベン(売主) |
設備・条件
- 追い焚き
- システムキッチン
- シングル&DINKS向け
- オートロック
※最新の状態と異なる場合があります
売りたい不動産をお持ちの方へ
このエリアの所有不動産を査定する
売却査定手続きの流れ、費用相場や注意点など不動産売却について詳しく知りたい方はLIFULL HOME'S 不動産査定へ
レーベン長岡南町LEXISの周辺施設
-
買い物
日用品 -
- セブンイレブン 長岡旭町店
- ファミリーマート 長岡弓町店
- セブンイレブン アオーレ長岡店
- Can★Do CoCoLo長岡店
- 買い物
大型店 -
- 無印良品 CoCoLo長岡店
- 靴下屋 CoCoLo長岡店
- サンキ 長岡駅東口店
- E・PLAZA
- グルメ
-
- モスバーガー アオーレ長岡店
- ミスタードーナツ CoCoLo長岡ショップ
- スターバックスコーヒーCoCoLo長岡店
- プロントCoCoLo長岡店
- 娯楽施設
-
- 長岡市民防災公園
- シティホールプラザアオーレ長岡
- 文化施設
-
- 如是蔵博物館
- 役所
公共施設 -
- 長岡市役所
- 長岡市役所大手通庁舎
- 長岡柳原郵便局
- 長岡四郎丸郵便局
- 保育施設
-
- 南部保育園
- 認定こども園東部保育園
- 東部どんぐり保育園
- 長生保育園
- 学校
-
- 長岡市立南中学校
- 長岡市立千手小学校
- 長岡市立四郎丸小学校
- 私立帝京長岡高校
※学区外の学校が含まれる場合があります。実際の学区は必ず各自治体へご確認ください。
レーベン長岡南町LEXIS周辺の物件情報
周辺の問合せ可能な物件
新潟県長岡市の問合せ可能な物件のうち、この物件の周辺にあるものから表示しています
賃貸
-
募集中
- エテルノ ドス
- 9万円
- JR上越新幹線 長岡駅 徒歩11分
- 新潟県長岡市南町1丁目9-23
- 41.68m² / 1LDK
-
募集中
- JR上越新幹線 長岡駅 徒歩9分
- 9万円
- JR上越新幹線 長岡駅 徒歩9分
- 新潟県長岡市南町1丁目9番23号
- 41.68m² / 1LDK
-
募集中
- 南スマイル
- 6.2万円
- JR上越新幹線 長岡駅 徒歩10分
- 新潟県長岡市南町1丁目
- 44.86m² / 1DK
-
募集中
- JR信越本線 長岡駅 徒歩15分
- 6.2万円
- JR信越本線 長岡駅 徒歩15分
- 新潟県長岡市南町1丁目3-11
- 44.86m² / 1DK
-
募集中
- 南町フラッツ
- 6.7万円
- JR上越線 長岡駅 徒歩9分
- 新潟県長岡市南町2丁目
- 40.56m² / 1LDK
-
募集中
- 旭町いづみプラザ
- 6万円
- JR信越本線 長岡駅 徒歩6分
- 新潟県長岡市旭町2丁目
- 51.07m² / 2DK
-
募集中
- チサンマンション旭町
- 6万円
- JR上越新幹線 長岡駅 南町1丁目下車 徒歩8分
- 新潟県長岡市旭町2丁目3-7
- 31.88m² / ワンルーム
-
募集中
- ラレド弓町
- 6.3万円
- JR上越新幹線 長岡駅 徒歩5分
- 新潟県長岡市弓町2丁目
- 47.0m² / 1LDK
-
募集中
- JR信越本線 長岡駅 徒歩5分
- 6.1万円
- JR信越本線 長岡駅 徒歩5分
- 新潟県長岡市殿町1丁目2番9
- 30.22m² / 1K
-
募集中
- パークハイツ長岡
- 6.1万円
- JR信越本線 長岡駅 徒歩7分
- 新潟県長岡市殿町1丁目2-9
- 30.22m² / 1K
新築マンション
※完成後1年以上経過した未入居の物件が含まれている場合があります
中古マンション
-
売出し中
- サンクレイドル長岡ファーストレジデンス
- 2490万円
- JR上越新幹線 長岡駅 徒歩9分
- 新潟県長岡市柏町2丁目
- 68.07m² / 2SLDK
-
売出し中
- メゾン中央
- 298万円
- JR上越新幹線 長岡駅 南町1丁目下車 徒歩6分
- 新潟県長岡市殿町1丁目5-2
- 45.07m² / 2DK
-
売出し中
- サーパス千手弐番館
- 2380万円
- JR信越本線 長岡駅 徒歩14分
- 新潟県長岡市千手2丁目
- 74.56m² / 3LDK
-
売出し中
- サーパス千手
- 990万円
- JR信越本線 長岡駅 徒歩15分
- 新潟県長岡市千手2丁目12-22
- 78.25m² / 2SLDK
-
売出し中
- マンションひがし
- 185万円
- JR信越本線 長岡駅 徒歩15分
- 新潟県長岡市四郎丸2丁目4-30
- 37.8m² / 2DK
-
売出し中
- 表町マンション
- 300万円
- JR上越新幹線 長岡駅 大手通2丁目下車 徒歩10分
- 新潟県長岡市表町1丁目9番地9
- 51.71m² / 3DK
-
売出し中
- アパガーデンコート長岡表町
- 2600万円
- JR信越本線 長岡駅 徒歩8分
- 新潟県長岡市表町2丁目3-11
- 82.44m² / 3LDK
-
売出し中
- 東坂之上 中古マンション CASA東坂之上 101号
- 550万円
- JR上越新幹線 長岡駅 スズラン通り下車 徒歩5分
- 新潟県長岡市東坂之上町3丁目2-1
- 103.02m² / 5LDK
-
売出し中
- 中古マンションアーク長岡I番館
- 650万円
- JR上越新幹線 長岡駅 健康センター前下車 徒歩22分
- 新潟県長岡市西千手1丁目5番18号
- 59.4m² / 2LDK
-
売出し中
- レクセル長岡
- 190万円
- JR信越本線 長岡駅 徒歩8分
- 新潟県長岡市本町2丁目2-16
- 17.37m² / 1K
一戸建て
-
売出し中
- 南町3丁目6DK中古住宅
- 1300万円
- JR上越新幹線 長岡駅 千手1丁目下車 徒歩16分
- 新潟県長岡市南町3丁目6番1
- 199.55m² / 6DK
-
売出し中
- 店舗ビル 四郎丸3丁目ビル
- 1280万円
- JR信越本線 長岡駅 学校町1丁目下車 徒歩12分
- 新潟県長岡市四郎丸3丁目1-1
- 118.5m² / 3R
-
売出し中
- 長岡市土合 中古物件
- 980万円
- JR信越本線 長岡駅 帝京長岡中学高校前下車 徒歩23分
- 新潟県長岡市土合1丁目5-19
- 164.99m² / 7DK
-
売出し中
- 袋町1丁目 中古戸建
- 2650万円
- JR上越新幹線 長岡駅 城内町下車 徒歩7分
- 新潟県長岡市袋町1丁目1081-2
- 139.94m² / 4LDK
-
売出し中
- ミサワホームのスムストック長岡市袋町1丁目
- 2650万円
- JR信越本線 長岡駅 徒歩6分
- 新潟県長岡市袋町1丁目
- 139.94m² / 4SLDK
-
売出し中
- 長岡市袋町 中古住宅
- 890万円
- JR上越新幹線 長岡駅 徒歩9分
- 新潟県長岡市袋町3丁目1102-2
- 213.84m² / 6LDK
-
売出し中
- 2号棟 長岡市三和3丁目 第2 クレイドルガーデン
- 3380万円
- JR上越線 宮内駅 徒歩24分
- 新潟県長岡市三和3丁目3-4付近
- 105.3m² / 4LDK
-
売出し中
- 1号棟 長岡市三和3丁目 第2 クレイドルガーデン
- 3380万円
- JR上越線 宮内駅 徒歩24分
- 新潟県長岡市三和3丁目3-4付近
- 108.54m² / 4SLDK
-
売出し中
- 三和コンセプトハウス
- 4300万円
- 信越線 宮内駅から徒歩21分
- 新潟県長岡市三和3丁目4-20
- 118.69m² / 4LDK
-
売出し中
- 新築戸建 長岡市三和町 第1 クレイドルガーデン
- 3280万円
- JR上越線 宮内駅 徒歩23分
- 新潟県長岡市三和1丁目7-23付近
- 108.54m² / 4SLDK
注文住宅
※表示価格は延べ床面積約132m²の場合の建物価格の参考値です
-
資料請求受付中
- 3200万円〜
- 大和ハウス
- 【大和ハウス】 xevoΣ<ジーヴォシグマ> ~天井高2m72cmの高さというゆとり空間~
-
資料請求受付中
- 3000万円〜
- 株式会社スウェーデンハウス
- 【スウェーデンハウス】お客様満足度総合第1位の声「No.1 Sweden House News」
-
資料請求受付中
- 2200万円〜
- DETAIL BASE(ディテール・ベース)
- 新潟の自由設計コンパクトハウス「ディテール・ベース」の建築実例集をプレゼント
-
資料請求受付中
- -
- 積水ハウス
- BRAND BOOK
-
資料請求受付中
- 2240万円〜
- 大きな森 株式会社永井工業 住宅事業部
- to Lively 【完全自由設計】【ZEH】【耐震等級3】標準|施工事例BOOKプレゼント!
-
資料請求受付中
- 1800万円〜
- 株式会社星野工務店
- 【星野工務店一級建築事務所】総合カタログセット
-
資料請求受付中
- 2800万円〜
- 平屋生活
- 新潟でデザイン性のある平屋に住みたい方へ!「平屋生活」の建築実例集をプレゼント
-
資料請求受付中
- 2000万円〜
- 一条工務店
- 【一条工務店】 建築実例集3冊セット(HOME’S限定)
-
資料請求受付中
- 1868万円〜
- タマホーム株式会社
- 大安心の家シリーズ
-
資料請求受付中
- 2800万円〜
- ミサワホーム株式会社
- 【MISAWA】ミサワホーム代表カタログ3冊セット(HOME'S限定)
エリア・駅で絞り込んで探す
賃貸
新潟県のレーベンが含まれるマンション
物件の種類から探す
長岡市で募集中の物件のみを検索できます
掲載情報に誤りや問題がある場合
LIFULL HOME'Sは「不動産会社」ではなく「情報掲載サイト」です
- ※管理会社の情報はLIFULL HOME'Sでは保持していないためお答えできません。お問合せはお控えください
- ※最新の募集状況は掲載中の不動産会社があれば、不動産会社へ直接お問合せください
掲載情報の訂正依頼 専用ダイヤル
0120-987-243
- 専用ダイヤル受付時間:10:00〜18:00
- ※土日・祝日、臨時休業日は除く
不動産データのご利用について
不動産事業におけるDX、サービスの改善、新規事業開発等をご検討中の方へ不動産データの活用をご提案します。LIFULL HOME'Sで集約した不動産情報や外部データは、不動産事業DX、不正決済防止、ローン審査、事業開発、研究等さまざまな事業でご活用いただいています。詳しくは以下よりご確認ください。
不動産アーカイブご利用アンケートにご協力ください
不動産アーカイブの掲載情報は、LIFULL HOME'S掲載の不動産情報および提携先の不動産情報を統計情報として集積したものであり、その存在や信憑性を保証するものではありません。