このページは物件の広告情報ではありません。
過去にLIFULL HOME'Sへ掲載された不動産情報と提携先の地図情報を元に生成した参考情報です。また、一般から投稿された情報など主観的な情報も含みます。
情報更新日: 2026/04/06
グランリビオ高見七条 桜の杜
スポンサーリンク
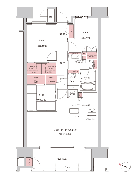
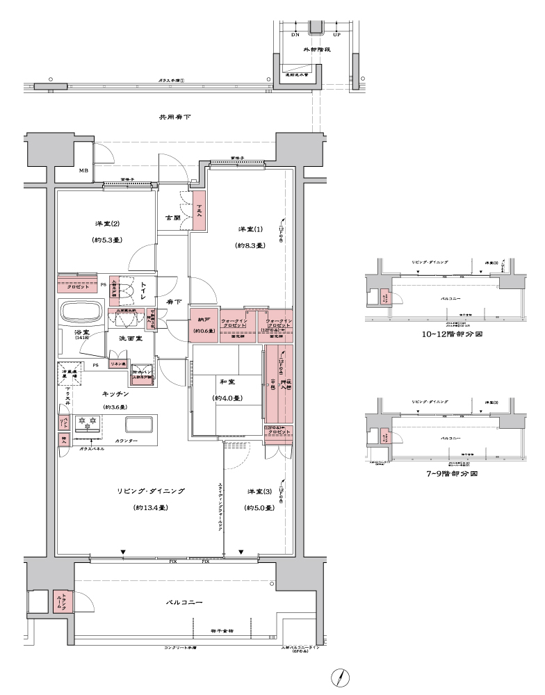
グランリビオ高見七条 桜の杜の建物一覧
グランリビオ高見七条 桜の杜の建物情報
物件概要
| 物件種別 | マンション |
|---|---|
| 築年月(築年数) | 2019年9月 (築7年) |
| 建物構造 | 鉄筋コンクリート造 地上14階建て |
| 総戸数/総区画数 | 146戸 |
| 敷地全体面積 | 8,030.80m2 |
| 用途地域 | 第一種住居 |
| 土地権利 | 所有権 |
| 建築確認番号 | 第ERI-17022551号(2017年6月23日付)、第ERI-17052962号(2017年12月11日付)、第ERI-19026560号(2019年7月16日付) |
| 施工会社 | 若築建設株式会社 |
| 売主 | 日鉄興和不動産株式会社 九州支店 |
| 販売会社 | 株式会社福岡プロパティエージェント(代理) |
設備・条件
- 追い焚き
- システムキッチン
- 4LDK以上
- オートロック
- 即入居可
- スーパー800m以内
※最新の状態と異なる場合があります
売りたい不動産をお持ちの方へ
このエリアの所有不動産を査定する
売却査定手続きの流れ、費用相場や注意点など不動産売却について詳しく知りたい方はLIFULL HOME'S 不動産査定へ
グランリビオ高見七条 桜の杜の周辺施設
-
買い物
日用品 -
- スピナ ラソリエ高見店
- ファミリーマート 八幡三条店
- ミニストップ 八幡竹下町店
- ミニストップ 八幡大蔵店
- 娯楽施設
-
- 中央緑地
- 美術の森公園
- 谷口霊園
- 文化施設
-
- 北九州市立美術館
- 役所
公共施設 -
- 八幡高見郵便局
- 八幡昭和町郵便局
- 八幡高槻郵便局
- 八幡大蔵郵便局
- 保育施設
-
- 高見幼稚園
- 北九州市立八幡東幼稚園
- 大蔵保育園
- 学校
-
- 北九州市立祝町小学校
- 北九州市立槻田中学校
- 北九州市立大蔵中学校
- 北九州市立高見小学校
※学区外の学校が含まれる場合があります。実際の学区は必ず各自治体へご確認ください。
グランリビオ高見七条 桜の杜周辺の物件情報
周辺の問合せ可能な物件
福岡県北九州市八幡東区の問合せ可能な物件のうち、この物件の周辺にあるものから表示しています
賃貸
-
募集中
- サウスボナール東山
- 6.1万円
- JR鹿児島本線 スペースワールド駅 徒歩36分
- 福岡県北九州市八幡東区東山1丁目
- 42.97m² / 1LDK
-
募集中
- THE GRANDE HILLS
- 6.7万円
- JR鹿児島本線 枝光駅 徒歩36分
- 福岡県北九州市八幡東区祝町2丁目10-13
- 40.38m² / 2LDK
-
募集中
- JR鹿児島本線 枝光駅 徒歩36分
- 6.8万円
- JR鹿児島本線 枝光駅 徒歩36分
- 福岡県北九州市八幡東区祝町2丁目10-13
- 40.38m² / 2LDK
-
募集中
- ネクスタージュ高見七条壱番館
- 12.8万円
- JR鹿児島本線 スペースワールド駅 徒歩30分
- 福岡県北九州市八幡東区高見2丁目
- 84.1m² / 3LDK
-
募集中
- JR鹿児島本線 スペースワールド駅 徒歩30分
- 12.8万円
- JR鹿児島本線 スペースワールド駅 徒歩30分
- 福岡県北九州市八幡東区高見2丁目
- 84.1m² / 3LDK
-
募集中
- サンラプロ東山 B棟
- 11万円
- JR鹿児島本線 スペースワールド駅 バス13分 荒生田下車 徒歩4分
- 福岡県北九州市八幡東区東山1丁目
- 73.9m² / 3LDK
-
募集中
- JR鹿児島本線 黒崎駅 徒歩20分
- 11万円
- JR鹿児島本線 黒崎駅 徒歩20分
- 福岡県北九州市八幡東区東山1丁目8 以下未定
- 75.26m² / 3LDK
-
募集中
- 高見の杜
- 6.4万円
- JR鹿児島本線 八幡駅 徒歩37分
- 福岡県北九州市八幡東区大蔵1丁目
- 40.85m² / 1LDK
-
募集中
- トゥリパーノ山王
- 2.5万円
- JR鹿児島本線 スペースワールド駅 徒歩25分
- 福岡県北九州市八幡東区山王4丁目
- 34.0m² / 2DK
-
募集中
- シャトレ川淵
- 2.6万円
- JR鹿児島本線 枝光駅 3.6km
- 福岡県北九州市八幡東区川淵町
- 20.09m² / 1K
中古マンション
-
売出し中
- アーバン荒生田 中古マンション 祝町小・槻田中学校
- 1400万円
- JR鹿児島本線 スペースワールド駅 徒歩35分
- 福岡県北九州市八幡東区荒生田1丁目
- 66.57m² / 2LDK
-
売出し中
- アーバン荒生田
- 1400万円
- JR鹿児島本線 スペースワールド駅 徒歩35分
- 福岡県北九州市八幡東区荒生田1丁目2番33
- 66.57m² / 2LDK
-
売出し中
- 以和貴マンション祝町 中古マンション 祝町小・大蔵中学校
- 980万円
- JR鹿児島本線 スペースワールド駅 徒歩30分
- 福岡県北九州市八幡東区祝町2丁目
- 74.24m² / 4LDK
-
売出し中
- ライフプラザ東山
- 1680万円
- JR鹿児島本線 スペースワールド駅 バス27分 中町一丁目下車 徒歩7分
- 福岡県北九州市八幡東区東山1丁目
- 127.55m² / 3LDK
-
売出し中
- グランリビオ高見五条
- 3980万円
- JR鹿児島本線 八幡駅 バス14分 荒生田下車 徒歩5分
- 福岡県北九州市八幡東区高見1丁目
- 101.56m² / 4LDK
-
売出し中
- 高見ハイツ
- 1450万円
- JR日豊本線 南小倉駅 3.2km
- 福岡県北九州市八幡東区高見3丁目1-1
- 96.09m² / 4LDK
-
売出し中
- ヴェルデコート大蔵西壱番館
- 1780万円
- JR鹿児島本線 小倉駅 バス29分 大蔵下車 徒歩2分
- 福岡県北九州市八幡東区大蔵1丁目
- 86.04m² / 4LDK
-
売出し中
- 川口マンション
- 180万円
- JR日豊本線 南小倉駅 徒歩31分
- 福岡県北九州市八幡東区茶屋町
- 60.25m² / 3DK
-
売出し中
- コーポランド槻田
- 480万円
- JR鹿児島本線 枝光駅 4.9km
- 福岡県北九州市八幡東区槻田1丁目
- 65.52m² / 3LDK
一戸建て
-
売出し中
- 荒生田一丁目6番戸建
- 1680万円
- JR鹿児島本線 枝光駅 3.4km
- 福岡県北九州市八幡東区荒生田1丁目6-24
- 185.9m² / 5LDK
-
売出し中
- 祝町二丁目戸建
- 2980万円
- JR鹿児島本線 スペースワールド駅 徒歩32分
- 福岡県北九州市八幡東区祝町2丁目9-19
- 172.73m² / 3SLDK
-
売出し中
- 祝町一丁目戸建
- 600万円
- バス二条停 徒歩10分
- 福岡県北九州市八幡東区祝町1丁目
- 132.48m² / 5LDK
-
売出し中
- 八幡東区大蔵 中古戸建 祝町小・大蔵中学校
- 1300万円
- JR鹿児島本線 スペースワールド駅 徒歩29分
- 福岡県北九州市八幡東区大蔵1丁目
- 98.54m² / 5LDK
-
売出し中
- 宮の町一丁目6番店舗付き戸建
- 680万円
- JR鹿児島本線 枝光駅 3.6km
- 福岡県北九州市八幡東区宮の町1丁目6-1
- 117.72m² / 5DK
-
売出し中
- 山王四丁目4番戸建
- 98万円
- JR鹿児島本線 枝光駅 徒歩29分
- 福岡県北九州市八幡東区山王4丁目4-18
- 75.9m² / 4DK
-
売出し中
- 中尾一丁目戸建
- 2300万円
- JR鹿児島本線 スペースワールド駅 徒歩36分
- 福岡県北九州市八幡東区中尾1丁目6-5
- 102.05m² / 4LDK
-
売出し中
- 竹下町新築戸建1号棟 1期
- 3780万円
- JR日豊本線 南小倉駅 3.3km
- 福岡県北九州市八幡東区竹下町5-21
- 97.71m² / 3LDK
-
売出し中
- ブルーミングガーデン八幡東区竹下町2棟/1期1号棟
- 3780万円
- 日豊本線,日田彦山線 「南小倉駅」までバス15分 バス停「七条」まで徒歩13分
- 福岡県北九州市八幡東区竹下町
- 97.71m² / 3LDK
-
売出し中
- JR日豊本線「南小倉」駅 徒歩41分
- 3780万円
- JR日豊本線「南小倉」駅 徒歩41分
- 福岡県北九州市八幡東区竹下町
- 97.71m² / 3LDK
注文住宅
※表示価格は延べ床面積約132m²の場合の建物価格の参考値です
-
資料請求受付中
- 3400万円〜
- へーベルハウス
- 【ヘーベルハウス】:ヘーベルハウス総合カタログ
-
資料請求受付中
- 2000万円〜
- 一条工務店
- 【一条工務店】 建築実例集3冊セット(HOME’S限定)
-
資料請求受付中
- -
- 積水ハウス
- BRAND BOOK
-
資料請求受付中
- 3000万円〜
- セキスイハイム
- 【セキスイハイム】総合カタログ(heimism)
-
資料請求受付中
- 2800万円〜
- ミサワホーム株式会社
- 【MISAWA】ミサワホーム代表カタログ3冊セット(HOME'S限定)
-
資料請求受付中
- 1868万円〜
- タマホーム株式会社
- 大安心の家シリーズ
-
資料請求受付中
- 2800万円〜
- 【悠悠ホーム | 健康、快適、長寿命の家】
- 【悠悠ホーム】オーナー様邸 施工実例集 20選 《人気の平屋間取り付き》
-
資料請求受付中
- -
- アキュラホーム(AQ Group)
- 「超空間の家」
-
資料請求受付中
- 3000万円〜
- トヨタホーム
- FIRST CLASS LIVING
エリア・駅で絞り込んで探す
福岡県のリビオが含まれるマンション
物件の種類から探す
北九州市八幡東区で募集中の物件のみを検索できます
掲載情報に誤りや問題がある場合
LIFULL HOME'Sは「不動産会社」ではなく「情報掲載サイト」です
- ※管理会社の情報はLIFULL HOME'Sでは保持していないためお答えできません。お問合せはお控えください
- ※最新の募集状況は掲載中の不動産会社があれば、不動産会社へ直接お問合せください
掲載情報の訂正依頼 専用ダイヤル
0120-987-243
- 専用ダイヤル受付時間:10:00〜18:00
- ※土日・祝日、臨時休業日は除く
不動産データのご利用について
不動産事業におけるDX、サービスの改善、新規事業開発等をご検討中の方へ不動産データの活用をご提案します。LIFULL HOME'Sで集約した不動産情報や外部データは、不動産事業DX、不正決済防止、ローン審査、事業開発、研究等さまざまな事業でご活用いただいています。詳しくは以下よりご確認ください。
不動産アーカイブご利用アンケートにご協力ください
不動産アーカイブの掲載情報は、LIFULL HOME'S掲載の不動産情報および提携先の不動産情報を統計情報として集積したものであり、その存在や信憑性を保証するものではありません。