このページは物件の広告情報ではありません。
過去にLIFULL HOME'Sへ掲載された不動産情報と提携先の地図情報を元に生成した参考情報です。また、一般から投稿された情報など主観的な情報も含みます。
情報更新日: 2026/01/11
アルファスマート廿日市桜尾
スポンサーリンク
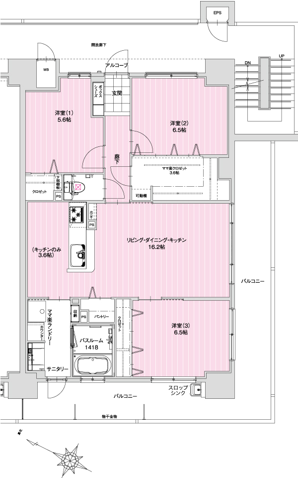
アルファスマート廿日市桜尾の建物情報
物件概要
| 物件種別 | マンション |
|---|---|
| 築年月(築年数) | 2018年8月 (築8年) |
| 建物構造 | 鉄筋コンクリート造 地上10階建て |
| 総戸数/総区画数 | 63戸 |
| 敷地全体面積 | 2,312.42m2 |
| 用途地域 | 工業 |
| 地目 | 宅地 |
| 土地権利 | 所有権 |
| 建築確認番号 | 第ERI17013291号(平成29年4月14日付) |
| 施工会社 | 株式会社淺沼組 |
| 売主 | 穴吹興産株式会社 |
| 販売会社 | 穴吹興産株式会社(売主)・株式会社あなぶきリアルエステート(販売代理) |
設備・条件
- 追い焚き
- システムキッチン
- ブロードバンド
- シングル&DINKS向け
- バリアフリー
- オートロック
- 防犯カメラ
- エレベーター
- ペット用施設
- 駐車場完備
※最新の状態と異なる場合があります
売りたい不動産をお持ちの方へ
このエリアの所有不動産を査定する
売却査定手続きの流れ、費用相場や注意点など不動産売却について詳しく知りたい方はLIFULL HOME'S 不動産査定へ
アルファスマート廿日市桜尾の周辺施設
-
買い物
日用品 -
- クスリ岩崎チェーン広島廿日市店
- フレスタ 廿日市住吉店
- セブンイレブン 廿日市本町店
- スパー ク廿日市店
- 買い物
大型店 -
- エディオン 白清舎はつかいち本通り店
- ホームセンタージュンテンドー 廿日市店
- ホームプラザナフコ 西広島店
- グルメ
-
- 長崎ちゃんめん広島廿日市店
- 丸亀製麺廿日市店
- かっぱ寿司 広島佐伯店
- CoCo壱番屋 佐伯区隅の浜店
- 娯楽施設
-
- 桂公園
- 山陽スペースファンタジープラネタリウム
- 新宮中央公園
- 文化施設
-
- 廿日市市郷土資料室
- 役所
公共施設 -
- 桜尾郵便局
- 廿日市住吉郵便局
- 廿日市警察署
- 保育施設
-
- 廿日市こども園
- アイグラン保育園住吉
- 公私連携型保育所廿日市保育園
- 廿日市聖母マリア幼稚園
- 学校
-
- 広島県立廿日市高校
- 廿日市市立廿日市小学校
- 廿日市市立廿日市中学校
- 私立山陽女学園中等部
アルファスマート廿日市桜尾周辺の物件情報
周辺の問合せ可能な物件
広島県廿日市市の問合せ可能な物件のうち、この物件の周辺にあるものから表示しています
賃貸
-
募集中
- サンコーポ桜尾
- 6.6万円
- 広島電鉄宮島線 広電廿日市駅 徒歩11分
- 広島県廿日市市桜尾1丁目
- 63.58m² / 3LDK
-
募集中
- 広島電鉄宮島線 広電廿日市駅 徒歩8分
- 5.9万円
- 広島電鉄宮島線 広電廿日市駅 徒歩8分
- 広島県廿日市市桜尾本町
- 30.46m² / 1LDK
-
募集中
- REGALEST廿日市駅南
- 5.9万円
- 広島電鉄宮島線 広電廿日市駅 徒歩8分
- 広島県廿日市市桜尾本町
- 30.46m² / 1LDK
-
募集中
- サンコート矢藤
- 4万円
- 広島電鉄宮島線 広電廿日市駅 徒歩6分
- 広島県廿日市市天神
- 25.51m² / 1K
-
募集中
- 天神新築アパート
- 6万円
- 広島電鉄宮島線 広電廿日市駅 徒歩6分
- 広島県廿日市市天神
- 35.64m² / 1LDK
-
募集中
- 村本邸
- 5.3万円
- JR山陽本線 廿日市駅 徒歩9分
- 広島県廿日市市桜尾本町
- 71.28m² / 4DK
-
募集中
- シャトレ天神
- 2.9万円
- 広島電鉄宮島線 広電廿日市駅 徒歩6分
- 広島県廿日市市天神
- 17.54m² / ワンルーム
-
募集中
- 広島電鉄宮島線 広電廿日市駅 徒歩8分
- 5.9万円
- 広島電鉄宮島線 広電廿日市駅 徒歩8分
- 広島県廿日市市住吉1丁目
- 30.01m² / 1LDK
-
募集中
- RIDERE(リーデレ)廿日市
- 5.3万円
- 広島電鉄宮島線 広電廿日市駅 徒歩6分
- 広島県廿日市市住吉1丁目
- 27.3m² / 1K
-
募集中
- REGALEST そらきら
- 5.9万円
- 広島電鉄宮島線 広電廿日市駅 徒歩8分
- 広島県廿日市市住吉1丁目
- 30.01m² / 1LDK
新築マンション
※完成後1年以上経過した未入居の物件が含まれている場合があります
中古マンション
-
売出し中
- リージェントパーク廿日市駅前
- 1980万円
- 広島電鉄宮島線 広電廿日市駅 徒歩5分
- 広島県廿日市市廿日市1丁目5-17
- 70.17m² / 2SLDK
-
売出し中
- グランドメゾン廿日市駅前
- 3290万円
- 広島電鉄宮島線 広電廿日市駅 徒歩7分
- 広島県廿日市市須賀2-12
- 76.49m² / 3LDK
-
売出し中
- ヴェルシャトー廿日市佐方
- 2100万円
- 広島電鉄宮島線 山陽女学園前駅 徒歩10分
- 広島県廿日市市佐方4丁目8-34
- 76.3m² / 2SLDK
-
売出し中
- エーデル廿日市佐方
- 1780万円
- 広島電鉄宮島線 山陽女学園前駅 徒歩10分
- 広島県廿日市市佐方3丁目
- 81.89m² / 3LDK
-
売出し中
- サーパスシティ廿日市地御前
- 2680万円
- 広島電鉄宮島線 JA広島病院前駅 徒歩4分
- 広島県廿日市市地御前1丁目
- 74.63m² / 3LDK
-
売出し中
- サンシティ廿日市10階部分\内見予約受付中(当日可)/
- 1730万円
- JR山陽本線 宮内串戸駅 徒歩13分
- 広島県廿日市市宮内2丁目6-39
- 65.18m² / 3LDK
-
売出し中
- シティコーポ廿日市101
- 1329万円
- 広島電鉄宮島線 地御前駅 地御前三丁目下車 徒歩2分
- 広島県廿日市市地御前3丁目14-33
- 73.03m² / 3LDK
-
売出し中
- 地御前ロジュマン
- 1880万円
- 広島電鉄宮島線 地御前駅 徒歩6分
- 広島県廿日市市地御前3丁目19-51
- 72.59m² / 3LDK
-
売出し中
- 広島電鉄宮島線 阿品東駅 徒歩9分
- 1380万円
- 広島電鉄宮島線 阿品東駅 徒歩9分
- 広島県廿日市市地御前5丁目18-40
- 66.79m² / 3LDK
-
売出し中
- エスティーム地御前
- 1380万円
- 広島電鉄宮島線 阿品東駅 徒歩10分
- 広島県廿日市市地御前5丁目18-40
- 69.93m² / 3LDK
一戸建て
-
売出し中
- 桜尾1丁目
- 3980万円
- 広島電鉄宮島線 広電廿日市駅 徒歩11分
- 広島県廿日市市桜尾1丁目
- 129.4m² / 4LDK
-
売出し中
- 廿日市市桜尾1丁目 A
- 5480万円
- JR山陽本線 廿日市駅 徒歩12分
- 広島県廿日市市桜尾1丁目
- 113.88m² / 4LDK
-
売出し中
- 廿日市市桜尾1丁目 新築戸建て
- 5380万円
- 広島電鉄宮島線 広電廿日市駅 徒歩11分
- 広島県廿日市市桜尾1丁目1
- 115.12m² / 3LDK
-
売出し中
- 廿日市市大東 新築戸建て
- 4180万円
- 広島電鉄宮島線 広電廿日市駅 徒歩8分
- 広島県廿日市市大東11
- 95.18m² / 4LDK
-
売出し中
- 廿日市市桜尾3丁目 1
- 3980万円
- JR山陽本線 廿日市駅 徒歩17分
- 広島県廿日市市桜尾3丁目
- 95.64m² / 3LDK
-
売出し中
- 廿日市市桜尾3丁目 2
- 3780万円
- JR山陽本線 廿日市駅 徒歩17分
- 広島県廿日市市桜尾3丁目
- 93.98m² / 3LDK
-
売出し中
- 桜尾3丁目
- 3980万円
- JR山陽本線 廿日市駅 徒歩17分
- 広島県廿日市市桜尾3丁目8-
- 95.64m² / 1SLDK
-
売出し中
- 広島電鉄宮島線「山陽女学園前」駅 徒歩7分
- 7110万円(1戸)~7570万円(1戸)
- 広島電鉄宮島線「山陽女学園前」駅 徒歩7分
- 広島県廿日市市大東949番3(地番)他
- 108.12m² / 3LDK(1戸)、2LDK(1戸)
-
売出し中
- JR山陽本線 廿日市駅 徒歩5分
- 1880万円
- JR山陽本線 廿日市駅 徒歩5分
- 広島県廿日市市城内1丁目
- 92.87m² / 2LDK
-
売出し中
- 廿日市市大東 新築戸建
- 3680万円
- 広島電鉄宮島線 山陽女学園前駅 徒歩3分
- 広島県廿日市市大東1-
- 123.27m² / 3SLDK
注文住宅
※表示価格は延べ床面積約132m²の場合の建物価格の参考値です
-
資料請求受付中
- 2800万円〜
- ミサワホーム株式会社
- 【MISAWA】ミサワホーム代表カタログ3冊セット(HOME'S限定)
-
資料請求受付中
- -
- アキュラホーム(AQ Group)
- 「超空間の家」
-
資料請求受付中
- 2800万円〜
- 東亜ハウス株式会社
- UNIVERSAL GUIDE【ユニバーサルガイド】
-
資料請求受付中
- 2000万円〜
- 一条工務店
- 【一条工務店】 建築実例集3冊セット(HOME’S限定)
-
資料請求受付中
- 3200万円〜
- 株式会社アイ工務店 中国支社・広島支店
- The Concept Book
-
資料請求受付中
- -
- 積水ハウス
- BRAND BOOK
-
資料請求受付中
- 3000万円〜
- 株式会社スウェーデンハウス
- 【スウェーデンハウス】お客様満足度総合第1位の声「No.1 Sweden House News」
-
資料請求受付中
- 1868万円〜
- タマホーム株式会社
- 大安心の家シリーズ
-
資料請求受付中
- 1840万円〜
- タナカホームズ
- 【全棟ZEH断熱性能】平屋も2階建ても1199万円(税込)~コスパのいいマイホーム タナカホームズ ブランドブック
-
資料請求受付中
- 3000万円〜
- セキスイハイム
- 【セキスイハイム|平屋】ザ・デザイナーズハイムD1
エリア・駅で絞り込んで探す
広島県のアルファスマートが含まれるマンション
周辺の建物情報
物件の種類から探す
廿日市市で募集中の物件のみを検索できます
掲載情報に誤りや問題がある場合
LIFULL HOME'Sは「不動産会社」ではなく「情報掲載サイト」です
- ※管理会社の情報はLIFULL HOME'Sでは保持していないためお答えできません。お問合せはお控えください
- ※最新の募集状況は掲載中の不動産会社があれば、不動産会社へ直接お問合せください
掲載情報の訂正依頼 専用ダイヤル
0120-987-243
- 専用ダイヤル受付時間:10:00〜18:00
- ※土日・祝日、臨時休業日は除く
不動産データのご利用について
不動産事業におけるDX、サービスの改善、新規事業開発等をご検討中の方へ不動産データの活用をご提案します。LIFULL HOME'Sで集約した不動産情報や外部データは、不動産事業DX、不正決済防止、ローン審査、事業開発、研究等さまざまな事業でご活用いただいています。詳しくは以下よりご確認ください。
不動産アーカイブご利用アンケートにご協力ください
不動産アーカイブの掲載情報は、LIFULL HOME'S掲載の不動産情報および提携先の不動産情報を統計情報として集積したものであり、その存在や信憑性を保証するものではありません。