このページは物件の広告情報ではありません。
過去にLIFULL HOME'Sへ掲載された不動産情報と提携先の地図情報を元に生成した参考情報です。また、一般から投稿された情報など主観的な情報も含みます。
情報更新日: 2026/04/03
セントシティ東大阪
スポンサーリンク
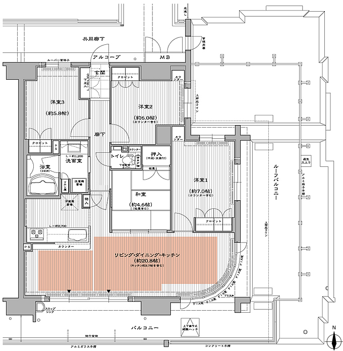
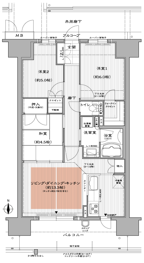
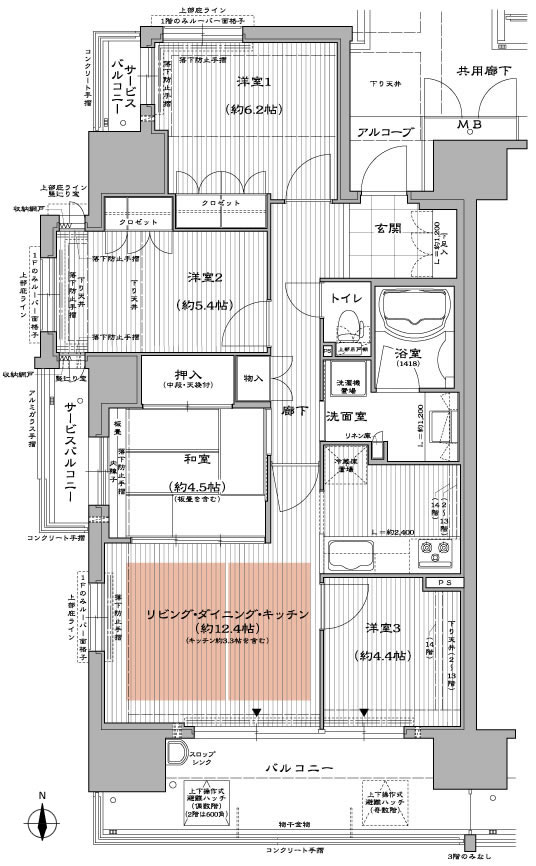
セントシティ東大阪の建物情報
物件概要
| 物件種別 | マンション |
|---|---|
| 築年月(築年数) | 2009年8月 (築17年) |
| 建物構造 | 鉄筋コンクリート造地上15階建 |
| 総戸数/総区画数 | 84戸 |
| 敷地全体面積 | 1500.78m2 |
| 用途地域 | 商業 |
| 地目 | 雑種地 |
| 土地権利 | 所有権 |
| 施工会社 | 株式会社長谷工コーポレーション |
| 売主 | 大阪ガスメゾン株式会社 |
| 販売会社 | 株式会社ホームズ(販売代理) |
設備・条件
- 追い焚き
- 浴室乾燥機
- システムキッチン
- 食器洗い乾燥機
- 床暖房
- ブロードバンド
- バリアフリー
- オートロック
- 防犯カメラ
- スーパー800m以内
- コンビニ400m以内
- 小学校800m以内
※最新の状態と異なる場合があります
売りたい不動産をお持ちの方へ
このエリアの所有不動産を査定する
売却査定手続きの流れ、費用相場や注意点など不動産売却について詳しく知りたい方はLIFULL HOME'S 不動産査定へ
セントシティ東大阪の周辺施設
-
買い物
日用品 -
- ローソン 東大阪荒本駅前店
- セブンイレブン 東大阪荒本北2丁目店
- ローソン 東大阪横枕店
- ファミリーマート 東大阪横枕西店
- 買い物
大型店 -
- ホームセンターコーナン 東大阪菱江店
- スーパースポーツゼビオ 東大阪菱江店
- 菱江ショッピングプラザ
- コーナンPRO東大阪菱江店
- グルメ
-
- 大阪王将荒本店
- ガスト 荒本駅前店(から好し取扱店)
- ザめしや 荒本店
- CoCo壱番屋 東大阪中野店
- 娯楽施設
-
- 本庄南公園
- 本庄南公園野球場
- 荒本西公園庭球場
- 荒本西公園
- 役所
公共施設 -
- 東大阪市役所
- 東大阪荒本郵便局
- 大阪府立中央図書館
- 東大阪中野郵便局
- 医療
-
- 医療法人河内友紘会河内総合病院
- 医療法人徳洲会東大阪徳洲会病院
- 保育施設
-
- 幼保連携型認定こども園本庄こども園
- 東大阪市立荒本子育て支援センター
- 幼保連携型認定こども園はるみやこども園
- 角田あおぞら保育園
- 学校
-
- 東大阪市立弥栄小学校
- 東大阪市立盾津中学校
- 東大阪市立意岐部東小学校
- 大阪府立布施北高校
※学区外の学校が含まれる場合があります。実際の学区は必ず各自治体へご確認ください。
セントシティ東大阪周辺の物件情報
周辺の問合せ可能な物件
大阪府東大阪市の問合せ可能な物件のうち、この物件の周辺にあるものから表示しています
賃貸
-
募集中
- LaDouceur荒本
- 6万円
- 近鉄けいはんな線 荒本駅 徒歩3分
- 大阪府東大阪市荒本北2丁目
- 23.58m² / 1K
-
募集中
- LaDouceur荒本(ラドゥセール荒本)
- 5.6万円
- 近鉄けいはんな線 荒本駅 徒歩2分
- 大阪府東大阪市荒本北2丁目
- 23.58m² / 1K
-
募集中
- 近鉄けいはんな線 荒本駅 徒歩2分
- 6.2万円
- 近鉄けいはんな線 荒本駅 徒歩2分
- 大阪府東大阪市荒本北2丁目
- 24.3m² / 1K
-
募集中
- グランミッシェル
- 6.7万円
- 近鉄けいはんな線 荒本駅 徒歩4分
- 大阪府東大阪市横枕西3-20
- 55.04m² / 2LDK
-
募集中
- 近鉄けいはんな線 荒本駅 徒歩4分
- 6.9万円
- 近鉄けいはんな線 荒本駅 徒歩4分
- 大阪府東大阪市横枕西
- 56.68m² / 2LDK
-
募集中
- 近鉄けいはんな線 荒本駅 徒歩4分
- 4.8万円
- 近鉄けいはんな線 荒本駅 徒歩4分
- 大阪府東大阪市横枕西
- 23.18m² / 1K
-
募集中
- ドゥミルアン東大阪
- 5.9万円
- 近鉄けいはんな線 荒本駅 徒歩1分
- 大阪府東大阪市荒本北2丁目
- 30.0m² / 1LDK
-
募集中
- ルナI
- 5万円
- 近鉄けいはんな線 荒本駅 徒歩4分
- 大阪府東大阪市横枕西
- 23.18m² / 1K
-
募集中
- レオパレスルナI
- 4.9万円
- 近鉄けいはんな線 荒本駅 徒歩4分
- 大阪府東大阪市横枕西
- 23.18m² / 1K
-
募集中
- 近鉄けいはんな線 荒本駅 徒歩3分
- 6.4万円
- 近鉄けいはんな線 荒本駅 徒歩3分
- 大阪府東大阪市横枕西
- 27.61m² / 2K
新築マンション
※完成後1年以上経過した未入居の物件が含まれている場合があります
-
売出し中
- 近鉄奈良線「若江岩田」駅 徒歩8分
- 3,800万円~5,300万円
- 近鉄奈良線「若江岩田」駅 徒歩8分
- 大阪府東大阪市瓜生堂1丁目172番2他(地番)
- 70.01m² / 2LD・K+S(サービスルーム(N))~3LD・K
-
売出し中
- 近鉄奈良線「八戸ノ里」駅 徒歩1分
- 3178万円~6048万円
- 近鉄奈良線「八戸ノ里」駅 徒歩1分
- 大阪府東大阪市小阪三丁目183番1
- 73.1m² / 1LDK ~ 3LDK
-
売出し中
- Osaka Metro中央線「高井田」駅 徒歩5分
- 4,600万円~5,600万円
- Osaka Metro中央線「高井田」駅 徒歩5分
- 大阪府東大阪市高井田本通6丁目54番1(地番)
- 70.17m² / 2LD・K+S(サービスルーム)【納戸】、3LD・K
-
売出し中
- 近鉄奈良線「河内花園」駅 徒歩1分
- 4,878万円
- 近鉄奈良線「河内花園」駅 徒歩1分
- 大阪府東大阪市花園本町一丁目975番8(地番)
- 70.38m² / 3LDK
中古マンション
-
売出し中
- コスモ東大阪 中古マンション
- 2080万円
- 近鉄けいはんな線 荒本駅 徒歩3分
- 大阪府東大阪市荒本新町
- 60.93m² / 3LDK
-
売出し中
- アービング荒本駅前通り 中古マンション
- 3380万円
- 近鉄けいはんな線 荒本駅 徒歩4分
- 大阪府東大阪市荒本新町
- 56.0m² / 2LDK
-
売出し中
- リバーガーデン東大阪新庁舎アヴェニュー
- 3598万円
- 近鉄けいはんな線 荒本駅 徒歩10分
- 大阪府東大阪市荒本北1丁目2-36
- 72.26m² / 3LDK
-
売出し中
- M’PLAZA東大阪ルーベンオーネ
- 2980万円
- 近鉄けいはんな線 荒本駅 徒歩7分
- 大阪府東大阪市本庄西1丁目
- 70.54m² / 2SLDK
-
売出し中
- レジオン東大阪
- 2280万円
- 近鉄けいはんな線 荒本駅 徒歩8分
- 大阪府東大阪市本庄西1丁目1-10
- 67.1m² / 3LDK
-
売出し中
- ディナスシティ東大阪アテンシアシティ
- 2830万円
- 近鉄けいはんな線 吉田駅 徒歩7分
- 大阪府東大阪市島之内1丁目
- 83.36m² / 3LDK
-
売出し中
- 正起鴻池ハイツ
- 1380万円
- JR片町線(学研都市線) 鴻池新田駅 徒歩14分
- 大阪府東大阪市新庄2丁目5-19
- 49.38m² / 2LDK
-
売出し中
- プレジデント東大阪第3棟
- 690万円
- 近鉄奈良線 若江岩田駅 徒歩13分
- 大阪府東大阪市岩田町6丁目
- 64.67m² / 3LDK
-
売出し中
- 八戸ノ里スカイハイツ
- 1200万円
- 近鉄奈良線 八戸ノ里駅 徒歩16分
- 大阪府東大阪市西岩田3丁目
- 61.6m² / 2LDK
-
売出し中
- P・Sハイツ 中古マンション
- 880万円
- 近鉄けいはんな線 長田駅 徒歩10分
- 大阪府東大阪市長田中4丁目
- 40.69m² / 2K
一戸建て
-
売出し中
- 近鉄けいはんな線 荒本駅 徒歩6分
- 1080万円
- 近鉄けいはんな線 荒本駅 徒歩6分
- 大阪府東大阪市横枕西
- 78.39m² / 3DK
-
売出し中
- 東大阪市横枕 中古戸建
- 2299万円
- 近鉄けいはんな線 荒本駅 徒歩6分
- 大阪府東大阪市横枕
- 84.27m² / 3LDK
-
売出し中
- 東大阪市水走1丁目
- 1780万円
- 近鉄けいはんな線 荒本駅 徒歩6分
- 大阪府東大阪市水走1丁目5-22
- 113.58m² / 5LDK
-
売出し中
- 近鉄けいはんな線 荒本駅 徒歩5分
- 2588万円
- 近鉄けいはんな線 荒本駅 徒歩5分
- 大阪府東大阪市荒本2丁目
- 84.24m² / 3LDK
-
売出し中
- 東大阪市荒本2丁目
- 2580万円
- 近鉄けいはんな線 荒本駅 徒歩5分
- 大阪府東大阪市荒本2丁目
- 84.24m² / 3LDK
-
売出し中
- 本庄1丁目 中古戸建
- 2480万円
- 近鉄けいはんな線 荒本駅 徒歩10分
- 大阪府東大阪市本庄1丁目
- 70.72m² / 3LDK
-
売出し中
- 東大阪市中野2丁目 新築一戸建て 4号棟
- 4780万円
- 近鉄けいはんな線 荒本駅 徒歩11分
- 大阪府東大阪市中野2丁目
- 99.11m² / 4LDK
-
売出し中
- 東大阪市中野2丁目 新築一戸建て 1号棟
- 4680万円
- 近鉄けいはんな線 荒本駅 徒歩11分
- 大阪府東大阪市中野2丁目
- 132.9m² / 4LDK
-
売出し中
- 中古戸建 菱江5丁目
- 1100万円
- 近鉄けいはんな線 荒本駅 徒歩12分
- 大阪府東大阪市菱江5丁目
- 61.54m² / 4LDK
-
売出し中
- 東大阪市菱江5丁目 中古一戸建て
- 2040万円
- 近鉄けいはんな線 荒本駅 徒歩14分
- 大阪府東大阪市菱江5丁目
- 93.5m² / 6DK
注文住宅
※表示価格は延べ床面積約132m²の場合の建物価格の参考値です
-
資料請求受付中
- 3000万円〜
- セキスイハイム
- 【セキスイハイム】総合カタログ(heimism)
-
資料請求受付中
- 1868万円〜
- タマホーム株式会社
- 大安心の家シリーズ
-
資料請求受付中
- 3000万円〜
- D'S STYLE 豊中モデルハウス
- 【 D'S STYLE 】STYLE@home
-
資料請求受付中
- -
- 積水ハウス
- BRAND BOOK
-
資料請求受付中
- 2000万円〜
- 一条工務店
- 【一条工務店】 建築実例集3冊セット(HOME’S限定)
-
資料請求受付中
- 3200万円〜
- 大和ハウス
- 【大和ハウス】 xevoΣ<ジーヴォシグマ> ~天井高2m72cmの高さというゆとり空間~
-
資料請求受付中
- 2800万円〜
- ミサワホーム株式会社
- 【MISAWA】ミサワホーム代表カタログ3冊セット(HOME'S限定)
-
資料請求受付中
- 3400万円〜
- へーベルハウス
- 【ヘーベルハウス】:ヘーベルハウス総合カタログ
エリア・駅で絞り込んで探す
物件の種類から探す
東大阪市で募集中の物件のみを検索できます
掲載情報に誤りや問題がある場合
LIFULL HOME'Sは「不動産会社」ではなく「情報掲載サイト」です
- ※管理会社の情報はLIFULL HOME'Sでは保持していないためお答えできません。お問合せはお控えください
- ※最新の募集状況は掲載中の不動産会社があれば、不動産会社へ直接お問合せください
掲載情報の訂正依頼 専用ダイヤル
0120-987-243
- 専用ダイヤル受付時間:10:00〜18:00
- ※土日・祝日、臨時休業日は除く
不動産データのご利用について
不動産事業におけるDX、サービスの改善、新規事業開発等をご検討中の方へ不動産データの活用をご提案します。LIFULL HOME'Sで集約した不動産情報や外部データは、不動産事業DX、不正決済防止、ローン審査、事業開発、研究等さまざまな事業でご活用いただいています。詳しくは以下よりご確認ください。
不動産アーカイブご利用アンケートにご協力ください
不動産アーカイブの掲載情報は、LIFULL HOME'S掲載の不動産情報および提携先の不動産情報を統計情報として集積したものであり、その存在や信憑性を保証するものではありません。