このページは物件の広告情報ではありません。
過去にLIFULL HOME'Sへ掲載された不動産情報と提携先の地図情報を元に生成した参考情報です。また、一般から投稿された情報など主観的な情報も含みます。
情報更新日: 2025/12/26
パーク・サンリヤン博多の森V番館
スポンサーリンク
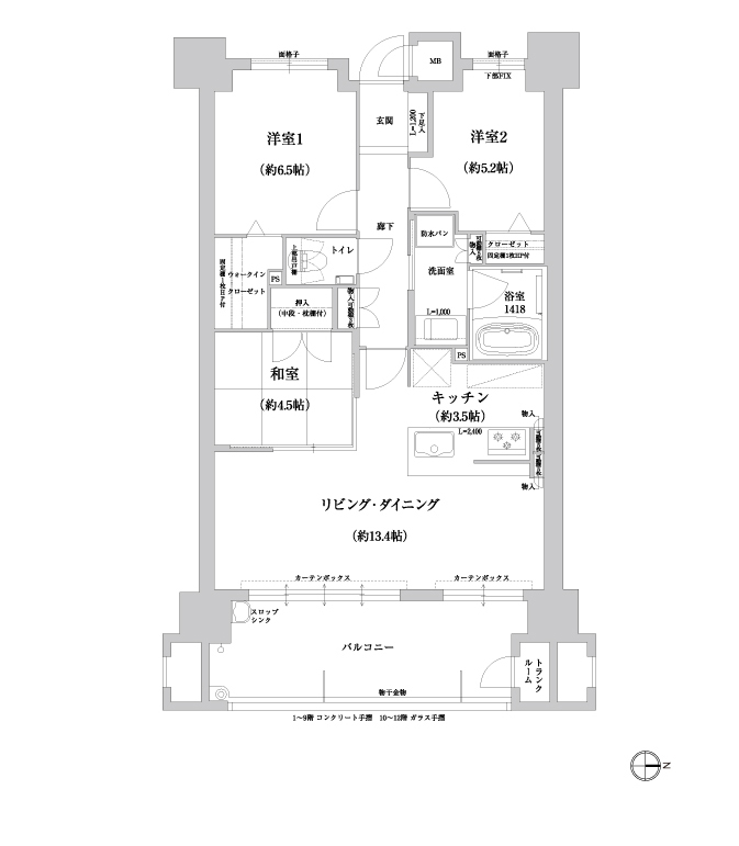
パーク・サンリヤン博多の森V番館の建物情報
物件概要
| 物件種別 | マンション |
|---|---|
| 築年月(築年数) | 2017年3月 (築9年) |
| 建物構造 | 鉄筋コンクリート造地上12階建 |
| 総戸数/総区画数 | 82戸 |
| 敷地全体面積 | 3,475.22m2(ほか私道負担:679.06m2有) |
| 用途地域 | 第一種住居 |
| 地目 | 宅地 |
| 土地権利 | 所有権 |
| 建築確認番号 | 第ERI15047935号(平成27年11月16日) |
| 施工会社 | 若築建設株式会社 |
| 売主 | 西日本鉄道株式会社 |
| 販売会社 | 住友不動産販売株式会社(販売代理) |
設備・条件
- 追い焚き
- 浴室乾燥機
- コンロ三口以上
- システムキッチン
- 食器洗い乾燥機
- 高効率給湯器
- 浄水器・活水器
- トランクルーム
- ウォークインクローゼット
- ブロードバンド
- 4LDK以上
- バリアフリー
- 複層ガラス採用(二重サッシ・防犯サッシ等)
- オートロック
- 防犯カメラ
- エレベーター
- 駐車場完備
- 宅配ボックス
- 住宅性能評価書
- 即入居可
- 環境にやさしい
- スーパー800m以内
- コンビニ400m以内
- 総合病院800m以内
- 公園400m以内
※最新の状態と異なる場合があります
売りたい不動産をお持ちの方へ
このエリアの所有不動産を査定する
売却査定手続きの流れ、費用相場や注意点など不動産売却について詳しく知りたい方はLIFULL HOME'S 不動産査定へ
パーク・サンリヤン博多の森V番館の周辺施設
-
買い物
日用品 -
- マルショク 空港東店
- ダイソーマルショク空港東店
- セブンイレブン 博多席田小学校前店
- スーパーセンタートライアル福岡空港店
- 買い物
大型店 -
- 西松屋 福岡空港東店
- グルメ
-
- マクドナルド 空港志免店
- 並木街珈琲博多の森店
- ガスト 福岡志免店(から好し取扱店)
- ワンカルビ 福岡空港東店
- 娯楽施設
-
- 東平尾公園弓道場
- 博多の森テニス競技場
- 役所
公共施設 -
- 亀山郵便局
- 福岡空港警察署
- 医療
-
- 社会医療法人栄光会栄光病院
- 保育施設
-
- あいあい保育園
- みなみの風こども園
- かめやま保育園
- 社会福祉法人皆輪会別府つくし保育園
- 学校
-
- 福岡市立席田小学校
- 志免町立志免西小学校
パーク・サンリヤン博多の森V番館周辺の物件情報
周辺の問合せ可能な物件
福岡県糟屋郡志免町の問合せ可能な物件のうち、この物件の周辺にあるものから表示しています
賃貸
-
募集中
- 福岡市地下鉄空港線 福岡空港駅 徒歩14分
- 6.3万円
- 福岡市地下鉄空港線 福岡空港駅 徒歩14分
- 福岡県糟屋郡志免町別府西2丁目
- 22.35m² / 1K
-
募集中
- レオパレスエスポワール
- 6.3万円
- 福岡市地下鉄空港線 福岡空港駅 徒歩14分
- 福岡県糟屋郡志免町別府西2丁目
- 22.35m² / 1K
-
募集中
- パークサンリヤン博多の森II番館1112号室
- 12.9万円
- 福岡市地下鉄空港線 福岡空港駅 徒歩15分
- 福岡県糟屋郡志免町別府西2丁目
- 78.09m² / 3LDK
-
募集中
- M・ウイスタリア
- 7.9万円
- 福岡市地下鉄空港線 福岡空港駅 徒歩20分
- 福岡県糟屋郡志免町別府3丁目10-6
- 58.05m² / 2LDK
-
募集中
- アルバ空港東
- 8.9万円
- 福岡市地下鉄空港線 福岡空港駅 徒歩19分
- 福岡県糟屋郡志免町別府3丁目9-1
- 70.14m² / 3LDK
-
募集中
- 福岡市地下鉄空港線 福岡空港駅 徒歩16分
- 9.1万円
- 福岡市地下鉄空港線 福岡空港駅 徒歩16分
- 福岡県糟屋郡志免町別府3丁目
- 70.76m² / 3LDK
-
募集中
- 福岡市地下鉄空港線 福岡空港駅 バス5分 亀山下車 徒歩4分
- 7.7万円
- 福岡市地下鉄空港線 福岡空港駅 バス5分 亀山下車 徒歩4分
- 福岡県糟屋郡志免町別府3丁目1番10号
- 52.38m² / 1LDK
-
募集中
- グリシーヌソルテ
- 7.7万円
- 福岡市地下鉄空港線 福岡空港駅 バス5分 亀山下車 徒歩4分
- 福岡県糟屋郡志免町別府3丁目1-10
- 52.38m² / 1LDK
-
募集中
- レフォール
- 5.8万円
- JR篠栗線 原町駅 徒歩23分
- 福岡県糟屋郡志免町南里7丁目
- 42.51m² / ワンルーム
-
募集中
- レオパレス空港南III
- 6.8万円
- 福岡市地下鉄空港線 福岡空港駅 徒歩16分
- 福岡県糟屋郡志免町別府北4丁目
- 28.02m² / 1K
中古マンション
-
売出し中
- パーク・サンリヤン博多の森3番館
- 3400万円
- 福岡市地下鉄空港線 福岡空港駅 徒歩12分
- 福岡県糟屋郡志免町別府西2丁目
- 75.95m² / 3LDK
-
売出し中
- パーク・サンリヤン博多の森4番館
- 3799万円
- 福岡市地下鉄空港線 福岡空港駅 徒歩13分
- 福岡県糟屋郡志免町別府西2丁目23-4
- 95.8m² / 4LDK
-
売出し中
- トラスト福岡空港駅レジデンス
- 5490万円
- 福岡市地下鉄空港線 福岡空港駅 徒歩14分
- 福岡県糟屋郡志免町別府北4丁目
- 79.35m² / 4LDK
-
売出し中
- アネシス空港東五番館
- 1980万円
- 福岡市地下鉄空港線 福岡空港駅 徒歩17分
- 福岡県糟屋郡志免町別府北2丁目
- 71.68m² / 3LDK
-
売出し中
- アネシス空港東弐番館
- 2380万円
- 福岡市地下鉄空港線 福岡空港駅 徒歩18分
- 福岡県糟屋郡志免町別府北2丁目
- 74.0m² / 3LDK
-
売出し中
- コアマンションルネス空港東
- 2880万円
- 福岡市地下鉄空港線 福岡空港駅 徒歩26分
- 福岡県糟屋郡志免町別府北1丁目13-1
- 97.39m² / 4LDK
-
売出し中
- グレイスマンション空港東
- 2399万円
- 福岡市地下鉄空港線 福岡空港駅 徒歩15分
- 福岡県糟屋郡志免町御手洗2丁目6-3
- 74.99m² / 3LDK
-
売出し中
- グランディアソラーレ博多の杜
- 2799万円
- JR香椎線 須恵中央駅 徒歩26分
- 福岡県糟屋郡志免町大字吉原134-3
- 85.28m² / 4LDK
-
売出し中
- Asobi グランディアソラーレ博多の杜
- 2630万円
- JR香椎線 須恵中央駅 徒歩28分
- 福岡県糟屋郡志免町大字吉原
- 72.09m² / 3LDK
一戸建て
-
売出し中
- 糟屋郡志免町別府2丁目1期 2号棟(全2棟)
- 3598万円
- 福岡市地下鉄空港線 福岡空港駅 徒歩26分
- 福岡県糟屋郡志免町別府2丁目7-3
- 109.51m² / 4LDK
-
売出し中
- 福岡市地下鉄空港線「福岡空港」駅 徒歩23分
- 3,598万円
- 福岡市地下鉄空港線「福岡空港」駅 徒歩23分
- 福岡県糟屋郡志免町別府2丁目
- 109.51m² / 4SLDK
-
売出し中
- 福岡市地下鉄空港線「福岡空港」駅 福岡空港 行「南里」バス乗車8分 徒歩4分
- 3598万円
- 福岡市地下鉄空港線「福岡空港」駅 福岡空港 行「南里」バス乗車8分 徒歩4分
- 福岡県糟屋郡志免町別府2丁目
- 109.51m² / 4LDK
-
売出し中
- 福岡市地下鉄空港線「福岡空港」駅 徒歩24分
- 3598万円
- 福岡市地下鉄空港線「福岡空港」駅 徒歩24分
- 福岡県糟屋郡志免町別府2丁目
- 109.51m² / 4LDK+S
-
売出し中
- 糟屋郡志免町王子4丁目
- 2560万円
- 福岡市地下鉄空港線 福岡空港駅 バス12分 日枝下車 徒歩4分
- 福岡県糟屋郡志免町王子4丁目
- 102.37m² / 3LDK
-
売出し中
- 糟屋郡志免町王子3丁目第6 1号棟(全1棟)
- 4798万円
- 福岡市地下鉄空港線 福岡空港駅 徒歩37分
- 福岡県糟屋郡志免町王子3丁目8-10
- 107.73m² / 4SLDK
-
売出し中
- 福岡市地下鉄空港線「福岡空港」駅 西鉄バス14分「博多の森競技場前」バス停 徒歩37分
- 4,798万円
- 福岡市地下鉄空港線「福岡空港」駅 西鉄バス14分「博多の森競技場前」バス停 徒歩37分
- 福岡県糟屋郡志免町王子3丁目
- 107.73m² / 4LDK
-
売出し中
- 糟屋郡志免町王子3丁目2期 2号棟(全2棟)
- 3898万円
- 福岡市地下鉄空港線 福岡空港駅 徒歩37分
- 福岡県糟屋郡志免町王子3丁目1-17
- 103.69m² / 4LDK
-
売出し中
- 福岡市地下鉄空港線「福岡空港」駅 徒歩39分
- 3898万円
- 福岡市地下鉄空港線「福岡空港」駅 徒歩39分
- 福岡県糟屋郡志免町王子3丁目
- 103.69m² / 4LDK
-
売出し中
- JR香椎線「酒殿」駅 徒歩34分
- 3,798~3,898万円
- JR香椎線「酒殿」駅 徒歩34分
- 福岡県糟屋郡志免町王子3丁目
- 103.69m² / 4LDK
注文住宅
※表示価格は延べ床面積約132m²の場合の建物価格の参考値です
-
資料請求受付中
- 2000万円〜
- 一条工務店
- 【一条工務店】 建築実例集3冊セット(HOME’S限定)
-
資料請求受付中
- 2400万円〜
- 鬼丸ホーム株式会社 福岡支店
- 【建てる前も建てた後も安心して暮らせる】鬼丸ホームの家づくり
-
資料請求受付中
- 3400万円〜
- ディー・アンド・エイチ株式会社
- 2,975万円~の家づくり|カタログ4冊セット|『ZEH基準の高性能住宅+福岡の土地情報に強いD&H』家づくりに関することをトータルでご提案。
-
資料請求受付中
- 1868万円〜
- タマホーム株式会社
- 大安心の家シリーズ
-
資料請求受付中
- 3000万円〜
- セキスイハイム
- 【セキスイハイム|平屋】ザ・デザイナーズハイムD1
-
資料請求受付中
- -
- へーベルハウス
- 【ヘーベルハウス】:ヘーベルハウス総合カタログ
-
資料請求受付中
- 2800万円〜
- 【悠悠ホーム | 健康、快適、長寿命の家】
- 【悠悠ホーム】オーナー様邸 施工実例集 20選 《人気の平屋間取り付き》
-
資料請求受付中
- 3000万円〜
- 株式会社スウェーデンハウス
- 【スウェーデンハウス】お客様満足度総合第1位の声「No.1 Sweden House News」
エリア・駅で絞り込んで探す
福岡県のパーク・サンリヤンが含まれるマンション
物件の種類から探す
糟屋郡志免町で募集中の物件のみを検索できます
掲載情報に誤りや問題がある場合
LIFULL HOME'Sは「不動産会社」ではなく「情報掲載サイト」です
- ※管理会社の情報はLIFULL HOME'Sでは保持していないためお答えできません。お問合せはお控えください
- ※最新の募集状況は掲載中の不動産会社があれば、不動産会社へ直接お問合せください
掲載情報の訂正依頼 専用ダイヤル
0120-987-243
- 専用ダイヤル受付時間:10:00〜18:00
- ※土日・祝日、臨時休業日は除く
不動産データのご利用について
不動産事業におけるDX、サービスの改善、新規事業開発等をご検討中の方へ不動産データの活用をご提案します。LIFULL HOME'Sで集約した不動産情報や外部データは、不動産事業DX、不正決済防止、ローン審査、事業開発、研究等さまざまな事業でご活用いただいています。詳しくは以下よりご確認ください。
不動産アーカイブご利用アンケートにご協力ください
不動産アーカイブの掲載情報は、LIFULL HOME'S掲載の不動産情報および提携先の不動産情報を統計情報として集積したものであり、その存在や信憑性を保証するものではありません。