このページは物件の広告情報ではありません。
過去にLIFULL HOME'Sへ掲載された不動産情報と提携先の地図情報を元に生成した参考情報です。また、一般から投稿された情報など主観的な情報も含みます。
情報更新日: 2025/11/26
プレミスト大江本町
スポンサーリンク
プレミスト大江本町の建物情報
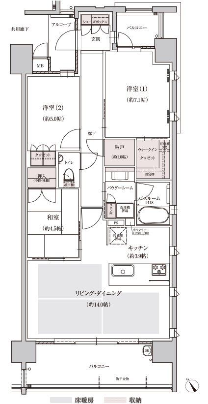
物件概要
| 物件種別 | マンション |
|---|---|
| 築年月(築年数) | 2015年10月 (築11年) |
| 建物構造 | RC造地上11階建10階部分 |
| 総戸数/総区画数 | 50戸 |
| 敷地全体面積 | 984.24m2 |
| 管理人 | 日勤 |
| 用途地域 | 商業 |
| 地目 | 宅地 |
| 土地権利 | 所有権 |
| 国土法届出 | 届出不要 |
| 建築確認番号 | 第ERI14020554号(平成26年06月19日) |
| 施工会社 | 西松建設株式会社 九州支社 |
| 売主 | 大和ハウス工業株式会社 |
| 販売会社 | (売主)大和ハウス工業株式会社 (販売代理)株式会社T・フィールド |
設備・条件
- 追い焚き
- 浴室乾燥機
- コンロ三口以上
- システムキッチン
- 食器洗い乾燥機
- 高効率給湯器
- 浄水器・活水器
- ウォークインクローゼット
- ブロードバンド
- 複層ガラス採用(二重サッシ・防犯サッシ等)
- オートロック
- 防犯カメラ
- セキュリティ充実
- エレベーター
- 駐車場完備
- 宅配ボックス
- デザイナーズ
- 住宅性能評価書
- 南向き
- 環境にやさしい
- スーパー800m以内
- 公園400m以内
- 複数路線
※最新の状態と異なる場合があります
売りたい不動産をお持ちの方へ
このエリアの所有不動産を査定する
売却査定手続きの流れ、費用相場や注意点など不動産売却について詳しく知りたい方はLIFULL HOME'S 不動産査定へ
プレミスト大江本町の周辺施設
-
買い物
日用品 -
- セブンイレブン 熊本大江5丁目店
- デイリーヤマザキ 熊本大江本町店
- セブンイレブン 熊本白山2丁目店
- サニー 水前寺店
- 買い物
大型店 -
- スーパービバホーム 熊本中央店
- えきマチ1丁目水前寺
- ケーズデンキ 熊本中央店
- グルメ
-
- モスバーガー グランパレッタ熊本店
- 星乃珈琲店熊本白山通り店
- 生そばあずま白山通り店
- ケンタッキーフライドチキン ゆめタウン大江店
- 娯楽施設
-
- 熊本大学薬学部附属薬用資源エコフロンティアセンター
- ユナイテッド・シネマ熊本
- コナミスポーツクラブ熊本
- 新屋敷公園テニスコート
- 文化施設
-
- 熊本学園大学産業資料館
- 役所
公共施設 -
- 熊本大江六郵便局
- 熊本市立図書館
- 九品寺東郵便局
- 水前寺駅前郵便局
- 医療
-
- 朋岳会伊井産婦人科病院
- 泌尿器科専門病院川野病院
- 誠療会成尾整形外科病院
- 社会医療法人令和会熊本整形外科病院
- 保育施設
-
- 幼保連携型認定こども園九州学院みどり幼稚園
- 白山保育園
- ひまわり保育園
- 王栄幼稚園
- 学校
-
- 国立熊本大学薬学部
- 私立九州学院高校
- 私立真和高校
- 私立九州学院中学校
プレミスト大江本町周辺の物件情報
周辺の問合せ可能な物件
熊本県熊本市中央区の問合せ可能な物件のうち、この物件の周辺にあるものから表示しています
賃貸
-
募集中
- LIBTH味噌天神
- 5.7万円
- 熊本市電A系統 味噌天神前駅 徒歩1分
- 熊本県熊本市中央区大江本町
- 29.0m² / ワンルーム
-
募集中
- ヴィラ大江
- 3.1万円
- 熊本市電A系統 味噌天神前駅 徒歩2分
- 熊本県熊本市中央区大江本町
- 25.0m² / 1K
-
募集中
- ロフティ天神
- 3.3万円
- 熊本市電A系統 味噌天神前駅 徒歩2分
- 熊本県熊本市中央区大江本町
- 22.0m² / ワンルーム
-
募集中
- ベアーズビル
- 3.1万円
- 熊本市電A系統 味噌天神前駅 徒歩3分
- 熊本県熊本市中央区大江本町
- 23.4m² / ワンルーム
-
募集中
- 熊本市電A系統 味噌天神前駅 徒歩3分
- 3.1万円
- 熊本市電A系統 味噌天神前駅 徒歩3分
- 熊本県熊本市中央区大江本町
- 23.4m² / ワンルーム
-
募集中
- フェリーチェ味噌天神
- 5.7万円
- 熊本市電A系統 味噌天神前駅 徒歩2分
- 熊本県熊本市中央区大江本町7-7
- 37.06m² / 1LDK
-
募集中
- プレシャスアパートメント
- 5.85万円
- 熊本市電A系統 味噌天神前駅 徒歩2分
- 熊本県熊本市中央区大江5丁目
- 54.3m² / 1LDK
-
募集中
- ムライチ・大江プレミアム
- 19.2万円
- JR豊肥本線 新水前寺駅 徒歩8分
- 熊本県熊本市中央区大江5丁目5番8、5番46
- 108.48m² / 3LDK
-
募集中
- JR豊肥本線 新水前寺駅 徒歩5分
- 5.3万円
- JR豊肥本線 新水前寺駅 徒歩5分
- 熊本県熊本市中央区白山2丁目
- 28.92m² / ワンルーム
-
募集中
- NKビル
- 2.3万円
- 熊本市電A系統 交通局前駅 徒歩4分
- 熊本県熊本市中央区大江本町
- 18.0m² / 1K
新築マンション
※完成後1年以上経過した未入居の物件が含まれている場合があります
-
売出し中
- 熊本市電A系統「通町筋」駅 徒歩6分
- 未定
- 熊本市電A系統「通町筋」駅 徒歩6分
- 熊本県熊本市中央区上通町11番4他
- 110.34m² / 1LDK~3LDK
-
売出し中
- 熊本市電A系統「交通局前」駅 徒歩4分
- 4,080万円 ~ 4,590万円
- 熊本市電A系統「交通局前」駅 徒歩4分
- 熊本県熊本市中央区大江本町1-25(地番)
- 80.85m² / 3LDK
-
売出し中
- 熊本市電A系統「慶徳校前」駅 徒歩2分
- 5,198万円
- 熊本市電A系統「慶徳校前」駅 徒歩2分
- 熊本県熊本市中央区練兵町 97-1(地番)
- 70.49m² / 3LDK
-
売出し中
- 熊本市電B系統「通町筋」駅 徒歩6分
- 2,948万円~4,248万円
- 熊本市電B系統「通町筋」駅 徒歩6分
- 熊本県熊本市中央区上通町10番29(地番)
- 50.02m² / 1LDK・2LDK
-
売出し中
- JR鹿児島本線「熊本」駅 徒歩26分
- 3,600万円~3,950万円
- JR鹿児島本線「熊本」駅 徒歩26分
- 熊本県熊本市中央区新町一丁目3番1(地番)
- 67.66m² / 2LDK
-
売出し中
- JR豊肥本線「新水前寺」駅 徒歩2分
- 4,448万円~5,728万円
- JR豊肥本線「新水前寺」駅 徒歩2分
- 熊本県熊本市中央区水前寺一丁目410-1(地番)
- 76.74m² / 2LDK・3LDK
中古マンション
-
売出し中
- ライオンズマンション味噌天神
- 880万円
- 熊本市電A系統 味噌天神前駅 徒歩2分
- 熊本県熊本市中央区大江5丁目
- 45.36m² / 2DK
-
売出し中
- アンピール新水前寺
- 3480万円
- 熊本市電A系統 新水前寺駅前駅 徒歩1分
- 熊本県熊本市中央区国府1丁目11-6
- 68.86m² / 3LDK
-
売出し中
- ライオンズマンション水前寺第2
- 1700万円
- JR豊肥本線 新水前寺駅 徒歩5分
- 熊本県熊本市中央区水前寺1丁目
- 78.0m² / 3LDK
-
売出し中
- ライオンズマンション熊高前
- 2280万円
- JR豊肥本線 水前寺駅 徒歩5分
- 熊本県熊本市中央区新大江1丁目9-18
- 94.77m² / 2LDK
-
売出し中
- ダイアパレスグランデージ大江
- 2300万円
- 熊本市電A系統 味噌天神前駅 徒歩9分
- 熊本県熊本市中央区大江3丁目8-33
- 83.54m² / 4LDK
-
売出し中
- レクシアシティ九品寺グラナス
- 3100万円
- 熊本市電A系統 味噌天神前駅 徒歩9分
- 熊本県熊本市中央区九品寺5丁目2-50
- 61.95m² / 2LDK
-
売出し中
- エイルマンション白山通り
- 2730万円
- JR豊肥本線 新水前寺駅 徒歩10分
- 熊本県熊本市中央区菅原町
- 72.51m² / 3LDK
-
売出し中
- フラワーマンション九品寺
- 520万円
- 熊本市電A系統 九品寺交差点駅 徒歩4分
- 熊本県熊本市中央区九品寺2丁目2-40
- 62.0m² / 2SLDK
-
売出し中
- コアマンション新水前寺II
- 2399万円
- JR豊肥本線 新水前寺駅 徒歩7分
- 熊本県熊本市中央区国府3丁目8-5
- 71.44m² / 3LDK
-
売出し中
- 九品寺サンシャイン
- 1590万円
- 熊本市電A系統 九品寺交差点駅 徒歩6分
- 熊本県熊本市中央区九品寺2丁目8-17
- 54.45m² / 2LDK
一戸建て
-
売出し中
- 大江6丁目3階建駐車場2台
- 3919万円
- 熊本市電A系統 味噌天神前駅 徒歩7分
- 熊本県熊本市中央区大江6丁目11-3
- 119.25m² / 4SLDK
-
売出し中
- 未使用戸建 中央区菅原町 2号棟
- 3290万円
- JR豊肥本線 新水前寺駅 徒歩9分
- 熊本県熊本市中央区菅原町4-26付近
- 95.53m² / 4LDK
-
売出し中
- JR豊肥本線「新水前寺」駅 徒歩9分
- 3290万円
- JR豊肥本線「新水前寺」駅 徒歩9分
- 熊本県熊本市中央区菅原町
- 95.53m² / 4LDK
-
売出し中
- 中央区九品寺1丁目戸建
- 5988万円
- バス九品寺一丁目停 徒歩3分
- 熊本県熊本市中央区九品寺1丁目9-27
- 122.99m² / 3LDK
-
売出し中
- 中央区国府本町
- 2798万円
- JR豊肥本線 新水前寺駅 徒歩13分
- 熊本県熊本市中央区国府本町8-35
- 85.29m² / 3LDK
-
売出し中
- 熊本県熊本市中央区国府4丁目
- 2500万円
- 熊本市電A系統 国府駅 徒歩16分
- 熊本県熊本市中央区国府4丁目
- 74.75m² / 2LDK
-
売出し中
- イデアキューブ出水小西1号地
- 3880万円
- バス出水中学校前停 徒歩3分
- 熊本県熊本市中央区国府4丁目3-30 一部
- 108.47m² / 3LDK
-
売出し中
- 熊本市中央区出水3丁目
- 3300万円
- 熊本市電A系統 水前寺公園駅 徒歩9分
- 熊本県熊本市中央区出水3丁目
- 113.01m² / 6LDK
-
売出し中
- 中央区国府本町
- 2780万円
- JR豊肥本線 南熊本駅 徒歩12分
- 熊本県熊本市中央区国府本町1-31
- 128.04m² / 4LDK
-
売出し中
- 中央区国府4丁目戸建
- 1250万円
- 熊本市電A系統 水前寺公園駅 徒歩12分
- 熊本県熊本市中央区国府4丁目9-47
- 119.99m² / 5LDK
注文住宅
※表示価格は延べ床面積約132m²の場合の建物価格の参考値です
-
資料請求受付中
- 2400万円〜
- 株式会社アリスト
- アリスト施工例集
-
資料請求受付中
- 1800万円〜
- 株式会社国分ハウジング
- 国分ハウジングハウスデザインカタログ
-
資料請求受付中
- 2000万円〜
- 一条工務店
- 【一条工務店】 建築実例集3冊セット(HOME’S限定)
-
資料請求受付中
- 2200万円〜
- 株式会社Lib Work
- LibWork総合カタログ
-
資料請求受付中
- 2800万円〜
- 【悠悠ホーム | 健康、快適、長寿命の家】
- 【悠悠ホーム】オーナー様邸 施工実例集 20選 《人気の平屋間取り付き》
-
資料請求受付中
- 1868万円〜
- タマホーム株式会社
- 大安心の家シリーズ
-
資料請求受付中
- 3400万円〜
- 東宝ホーム株式会社 熊本支店
- LEGAGE
-
資料請求受付中
- 3000万円〜
- セキスイハイム
- 【セキスイハイム|平屋】ザ・デザイナーズハイムD1
エリア・駅で絞り込んで探す
物件の種類から探す
熊本市中央区で募集中の物件のみを検索できます
掲載情報に誤りや問題がある場合
LIFULL HOME'Sは「不動産会社」ではなく「情報掲載サイト」です
- ※管理会社の情報はLIFULL HOME'Sでは保持していないためお答えできません。お問合せはお控えください
- ※最新の募集状況は掲載中の不動産会社があれば、不動産会社へ直接お問合せください
掲載情報の訂正依頼 専用ダイヤル
0120-987-243
- 専用ダイヤル受付時間:10:00〜18:00
- ※土日・祝日、臨時休業日は除く
不動産データのご利用について
不動産事業におけるDX、サービスの改善、新規事業開発等をご検討中の方へ不動産データの活用をご提案します。LIFULL HOME'Sで集約した不動産情報や外部データは、不動産事業DX、不正決済防止、ローン審査、事業開発、研究等さまざまな事業でご活用いただいています。詳しくは以下よりご確認ください。
不動産アーカイブご利用アンケートにご協力ください
不動産アーカイブの掲載情報は、LIFULL HOME'S掲載の不動産情報および提携先の不動産情報を統計情報として集積したものであり、その存在や信憑性を保証するものではありません。