このページは物件の広告情報ではありません。
過去にLIFULL HOME'Sへ掲載された不動産情報と提携先の地図情報を元に生成した参考情報です。また、一般から投稿された情報など主観的な情報も含みます。
情報更新日: 2026/01/08
アルファスマート市駅西
スポンサーリンク
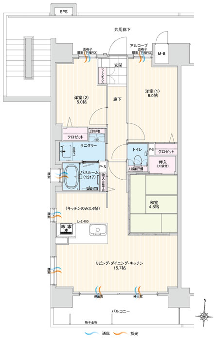
アルファスマート市駅西の建物情報
物件概要
| 物件種別 | マンション |
|---|---|
| 築年月(築年数) | 2015年5月 (築11年) |
| 建物構造 | 鉄筋コンクリート造 地上9階建て |
| 総戸数/総区画数 | 40戸 |
| 敷地全体面積 | 940.11平米 |
| 用途地域 | 近隣商業 |
| 地目 | 宅地 |
| 土地権利 | 所有権 |
| 建築確認番号 | 第ERI14019419号(平成26年5月19日付) |
| 施工会社 | 小竹興業株式会社 |
| 売主 | 穴吹興産株式会社 |
| 販売会社 | 穴吹興産株式会社(売主)、株式会社あなぶきリアルエステート(販売代理) |
設備・条件
- 太陽光発電
- 追い焚き
- 浴室乾燥機
- IHコンロ
- コンロ三口以上
- システムキッチン
- 食器洗い乾燥機
- 高効率給湯器
- 浄水器・活水器
- ウォークインクローゼット
- ブロードバンド
- バリアフリー
- 複層ガラス採用(二重サッシ・防犯サッシ等)
- オートロック
- 防犯カメラ
- セキュリティ充実
- エレベーター
- ペット用施設
- 住宅性能評価書
- 南向き
- 環境にやさしい
- 子育てに優しい環境
- スーパー800m以内
- コンビニ400m以内
- 小学校800m以内
- 総合病院800m以内
- 公園400m以内
- フィットネス施設(プール含む)800m以内
※最新の状態と異なる場合があります
売りたい不動産をお持ちの方へ
このエリアの所有不動産を査定する
売却査定手続きの流れ、費用相場や注意点など不動産売却について詳しく知りたい方はLIFULL HOME'S 不動産査定へ
アルファスマート市駅西の周辺施設
-
買い物
日用品 -
- くすりのレデイ藤原店
- ローソン 松山土橋町店
- セブンイレブン 松山土橋町店
- フジ 藤原店
- 買い物
大型店 -
- ケーズデンキ 松山藤原店
- いよてつ高島屋
- ハンズ松山店
- ハニーズ まつちかタウン店
- グルメ
-
- スターバックスコーヒー松山湊町店
- ドトールコーヒーショップ松山市駅店
- はなまるうどん 松山竹原店
- 珈琲館まつちか店
- 娯楽施設
-
- 松山市総合コミュニティセンター体育館
- 松山市総合コミュニティセンターこども館コスモシアター
- 松山市総合コミュニティセンター温水プール
- 石手川スポーツパーク
- 文化施設
-
- 愛媛県美術館
- 役所
公共施設 -
- 松山土橋郵便局
- 松山市立中央図書館
- まつやまマドンナ郵便局
- 松山小栗町郵便局
- 医療
-
- 和光会土橋共立病院
- 医療法人和昌会貞本病院
- 松山笠置記念心臓血管病院
- 愛媛県立中央病院
- 保育施設
-
- 幼保連携型認定こども園ゆめの森こども園
- ロザリオ幼稚園
- 幼保連携型認定こども園法龍寺こども園
- 認定こども園アイドル園
- 学校
-
- 松山市立雄郡小学校
- 愛媛県立松山工業高校
- 私立済美高校
- 愛媛県立松山南高校
アルファスマート市駅西周辺の物件情報
周辺の問合せ可能な物件
愛媛県松山市の問合せ可能な物件のうち、この物件の周辺にあるものから表示しています
賃貸
-
募集中
- ロイヤル・ステージ藤原
- 6.4万円
- 伊予鉄道郡中線 土橋駅 徒歩6分
- 愛媛県松山市藤原町
- 48.95m² / 1LDK
-
募集中
- エミネンス藤原町
- 5.3万円
- 伊予鉄道郡中線 土橋駅 徒歩5分
- 愛媛県松山市藤原町631-5
- 35.2m² / 1K
-
募集中
- 第11ドリームマンション
- 3.5万円
- 伊予鉄道郡中線 土橋駅 徒歩4分
- 愛媛県松山市北藤原町
- 25.49m² / 1K
-
募集中
- レーベン松山市駅 THE FRONT
- 13万円
- 伊予鉄道郡中線 土橋駅 徒歩5分
- 愛媛県松山市北藤原町
- 70.66m² / 3LDK
-
募集中
- アルファステイツ市駅西
- 10.6万円
- 伊予鉄道郡中線 土橋駅 徒歩3分
- 愛媛県松山市北藤原町
- 67.29m² / 3LDK
-
募集中
- 伊予鉄道郡中線 土橋駅 徒歩5分
- 7.5万円
- 伊予鉄道郡中線 土橋駅 徒歩5分
- 愛媛県松山市北藤原町1-5
- 53.55m² / 1LDK
-
募集中
- エクセルコートII
- 7.5万円
- 伊予鉄道郡中線 土橋駅 徒歩5分
- 愛媛県松山市北藤原町1-5
- 53.55m² / 1LDK
-
募集中
- 伊予鉄道郡中線 土橋駅 徒歩2分
- 10.5万円
- 伊予鉄道郡中線 土橋駅 徒歩2分
- 愛媛県松山市北藤原町3-1
- 58.74m² / 2LDK
-
募集中
- シェレナ北藤原
- 4.7万円
- 伊予鉄道横河原線 松山市駅 徒歩5分
- 愛媛県松山市北藤原町1-18
- 27.04m² / 1K
-
募集中
- 伊予鉄道横河原線 松山市駅 徒歩5分
- 4.7万円
- 伊予鉄道横河原線 松山市駅 徒歩5分
- 愛媛県松山市北藤原町1-18
- 27.04m² / 1K
新築マンション
※完成後1年以上経過した未入居の物件が含まれている場合があります
-
売出し中
- 伊予鉄道高浜線「衣山」駅 徒歩3分
- 未定
- 伊予鉄道高浜線「衣山」駅 徒歩3分
- 愛媛県松山市美沢二丁目740-3
- 83.83m² / 2LDK、3LDK
-
売出し中
- 伊予鉄道松山駅前線「道後公園」駅 徒歩3分
- 未定
- 伊予鉄道松山駅前線「道後公園」駅 徒歩3分
- 愛媛県松山市岩崎町一丁目243番1(地番)
- 136.41m² / 3LDK
-
売出し中
- 伊予鉄道環状線(JR松山駅経由)「清水町」駅 徒歩6分
- 3,650万円~4,920万円
- 伊予鉄道環状線(JR松山駅経由)「清水町」駅 徒歩6分
- 愛媛県松山市清水町三丁目36番(地番)
- 77.13m² / 2LDK・3LDK
-
売出し中
- 伊予鉄道環状線(JR松山駅経由)「勝山町」駅 徒歩3分
- 2,900万円台~13,000万円台(予定)
- 伊予鉄道環状線(JR松山駅経由)「勝山町」駅 徒歩3分
- 愛媛県松山市御宝町134-1(地番)
- 128.07m² / 2LDK+S・3LDK
-
売出し中
- 伊予鉄道高浜線「松山市」駅 徒歩10分
- 3,398万円~5,268万円
- 伊予鉄道高浜線「松山市」駅 徒歩10分
- 愛媛県松山市柳井町一丁目12番5 、愛媛県松山市河原町5番4(地番)
- 90.27m² / 3LDK
-
売出し中
- 伊予鉄道環状線(JR松山駅経由)「平和通一丁目」駅 徒歩12分
- 2,790万円(1戸)、3,280万円(3戸)
- 伊予鉄道環状線(JR松山駅経由)「平和通一丁目」駅 徒歩12分
- 愛媛県松山市祝谷三丁目74番1
- 70.51m² / 3LDK
中古マンション
-
売出し中
- レーベン松山市駅 THE FRONT
- 3580万円
- 伊予鉄道 松山市駅まで徒歩6分
- 愛媛県松山市北藤原町
- 83.09m² / 3LDK
-
売出し中
- アルファステイツ千舟町通り
- 3490万円
- 該当無し
- 愛媛県松山市千舟町6丁目
- 84.83m² / 3LDK
-
売出し中
- シャンボール千舟
- 1460万円
- 該当無し
- 愛媛県松山市千舟町6丁目
- 71.69m² / 3LDK
-
売出し中
- サーパス市駅前
- 2790万円
- 該当無し
- 愛媛県松山市千舟町6丁目
- 72.01m² / 3LDK
-
売出し中
- エバーグリーン松山2号館
- 2180万円
- 伊予鉄道郡中線 土橋駅 徒歩7分
- 愛媛県松山市竹原2丁目1-53
- 85.19m² / 2SLDK
-
売出し中
- サーパス市駅南
- 2800万円
- 伊予鉄道横河原線 松山市駅 徒歩7分
- 愛媛県松山市春日町
- 85.92m² / 4LDK
-
売出し中
- サンシティ市駅南
- 2290万円
- 伊予鉄道郡中線 松山市駅 徒歩10分
- 愛媛県松山市室町2丁目
- 67.27m² / 3LDK
-
売出し中
- アルファステイツ竹原
- 2800万円
- バス 西竹原下車 徒歩2分
- 愛媛県松山市竹原2丁目
- 90.76m² / 3LDK
-
売出し中
- クラース三番町
- 3990万円
- 伊予鉄道高浜線 大手町駅 徒歩4分
- 愛媛県松山市三番町7丁目
- 82.93m² / 3LDK
-
売出し中
- シティタワー松山
- 3280万円
- 伊予鉄道横河原線 松山市駅 徒歩5分
- 愛媛県松山市三番町5丁目
- 77.61m² / 2LDK
一戸建て
-
売出し中
- 中古戸建
- 1980万円
- 伊予鉄道横河原線 石手川公園駅 徒歩11分
- 愛媛県松山市小栗1丁目
- 96.8m² / 3LDK
-
売出し中
- 中古戸建
- 1490万円
- 伊予鉄道郡中線 土橋駅 徒歩11分
- 愛媛県松山市竹原3丁目
- 81.14m² / 3LDK
-
売出し中
- 松山市雄郡2丁目
- 880万円
- 竹原南バス停まで徒歩1分 竹原南バス停まで徒歩1分
- 愛媛県松山市雄郡2丁目
- 78.51m² / 4K
-
売出し中
- 松山市小栗 一戸建
- 3380万円
- 伊予鉄道郡中線 土橋駅 徒歩16分
- 愛媛県松山市小栗2丁目
- 113.44m² / 3LDK
-
売出し中
- 土居田町 中古戸建
- 1770万円
- 伊予鉄道郡中線 土居田駅 徒歩10分
- 愛媛県松山市土居田町114番4(114番4、115番7)
- 112.5m² / 5SLDK
-
売出し中
- 中古戸建
- 1770万円
- 伊予鉄道郡中線 土居田駅 徒歩10分
- 愛媛県松山市土居田町
- 112.5m² / 5DK
-
売出し中
- 松山市宮田町 一戸建
- 690万円
- 伊予鉄道環状線(JR松山駅経由) 宮田町駅 徒歩3分
- 愛媛県松山市宮田町148-10、148-3
- 48.65m² / 2DK
-
売出し中
- 松山市土居田町 一戸建 LAVIE土居田2502B
- 3250万円
- 伊予鉄道郡中線 土居田駅 徒歩9分
- 愛媛県松山市土居田町195-14
- 107.64m² / 4SLDK
-
売出し中
- 新築戸建
- 3250万円
- 伊予鉄道郡中線 土居田駅 徒歩7分
- 愛媛県松山市土居田町
- 107.64m² / 4SLDK
-
売出し中
- 松山市立花 一戸建
- 3270万円
- 伊予鉄道横河原線 いよ立花駅 徒歩8分
- 愛媛県松山市立花六丁目3-43
- 172.98m² / 8DK
注文住宅
※表示価格は延べ床面積約132m²の場合の建物価格の参考値です
-
資料請求受付中
- 2400万円〜
- KOYO ARCHITECTS
- 総合カタログ
-
資料請求受付中
- 1868万円〜
- タマホーム株式会社
- 大安心の家シリーズ
-
資料請求受付中
- 3000万円〜
- セキスイハイム
- 【セキスイハイム|平屋】ザ・デザイナーズハイムD1
-
資料請求受付中
- 2800万円〜
- ミサワホーム株式会社
- 【MISAWA】ミサワホーム代表カタログ3冊セット(HOME'S限定)
-
資料請求受付中
- -
- 積水ハウス
- BRAND BOOK
-
資料請求受付中
- 2000万円〜
- 一条工務店
- 【一条工務店】 建築実例集3冊セット(HOME’S限定)
-
資料請求受付中
- 2800万円〜
- 株式会社アイ工務店 愛媛支店
- The Concept Book
-
資料請求受付中
- 3200万円〜
- ダイワハウス
- 【ダイワハウス】 xevoΣ<ジーヴォシグマ> ~天井高2m72cmの高さというゆとり空間~
エリア・駅で絞り込んで探す
愛媛県のアルファスマートが含まれるマンション
物件の種類から探す
松山市で募集中の物件のみを検索できます
掲載情報に誤りや問題がある場合
LIFULL HOME'Sは「不動産会社」ではなく「情報掲載サイト」です
- ※管理会社の情報はLIFULL HOME'Sでは保持していないためお答えできません。お問合せはお控えください
- ※最新の募集状況は掲載中の不動産会社があれば、不動産会社へ直接お問合せください
掲載情報の訂正依頼 専用ダイヤル
0120-987-243
- 専用ダイヤル受付時間:10:00〜18:00
- ※土日・祝日、臨時休業日は除く
不動産データのご利用について
不動産事業におけるDX、サービスの改善、新規事業開発等をご検討中の方へ不動産データの活用をご提案します。LIFULL HOME'Sで集約した不動産情報や外部データは、不動産事業DX、不正決済防止、ローン審査、事業開発、研究等さまざまな事業でご活用いただいています。詳しくは以下よりご確認ください。
不動産アーカイブご利用アンケートにご協力ください
不動産アーカイブの掲載情報は、LIFULL HOME'S掲載の不動産情報および提携先の不動産情報を統計情報として集積したものであり、その存在や信憑性を保証するものではありません。