このページは物件の広告情報ではありません。
過去にLIFULL HOME'Sへ掲載された不動産情報と提携先の地図情報を元に生成した参考情報です。また、一般から投稿された情報など主観的な情報も含みます。
情報更新日: 2025/11/26
ザ・パークハウス 追浜 サンシャインフォート
スポンサーリンク
ザ・パークハウス 追浜 サンシャインフォートの建物情報
物件概要
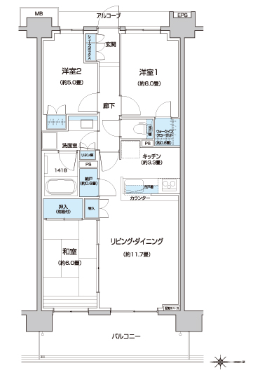
| 物件種別 | マンション |
|---|---|
| 築年月(築年数) | 2014年10月 (築12年) |
| 建物構造 | 鉄筋コンクリート造地上7階建 |
| 総戸数/総区画数 | 96戸 |
| 敷地全体面積 | 54953.38m2 |
| 用途地域 | 第一種中高層住居専用 |
| 地目 | 宅地 |
| 土地権利 | 所有権 |
| 建築確認番号 | - |
| 売主 | 三菱地所レジデンス株式会社 |
| 販売会社 | 三菱地所レジデンス株式会社(売主) |
設備・条件
- 太陽光発電
- 追い焚き
- 浴室乾燥機
- IHコンロ
- システムキッチン
- 食器洗い乾燥機
- オートロック
- 防犯カメラ
- キッズルーム
- 環境にやさしい
- スーパー800m以内
- 小学校800m以内
※最新の状態と異なる場合があります
売りたい不動産をお持ちの方へ
このエリアの所有不動産を査定する
売却査定手続きの流れ、費用相場や注意点など不動産売却について詳しく知りたい方はLIFULL HOME'S 不動産査定へ
ザ・パークハウス 追浜 サンシャインフォートの周辺施設
-
買い物
日用品 -
- ローソン 横須賀追浜町一丁目店
- セブンイレブン 横須賀追浜町店
- ローソンストア100 追浜駅前店
- ローソン ・スリーエフ追浜東町店
- 買い物
大型店 -
- サンビーチ追浜
- グルメ
-
- 吉野家 16号線追浜店
- 松屋 追浜店
- CoCo壱番屋 京急追浜駅前店
- なか卯 追浜駅前店
- 娯楽施設
-
- 鷹取公園
- 追浜公園
- 追浜公園テニスコート
- 役所
公共施設 -
- 横須賀浦郷郵便局
- 横須賀本浦郵便局
- 追浜郵便局
- 横須賀市立北図書館
- 医療
-
- 鳥海医院
- 社会福祉法人湘南福祉協会総合病院湘南病院
- 保育施設
-
- キッズアカデミーぎんのすずこども園
- ぎんのすず保育園
- パンダ保育園
- パンダ保育園分園こぱんだ
- 学校
-
- 横須賀市立浦郷小学校
- 横須賀市立鷹取中学校
- 横須賀市立夏島小学校
- 横須賀市立田浦中学校
ザ・パークハウス 追浜 サンシャインフォート周辺の物件情報
周辺の問合せ可能な物件
神奈川県横須賀市の問合せ可能な物件のうち、この物件の周辺にあるものから表示しています
賃貸
-
募集中
- ヒルサイド追浜
- 5.2万円
- 京急本線 追浜駅 徒歩8分
- 神奈川県横須賀市追浜町2丁目55-7
- 20.22m² / 1K
-
募集中
- ユナイト追浜ストラスブール
- 4.8万円
- 京急本線 追浜駅 徒歩8分
- 神奈川県横須賀市追浜町2丁目35-24
- 12.74m² / ワンルーム
-
募集中
- 京急本線 追浜駅 徒歩8分
- 4.8万円
- 京急本線 追浜駅 徒歩8分
- 神奈川県横須賀市追浜町2丁目35-24
- 12.74m² / ワンルーム
-
募集中
- サンデュエル湘南浜見台
- 10.8万円
- 京急本線 追浜駅 徒歩11分
- 神奈川県横須賀市浜見台1丁目
- 54.5m² / 2LDK
-
募集中
- 京急本線 追浜駅 徒歩9分
- 4.6万円
- 京急本線 追浜駅 徒歩9分
- 神奈川県横須賀市追浜町2丁目35-3
- 12.74m² / ワンルーム
-
募集中
- ユナイト追浜モンペリエ
- 4.6万円
- 京急本線 追浜駅 徒歩9分
- 神奈川県横須賀市追浜町2丁目35-3
- 12.74m² / ワンルーム
-
募集中
- 京急本線 追浜駅 徒歩13分
- 5.6万円
- 京急本線 追浜駅 徒歩13分
- 神奈川県横須賀市追浜東町2丁目1-16
- 20.3m² / ワンルーム
-
募集中
- 京急本線 追浜駅 徒歩9分
- 2.9万円
- 京急本線 追浜駅 徒歩9分
- 神奈川県横須賀市浜見台1丁目6-5
- 17.95m² / ワンルーム
-
募集中
- サンシティレジデンス
- 2.9万円
- 京急本線 追浜駅 徒歩9分
- 神奈川県横須賀市浜見台1丁目6-5
- 17.95m² / ワンルーム
-
募集中
- ハーミットクラブハウス追浜ヒルズ
- 5.6万円
- 京急本線 追浜駅 徒歩12分
- 神奈川県横須賀市追浜東町2丁目1-16
- 20.3m² / ワンルーム
新築マンション
※完成後1年以上経過した未入居の物件が含まれている場合があります
中古マンション
-
売出し中
- ザ・パークハウス追浜オーシャンフォート
- 3380万円
- 京急本線 追浜駅 徒歩14分
- 神奈川県横須賀市追浜東町2丁目
- 75.96m² / 3LDK
-
売出し中
- ザ・パークハウス追浜サンシャインフォート
- 3280万円
- 京急本線 追浜駅 徒歩10分
- 神奈川県横須賀市追浜東町2丁目3-1
- 72.6m² / 3LDK
-
売出し中
- プレディオ追浜
- 1990万円
- 京急本線 追浜駅 徒歩16分
- 神奈川県横須賀市追浜東町1丁目28-33
- 67.59m² / 2LDK
-
売出し中
- ビューパレス浜見台
- 780万円
- 京急本線 追浜駅 バス17分 追浜東団地集会所下車 徒歩2分
- 神奈川県横須賀市追浜東町1丁目28-17
- 67.53m² / 2DK
-
売出し中
- ダイアパレスウィザス追浜
- 1280万円
- 京急本線 追浜駅 徒歩17分
- 神奈川県横須賀市追浜東町1丁目28-1
- 60.26m² / 3LDK
-
売出し中
- 追浜パーク・ホームズ
- 1399万円
- 京急本線 追浜駅 徒歩19分
- 神奈川県横須賀市追浜東町1丁目31-24
- 62.2m² / 3LDK
-
売出し中
- ルネ追浜I
- 2980万円
- 京急本線 追浜駅 徒歩13分
- 神奈川県横須賀市追浜東町2丁目
- 76.13m² / 3LDK
-
売出し中
- クリオ湘南田浦参番館
- 2380万円
- 京急本線 京急田浦駅 徒歩11分
- 神奈川県横須賀市船越町6丁目16-21
- 100.41m² / 4LDK
-
売出し中
- クリオ湘南田浦壱番館 9階
- 3280万円
- 京急本線 京急田浦駅 徒歩10分
- 神奈川県横須賀市船越町6丁目16-29
- 93.75m² / 4LDK
一戸建て
-
売出し中
- 追浜東町1丁目(オーナーチェンジ)
- 828万円
- 京急本線 追浜駅 徒歩17分
- 神奈川県横須賀市追浜東町1丁目7
- 43.67m² / 3K
-
売出し中
- 追浜東町三丁目中古戸建
- 420万円
- 京急本線 追浜駅 徒歩12分
- 神奈川県横須賀市追浜東町3丁目6-10
- 52.17m² / 2LDK
-
売出し中
- 京急本線 追浜駅 徒歩16分
- 4190万円
- 京急本線 追浜駅 徒歩16分
- 神奈川県横須賀市浜見台2丁目
- 97.09m² / 3SLDK
-
売出し中
- 京急本線 追浜駅 徒歩16分
- 3890万円
- 京急本線 追浜駅 徒歩16分
- 神奈川県横須賀市浜見台2丁目
- 96.88m² / 4LDK
-
売出し中
- 京急本線 追浜駅 徒歩16分
- 4290万円
- 京急本線 追浜駅 徒歩16分
- 神奈川県横須賀市浜見台2丁目
- 97.4m² / 2SLDK
-
売出し中
- 追浜東町3丁目 オーナーチェンジ戸建
- 730万円
- 京急本線 追浜駅 徒歩10分
- 神奈川県横須賀市追浜東町3丁目
- 107.0m² / 6DK
-
売出し中
- 横須賀市追浜町1丁目 中古戸建
- 4130万円
- 京急本線 追浜駅 徒歩10分
- 神奈川県横須賀市追浜町1丁目
- 84.87m² / 3LDK
-
売出し中
- 横須賀市船越町8丁目 4号棟 全5棟 戸建て
- 3580万円
- 京急本線 京急田浦駅 徒歩15分
- 神奈川県横須賀市船越町8丁目
- 97.71m² / 4LDK
-
売出し中
- 築後未入居戸建 追浜 全2棟 A号棟
- 3480万円
- 京急本線 追浜駅 徒歩17分
- 神奈川県横須賀市浦郷町3丁目
- 101.02m² / 4LDK
-
売出し中
- 京急本線 追浜駅 徒歩15分
- 3480万円
- 京急本線 追浜駅 徒歩15分
- 神奈川県横須賀市浦郷町3丁目
- 101.02m² / 4LDK
注文住宅
※表示価格は延べ床面積約132m²の場合の建物価格の参考値です
エリア・駅で絞り込んで探す
神奈川県のザ・パークハウスが含まれるマンション
周辺の建物情報
物件の種類から探す
横須賀市で募集中の物件のみを検索できます
掲載情報に誤りや問題がある場合
LIFULL HOME'Sは「不動産会社」ではなく「情報掲載サイト」です
- ※管理会社の情報はLIFULL HOME'Sでは保持していないためお答えできません。お問合せはお控えください
- ※最新の募集状況は掲載中の不動産会社があれば、不動産会社へ直接お問合せください
掲載情報の訂正依頼 専用ダイヤル
0120-987-243
- 専用ダイヤル受付時間:10:00〜18:00
- ※土日・祝日、臨時休業日は除く
不動産データのご利用について
不動産事業におけるDX、サービスの改善、新規事業開発等をご検討中の方へ不動産データの活用をご提案します。LIFULL HOME'Sで集約した不動産情報や外部データは、不動産事業DX、不正決済防止、ローン審査、事業開発、研究等さまざまな事業でご活用いただいています。詳しくは以下よりご確認ください。
不動産アーカイブご利用アンケートにご協力ください
不動産アーカイブの掲載情報は、LIFULL HOME'S掲載の不動産情報および提携先の不動産情報を統計情報として集積したものであり、その存在や信憑性を保証するものではありません。