このページは物件の広告情報ではありません。
過去にLIFULL HOME'Sへ掲載された不動産情報と提携先の地図情報を元に生成した参考情報です。また、一般から投稿された情報など主観的な情報も含みます。
情報更新日: 2025/12/04
グランドヒルズ八事広路町
スポンサーリンク
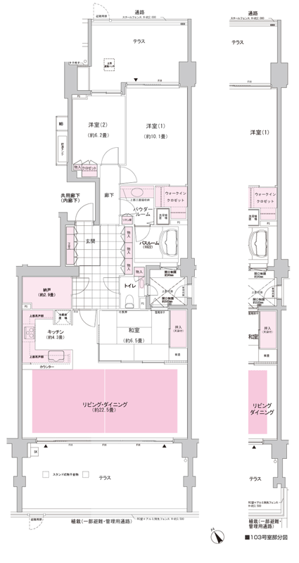
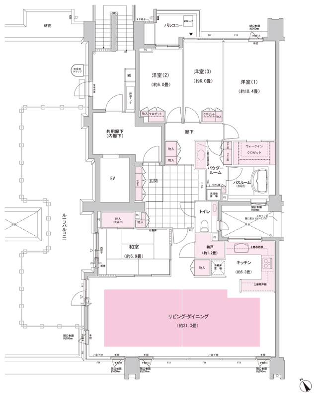
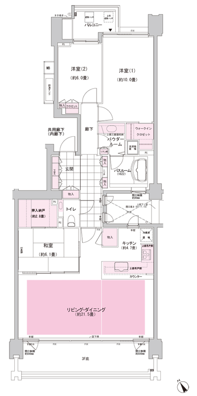
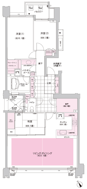
グランドヒルズ八事広路町の建物情報
物件概要
| 物件種別 | マンション |
|---|---|
| 築年月(築年数) | 2009年10月 (築17年) |
| 建物構造 | 鉄筋コンクリート造・地下2階地上7階建 |
| 総戸数/総区画数 | 63戸 |
| 敷地全体面積 | 5,644.94平米 |
| 管理人 | 日勤 |
| 用途地域 | 第一種中高層住居専用 |
| 地目 | 宅地 |
| 土地権利 | 所有権 |
| 売主 | 売主:住友不動産(株) |
| 販売会社 | 販売代理/住友不動産販売(株) |
設備・条件
- オール電化
- 追い焚き
- 浴室乾燥機
- 浴室1.6×2.0m以上
- IHコンロ
- システムキッチン
- 食器洗い乾燥機
- ディスポーザー
- 床暖房
- トランクルーム
- ブロードバンド
- バリアフリー
- オートロック
- 防犯カメラ
- 駐車場完備
- コンシェルジュサービス
- 住宅性能評価書
- 100m2以上
- 環境にやさしい
- スーパー800m以内
- コンビニ400m以内
- 小学校800m以内
※最新の状態と異なる場合があります
売りたい不動産をお持ちの方へ
このエリアの所有不動産を査定する
売却査定手続きの流れ、費用相場や注意点など不動産売却について詳しく知りたい方はLIFULL HOME'S 不動産査定へ
グランドヒルズ八事広路町の周辺施設
-
買い物
日用品 -
- セブンイレブン 名古屋半僧坊店
- ファミリーマート 昭和滝川町店
- ファミリーマート 杁中駅前店
- ドラッグスギヤマ杁中店
- 買い物
大型店 -
- 無印良品 イオン八事店
- ライトオン イオン八事店
- エディオン 八事店
- グルメ
-
- 木曽路 八事店
- ロイヤルホスト 八事店
- 吉野家 杁中店
- CoCo壱番屋 昭和杁中店
- 娯楽施設
-
- 隼人池公園
- コナミスポーツクラブいりなか
- 興正寺公園
- 八事ゴルフスタジオ
- 文化施設
-
- 昭和美術館
- 桑山美術館
- 南山大学人類学博物館
- 役所
公共施設 -
- 名古屋杁中郵便局
- 名古屋八事郵便局
- 名古屋山手通郵便局
- 医療
-
- 社会福祉法人聖霊会聖霊病院
- 保育施設
-
- 南山ルンビニー園
- まこと幼児園
- 南山幼稚園
- いりなか保育園分園
- 学校
-
- 名古屋市立滝川小学校
- 私立南山高校
- 名古屋市立八事小学校
- 私立南山中学校
グランドヒルズ八事広路町周辺の物件情報
周辺の問合せ可能な物件
愛知県名古屋市昭和区の問合せ可能な物件のうち、この物件の周辺にあるものから表示しています
賃貸
-
募集中
- サンシャイン隼人
- 3万円
- 名古屋市営鶴舞線 八事駅 徒歩9分
- 愛知県名古屋市昭和区広路町字隼人
- 27.6m² / ワンルーム
-
募集中
- メゾン日光
- 3.8万円
- 名古屋市営鶴舞線 いりなか駅 徒歩6分
- 愛知県名古屋市昭和区広路町字隼人
- 19.5m² / 1K
-
募集中
- 名古屋市営鶴舞線 いりなか駅 徒歩5分
- 3.8万円
- 名古屋市営鶴舞線 いりなか駅 徒歩5分
- 愛知県名古屋市昭和区広路町字隼人
- 19.5m² / 1K
-
募集中
- セレブタウン八事 VIII号館
- 9万円
- 名古屋市営鶴舞線 いりなか駅 徒歩7分
- 愛知県名古屋市昭和区広路町字南山
- 56.3m² / 2LDK
-
募集中
- ESPACE A
- 3.3万円
- 名古屋市営鶴舞線 いりなか駅 徒歩7分
- 愛知県名古屋市昭和区広路町字隼人
- 21.0m² / ワンルーム
-
募集中
- 名古屋市営鶴舞線 いりなか駅 徒歩6分
- 6.4万円
- 名古屋市営鶴舞線 いりなか駅 徒歩6分
- 愛知県名古屋市昭和区広路町字石坂
- 24.87m² / 1K
-
募集中
- ベルウッド南山
- 5.9万円
- 名古屋市営鶴舞線 八事駅 徒歩8分
- 愛知県名古屋市昭和区広路町字石坂43-1
- 24.87m² / 1K
-
募集中
- 名古屋市営鶴舞線 いりなか駅 徒歩6分
- 9.9万円
- 名古屋市営鶴舞線 いりなか駅 徒歩6分
- 愛知県名古屋市昭和区広路町字隼人5-1
- 88.3m² / 4LDK
新築マンション
※完成後1年以上経過した未入居の物件が含まれている場合があります
-
売出し中
- 名古屋市営桜通線「御器所」駅 徒歩5分
- 未定
- 名古屋市営桜通線「御器所」駅 徒歩5分
- 愛知県名古屋市昭和区広路本町一丁目5番1、6番
- 80.06m² / 2LDK~3LDK
-
売出し中
- 名古屋市営桜通線「桜山」駅 徒歩3分~4分 (【WEST】徒歩3分、【EAST】徒歩4分)
- 2,690万円~5,490万円
- 名古屋市営桜通線「桜山」駅 徒歩3分~4分 (【WEST】徒歩3分、【EAST】徒歩4分)
- 愛知県名古屋市昭和区【WEST】桜山町三丁目54番3(地番)、【EAST】名古屋市昭和区桜山町二丁目42番(地番)
- 60.8m² / 1LDK・3LDK
-
売出し中
- 名古屋市営鶴舞線「いりなか」駅 徒歩2分
- 未定
- 名古屋市営鶴舞線「いりなか」駅 徒歩2分
- 愛知県名古屋市昭和区隼人町5番7
- 90.41m² / 3LDK
-
売出し中
- 名古屋市営鶴舞線「いりなか」駅 徒歩8分
- 9,310万円~24,150万円
- 名古屋市営鶴舞線「いりなか」駅 徒歩8分
- 愛知県名古屋市昭和区南山町7-2他
- 136.42m² / 2LDK・3LDK・4LDK
-
売出し中
- 名古屋市営桜通線「桜山」駅 徒歩6分
- 4,860万円(1戸)~6,850万円(1戸)
- 名古屋市営桜通線「桜山」駅 徒歩6分
- 愛知県名古屋市昭和区大和町一丁目10番1,2(地番)
- 70.24m² / 2LDK・3LDK
-
売出し中
- 名古屋市営鶴舞線「御器所」駅 徒歩5分 (3番出口)
- 4,998万円~5,498万円
- 名古屋市営鶴舞線「御器所」駅 徒歩5分 (3番出口)
- 愛知県名古屋市昭和区阿由知通五丁目11番1
- 70.08m² / 2LDK~3LDK
-
売出し中
- 名古屋市営鶴舞線「いりなか」駅 徒歩9分
- 15,000万円(1戸)~24,800万円(1戸)
- 名古屋市営鶴舞線「いりなか」駅 徒歩9分
- 愛知県名古屋市昭和区南山町6番31
- 144.99m² / 2LDK,3LDK
中古マンション
-
売出し中
- リジェ南山
- 1億8000万円
- 名古屋市営鶴舞線 いりなか駅 徒歩9分
- 愛知県名古屋市昭和区南山町
- 113.65m² / 3LDK
-
売出し中
- ローレルコート滝川町ヒルズ
- 7580万円
- 名古屋市営鶴舞線 いりなか駅 徒歩4分
- 愛知県名古屋市昭和区滝川町71番3
- 86.73m² / 3LDK
-
売出し中
- グランドメゾン滝川
- 1490万円
- 名古屋市営鶴舞線 いりなか駅 徒歩6分
- 愛知県名古屋市昭和区滝川町
- 89.88m² / 3LDK
-
売出し中
- サザンヒル八事3号棟
- 3399万円
- 名古屋市営鶴舞線 いりなか駅 徒歩8分
- 愛知県名古屋市昭和区滝川町47
- 84.84m² / 3LDK
-
売出し中
- グランドメゾン滝川
- 1490万円
- 名古屋市営鶴舞線 いりなか駅 徒歩5分
- 愛知県名古屋市昭和区滝川町96
- 89.88m² / 3LDK
-
売出し中
- 名古屋市営鶴舞線 いりなか駅 徒歩4分
- 2890万円
- 名古屋市営鶴舞線 いりなか駅 徒歩4分
- 愛知県名古屋市昭和区滝川町
- 66.65m² / 3LDK
-
売出し中
- 杁中スカイタウンA棟
- 3050万円
- 名古屋市営鶴舞線 いりなか駅 徒歩2分
- 愛知県名古屋市昭和区滝川町
- 69.8m² / 2LDK
-
売出し中
- サザンヒル八事弐号棟
- 4280万円
- 名古屋市営鶴舞線 八事駅 徒歩8分
- 愛知県名古屋市昭和区滝川町
- 98.26m² / 4LDK
-
売出し中
- ライオンズマンション杁中ガーデン
- 1889万円
- 名古屋市営鶴舞線 いりなか駅 徒歩5分
- 愛知県名古屋市昭和区滝川町122
- 61.3m² / 3LDK
-
売出し中
- 名古屋市営鶴舞線 いりなか駅 徒歩8分
- 1889万円
- 名古屋市営鶴舞線 いりなか駅 徒歩8分
- 愛知県名古屋市昭和区滝川町
- 61.3m² / 3LDK
一戸建て
-
売出し中
- 名古屋市営鶴舞線「川名」駅 徒歩8分 自転車約3分
- 7,495万円(税込)~7,780万円(税込)
- 名古屋市営鶴舞線「川名」駅 徒歩8分 自転車約3分
- 愛知県名古屋市昭和区駒方町二丁目117-1他
- 137.76m² / 5LDK
-
売出し中
- 名古屋市昭和区駒方町2丁目 一戸建て
- 4450万円
- 名古屋市営鶴舞線 川名駅 徒歩6分
- 愛知県名古屋市昭和区駒方町2丁目113
- 97.14m² / 2SLDK
-
売出し中
- 名古屋市営名城線「八事日赤」駅 徒歩6分
- 未定
- 名古屋市営名城線「八事日赤」駅 徒歩6分
- 愛知県名古屋市昭和区八事富士見1204番1 他
- 125.15m² / 4LDK+WIC・SC・Pantry~
-
売出し中
- 昭和区長戸町1期 1号棟
- 5499万円
- 名古屋市営鶴舞線 川名駅 徒歩6分
- 愛知県名古屋市昭和区長戸町6丁目1番22
- 110.98m² / 4LDK
-
売出し中
- 名古屋市昭和区向山町2丁目 一戸建て
- 3890万円
- 名古屋市営鶴舞線 川名駅 徒歩11分
- 愛知県名古屋市昭和区向山町2丁目
- 63.55m² / 2SLDK
-
売出し中
- 八事富士見戸建
- 7500万円
- 名古屋市営名城線 八事日赤駅 徒歩7分
- 愛知県名古屋市昭和区八事富士見
- 131.6m² / 5LDK
-
売出し中
- 名古屋市営鶴舞線「川名」駅 徒歩10分
- 7,450万円~7,500万円
- 名古屋市営鶴舞線「川名」駅 徒歩10分
- 愛知県名古屋市昭和区長戸町五丁目41番2他
- 96.22m² / 3LDK(B号地)、4LDK(A号地)
-
売出し中
- 名古屋市昭和区南分町5丁目 一戸建て
- 5980万円
- 名古屋市営鶴舞線 川名駅 徒歩8分
- 愛知県名古屋市昭和区南分町5丁目
- 126.24m² / 3LDK
-
売出し中
- 昭和区広路本町532 1号棟
- 3980万円
- 名古屋市営鶴舞線 川名駅 徒歩4分
- 愛知県名古屋市昭和区広路本町5丁目32
- 71.73m² / 3LDK
-
売出し中
- 名古屋市昭和区山花町
- 6280万円
- 名古屋市営鶴舞線 川名駅 徒歩9分
- 愛知県名古屋市昭和区山花町
- 85.65m² / 3LDK
注文住宅
※表示価格は延べ床面積約132m²の場合の建物価格の参考値です
-
資料請求受付中
- 3000万円〜
- セキスイハイム
- 【セキスイハイム|平屋】ザ・デザイナーズハイムD1
-
資料請求受付中
- 2128万円〜
- いい家つくる。善匠
- HIRAYA(平屋特集)
-
資料請求受付中
- 2000万円〜
- 一条工務店
- 【一条工務店】 建築実例集3冊セット(HOME’S限定)
-
資料請求受付中
- 2324万円〜
- ヤマト住建株式会社
- 【エネージュLCCM】脱炭素社会へ!住まいのすべての過程でCO2排出量を抑える住宅
-
資料請求受付中
- -
- へーベルハウス
- 【ヘーベルハウス】:ヘーベルハウス総合カタログ
-
資料請求受付中
- 3200万円〜
- 三井ホーム株式会社
- 三井ホームのご紹介
-
資料請求受付中
- 2600万円〜
- 愛三株式会社
- 『ホイップハウス~体に優しい自然素材~』青空に映えるまっ白な外観と、カフェや雑貨屋さんのようなナチュラルフレンチのおうち。
-
資料請求受付中
- 3200万円〜
- ダイワハウス
- 【ダイワハウス】 xevoΣ<ジーヴォシグマ> ~天井高2m72cmの高さというゆとり空間~
-
資料請求受付中
- 3600万円〜
- トヨタT&S建設株式会社 名古屋支社
- プレキャストコンクリートの家
-
資料請求受付中
- 2104万円〜
- クラシスホーム株式会社 緑店(本店)
- 【クラシスホーム】カタログ2冊セット「Concept(コンセプト)」&「Technology(テクノロジー)」
エリア・駅で絞り込んで探す
愛知県のグランドヒルズが含まれるマンション
物件の種類から探す
名古屋市昭和区で募集中の物件のみを検索できます
掲載情報に誤りや問題がある場合
LIFULL HOME'Sは「不動産会社」ではなく「情報掲載サイト」です
- ※管理会社の情報はLIFULL HOME'Sでは保持していないためお答えできません。お問合せはお控えください
- ※最新の募集状況は掲載中の不動産会社があれば、不動産会社へ直接お問合せください
掲載情報の訂正依頼 専用ダイヤル
0120-987-243
- 専用ダイヤル受付時間:10:00〜18:00
- ※土日・祝日、臨時休業日は除く
不動産データのご利用について
不動産事業におけるDX、サービスの改善、新規事業開発等をご検討中の方へ不動産データの活用をご提案します。LIFULL HOME'Sで集約した不動産情報や外部データは、不動産事業DX、不正決済防止、ローン審査、事業開発、研究等さまざまな事業でご活用いただいています。詳しくは以下よりご確認ください。
不動産アーカイブご利用アンケートにご協力ください
不動産アーカイブの掲載情報は、LIFULL HOME'S掲載の不動産情報および提携先の不動産情報を統計情報として集積したものであり、その存在や信憑性を保証するものではありません。