このページは物件の広告情報ではありません。
過去にLIFULL HOME'Sへ掲載された不動産情報と提携先の地図情報を元に生成した参考情報です。また、一般から投稿された情報など主観的な情報も含みます。
情報更新日: 2026/03/20
ポレスター北浜
スポンサーリンク
ポレスター北浜の建物情報
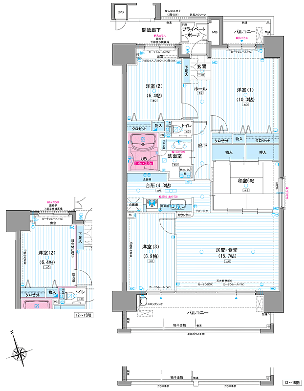
物件概要
| 物件種別 | マンション |
|---|---|
| 築年月(築年数) | 2008年6月 (築18年) |
| 建物構造 | 鉄筋コンクリート造15階建 |
| 総戸数/総区画数 | 44戸 |
| 敷地全体面積 | 2,379.39m2 |
| 用途地域 | 第二種住居 |
| 地目 | 雑種地(物件お引渡し時までに宅地に地目変更いたします) |
| 土地権利 | 所有権 |
| 施工会社 | 東海興業株式会社 名古屋支店 |
| 売主 | 株式会社マリモ(所属団体/(社)広島県宅地建物取引業協会・中国地区不動産公正取引協議会加盟) |
| 販売会社 | 株式会社マリモ(売主) |
設備・条件
- 追い焚き
- 浴室乾燥機
- 浴室1.6×2.0m以上
- システムキッチン
- 食器洗い乾燥機
- ブロードバンド
- バリアフリー
- オートロック
- 防犯カメラ
- 駐車場完備
- 100m2以上
- スーパー800m以内
- コンビニ400m以内
- 小学校800m以内
※最新の状態と異なる場合があります
売りたい不動産をお持ちの方へ
ポレスター北浜の周辺施設
-
買い物
日用品 -
- V・drug桑名東店
- ファミリーマート 桑名参宮通店
- バロー 桑名東店
- ワッツ桑名東バロー店
- 買い物
大型店 -
- スポーツデポ 桑名店
- ゴルフ5 桑名店
- エディオン 桑名店
- ファッションセンターしまむら 東方店
- グルメ
-
- 伝丸1国桑名店
- Sugakiya桑名東バロー店
- ロッテリア 桑名店
- すき家 1国桑名店
- 娯楽施設
-
- スポーツクラブアクトス桑名店
- 国営木曽三川公園桑名七里の渡し公園
- ヤマモリ体育館
- 役所
公共施設 -
- 桑名東方簡易郵便局
- 桑名八間通郵便局
- 桑名市立中央図書館
- 桑名郵便局
- 医療
-
- 地方独立行政法人桑名市総合医療センター
- 医療法人桑名病院
- 医療法人財団青木会青木記念病院
- 保育施設
-
- 桑名市立光風幼稚園
- 厚生館保育所
- 幼保連携型認定こども園長寿認定こども園
- 桑名市立成徳南幼稚園
- 学校
-
- 桑名市立修徳小学校
- 桑名市立精義小学校
- 桑名市立大成小学校
- 三重県立桑名高校
※学区外の学校が含まれる場合があります。実際の学区は必ず各自治体へご確認ください。
ポレスター北浜周辺の物件情報
周辺の問合せ可能な物件
三重県桑名市の問合せ可能な物件のうち、この物件の周辺にあるものから表示しています
賃貸
-
募集中
- アーリーバード
- 5.6万円
- JR関西本線 桑名駅 徒歩8分
- 三重県桑名市大字桑名
- 48.35m² / 2DK
-
募集中
- ルラージュ
- 5.3万円
- JR関西本線 桑名駅 徒歩8分
- 三重県桑名市大字東方
- 53.64m² / 3DK
-
募集中
- 近鉄名古屋線 桑名駅 徒歩7分
- 5.6万円
- 近鉄名古屋線 桑名駅 徒歩7分
- 三重県桑名市大字桑名628番地26
- 48.35m² / 2DK
-
募集中
- エルフローラ A
- 5.9万円
- JR関西本線 桑名駅 徒歩6分
- 三重県桑名市大字桑名
- 30.3m² / 1K
-
募集中
- スペリア桑名弐番館
- 8万円
- 近鉄名古屋線 桑名駅 徒歩13分
- 三重県桑名市大字福島
- 73.29m² / 3LDK
-
募集中
- エクセル21
- 6.2万円
- 近鉄名古屋線 桑名駅 徒歩6分
- 三重県桑名市駅元町
- 43.73m² / 1LDK
-
募集中
- グランティ桑名
- 4.2万円
- 近鉄名古屋線 桑名駅 徒歩7分
- 三重県桑名市参宮通
- 21.09m² / ワンルーム
-
募集中
- 参宮通一戸建
- 20万円
- JR関西本線 桑名駅 徒歩7分
- 三重県桑名市参宮通52-2
- 185.22m² / 4LDK
-
募集中
- ベルカーサ有楽
- 7.5万円
- 近鉄名古屋線 桑名駅 徒歩4分
- 三重県桑名市駅元町
- 71.5m² / 3LDK
-
募集中
- ユーミーフローラマンション
- 4.6万円
- 近鉄名古屋線 桑名駅 徒歩20分
- 三重県桑名市大字桑名647-29
- 22.8m² / 1K
中古マンション
-
売出し中
- スペリア桑名二番館
- 1100万円
- 近鉄名古屋線 桑名駅 徒歩12分
- 三重県桑名市大字福島
- 84.0m² / 4LDK
-
売出し中
- スペリア桑名1番館
- 1280万円
- 近鉄名古屋線 桑名駅 徒歩17分
- 三重県桑名市大字福島969-1
- 81.0m² / 4LDK
-
売出し中
- ダイアパレス桑名レジデンス
- 2990万円
- 近鉄名古屋線 桑名駅 徒歩5分
- 三重県桑名市大字桑名
- 70.15m² / 3LDK
-
売出し中
- ハイレジデンス参宮
- 1380万円
- JR関西本線 桑名駅 徒歩7分
- 三重県桑名市参宮通
- 74.67m² / 3LDK
-
売出し中
- ライオンズ桑名駅前グランフォート
- 3580万円
- JR関西本線 桑名駅 徒歩2分
- 三重県桑名市有楽町
- 75.53m² / 3LDK
-
売出し中
- ライオンズ桑名八間通 3LDK
- 3090万円
- 近鉄名古屋線 桑名駅 徒歩6分
- 三重県桑名市末広町47
- 72.49m² / 3LDK
-
売出し中
- シャンボール桑名
- 1000万円
- 三岐鉄道北勢線 西桑名駅 徒歩2分
- 三重県桑名市中央町1丁目
- 65.88m² / 3LDK
-
売出し中
- エスポア桑名
- 1900万円
- 三岐鉄道北勢線 西桑名駅 徒歩4分
- 三重県桑名市中央町2丁目
- 64.31m² / 2LDK
-
売出し中
- アピエス桑名
- 2080万円
- 近鉄名古屋線 桑名駅 徒歩9分
- 三重県桑名市大字東方1497-2
- 68.05m² / 3LDK
一戸建て
-
売出し中
- 桑名市鍜冶町 中古一戸建て
- 2980万円
- 近鉄名古屋線 桑名駅 徒歩15分
- 三重県桑名市鍜冶町
- 105.16m² / 4LDK
-
売出し中
- 中古戸建 桑名市大字北別所
- 2500万円
- 養老鉄道 播磨駅 徒歩9分
- 三重県桑名市大字北別所
- 81.0m² / 2LDK
-
売出し中
- 桑名市大字北別所字岸西下 中古一戸建て
- 550万円
- 養老鉄道 播磨駅 徒歩3分
- 三重県桑名市大字北別所
- 140.4m² / 8DK
-
売出し中
- 近鉄名古屋線 桑名駅 徒歩16分
- 8000万円
- 近鉄名古屋線 桑名駅 徒歩16分
- 三重県桑名市梅園通49
- 314.04m² / 7LDK
-
売出し中
- 桑名市大字東方 メゾネット 中古一戸建て
- 2350万円
- 養老鉄道 播磨駅 徒歩9分
- 三重県桑名市大字東方
- 97.18m² / 4SLDK
-
売出し中
- 中古戸建 三重県桑名市青葉町 KHSD
- 7990万円
- 近鉄名古屋線 桑名駅 徒歩18分
- 三重県桑名市青葉町2丁目
- 186.3m² / 4LDK
-
売出し中
- 近鉄名古屋線「桑名」駅 車で約1.8km
- 3598万円~4298万円
- 近鉄名古屋線「桑名」駅 車で約1.8km
- 三重県桑名市柳原128-1他
- 117.6m² / 3LDK~4LDK+S
-
売出し中
- 桑名市大字播磨字六畝割 中古一戸建て
- 999万円
- 養老鉄道 播磨駅 徒歩7分
- 三重県桑名市大字播磨
- 161.38m² / 8LDK
-
売出し中
- 桑名市大字赤須賀 中古一戸建て
- 250万円
- 近鉄名古屋線 桑名駅 徒歩30分
- 三重県桑名市大字赤須賀
- 78.62m² / 3K
-
売出し中
- リナージュ桑名市矢田01期 全4棟 1号棟 新築一戸建て
- 3090万円
- 三岐鉄道北勢線 馬道駅 徒歩10分
- 三重県桑名市大字矢田
- 98.95m² / 3LDK
注文住宅
※表示価格は延べ床面積約132m²の場合の建物価格の参考値です
-
資料請求受付中
- 3200万円〜
- 三井ホーム株式会社
- 三井ホームのご紹介
-
資料請求受付中
- 3200万円〜
- 大和ハウス
- 【大和ハウス】 xevoΣ<ジーヴォシグマ> ~天井高2m72cmの高さというゆとり空間~
-
資料請求受付中
- 2144万円〜
- 株式会社ロゴスホーム(東海)
- スタイル&コンセプトブック【電子版】
-
資料請求受付中
- 2000万円〜
- 一条工務店
- 【一条工務店】 建築実例集3冊セット(HOME’S限定)
-
資料請求受付中
- 3000万円〜
- セキスイハイム
- 【セキスイハイム】総合カタログ(heimism)
-
資料請求受付中
- -
- 積水ハウス
- BRAND BOOK
-
資料請求受付中
- 3400万円〜
- ハウスクラフト株式会社 【オンライン接客対応店】
- 自由設計住宅 Archia(アーキア)
-
資料請求受付中
- 2432万円〜
- ヤマト住建株式会社
- 【LEGANTIA】邸宅の頂点がここにある。受け継がれる価値、未来へ続く邸宅
-
資料請求受付中
- -
- アキュラホーム(AQ Group)
- 「超空間の家」
-
資料請求受付中
- 2800万円〜
- 一生健命の家づくり研究会
- 暮らしを叶えるヒントがいっぱい!リアル体感モデルハウス
エリア・駅で絞り込んで探す
三重県のポレスターが含まれるマンション
物件の種類から探す
桑名市で募集中の物件のみを検索できます
掲載情報に誤りや問題がある場合
LIFULL HOME'Sは「不動産会社」ではなく「情報掲載サイト」です
- ※管理会社の情報はLIFULL HOME'Sでは保持していないためお答えできません。お問合せはお控えください
- ※最新の募集状況は掲載中の不動産会社があれば、不動産会社へ直接お問合せください
掲載情報の訂正依頼 専用ダイヤル
0120-987-243
- 専用ダイヤル受付時間:10:00〜18:00
- ※土日・祝日、臨時休業日は除く
不動産データのご利用について
不動産事業におけるDX、サービスの改善、新規事業開発等をご検討中の方へ不動産データの活用をご提案します。LIFULL HOME'Sで集約した不動産情報や外部データは、不動産事業DX、不正決済防止、ローン審査、事業開発、研究等さまざまな事業でご活用いただいています。詳しくは以下よりご確認ください。
不動産アーカイブご利用アンケートにご協力ください
不動産アーカイブの掲載情報は、LIFULL HOME'S掲載の不動産情報および提携先の不動産情報を統計情報として集積したものであり、その存在や信憑性を保証するものではありません。