このページは物件の広告情報ではありません。
過去にLIFULL HOME'Sへ掲載された不動産情報と提携先の地図情報を元に生成した参考情報です。また、一般から投稿された情報など主観的な情報も含みます。
情報更新日: 2025/11/20
アトレ小幡千代田
スポンサーリンク
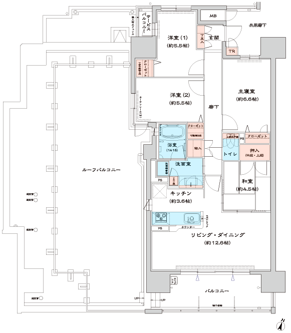
アトレ小幡千代田の建物情報
物件概要
| 物件種別 | マンション |
|---|---|
| 築年月(築年数) | 2010年12月 (築15年) |
| 建物構造 | 鉄筋コンクリート造 地上13階建 |
| 総戸数/総区画数 | 34戸 |
| 敷地全体面積 | 1,104.88m2 (334.22坪) |
| 用途地域 | 準工業 |
| 地目 | 宅地 |
| 土地権利 | 所有権 |
| 施工会社 | 丸彦渡辺建設株式会社 名古屋支店 |
| 売主 | 三交不動産株式会社 |
| 販売会社 | 株式会社長谷工アーベスト(代理) |
設備・条件
- 追い焚き
- 浴室乾燥機
- システムキッチン
- 食器洗い乾燥機
- トランクルーム
- バリアフリー
- オートロック
- 防犯カメラ
- 駐車場完備
- 住宅性能評価書
- スーパー800m以内
- コンビニ400m以内
※最新の状態と異なる場合があります
売りたい不動産をお持ちの方へ
このエリアの所有不動産を査定する
売却査定手続きの流れ、費用相場や注意点など不動産売却について詳しく知りたい方はLIFULL HOME'S 不動産査定へ
アトレ小幡千代田の周辺施設
-
買い物
日用品 -
- ファミリーマート 守山小六町店
- ドラッグセイムス守山新城店
- コープ あいち小幡
- セブンイレブン 名古屋中新店
- 買い物
大型店 -
- アピタ千代田橋店
- 無印良品 アピタ千代田橋店
- ゴルフ5 砂田橋店
- ホームセンターコーナン 砂田橋店
- グルメ
-
- コメダ珈琲店守山城下店
- かつや 名古屋小幡店
- 31アイスクリーム 守山ロードサイド店
- 街かど屋守山小幡店
- 娯楽施設
-
- 千代田橋緑地テニスコート
- 千代田橋緑地野球場
- 名古屋市香流橋プール
- ルネサンス名古屋小幡
- 役所
公共施設 -
- 名古屋千代田郵便局
- 名古屋瓢箪山郵便局
- 名古屋汁谷郵便局
- 名古屋宮根台郵便局
- 医療
-
- ヤトウ病院
- 国家公務員共済組合連合会東海病院
- 保育施設
-
- 小幡もりの風保育園
- 和進館保育園
- 名古屋市千代田橋保育園
- 白山保育園
- 学校
-
- 名古屋市立千種中学校
- 名古屋市立千代田橋小学校
- 名古屋市立廿軒家小学校
- 名古屋市立苗代小学校
アトレ小幡千代田周辺の物件情報
周辺の問合せ可能な物件
愛知県名古屋市守山区の問合せ可能な物件のうち、この物件の周辺にあるものから表示しています
賃貸
-
募集中
- ラシアIII
- 6.2万円
- 名鉄瀬戸線 瓢箪山駅 徒歩13分
- 愛知県名古屋市守山区小幡千代田11番12号
- 53.0m² / 1LDK
-
募集中
- 名鉄瀬戸線 瓢箪山駅 徒歩13分
- 6.2万円
- 名鉄瀬戸線 瓢箪山駅 徒歩13分
- 愛知県名古屋市守山区小幡千代田11番12号
- 53.0m² / 1LDK
-
募集中
- ラシアIII
- 6.2万円
- 名鉄瀬戸線 瓢箪山駅 徒歩13分
- 愛知県名古屋市守山区小幡千代田
- 53.01m² / 1LDK
-
募集中
- パラシオン千代田
- 6.2万円
- 名鉄瀬戸線 瓢箪山駅 徒歩12分
- 愛知県名古屋市守山区小六町19-17
- 35.0m² / 1LDK
-
募集中
- 名鉄瀬戸線 小幡駅 徒歩10分
- 4.5万円
- 名鉄瀬戸線 小幡駅 徒歩10分
- 愛知県名古屋市守山区小幡千代田
- 21.64m² / 1SK
-
募集中
- Rich hill 小幡
- 4.5万円
- 名鉄瀬戸線 小幡駅 徒歩12分
- 愛知県名古屋市守山区小幡千代田
- 21.64m² / 1K
-
募集中
- ヒルズ千代田
- 7.15万円
- 名鉄瀬戸線 瓢箪山駅 徒歩12分
- 愛知県名古屋市守山区小幡千代田
- 52.64m² / 2LDK
-
募集中
- カシータス城下
- 7.8万円
- 名鉄瀬戸線 瓢箪山駅 徒歩9分
- 愛知県名古屋市守山区小六町21-9
- 61.3m² / 2LDK
-
募集中
- 名鉄瀬戸線 瓢箪山駅 徒歩10分
- 7.8万円
- 名鉄瀬戸線 瓢箪山駅 徒歩10分
- 愛知県名古屋市守山区小六町21-9
- 61.3m² / 2LDK
-
募集中
- 名鉄瀬戸線 小幡駅 徒歩13分
- 4.1万円
- 名鉄瀬戸線 小幡駅 徒歩13分
- 愛知県名古屋市守山区小幡千代田15-6
- 45.0m² / 2LDK
新築マンション
※完成後1年以上経過した未入居の物件が含まれている場合があります
中古マンション
-
売出し中
- メゾン千代田
- 1220万円
- 名鉄瀬戸線 瓢箪山駅 徒歩14分
- 愛知県名古屋市守山区小幡千代田
- 77.8m² / 4LDK
-
売出し中
- ダイナース千代田橋
- 1780万円
- 名鉄瀬戸線 瓢箪山駅 徒歩13分
- 愛知県名古屋市守山区小幡千代田6
- 75.2m² / 3LDK
-
売出し中
- 藤和シティコープ小幡II
- 1880万円
- 名鉄瀬戸線 小幡駅 徒歩7分
- 愛知県名古屋市守山区小幡常燈
- 92.13m² / 3SLDK
-
売出し中
- ユーハウス第8千代田
- 1400万円
- 名鉄瀬戸線 小幡駅 徒歩10分
- 愛知県名古屋市守山区小幡太田16-14
- 80.96m² / 4LDK
-
売出し中
- フォアセゾン瓢箪山
- 1580万円
- 名鉄瀬戸線 瓢箪山駅 徒歩3分
- 愛知県名古屋市守山区西新
- 81.6m² / 2LDK
-
売出し中
- 宝マンション瓢箪山
- 1980万円
- 名鉄瀬戸線 瓢箪山駅 徒歩7分
- 愛知県名古屋市守山区八反
- 78.45m² / 4LDK
-
売出し中
- 名鉄瀬戸線 小幡駅 徒歩8分
- 1890万円
- 名鉄瀬戸線 小幡駅 徒歩8分
- 愛知県名古屋市守山区小幡南1丁目1-16
- 67.98m² / 3LDK
-
売出し中
- ホワイトキャッスル小幡
- 1890万円
- 名鉄瀬戸線 小幡駅 徒歩7分
- 愛知県名古屋市守山区小幡南1丁目1
- 67.98m² / 3LDK
-
売出し中
- ユーハウス第3小幡
- 2200万円
- 名鉄瀬戸線 小幡駅 徒歩7分
- 愛知県名古屋市守山区中新
- 72.86m² / 4LDK
一戸建て
-
売出し中
- 名鉄瀬戸線「瓢箪山」駅 徒歩11分
- 6490万円
- 名鉄瀬戸線「瓢箪山」駅 徒歩11分
- 愛知県名古屋市守山区中新
- 106.12m² / 3LDK+3S
-
売出し中
- 名鉄瀬戸線「小幡」駅 徒歩3分~3分
- 4,980万円~5,880万円
- 名鉄瀬戸線「小幡」駅 徒歩3分~3分
- 愛知県名古屋市守山区小幡南2丁目1427番(地番)
- 102.47m² / 3LDK~4LDK
-
売出し中
- 名鉄瀬戸線「小幡」駅 徒歩3分~3分
- 4980~5880万円(税込)
- 名鉄瀬戸線「小幡」駅 徒歩3分~3分
- 愛知県名古屋市守山区小幡南二丁目
- 102.47m² / 3LDK~4LDK
-
売出し中
- 名古屋市守山区西城2丁目 戸建て
- 2399万円
- 名鉄瀬戸線 小幡駅 小幡下車 徒歩12分
- 愛知県名古屋市守山区西城2丁目30-23
- 86.86m² / 4LDK
-
売出し中
- 守山区 廿軒家 1号棟
- 3480万円
- 名鉄瀬戸線 守山自衛隊前駅 徒歩1分
- 愛知県名古屋市守山区廿軒家505番
- 90.47m² / 2SLDK
-
売出し中
- 守山区 廿軒家 2号棟
- 3680万円
- 名鉄瀬戸線 守山自衛隊前駅 徒歩1分
- 愛知県名古屋市守山区廿軒家505番
- 107.55m² / 2SLDK
-
売出し中
- 名古屋市守山区菱池町 一戸建て
- 2899万円
- 名鉄瀬戸線 小幡駅 徒歩16分
- 愛知県名古屋市守山区菱池町
- 93.96m² / 4LDK
注文住宅
※表示価格は延べ床面積約132m²の場合の建物価格の参考値です
-
資料請求受付中
- -
- へーベルハウス
- 【ヘーベルハウス】:ヘーベルハウス総合カタログ
-
資料請求受付中
- -
- 積水ハウス
- BRAND BOOK
-
資料請求受付中
- 3200万円〜
- ダイワハウス
- 【ダイワハウス】 xevoΣ<ジーヴォシグマ> ~天井高2m72cmの高さというゆとり空間~
-
資料請求受付中
- 2000万円〜
- アーキテックス(GROOVY/KANAL HOME/SIMPLE is.../dramacy)
- アーキテックスグループ総合カタログ
-
資料請求受付中
- 2800万円〜
- ミサワホーム株式会社
- 【MISAWA】ミサワホーム代表カタログ3冊セット(HOME'S限定)
-
資料請求受付中
- 1868万円〜
- タマホーム株式会社
- 大安心の家シリーズ
-
資料請求受付中
- 2324万円〜
- ヤマト住建株式会社
- 【エネージュLCCM】脱炭素社会へ!住まいのすべての過程でCO2排出量を抑える住宅
-
資料請求受付中
- 2000万円〜
- 一条工務店
- 【一条工務店】 建築実例集3冊セット(HOME’S限定)
-
資料請求受付中
- 2800万円〜
- 一生健命の家づくり研究会
- 暮らしを叶えるヒントがいっぱい!リアル体感モデルハウス
-
資料請求受付中
- 2600万円〜
- 愛三株式会社
- 『ホイップハウス~体に優しい自然素材~』青空に映えるまっ白な外観と、カフェや雑貨屋さんのようなナチュラルフレンチのおうち。
エリア・駅で絞り込んで探す
愛知県のアトレが含まれるマンション
物件の種類から探す
名古屋市守山区で募集中の物件のみを検索できます
掲載情報に誤りや問題がある場合
LIFULL HOME'Sは「不動産会社」ではなく「情報掲載サイト」です
- ※管理会社の情報はLIFULL HOME'Sでは保持していないためお答えできません。お問合せはお控えください
- ※最新の募集状況は掲載中の不動産会社があれば、不動産会社へ直接お問合せください
掲載情報の訂正依頼 専用ダイヤル
0120-987-243
- 専用ダイヤル受付時間:10:00〜18:00
- ※土日・祝日、臨時休業日は除く
不動産データのご利用について
不動産事業におけるDX、サービスの改善、新規事業開発等をご検討中の方へ不動産データの活用をご提案します。LIFULL HOME'Sで集約した不動産情報や外部データは、不動産事業DX、不正決済防止、ローン審査、事業開発、研究等さまざまな事業でご活用いただいています。詳しくは以下よりご確認ください。
不動産アーカイブご利用アンケートにご協力ください
不動産アーカイブの掲載情報は、LIFULL HOME'S掲載の不動産情報および提携先の不動産情報を統計情報として集積したものであり、その存在や信憑性を保証するものではありません。