このページは物件の広告情報ではありません。
過去にLIFULL HOME'Sへ掲載された不動産情報と提携先の地図情報を元に生成した参考情報です。また、一般から投稿された情報など主観的な情報も含みます。
情報更新日: 2026/01/07
ジオ彩都いぶきの森
スポンサーリンク
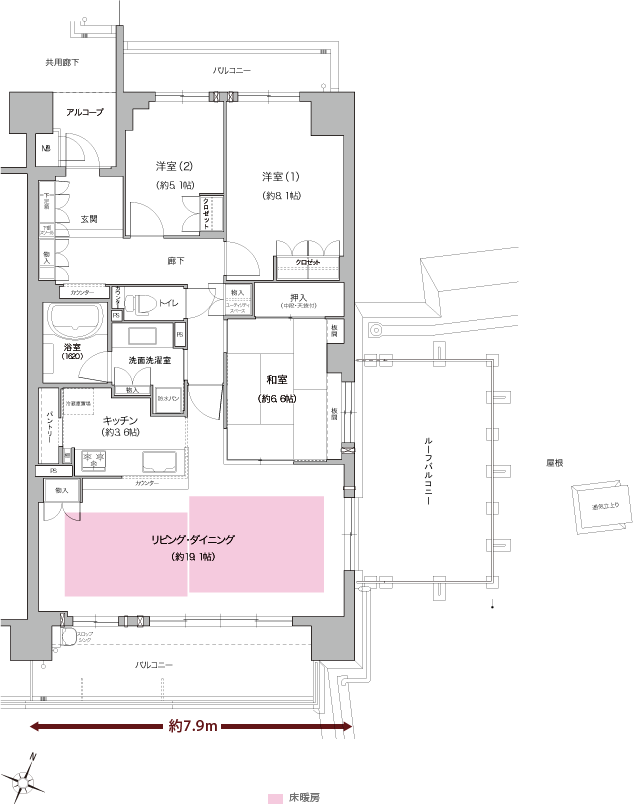
ジオ彩都いぶきの森の建物情報
物件概要
| 物件種別 | マンション |
|---|---|
| 築年月(築年数) | 2011年3月 (築15年) |
| 建物構造 | 鉄筋コンクリート造地上10階建・地下2階 |
| 総戸数/総区画数 | 186戸 |
| 敷地全体面積 | 16,350.93m2 |
| 用途地域 | 第二種中高層住居専用 |
| 地目 | 宅地 |
| 土地権利 | 所有権 |
| 建築確認番号 | 第NK09-0720号(平成21年11月27日付) |
| 施工会社 | 株式会社鴻池組大阪本店 |
| 売主 | 阪急電鉄株式会社(土地売主)、阪急不動産株式会社(土地・建物売主) |
| 販売会社 | 阪急不動産株式会社(土地・建物売主) |
設備・条件
- 追い焚き
- 浴室乾燥機
- システムキッチン
- 食器洗い乾燥機
- ディスポーザー
- 床暖房
- バリアフリー
- オートロック
- 防犯カメラ
- キッズルーム
- 駐車場完備
- 住宅性能評価書
- スーパー800m以内
- 小学校800m以内
※最新の状態と異なる場合があります
売りたい不動産をお持ちの方へ
ジオ彩都いぶきの森の周辺施設
-
買い物
日用品 -
- ファミリーマート 茨木彩都やまぶき店
- ファミリーマート 彩都西駅前店
- ラ・ムー彩都店
- ドラッグユタカ彩都店
- 買い物
大型店 -
- ガーデンモール彩都
- ミキハウス彩都7milebridge
- 娯楽施設
-
- レインボー・インドアテニススクール彩都
- 彩都なないろ公園
- 役所
公共施設 -
- 彩都西郵便局
- 医療
-
- 医療法人友紘会彩都友紘会病院
- 保育施設
-
- アスク彩都西保育園
- 彩都みのり保育園
- 粟生幼稚園
- こぐまの森保育園箕面彩都園
- 学校
-
- 箕面市立彩都の丘中学校
- 箕面市立彩都の丘小学校
- 茨木市立彩都西小学校
ジオ彩都いぶきの森周辺の物件情報
周辺の問合せ可能な物件
大阪府箕面市の問合せ可能な物件のうち、この物件の周辺にあるものから表示しています
賃貸
-
募集中
- ジオ・ブランズ彩都ひだまりの丘Hills.5
- 17.9万円
- 大阪モノレール彩都線 彩都西駅 徒歩6分
- 大阪府箕面市彩都粟生南4丁目1-5
- 98.88m² / 4LDK
-
募集中
- 大阪モノレール彩都線 彩都西駅 徒歩9分
- 17.5万円
- 大阪モノレール彩都線 彩都西駅 徒歩9分
- 大阪府箕面市彩都粟生南4丁目
- 75.0m² / 3LDK
-
募集中
- 大阪モノレール彩都線 彩都西駅 徒歩9分
- 17.5万円
- 大阪モノレール彩都線 彩都西駅 徒歩9分
- 大阪府箕面市彩都粟生南4丁目
- 75.0m² / 3LDK
-
募集中
- ジオ彩都いろどりの丘A棟
- 17.5万円
- 大阪モノレール彩都線 彩都西駅 徒歩9分
- 大阪府箕面市彩都粟生南4丁目
- 75.0m² / 3LDK
-
募集中
- ジオ彩都いろどりの丘
- 17.5万円
- 大阪モノレール彩都線 彩都西駅 徒歩10分
- 大阪府箕面市彩都粟生南4丁目
- 75.0m² / 3LDK
-
募集中
- 大阪モノレール彩都線 彩都西駅 徒歩8分
- 11.2万円
- 大阪モノレール彩都線 彩都西駅 徒歩8分
- 大阪府箕面市彩都粟生南3丁目2番7号
- 57.43m² / 2LDK
-
募集中
- Casa filante Vol.2
- 11万円
- 大阪モノレール彩都線 彩都西駅 徒歩8分
- 大阪府箕面市彩都粟生南3丁目2番7号
- 59.67m² / 2LDK
-
募集中
- エクセル彩都粟生南 C棟D棟E棟F棟
- 18万円
- 大阪モノレール彩都線 彩都西駅 徒歩15分
- 大阪府箕面市彩都粟生南6丁目9-29
- 120.54m² / 4LDK
-
募集中
- LOISIR
- 14.8万円
- 大阪モノレール彩都線 彩都西駅 徒歩11分
- 大阪府箕面市彩都粟生南2丁目22-23
- 92.32m² / 3LDK
-
募集中
- 大阪モノレール彩都線 彩都西駅 徒歩11分
- 14.8万円
- 大阪モノレール彩都線 彩都西駅 徒歩11分
- 大阪府箕面市彩都粟生南2丁目
- 92.32m² / 3LDK
新築マンション
※完成後1年以上経過した未入居の物件が含まれている場合があります
中古マンション
-
売出し中
- ジオ彩都いぶきの森
- 3980万円
- 大阪モノレール彩都線 彩都西駅 徒歩8分
- 大阪府箕面市彩都粟生南4丁目1
- 98.04m² / 4LDK
-
売出し中
- ジオ・ブランズ彩都ひだまりの丘Hills.4
- 3530万円
- 大阪モノレール彩都線 彩都西駅 徒歩8分
- 大阪府箕面市彩都粟生南4丁目1番4
- 81.86m² / 3LDK
-
売出し中
- ジオ彩都いぶきの森
- 3890万円
- 大阪モノレール彩都線 彩都西駅 徒歩7分
- 大阪府箕面市彩都粟生南4丁目
- 104.64m² / 4LDK
-
売出し中
- 大阪モノレール彩都線 彩都西駅 徒歩12分
- 5698万円
- 大阪モノレール彩都線 彩都西駅 徒歩12分
- 大阪府箕面市彩都粟生南4丁目2-20
- 104.87m² / 3LDK
-
売出し中
- ジオ彩都いろどりの丘
- 3630万円
- 大阪モノレール彩都線 彩都西駅 徒歩8分
- 大阪府箕面市彩都粟生南4丁目
- 78.63m² / 3LDK
-
売出し中
- エルグレース彩都箕面C棟
- 3480万円
- 大阪モノレール彩都線 彩都西駅 徒歩7分
- 大阪府箕面市彩都粟生南3丁目1
- 98.24m² / 3LDK
-
売出し中
- フォルム箕面
- 3090万円
- 北大阪急行電鉄 箕面萱野駅 バス17分 宮の前下車 徒歩4分
- 大阪府箕面市粟生間谷西3丁目21
- 107.0m² / 3LDK
-
売出し中
- プレジデント箕面B棟
- 2290万円
- 阪急千里線 北千里駅 バス16分 尼谷下車 徒歩3分
- 大阪府箕面市粟生間谷西1丁目5
- 74.22m² / 3LDK
-
売出し中
- 住宅・都市整備公団第4住宅第5号棟
- 820万円
- 大阪モノレール彩都線 豊川駅 徒歩27分
- 大阪府箕面市粟生間谷西1丁目6-5
- 61.35m² / 3DK
-
売出し中
- 箕面粟生第2住宅22棟
- 550万円
- 大阪モノレール彩都線 彩都西駅 バス12分 粟生団地下車 徒歩3分
- 大阪府箕面市粟生間谷西4丁目2
- 51.36m² / 2LDK
一戸建て
-
売出し中
- ヨッシーワンズガーデン 箕面
- 4580万円
- 大阪モノレール彩都線 彩都西駅 徒歩17分
- 大阪府箕面市粟生間谷東6丁目31
- 103.92m² / 3LDK
-
売出し中
- 箕面市彩都粟生北2丁目 一戸建て
- 5280万円
- 大阪モノレール彩都線 彩都西駅 徒歩23分
- 大阪府箕面市彩都粟生北2丁目6
- 120.89m² / 4LDK
-
売出し中
- 箕面市粟生間谷西7丁目 一戸建て
- 5280万円
- 北大阪急行電鉄 箕面萱野駅 バス17分 宮の前下車 徒歩10分
- 大阪府箕面市粟生間谷西7丁目23
- 107.09m² / 4LDK
-
売出し中
- 箕面市彩都粟生北 戸建て
- 5740万円
- 大阪モノレール彩都線 彩都西駅 徒歩17分
- 大阪府箕面市彩都粟生北7丁目
- 115.61m² / 3SLDK
-
売出し中
- 箕面市粟生新家3丁目 一戸建て
- 4480万円
- 北大阪急行電鉄 箕面萱野駅 バス14分 豊川支所前下車 徒歩1分
- 大阪府箕面市粟生新家3丁目
- 79.49m² / 3LDK
-
売出し中
- 箕面市粟生新家 第1期 新築一戸建て
- 5380万円
- 阪急千里線 北千里駅 徒歩34分
- 大阪府箕面市粟生新家3丁目
- 101.85m² / 4LDK
-
売出し中
- 阪急千里線「北千里」駅 徒歩34分
- 5380万円
- 阪急千里線「北千里」駅 徒歩34分
- 大阪府箕面市粟生新家3丁目
- 101.85m² / 4LDK
-
売出し中
- CASA 箕面市粟生新家2丁目
- 3780万円
- 北大阪急行電鉄 箕面船場阪大前駅 バス18分 外院の里下車 徒歩3分
- 大阪府箕面市粟生新家2丁目
- 100.84m² / 2SLDK
-
売出し中
- 箕面市小野原東1丁目 戸建て
- 2499万円
- 大阪モノレール彩都線 豊川駅 バス4分 小野原下車 徒歩2分
- 大阪府箕面市小野原東1丁目7-3
- 79.38m² / 3LDK
注文住宅
※表示価格は延べ床面積約132m²の場合の建物価格の参考値です
-
資料請求受付中
- 2800万円〜
- ミサワホーム株式会社
- 【MISAWA】ミサワホーム代表カタログ3冊セット(HOME'S限定)
-
資料請求受付中
- 3000万円〜
- 株式会社スウェーデンハウス
- 【スウェーデンハウス】お客様満足度総合第1位の声「No.1 Sweden House News」
-
資料請求受付中
- 3200万円〜
- 株式会社リブランド
- 【子どもの才能を引き出す家づくりとは?】リブランド コンセプトブック
-
資料請求受付中
- 2200万円〜
- 愛ホーム 株式会社高屋組
- 子育て世代が憧れる平屋を高品質・ローコストで実現【参考プラン1】23.6坪/1865万円 ※お客様からいただく全て(諸費用・消費税込)の価格です
-
資料請求受付中
- 2432万円〜
- ヤマト住建株式会社
- 【LEGANTIA】邸宅の頂点がここにある。受け継がれる価値、未来へ続く邸宅
-
資料請求受付中
- -
- 積水ハウス
- BRAND BOOK
-
資料請求受付中
- 1868万円〜
- タマホーム株式会社
- 大安心の家シリーズ
-
資料請求受付中
- 2000万円〜
- 一条工務店
- 【一条工務店】 建築実例集3冊セット(HOME’S限定)
-
資料請求受付中
- 3000万円〜
- セキスイハイム
- 【セキスイハイム|平屋】ザ・デザイナーズハイムD1
-
資料請求受付中
- 2800万円〜
- 株式会社 ユーロプランニング
- 【2500万円~ユーロプランニングの標準仕様がよくわかる!仕様書ロシェ】
エリア・駅で絞り込んで探す
物件の種類から探す
箕面市で募集中の物件のみを検索できます
掲載情報に誤りや問題がある場合
LIFULL HOME'Sは「不動産会社」ではなく「情報掲載サイト」です
- ※管理会社の情報はLIFULL HOME'Sでは保持していないためお答えできません。お問合せはお控えください
- ※最新の募集状況は掲載中の不動産会社があれば、不動産会社へ直接お問合せください
掲載情報の訂正依頼 専用ダイヤル
0120-987-243
- 専用ダイヤル受付時間:10:00〜18:00
- ※土日・祝日、臨時休業日は除く
不動産データのご利用について
不動産事業におけるDX、サービスの改善、新規事業開発等をご検討中の方へ不動産データの活用をご提案します。LIFULL HOME'Sで集約した不動産情報や外部データは、不動産事業DX、不正決済防止、ローン審査、事業開発、研究等さまざまな事業でご活用いただいています。詳しくは以下よりご確認ください。
不動産アーカイブご利用アンケートにご協力ください
不動産アーカイブの掲載情報は、LIFULL HOME'S掲載の不動産情報および提携先の不動産情報を統計情報として集積したものであり、その存在や信憑性を保証するものではありません。