このページは物件の広告情報ではありません。
過去にLIFULL HOME'Sへ掲載された不動産情報と提携先の地図情報を元に生成した参考情報です。また、一般から投稿された情報など主観的な情報も含みます。
情報更新日: 2026/02/19
アルバックス金宝町フォートプレイス
スポンサーリンク
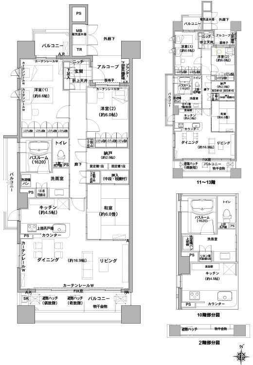
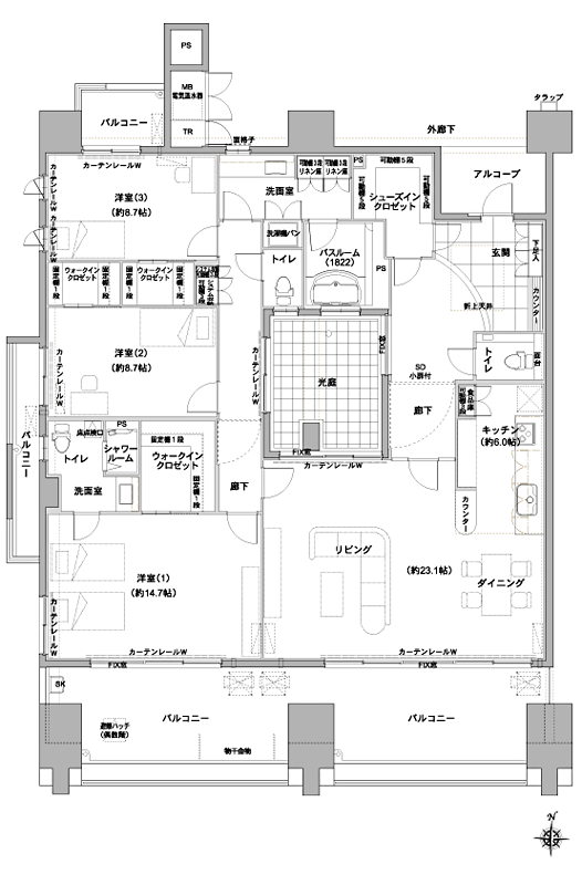
アルバックス金宝町フォートプレイスの建物情報
物件概要
| 物件種別 | マンション |
|---|---|
| 築年月(築年数) | 2008年11月 (築18年) |
| 建物構造 | 鉄筋コンクリート造・地上14階建 |
| 総戸数/総区画数 | 49戸 |
| 敷地全体面積 | 1490.66m2 |
| 用途地域 | 商業 |
| 土地権利 | 所有権 |
| 施工会社 | 東レ建設株式会社名古屋支店 |
| 売主 | 株式会社エイディーノウビ・(総合企画)アイシン開発株式会社 |
| 販売会社 | 東海パンスペース株式会社(販売代理) |
設備・条件
- オール電化
- 追い焚き
- 浴室乾燥機
- IHコンロ
- システムキッチン
- トランクルーム
- バリアフリー
- オートロック
- 防犯カメラ
- 駐車場完備
- 住宅性能評価書
- 100m2以上
- 環境にやさしい
- スーパー800m以内
- 小学校800m以内
※最新の状態と異なる場合があります
売りたい不動産をお持ちの方へ
このエリアの所有不動産を査定する
売却査定手続きの流れ、費用相場や注意点など不動産売却について詳しく知りたい方はLIFULL HOME'S 不動産査定へ
アルバックス金宝町フォートプレイスの周辺施設
-
買い物
日用品 -
- スギ薬局鶴田店
- ファミリーマート 岐阜鶴田町店
- マックスバリュ 岐阜元町店
- セブンイレブン 岐阜金園町2丁目店
- 買い物
大型店 -
- ホームセンターコーナン 岐阜店
- SUIT SELECT GIFU
- ECT
- ミキハウスマルセン
- グルメ
-
- ドトールコーヒーショップ名鉄岐阜店
- Sugakiya名鉄岐阜駅前店
- マクドナルド 新岐阜駅前店
- プロント名鉄岐阜駅店
- 娯楽施設
-
- 梅林公園
- ロイヤル劇場
- 金公園
- CINEX
- 役所
公共施設 -
- 岐阜梅林郵便局
- 岐阜中央郵便局
- 岐阜徹明郵便局
- 岐阜若宮郵便局
- 医療
-
- Y&M藤掛第一病院
- 保育施設
-
- みぞはた保育園
- ハートンこまづめ認定こども園
- かぐや第一こども園
- 梅林こども園
- 学校
-
- 岐阜市立白山小学校
- 岐阜市立梅林小学校
- 私立啓晴高校
- 岐阜市立華陽小学校
アルバックス金宝町フォートプレイス周辺の物件情報
周辺の問合せ可能な物件
岐阜県岐阜市の問合せ可能な物件のうち、この物件の周辺にあるものから表示しています
賃貸
-
募集中
- PRIME天王
- 5.7万円
- 名鉄名古屋本線 名鉄岐阜駅 徒歩9分
- 岐阜県岐阜市天王町
- 29.81m² / 1K
-
募集中
- 名鉄各務原線 名鉄岐阜駅 徒歩10分
- 5.7万円
- 名鉄各務原線 名鉄岐阜駅 徒歩10分
- 岐阜県岐阜市天王町5
- 29.81m² / 1K
-
募集中
- 名鉄各務原線 田神駅 徒歩10分
- 5万円
- 名鉄各務原線 田神駅 徒歩10分
- 岐阜県岐阜市竜田町2丁目5
- 40.9m² / 1LDK
-
募集中
- ハイムエクセル
- 5万円
- 名鉄各務原線 田神駅 徒歩10分
- 岐阜県岐阜市竜田町2丁目
- 40.9m² / 1LDK
-
募集中
- さくらいビル
- 2.8万円
- 名鉄各務原線 田神駅 徒歩11分
- 岐阜県岐阜市金竜町4丁目
- 33.47m² / 2DK
-
募集中
- 名鉄各務原線 田神駅 徒歩11分
- 2.8万円
- 名鉄各務原線 田神駅 徒歩11分
- 岐阜県岐阜市金竜町4丁目2番地4
- 33.47m² / 2DK
-
募集中
- 篠田マンション
- 5.2万円
- 名鉄名古屋本線 名鉄岐阜駅 徒歩8分
- 岐阜県岐阜市溝旗町3丁目
- 39.0m² / 1DK
-
募集中
- AX岐阜高尾町(アークス岐阜高尾町)
- 5.6万円
- 名鉄各務原線 名鉄岐阜駅 徒歩13分
- 岐阜県岐阜市高尾町1丁目
- 27.35m² / ワンルーム
-
募集中
- リオリエント高森
- 8.5万円
- 名鉄名古屋本線 名鉄岐阜駅 徒歩13分
- 岐阜県岐阜市高森町1丁目
- 47.37m² / 1LDK
-
募集中
- ENCOURAGE(アンクレージュ)
- 5.8万円
- バス 長住町1丁目下車 徒歩3分
- 岐阜県岐阜市溝旗町3丁目
- 29.45m² / 1DK
新築マンション
※完成後1年以上経過した未入居の物件が含まれている場合があります
中古マンション
-
売出し中
- プレサンスロジェ岐阜ザ・クラスII 田神駅 歩8分
- 3480万円
- 名鉄各務原線 田神駅 徒歩8分
- 岐阜県岐阜市竜田町4丁目
- 74.89m² / 3SLDK
-
売出し中
- プレサンスロジェ岐阜ザ・クラス
- 2750万円
- 名鉄各務原線 田神駅 徒歩8分
- 岐阜県岐阜市竜田町4丁目
- 71.94m² / 3SLDK
-
売出し中
- プレサンスロジェ岐阜ザ・クラス12階
- 3100万円
- 名鉄各務原線 田神駅 徒歩8分
- 岐阜県岐阜市竜田町4丁目
- 67.52m² / 2SLDK
-
売出し中
- カルティア岐阜ゲートテラス
- 2980万円
- 名鉄名古屋本線 名鉄岐阜駅 徒歩7分
- 岐阜県岐阜市吉津町2丁目
- 58.69m² / 3LDK
-
売出し中
- ライオンズ岐阜殿町マークスフォート
- 2899万円
- 名鉄各務原線 名鉄岐阜駅 徒歩15分
- 岐阜県岐阜市殿町1丁目
- 71.54m² / 3LDK
-
売出し中
- ライオンズ岐阜セントマークス壱番館
- 1億5000万円
- 名鉄名古屋本線 名鉄岐阜駅 徒歩1分
- 岐阜県岐阜市住ノ江町1丁目
- 114.16m² / 2LDK
-
売出し中
- モアグレース新岐阜
- 3880万円
- 名鉄名古屋本線 名鉄岐阜駅 徒歩5分
- 岐阜県岐阜市清住町3丁目9番地1
- 85.98m² / 3LDK
-
売出し中
- プレサンスロジェ岐阜長良橋通り
- 2890万円
- 名鉄名古屋本線 名鉄岐阜駅 徒歩9分
- 岐阜県岐阜市神田町4丁目
- 67.97m² / 2LDK
-
売出し中
- サンクレイドル岐阜
- 2990万円
- 名鉄名古屋本線 名鉄岐阜駅 徒歩9分
- 岐阜県岐阜市高砂町5丁目
- 71.19m² / 2LDK
-
売出し中
- コーポ田神G館
- 1499万円
- 名鉄各務原線 田神駅 徒歩6分
- 岐阜県岐阜市五坪1丁目3-3
- 98.45m² / 4LDK
一戸建て
-
売出し中
- 岐阜市竜田町6丁目 築後未入 A棟 加納駅 歩8分
- 3980万円
- 名鉄名古屋本線 加納駅 徒歩8分
- 岐阜県岐阜市竜田町6丁目
- 115.93m² / 5LDK
-
売出し中
- 岐阜市月丘町2丁目 中古戸建
- 4650万円
- 名鉄各務原線 田神駅 徒歩10分
- 岐阜県岐阜市月丘町2丁目
- 107.64m² / 4LDK
-
売出し中
- 岐阜市加納中広江町 中古戸建 加納駅 歩6分
- 4480万円
- 名鉄名古屋本線 加納駅 徒歩6分
- 岐阜県岐阜市加納中広江町
- 93.17m² / 2SLDK
-
売出し中
- 岐阜市北八ツ寺町 中古戸建
- 700万円
- 名鉄名古屋本線 名鉄岐阜駅 徒歩15分
- 岐阜県岐阜市北八ツ寺町
- 84.74m² / 3SDK
-
売出し中
- 岐阜市安良田町5丁目 中古戸建
- 3480万円
- 名鉄名古屋本線 加納駅 徒歩3分
- 岐阜県岐阜市安良田町5丁目
- 86.11m² / 3LDK
-
売出し中
- 中古住宅 加納東陽町
- 1180万円
- 名鉄名古屋本線 加納駅 徒歩3分
- 岐阜県岐阜市加納東陽町
- 157.12m² / 6LDK
-
売出し中
- JR東海道本線 岐阜駅 徒歩4分
- 2580万円
- JR東海道本線 岐阜駅 徒歩4分
- 岐阜県岐阜市加納清水町1丁目
- 97.04m² / 4DK
-
売出し中
- ファーストタウン岐阜市第1八ツ梅町 全2棟 2号棟 新築
- 3380万円
- 名鉄名古屋本線 名鉄岐阜駅 徒歩23分
- 岐阜県岐阜市八ツ梅町1丁目
- 101.65m² / 3SLDK
-
売出し中
- ファーストタウン岐阜市第1八ツ梅町 全2棟 1号棟 新築
- 3380万円
- 名鉄名古屋本線 名鉄岐阜駅 徒歩23分
- 岐阜県岐阜市八ツ梅町1丁目
- 100.44m² / 4LDK
-
売出し中
- 岐阜市八ツ梅町1丁目第1 2号棟 全2棟
- 3380万円
- 名鉄名古屋本線 名鉄岐阜駅 徒歩20分
- 岐阜県岐阜市八ツ梅町1丁目
- 101.65m² / 4LDK
注文住宅
※表示価格は延べ床面積約132m²の場合の建物価格の参考値です
-
資料請求受付中
- 2800万円〜
- ミサワホーム株式会社
- 【MISAWA】ミサワホーム代表カタログ3冊セット(HOME'S限定)
-
資料請求受付中
- 2800万円〜
- 株式会社タマゴグミ 一級建築士事務所
- 家づくりを考え出したとき読む本「いえぐすり」
-
資料請求受付中
- 2000万円〜
- アーキテックス (GROOVY/KANAL HOME/SIMPLE is.../dramacy)
- アーキテックスグループ総合カタログ
-
資料請求受付中
- 2600万円〜
- 矢橋林業株式会社
- 悠楽
-
資料請求受付中
- -
- へーベルハウス
- 【ヘーベルハウス】:ヘーベルハウス総合カタログ
-
資料請求受付中
- 3200万円〜
- 大和ハウス
- 【大和ハウス】 xevoΣ<ジーヴォシグマ> ~天井高2m72cmの高さというゆとり空間~
-
資料請求受付中
- 2400万円〜
- 伸和建設株式会社
- 会社紹介リーフレット
-
資料請求受付中
- -
- アキュラホーム(AQ Group)
- 「超空間の家」
-
資料請求受付中
- 2800万円〜
- 一生健命の家づくり研究会
- 暮らしを叶えるヒントがいっぱい!リアル体感モデルハウス
-
資料請求受付中
- 2432万円〜
- ヤマト住建株式会社
- 【LEGANTIA】邸宅の頂点がここにある。受け継がれる価値、未来へ続く邸宅
エリア・駅で絞り込んで探す
岐阜県のアルバックスが含まれるマンション
周辺の建物情報
物件の種類から探す
岐阜市で募集中の物件のみを検索できます
掲載情報に誤りや問題がある場合
LIFULL HOME'Sは「不動産会社」ではなく「情報掲載サイト」です
- ※管理会社の情報はLIFULL HOME'Sでは保持していないためお答えできません。お問合せはお控えください
- ※最新の募集状況は掲載中の不動産会社があれば、不動産会社へ直接お問合せください
掲載情報の訂正依頼 専用ダイヤル
0120-987-243
- 専用ダイヤル受付時間:10:00〜18:00
- ※土日・祝日、臨時休業日は除く
不動産データのご利用について
不動産事業におけるDX、サービスの改善、新規事業開発等をご検討中の方へ不動産データの活用をご提案します。LIFULL HOME'Sで集約した不動産情報や外部データは、不動産事業DX、不正決済防止、ローン審査、事業開発、研究等さまざまな事業でご活用いただいています。詳しくは以下よりご確認ください。
不動産アーカイブご利用アンケートにご協力ください
不動産アーカイブの掲載情報は、LIFULL HOME'S掲載の不動産情報および提携先の不動産情報を統計情報として集積したものであり、その存在や信憑性を保証するものではありません。