このページは物件の広告情報ではありません。
過去にLIFULL HOME'Sへ掲載された不動産情報と提携先の地図情報を元に生成した参考情報です。また、一般から投稿された情報など主観的な情報も含みます。
情報更新日: 2026/01/11
ネバーランドシエル箕面 ロワイヤル
スポンサーリンク
ネバーランドシエル箕面 ロワイヤルの建物情報
物件概要
| 物件種別 | マンション |
|---|---|
| 築年月(築年数) | 2008年10月 (築18年) |
| 建物構造 | 鉄筋コンクリート造、地下3階・地上5階建 |
| 総戸数/総区画数 | 97戸 |
| 敷地全体面積 | 7,058.89m2 |
| 管理人 | 日勤 |
| 用途地域 | 第二種住居 |
| 土地権利 | 所有権 |
| 国土法届出 | 不要 |
| 施工会社 | 大豊建設株式会社 |
| 売主 | 株式会社日本エスコン |
| 販売会社 | 株式会社日本エスコン(事業主・売主) |
設備・条件
- 追い焚き
- 浴室乾燥機
- 浴室1.6×2.0m以上
- システムキッチン
- 食器洗い乾燥機
- ディスポーザー
- 床暖房
- トランクルーム
- ブロードバンド
- バリアフリー
- オートロック
- 防犯カメラ
- 駐車場完備
- コンシェルジュサービス
- 住宅性能評価書
- 100m2以上
- スーパー800m以内
※最新の状態と異なる場合があります
売りたい不動産をお持ちの方へ
このエリアの所有不動産を査定する
売却査定手続きの流れ、費用相場や注意点など不動産売却について詳しく知りたい方はLIFULL HOME'S 不動産査定へ
ネバーランドシエル箕面 ロワイヤルの周辺施設
-
買い物
日用品 -
- ローソン HA阪急箕面店
- デイリーヤマザキ 箕面駅前店
- ローソン 阪急箕面駅前店
- サンディ箕面東店
- 買い物
大型店 -
- つるやゴルフ GC箕面店
- みのおサンプラザ
- グルメ
-
- カフェ・ド・クリエ箕面店
- ミスタードーナツ 箕面ショップ
- 珈琲館箕面店
- 娯楽施設
-
- みのおボウル
- オルタナの森・Minoh
- 中池公園
- 文化施設
-
- 箕面市立郷土資料館
- 役所
公共施設 -
- 箕面新稲郵便局
- 箕面郵便局
- 大阪府箕面警察署
- 箕面市立中央図書館
- 医療
-
- 医療法人仁誠会箕面正井病院
- 保育施設
-
- 幼稚園型認定こども園箕面学園附属幼稚園
- めばえ保育園
- 箕面保育園
- 学校
-
- 私立箕面学園高校
- 箕面市立第一中学校
- 箕面市立北小学校
- 私立大阪青山大学
ネバーランドシエル箕面 ロワイヤル周辺の物件情報
周辺の問合せ可能な物件
大阪府箕面市の問合せ可能な物件のうち、この物件の周辺にあるものから表示しています
賃貸
-
募集中
- 阪急箕面線 箕面駅 徒歩5分
- 4.5万円
- 阪急箕面線 箕面駅 徒歩5分
- 大阪府箕面市箕面8丁目1番15号
- 42.9m² / 1LDK
-
募集中
- 箕面グリーンハイツ1
- 6.75万円
- 阪急箕面線 箕面駅 徒歩5分
- 大阪府箕面市箕面8丁目1番15号
- 42.0m² / 1LDK
-
募集中
- 箕面グリーンハイツII
- 12万円
- 阪急箕面線 箕面駅 徒歩4分
- 大阪府箕面市箕面8丁目
- 74.97m² / 2SLDK
-
募集中
- 阪急箕面線 箕面駅 徒歩5分
- 3.8万円
- 阪急箕面線 箕面駅 徒歩5分
- 大阪府箕面市箕面8丁目
- 26.0m² / 1DK
-
募集中
- 小野マンション
- 3.8万円
- 阪急箕面線 箕面駅 徒歩5分
- 大阪府箕面市箕面8丁目
- 26.0m² / 1DK
-
募集中
- ネバーランド箕面潤水館
- 20.5万円
- 阪急箕面線 箕面駅 徒歩2分
- 大阪府箕面市箕面8丁目
- 89.19m² / 3LDK
-
募集中
- ネバーランド箕面潤緑館
- 22万円
- 阪急箕面線 箕面駅 徒歩2分
- 大阪府箕面市箕面1丁目4-11
- 103.99m² / 4LDK
-
募集中
- 阪急箕面線 箕面駅 徒歩4分
- 5万円
- 阪急箕面線 箕面駅 徒歩4分
- 大阪府箕面市箕面7丁目1番43号
- 25.0m² / 1K
-
募集中
- プチシャンブルみのお
- 5万円
- 阪急箕面線 箕面駅 徒歩4分
- 大阪府箕面市箕面7丁目1番43号
- 25.0m² / 1K
-
募集中
- 箕面駅前ビルディング
- 8万円
- 阪急箕面線 箕面駅 徒歩1分
- 大阪府箕面市箕面1丁目
- 57.1m² / 2DK
新築マンション
※完成後1年以上経過した未入居の物件が含まれている場合があります
中古マンション
-
売出し中
- ネバーランドシエル箕面ロワイヤル
- 4990万円
- 阪急箕面線 箕面駅 徒歩6分
- 大阪府箕面市温泉町1
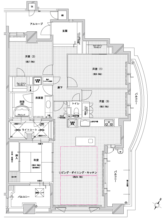
- 86.93m² / 3LDK
-
売出し中
- ネバーランドシエル箕面
- 4990万円
- 阪急箕面線 箕面駅 徒歩9分
- 大阪府箕面市温泉町1-4
- 86.93m² / 3LDK
-
売出し中
- 箕面アーバンライフ
- 2780万円
- 阪急箕面線 箕面駅 徒歩3分
- 大阪府箕面市箕面8丁目2
- 212.99m² / 3SLDK
-
売出し中
- 箕面メープルヴィラ
- 2280万円
- 阪急箕面線 箕面駅 徒歩6分
- 大阪府箕面市箕面6丁目
- 67.33m² / 3LDK
-
売出し中
- レインボーハイツ
- 1480万円
- 阪急箕面線 箕面駅 徒歩5分
- 大阪府箕面市箕面5丁目13
- 67.85m² / 2LDK
-
売出し中
- 有楽箕面ハイツ3号棟
- 1180万円
- 阪急箕面線 箕面駅 徒歩8分
- 大阪府箕面市西小路2丁目
- 58.88m² / 2LDK
-
売出し中
- ブリリア箕面さくら並木通り
- 4990万円
- 阪急箕面線 箕面駅 徒歩7分
- 大阪府箕面市箕面5丁目
- 81.91m² / 3LDK
-
売出し中
- ライオンズマンション箕面F棟
- 600万円
- 北大阪急行電鉄 箕面萱野駅 バス12分 山手公園前下車 徒歩6分
- 大阪府箕面市如意谷3丁目7
- 58.08m² / 3DK
一戸建て
-
売出し中
- 箕面市箕面1丁目中古戸建
- 4880万円
- 阪急箕面線 箕面駅 徒歩2分
- 大阪府箕面市箕面1丁目
- 97.95m² / 3LDK
-
売出し中
- 箕面市箕面七丁目 中古戸建
- 4850万円
- 阪急箕面線 箕面駅 徒歩6分
- 大阪府箕面市箕面7丁目
- 103.91m² / 3LDK
-
売出し中
- 阪急箕面線「箕面」駅 徒歩9分
- 5198万円
- 阪急箕面線「箕面」駅 徒歩9分
- 大阪府箕面市箕面2丁目
- 92.73m² / 4LDK
-
売出し中
- 阪急箕面線「箕面」駅 徒歩11分~11分
- 7,498万円
- 阪急箕面線「箕面」駅 徒歩11分~11分
- 大阪府箕面市新稲3丁目1123-8
- 101.19m² / 3LDK(3号地)
-
売出し中
- レヴタウン箕面西小路
- 7580万円
- 阪急箕面線 箕面駅 徒歩11分
- 大阪府箕面市西小路3丁目
- 126.26m² / 4LDK
-
売出し中
- CASA 箕面市箕面4丁目
- 9980万円
- 阪急箕面線 箕面駅 徒歩13分
- 大阪府箕面市箕面4丁目
- 191.37m² / 6LDK
-
売出し中
- 箕面市桜3丁目 一戸建て
- 3980万円
- 阪急箕面線 牧落駅 徒歩12分
- 大阪府箕面市桜3丁目12
- 109.72m² / 2SLDK
-
売出し中
- 阪急箕面線 牧落駅 徒歩12分
- 3980万円
- 阪急箕面線 牧落駅 徒歩12分
- 大阪府箕面市桜3丁目
- 109.72m² / 2SLDK
-
売出し中
- CASA 箕面市牧落3丁目
- 5350万円
- 阪急箕面線 牧落駅 徒歩10分
- 大阪府箕面市牧落3丁目
- 115.65m² / 5LDK
-
売出し中
- 箕面市牧落1丁目 一戸建て
- 5380万円
- 阪急箕面線 牧落駅 徒歩6分
- 大阪府箕面市牧落1丁目2
- 116.7m² / 3SLDK
注文住宅
※表示価格は延べ床面積約132m²の場合の建物価格の参考値です
-
資料請求受付中
- 3000万円〜
- 株式会社スウェーデンハウス
- 【スウェーデンハウス】お客様満足度総合第1位の声「No.1 Sweden House News」
-
資料請求受付中
- -
- 積水ハウス
- BRAND BOOK
-
資料請求受付中
- 1868万円〜
- タマホーム株式会社
- 大安心の家シリーズ
-
資料請求受付中
- 2200万円〜
- 愛ホーム 株式会社高屋組
- 子育て世代が憧れる平屋を高品質・ローコストで実現【参考プラン1】23.6坪/1865万円 ※お客様からいただく全て(諸費用・消費税込)の価格です
-
資料請求受付中
- 3000万円〜
- セキスイハイム
- 【セキスイハイム|平屋】ザ・デザイナーズハイムD1
-
資料請求受付中
- 2800万円〜
- ミサワホーム株式会社
- 【MISAWA】ミサワホーム代表カタログ3冊セット(HOME'S限定)
-
資料請求受付中
- 2000万円〜
- 一条工務店
- 【一条工務店】 建築実例集3冊セット(HOME’S限定)
-
資料請求受付中
- 3200万円〜
- 株式会社リブランド
- 【子どもの才能を引き出す家づくりとは?】リブランド コンセプトブック
-
資料請求受付中
- 2432万円〜
- ヤマト住建株式会社
- 【LEGANTIA】邸宅の頂点がここにある。受け継がれる価値、未来へ続く邸宅
エリア・駅で絞り込んで探す
大阪府のネバーランドが含まれるマンション
物件の種類から探す
箕面市で募集中の物件のみを検索できます
掲載情報に誤りや問題がある場合
LIFULL HOME'Sは「不動産会社」ではなく「情報掲載サイト」です
- ※管理会社の情報はLIFULL HOME'Sでは保持していないためお答えできません。お問合せはお控えください
- ※最新の募集状況は掲載中の不動産会社があれば、不動産会社へ直接お問合せください
掲載情報の訂正依頼 専用ダイヤル
0120-987-243
- 専用ダイヤル受付時間:10:00〜18:00
- ※土日・祝日、臨時休業日は除く
不動産データのご利用について
不動産事業におけるDX、サービスの改善、新規事業開発等をご検討中の方へ不動産データの活用をご提案します。LIFULL HOME'Sで集約した不動産情報や外部データは、不動産事業DX、不正決済防止、ローン審査、事業開発、研究等さまざまな事業でご活用いただいています。詳しくは以下よりご確認ください。
不動産アーカイブご利用アンケートにご協力ください
不動産アーカイブの掲載情報は、LIFULL HOME'S掲載の不動産情報および提携先の不動産情報を統計情報として集積したものであり、その存在や信憑性を保証するものではありません。