このページは物件の広告情報ではありません。
過去にLIFULL HOME'Sへ掲載された不動産情報と提携先の地図情報を元に生成した参考情報です。また、一般から投稿された情報など主観的な情報も含みます。
【募集中あり】UR都市機構白鳥パークハイツ神宮西 の賃貸情報
最終更新日: 2026/02/17
| 所在地 | 愛知県名古屋市熱田区旗屋2丁目21-25 |
|---|---|
| 交通 |
|
スポンサーリンク
UR都市機構白鳥パークハイツ神宮西の部屋情報
募集中4件
※AI予測賃料・AI予測価格はLIFULL HOME'Sが独自で計算した参考情報であり、実際の取引価格とは異なります( 算出ロジックについて )
希望のお部屋が見つからないあなたへ
このエリアを得意とする会社に問合せしてみませんか?当サイト内に掲載がない物件に出会える可能性も。
賃貸を取扱う会社
-
株式会社PITTARI賃貸 賃貸住宅サービス FC金山店
金山エリアを中心に名古屋市全域のお部屋探しに経験豊富なスタッフが、お客様の希望や生活スタイルに合わせて最適なお部屋をご提案。初めての一人暮らしからファミリー向け物件まで、幅広いラインナップをご用意。
名古屋市熱田区波寄町
名古屋市営名城線 金山駅 徒歩1分
営業 10:00~19:00
定休 年末年始
-
アパマンショップ金山店 株式会社RESIA ESTATE
初期費用はお手持ちのクレジットカードでのお支払い可能です★★当店がインターネットに掲載していないお部屋でもお問い合わせいただけました空室等すぐにお調べ致します★※提携コインパーキング有。
名古屋市熱田区金山町1丁目
JR東海道本線 金山駅 徒歩1分
営業 10:00~18:00
定休 定休日 無し
-
ハウスコム東海株式会社 金山店
名古屋市熱田区金山町1丁目
名鉄名古屋本線 金山駅
営業 10:00~18:00
定休 年末年始(12/25〜1/3)
-
株式会社ミニミニ 熱田店
敷金・礼金0のスーパー君に当社グループのオリジナル家具と家電製品付き物件が出ました。専門のコーディネーターのデザインによる癒されるお部屋を、ぜひ一度ご覧下さい
名古屋市熱田区神宮3丁目
名古屋市営名城線 熱田神宮伝馬町駅 徒歩3分
営業 10:00~18:00
定休 毎週水曜日(1〜3月は水曜日も営業)、GW休暇、夏季休暇、年末年始
-
株式会社エムホーム 金山店
名古屋市内・近郊エリア全域の物件のご紹介が可能です!自社管理物件・サブリース物件など弊社のみの取扱い物件も多数ございます!入居費用のご相談、審査の不安などお客様に寄り添ったご提案をさせて頂きます!
名古屋市熱田区新尾頭1丁目
名鉄名古屋本線 金山駅 徒歩4分
営業 10:00~19:00
定休 年末年始
売買を取扱う会社
-
株式会社PITTARI賃貸 賃貸住宅サービス FC金山店
金山エリアを中心に名古屋市全域のお部屋探しに経験豊富なスタッフが、お客様の希望や生活スタイルに合わせて最適なお部屋をご提案。初めての一人暮らしからファミリー向け物件まで、幅広いラインナップをご用意。
名古屋市熱田区波寄町
名古屋市営名城線 金山駅 徒歩1分
営業 10:00~19:00
定休 年末年始
-
アパマンショップ金山店 株式会社RESIA ESTATE
初期費用はお手持ちのクレジットカードでのお支払い可能です★★当店がインターネットに掲載していないお部屋でもお問い合わせいただけました空室等すぐにお調べ致します★※提携コインパーキング有。
名古屋市熱田区金山町1丁目
JR東海道本線 金山駅 徒歩1分
営業 10:00~18:00
定休 定休日 無し
-
有限会社市川住宅
不動産と人は縁のもの あらゆるニーズに対応できる経験豊かなスタッフが、不動産業界の常識にとらわれず、柔軟に対応させていただきます。
名古屋市熱田区明野町
名古屋市営名港線 日比野駅 徒歩11分
営業 08:30~19:00
定休 祝
-
株式会社AZ不動産
名古屋市熱田区金山町2丁目
名古屋市営名城線 金山駅 徒歩3分
営業 09:00~18:00
定休 毎週水曜日 、日曜日。
-
有限会社CUBE.CAMBREA
「そのまま売る」だけでは、もったいない。リノベーションによる付加価値創出と高度なコンサルティングで、物件の魅力を最大化。相続や複雑な売却も、独自の出口戦略で最適解をご提案。選ばれるには理由があります。
名古屋市熱田区金山町2丁目
名鉄名古屋本線 金山駅 徒歩5分
営業 09:00~18:00
定休 毎週水曜日 年末年始
UR都市機構白鳥パークハイツ神宮西の建物情報
LIFULL HOME'S 掲載履歴
UR都市機構白鳥パークハイツ神宮西の賃貸掲載履歴
全37件
| 年/月 | 賃料 | 専有面積 間取り |
所在階 |
|---|---|---|---|
| 2025年7月 | 9.95万円 |
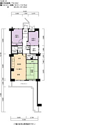
75.73m²
3LDK |
2階 |
| 2024年6月〜2024年9月 | 9.95万円 |
-
3LDK |
5階 |
| 2024年2月〜2024年4月 | 10.04万円 |
-
3LDK |
5階 |
| 2024年1月〜2024年3月 | 9.78万円 |
-
3LDK |
5階 |
| 2023年3月〜2024年2月 | 10.12万円 |
-
3LDK |
7階 |
| 2023年7月〜2024年2月 | 9.93万円 |
-
3LDK |
3階 |
| 2023年11月〜2024年2月 | 10.81万円 |
-
3LDK |
4階 |
| 2023年6月〜2023年11月 | 10万円 |
-
3LDK |
5階 |
| 2023年10月〜2023年11月 | 9.56万円 |
-
3LDK |
4階 |
| 2023年6月〜2023年9月 | 10.12万円 |
-
3LDK |
6階 |
口コミ情報
※一部の口コミは他社から提供されたもので、情報の信憑性を保証するものではありません。
売りたい不動産をお持ちの方へ
このエリアの所有不動産を査定する
売却査定手続きの流れ、費用相場や注意点など不動産売却について詳しく知りたい方は LIFULL HOME'S 不動産査定 へ
UR都市機構白鳥パークハイツ神宮西の周辺情報
周辺施設
-
買い物
日用品 -
- セブンイレブン 名古屋旗屋2丁目店
- ミニストップ 神宮西駅前店
- ファミリーマート 熱田五本松町店
- セブンイレブン 名古屋大宝1丁目店
- 買い物
大型店 -
- コジマ×ビックカメラ 熱田店
- ゴルフ・ドゥ名古屋熱田店
- グルメ
-
- ガスト 熱田一番店(から好し取扱店)
- コメダ珈琲店西高蔵店
- コメダ珈琲店日比野店
- 街かど屋熱田一番店
- 娯楽施設
-
- 白鳥公園
- 熱田神宮公園球技場
- 熱田愛知時計120スタジアム
- 熱田公園
- 役所
公共施設 -
- 名古屋熱田神宮西郵便局
- 名古屋熱田駅前郵便局
- 名古屋一番郵便局
- 熱田警察署
- 医療
-
- 医療法人桂名会重工記念病院
- 保育施設
-
- 一番町保育園
- 白鳥幼稚園
- 堅磐信誠幼稚園
- 名古屋市宮西保育園
- 学校
-
- 名古屋学院大学名古屋キャンパスしろとり
- 名古屋市立宮中学校
- 名古屋市立白鳥小学校
- 私立名古屋学院大学名古屋キャンパスたいほう
※学区外の学校が含まれる場合があります。実際の学区は必ず各自治体へご確認ください。
よくあるご質問
UR都市機構白鳥パークハイツ神宮西に住みたいと思っています。家賃はいくらですか?
UR都市機構白鳥パークハイツ神宮西周辺はお買い物に便利ですか?近くのお店が知りたいです。
UR都市機構白鳥パークハイツ神宮西周辺エリアに住みたいです。募集中の物件はありますか?
UR都市機構白鳥パークハイツ神宮西の口コミが見たいです。どんな口コミがありますか?
UR都市機構白鳥パークハイツ神宮西周辺の物件情報
周辺の問合せ可能な物件
愛知県名古屋市熱田区の問合せ可能な物件のうち、この物件の周辺にあるものから表示しています
賃貸
-
募集中
- ハーモニーテラス旗屋
- 6.6万円
- 名古屋市営名城線 熱田神宮西駅 徒歩3分
- 愛知県名古屋市熱田区旗屋2丁目
- 30.86m² / 1LDK
-
募集中
- ウィステリア神宮西
- 5.3万円
- 名古屋市営名城線 熱田神宮西駅 徒歩6分
- 愛知県名古屋市熱田区旗屋2丁目9
- 24.34m² / 1K
-
募集中
- 名古屋市営名城線 熱田神宮西駅 徒歩3分
- 5万円
- 名古屋市営名城線 熱田神宮西駅 徒歩3分
- 愛知県名古屋市熱田区旗屋2丁目9-10
- 24.34m² / 1K
-
募集中
- 名古屋市営名城線 熱田神宮西駅 徒歩2分
- 6.6万円
- 名古屋市営名城線 熱田神宮西駅 徒歩2分
- 愛知県名古屋市熱田区旗屋2丁目28番201
- 34.36m² / 1K
-
募集中
- 名古屋市営名港線 日比野駅 徒歩12分
- 5.3万円
- 名古屋市営名港線 日比野駅 徒歩12分
- 愛知県名古屋市熱田区一番1丁目
- 33.0m² / 1K
-
募集中
- ラ・マルネ
- 5.3万円
- 名古屋市営名港線 日比野駅 徒歩14分
- 愛知県名古屋市熱田区一番1丁目1-5
- 33.11m² / 1K
-
募集中
- Ms神宮西I
- 6.6万円
- 名古屋市営名城線 熱田神宮西駅 徒歩1分
- 愛知県名古屋市熱田区旗屋2丁目
- 34.36m² / 1SK
-
募集中
- S-RESIDENCE神宮西駅前ascent
- 6.15万円
- 名古屋市営名城線 熱田神宮西駅 徒歩1分
- 愛知県名古屋市熱田区旗屋町
- 21.61m² / 1K
-
募集中
- 名古屋市営名城線 熱田神宮西駅 徒歩1分
- 6.35万円
- 名古屋市営名城線 熱田神宮西駅 徒歩1分
- 愛知県名古屋市熱田区旗屋町
- 21.61m² / 1K
-
募集中
- 名古屋市営名城線 熱田神宮西駅 徒歩6分
- 5.5万円
- 名古屋市営名城線 熱田神宮西駅 徒歩6分
- 愛知県名古屋市熱田区玉の井町7-6
- 29.79m² / 1DK
新築マンション
※完成後1年以上経過した未入居の物件が含まれている場合があります
中古マンション
-
売出し中
- エスポア神宮西
- 1630万円
- 名古屋市営名城線 熱田神宮西駅 徒歩1分
- 愛知県名古屋市熱田区旗屋町401番1、405番1
- 66.1m² / 2LDK
-
売出し中
- ダイアパレス神宮苑
- 2099万円
- 名古屋市営名城線 熱田神宮西駅 徒歩1分
- 愛知県名古屋市熱田区森後町
- 59.77m² / 2LDK
-
売出し中
- ダイアパレス神宮苑〜フルリノベ×新耐震×南東向き〜
- 2099万円
- 名古屋市営名城線 熱田神宮西駅 徒歩1分
- 愛知県名古屋市熱田区森後町7-7
- 59.77m² / 2LDK
-
売出し中
- ライオンズマンション神宮公園〜ペット可〜
- 1290万円
- 名古屋市営名城線 西高蔵駅 徒歩3分
- 愛知県名古屋市熱田区旗屋1丁目10-40
- 64.7m² / 3LDK
-
売出し中
- ライオンズマンション神宮公園
- 1290万円
- 名古屋市営名城線 西高蔵駅 徒歩3分
- 愛知県名古屋市熱田区旗屋1丁目
- 64.7m² / 3LDK
-
売出し中
- バンベール西高蔵
- 2080万円
- 名古屋市営名城線 西高蔵駅 徒歩1分
- 愛知県名古屋市熱田区旗屋1丁目
- 62.5m² / 1SLDK
-
売出し中
- ダイアパレス白鳥庭園通り
- 3190万円
- 名古屋市営名港線 六番町駅 徒歩10分
- 愛知県名古屋市熱田区一番3丁目6
- 70.77m² / 3LDK
-
売出し中
- レインボー東高蔵
- 1888万円
- JR東海道本線 熱田駅 徒歩8分
- 愛知県名古屋市熱田区横田1丁目
- 58.25m² / 3DK
一戸建て
-
売出し中
- 名古屋市営名城線 熱田神宮西駅 徒歩7分
- 3680万円
- 名古屋市営名城線 熱田神宮西駅 徒歩7分
- 愛知県名古屋市熱田区旗屋2丁目
- 80.03m² / 2LDK
-
売出し中
- ミラスモ名古屋市熱田区旗屋2丁目 全4棟 1号棟 新築
- 7180万円
- 名古屋市営名城線 熱田神宮西駅 徒歩5分
- 愛知県名古屋市熱田区旗屋2丁目
- 109.9m² / 2SLDK
-
売出し中
- 熱田区旗屋216 2号棟
- 7280万円
- 名古屋市営名城線 熱田神宮西駅 徒歩5分
- 愛知県名古屋市熱田区旗屋2丁目
- 103.24m² / 4LDK
-
売出し中
- 熱田区旗屋216 4号棟
- 6180万円
- 名古屋市営名城線 熱田神宮西駅 徒歩5分
- 愛知県名古屋市熱田区旗屋2丁目
- 125.86m² / 4LDK
-
売出し中
- 熱田区旗屋216 1号棟
- 7180万円
- 名古屋市営名城線 熱田神宮西駅 徒歩5分
- 愛知県名古屋市熱田区旗屋2丁目
- 109.9m² / 4LDK
-
売出し中
- ミラスモ名古屋市熱田区旗屋2丁目 全4棟 4号棟 新築
- 6180万円
- 名古屋市営名城線 熱田神宮西駅 徒歩5分
- 愛知県名古屋市熱田区旗屋2丁目
- 125.86m² / 3SLDK
-
売出し中
- ミラスモ名古屋市熱田区旗屋2丁目 全4棟 3号棟 新築
- 6280万円
- 名古屋市営名城線 熱田神宮西駅 徒歩5分
- 愛知県名古屋市熱田区旗屋2丁目
- 113.35m² / 4LDK
-
売出し中
- 熱田区旗屋2丁目 連棟住宅
- 1000万円
- 名古屋市営名城線 熱田神宮西駅 徒歩5分
- 愛知県名古屋市熱田区旗屋2丁目
- 33.05m² / 3K
-
売出し中
- 熱田区白鳥106 2号棟
- 6780万円
- 名古屋市営名城線 熱田神宮西駅 徒歩6分
- 愛知県名古屋市熱田区白鳥1丁目
- 114.93m² / 4SLDK
-
売出し中
- 熱田区白鳥106 3号棟
- 6780万円
- 名古屋市営名城線 熱田神宮西駅 徒歩6分
- 愛知県名古屋市熱田区白鳥1丁目
- 112.56m² / 3SLDK
注文住宅
※表示価格は延べ床面積約132m²の場合の建物価格の参考値です
-
資料請求受付中
- 3000万円〜
- セキスイハイム
- 【セキスイハイム|平屋】ザ・デザイナーズハイムD1
-
資料請求受付中
- 3400万円〜
- へーベルハウス
- 【ヘーベルハウス】:ヘーベルハウス総合カタログ
-
資料請求受付中
- 1868万円〜
- タマホーム株式会社
- 大安心の家シリーズ
-
資料請求受付中
- 2800万円〜
- ミサワホーム株式会社
- 【MISAWA】ミサワホーム代表カタログ3冊セット(HOME'S限定)
-
資料請求受付中
- 3600万円〜
- トヨタT&S建設株式会社 名古屋支社
- プレキャストコンクリートの家
-
資料請求受付中
- 2432万円〜
- ヤマト住建株式会社
- 【LEGANTIA】邸宅の頂点がここにある。受け継がれる価値、未来へ続く邸宅
-
資料請求受付中
- 3320万円〜
- オーガニックハウス名古屋東
- 【Company Guidance】カンパニーガイダンス
-
資料請求受付中
- 3200万円〜
- 大和ハウス
- 【大和ハウス】 xevoΣ<ジーヴォシグマ> ~天井高2m72cmの高さというゆとり空間~
-
資料請求受付中
- 2000万円〜
- 一条工務店
- 【一条工務店】 建築実例集3冊セット(HOME’S限定)
-
資料請求受付中
- 2104万円〜
- クラシスホーム
- 【クラシスホーム】カタログ2冊セット「Concept(コンセプト)」&「Technology(テクノロジー)」
エリア・駅で絞り込んで探す
賃貸
周辺の建物情報
物件の種類から探す
名古屋市熱田区で募集中の物件のみを検索できます
掲載情報に誤りや問題がある場合
LIFULL HOME'Sは「不動産会社」ではなく「情報掲載サイト」です
- ※管理会社の情報はLIFULL HOME'Sでは保持していないためお答えできません。お問合せはお控えください
- ※最新の募集状況は掲載中の不動産会社があれば、不動産会社へ直接お問合せください
掲載情報の訂正依頼 専用ダイヤル
0120-987-243
- 専用ダイヤル受付時間:10:00〜18:00
- ※土日・祝日、臨時休業日は除く
不動産データのご利用について
不動産事業におけるDX、サービスの改善、新規事業開発等をご検討中の方へ不動産データの活用をご提案します。LIFULL HOME'Sで集約した不動産情報や外部データは、不動産事業DX、不正決済防止、ローン審査、事業開発、研究等さまざまな事業でご活用いただいています。詳しくは以下よりご確認ください。
不動産アーカイブご利用アンケートにご協力ください
不動産アーカイブの掲載情報は、LIFULL HOME'S掲載の不動産情報および提携先の不動産情報を統計情報として集積したものであり、その存在や信憑性を保証するものではありません。