このページは物件の広告情報ではありません。

過去にLIFULL HOME'Sへ掲載された不動産情報と提携先の地図情報を元に生成した参考情報です。また、一般から投稿された情報など主観的な情報も含みます。

【募集中あり】メイクスデザイン武蔵小杉アジールコート の賃貸・中古情報

最終更新日: 2026/02/15

メイクスデザイン武蔵小杉アジールコートの写真一覧

  • 外観 |

  • 外観 |

  • 外観 |

  • 外観 |

  • 外観 |

  • エントランス |

  • エントランス |

  • エントランス |

  • エントランス |

  • エントランス |

  • 駐車場 |

  • 周辺 | ららテラス武蔵小杉 徒歩8分。 620m

  • 周辺 | ローソン中原中丸子店 徒歩4分。 320m

  • 周辺 | 私立慶應義塾大学日吉キャンパス 徒歩29分。 2300m

  • 周辺 | セントラルフィットネスクラブ武蔵小杉 徒歩6分。 420m

  • 周辺 | 川崎市立住吉小学校 徒歩12分。 920m

  • 周辺 | ノジマイトーヨーカドー武蔵小杉駅前店 徒歩8分。 590m

  • 周辺 | 川崎市総合福祉センター 徒歩26分。 2080m

  • 周辺 | 大戸屋ごはん処元住吉駅前店 徒歩13分。 1020m

  • 周辺 | 川崎木月大町郵便局 徒歩12分。 920m

所在地 神奈川県川崎市中原区市ノ坪147-1
交通
  • 東急東横線 / 武蔵小杉駅 徒歩9分
  • JR南武線 / 向河原駅 徒歩12分
  • 東急東横線 / 元住吉駅 徒歩13分
  • 東急東横線 / 新丸子駅 徒歩18分

想定最大浸水深

  • 5.0m以上
  • 2.0〜5.0m未満
  • 1.0〜2.0m未満
  • 0.5〜1.0m未満
  • 0〜0.5m未満
浸水リスクについて
  • データ出典:国土交通省 国土政策局 国土数値情報 「国土数値情報 浸水想定区域データ」(平成24年度)をもとに株式会社LIFULLが編集・加工
  • 出典元の国土数値情報(浸水想定区域データ)は、以下のような適用限界がある事にご注意ください
  • 最新の情報および詳細は、各自治体の公表しているデータをご確認ください。
  • 表示される浸水想定区域のデータは、原典データを加工したものであり、実際の法令の適用の範囲については、ご自身でご確認ください。
  • 原典資料に浸水想定区域がなかったものは整備の対象外となるため、データには欠落・誤差が含まれますのでご注意ください。
  • 河川により、浸水シミュレーションの前提となる計画降雨が異なります。また、計画降雨の異なる河川の浸水想定区域が同一レイヤに表示されることになるため、注意する必要があります。
  • データは、都道府県単位で提供しています。従って、浸水想定区域が複数都道府県にまたがる場合は、範囲に含まれる全ての都道府県のデータを確認する必要があります。
  • 一辺76mのメッシュ単位の中で、想定最大浸水深が最も高い地点の情報を表示しています。厳密に地点を特定した情報については各自治体のデータをご確認ください。
  • ハザードマップの利用により、ご利用者様又は第三者に生じた損害については、ご利用者様がその責任を負うものとし、当社および出典元である国土交通省国土情報課、各データの原典作成者は一切責任を負いません。
  • ハザードマップの詳細な情報は「ハザードマップポータルサイト」でご確認いただけます。

建物周辺の施設充実度 83/100

無料査定依頼(所有者の方のみ)

希望のお部屋が見つからないあなたへ

このエリアを得意とする会社に問合せしてみませんか?当サイト内に掲載がない物件に出会える可能性も。

賃貸を取扱う会社

武蔵小杉駅の賃貸を取扱う会社一覧から探す

売買を取扱う会社

武蔵小杉駅の売買を取扱う会社一覧から探す

メイクスデザイン武蔵小杉アジールコートの建物情報

物件概要

情報を編集する

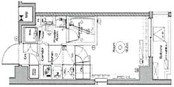
物件種別 マンション
築年月(築年数) 2015年11月 (築11年)
建物構造 RC(鉄筋コンクリート)
建物階数 地上7階
土地面積 20.59m²
建ぺい率 60%
容積率 300%
管理人 巡回
用途地域 準工業
都市計画 市街化区域
接道 接道なし

この建物のすべての写真を見る

設備・条件

情報を編集する

  • 公営水道
  • 都市ガス
  • 下水
  • オートロック
  • 防犯カメラ
  • エレベーター
  • ごみ出し24時間OK
  • バイク置き場あり
  • 駐輪場あり
  • 宅配ボックス
  • デザイナーズ
  • タイル貼り
  • 耐震構造(新耐震基準適合)

※最新の状態と異なる場合があります

LIFULL HOME'S 掲載履歴

メイクスデザイン武蔵小杉アジールコートの賃貸掲載履歴

31

年/月 賃料 専有面積
間取り
所在階
2026年2月 8.7万円 20.59m²
1K
4階
2025年10月〜2025年12月 9.5万円 20.59m²
1K
1階
2025年11月〜2025年12月 8.7万円 20.59m²
1K
5階
2025年9月〜2025年10月 8.5万円 20.59m²
1K
4階
2025年8月〜2025年9月 9.8万円 20.59m²
1K
3階
2024年4月〜2024年6月 8.15万円 -
1K
1階
2023年11月〜2024年2月 8.4万円 -
1K
3階
2023年9月〜2023年11月 8.25万円 -
1K
5階
2023年7月〜2023年10月 9.4万円 -
1K
3階
2023年5月〜2023年7月 8.2万円 -
1R
4階
2023年6月 9.9万円 -
1K
3階
2023年1月〜2023年3月 8.2万円 -
1R
4階
2022年11月〜2023年1月 8.2万円 -
1K
4階
2022年7月〜2022年9月 8.2万円 -
1R
2階
2022年6月 8.9万円 -
1R
2階
2022年1月〜2022年2月 8.3万円 20.59m²
1K
5階
2021年8月〜2021年9月 8.8万円 20.59m²
1R
4階
2020年9月〜2020年12月 8.45万円 20.59m²
1K
1階
2020年9月 8.8万円 20.59m²
1K
4階
2020年8月 8.6万円 20.59m²
1K
1階
2020年1月〜2020年2月 8.7万円 20.59m²
1K
4階
2019年10月〜2020年1月 8.75万円 20.59m²
1K
5階
2019年11月〜2020年1月 8.7万円 20.59m²
1K
4階
2019年11月〜2020年1月 8.8万円 20.59m²
1K
3階
2019年3月〜2019年7月 8.2万円 20.59m²
1K
6階
2019年2月〜2019年4月 9.6万円 20.59m²
1K
3階
2018年8月 8.1万円 20.59m²
1K
6階
2018年7月 8.2万円 20.59m²
1K
6階
2018年5月〜2018年6月 8.1万円 20.59m²
1K
6階
2018年3月〜2018年5月 8.05万円 20.59m²
1K
5階
2018年1月〜2018年3月 8万円 20.59m²
1K
4階

賃貸掲載履歴

賃貸掲載履歴とは、過去LIFULL HOME'Sに掲載された時点の情報を履歴として一覧にまとめたものです。

※最終的な成約賃料とは異なる場合があります。また、将来の募集賃料を保証するものではありません。

東急東横線の家賃相場を見る

口コミ情報

メイクスデザイン武蔵小杉アジールコートの口コミ

建物スコア

4.4

建物スコア

建物スコアとは、他社から提供された建物に対するユーザー評価(口コミ平均点)を元に、LIFULL HOME'Sにおける建物の注目度(アクセス数など)を加味して、LIFULL HOME'Sが独自に算出したものです。

※本スコアは、LIFULL HOME'Sがユーザー評価や注目度を参考に独自に算出した参考情報であり、建物そのものの客観的な価値を評価・保証するものではありません。

8

部屋の仕様・設備

○ 良い点

住人・所有者(元住人を含む)

壁は厚く隣人の音は気になりません。防音性はしっかりしてると思います。
投稿日:2024.08 投稿ID:MR68174504M

by マンションレビュー

交通情報

○ 良い点

購入検討者

武蔵小杉からのアクセスがとてもしやすい。
投稿日:2024.05 投稿ID:MR65959601M

by マンションレビュー

交通情報

○ 良い点

住人・所有者(元住人を含む)

武蔵小杉6分のため休日は家出ればなんでも揃う
投稿日:2024.04 投稿ID:MR64873101M

by マンションレビュー

交通情報

○ 良い点

その他

【武蔵小杉駅に対する口コミ】複数路線が通っており、バスも様々な方面に行くものが多く行き交っているので、まず通学通勤には困らない。利便性も買い物など生活拠点にしてもメリットが沢山あるので、多少高くても家...を借りたり買ったりするファミリー層は多い。子どもの進学等のことを考えても、便利な土地。
投稿日:2022.07 投稿ID:MR47981801M

by マンションレビュー

立地・治安・周辺環境

○ 良い点

その他

【武蔵小杉駅に対する口コミ】開発が進んでおり、大きな商業施設があるため、ショッピングはいつでも満足に出来る。駅直通のビルにもアパレルショップや雑貨屋さんなど、充実したバリエーションのお店がある。夜も人...通りがあるため、大きい道では特に不安なところは無い。
投稿日:2022.07 投稿ID:MR47981802M

by マンションレビュー

買い物・食事・周辺施設

○ 良い点

その他

【武蔵小杉駅に対する口コミ】商業施設の中や駅前に沢山ある上、少し歩けばファミリーレストランや飲食店が多い商店街もある。
投稿日:2022.07 投稿ID:MR47981805M

by マンションレビュー

子育て環境

○ 良い点

その他

【武蔵小杉駅に対する口コミ】小学校は、小杉小学校という新しい学校の進んだICT教育が全国的にも有名。公園については、歩きかバスで等々力公園に行くのがオススメ。とても広くて、遠足にもよく使われる公園。
投稿日:2022.07 投稿ID:MR47981806M

by マンションレビュー

交通情報

○ 良い点

その他

【武蔵小杉駅に対する口コミ】ブランド価値の高い東横線の特急停車駅であり、治安であったり周辺施設の充実ぶりには枚挙に暇がない。駅近の高層マンションは地価の高騰もあり手を出しづらいかも知れないが、平坦地を...10分歩くだけで、自然、閑静な住宅地が広がり、その豊かさを享受できる。
投稿日:2020.02 投稿ID:MR21985501M

by マンションレビュー

この物件の口コミを投稿する

※一部の口コミは他社から提供されたもので、情報の信憑性を保証するものではありません。

売りたい不動産をお持ちの方へ

このエリアの所有不動産を査定する

エリア
川崎市中原区市ノ坪

売却査定手続きの流れ、費用相場や注意点など不動産売却について詳しく知りたい方は LIFULL HOME'S 不動産査定

メイクスデザイン武蔵小杉アジールコートを売却査定する

メイクスデザイン武蔵小杉アジールコートの不動産価値を調べる

メイクスデザイン武蔵小杉アジールコートの周辺情報

周辺の施設充実度

総合スコア
83 / 100

この建物周辺では歩ける範囲に 多くの施設があり利便性が高い エリアと考えられます。

スーパー

89

コンビニ

84

弁当・惣菜

67

大型商業施設

61

ドラッグストア

68

飲食店

80

カフェ

76

医療施設

72

郵便局

80

交番

59

公園

60

習い事施設

56

子育て施設

97

建物周辺の施設充実度

この建物周辺の施設充実度をスコアでわかりやすく表しました。建物から半径1km圏内の各施設ごとの充実度とそれに基づく総合的な利便性を最高値100として算出しています。 これからの暮らしをイメージする参考としてご利用ください。

各カテゴリに含まれる施設は以下の通りです

スーパー
:スーパーマーケット
コンビニ
:コンビニエンスストア
弁当・惣菜
:弁当屋
大型商業施設
:百貨店・複合商業施設
ドラッグストア
:ドラッグストア
飲食店
:飲食店
カフェ
:コーヒーショップ
医療施設
:病院
郵便局
:郵便局
交番
:警察署、交番、派出所
公園
:公園、動物園、植物園、野球場、テニスコート
習い事教室
:塾・予備校、専門学校、スポーツクラブ
子育て施設
:保育園、幼稚園、小学校

周辺施設

買い物
日用品
  • ローソン 中原中丸子店
  • どらっぐぱぱす武蔵小杉店
  • セブンイレブン 川崎市ノ坪西店
  • イトーヨーカドー グランツリー武蔵小杉店
買い物
大型店
  • BEAMS 武蔵小杉
  • アカチャンホンポグランツリー武蔵小杉店
  • GRANDTREE MUSASHIKOSUGI
  • 無印良品 グランツリー武蔵小杉店
グルメ
  • 銀だこ グランツリー武蔵小杉店
  • タリーズコーヒーキッズコミュグランツリー武蔵小杉店
  • リンガーハット グランツリー武蔵小杉店
  • 31アイスクリーム グランツリー武蔵小杉店
娯楽施設
  • 市ノ坪中村通公園
  • 川崎市中原平和公園
  • セントラルフィットネスクラブ武蔵小杉テニススクール
  • セントラルフィットネスクラブ武蔵小杉
役所
公共施設
  • 中原郵便局
  • 中原警察署
  • 川崎市立中原図書館
  • 川崎木月郵便局
医療
  • 聖マリアンナ医科大学東横病院
  • 独立行政法人労働者健康福祉機構関東労災病院
  • 医療法人育仁会小田切病院
保育施設
  • ポポラー川崎武蔵小杉園
  • たんぽぽのはら保育園
  • すみれ保育園
  • すこやか小杉保育園
学校
  • 川崎市立東住吉小学校
  • 神奈川県立住吉高校
  • 川崎市立住吉中学校
  • 川崎市立住吉小学校

※学区外の​学校が​含まれる​場合が​あります。​実際の​学区は​必ず各自治体へ​ご確認ください。

周辺施設

物件から半径1km以内の周辺施設を表示しています。

  • ※該当カテゴリに半径1km以内の施設が5件以上ある時は、4件まで表示しています。
  • ※周辺情報は株式会社LIFULLが地図情報の提供事業者から提供を受けた情報と、LIFULL HOME'Sの物件情報を元に生成した参考情報であり、現況とは異なる場合があります。
  • ※特に​学校に​ついては​学区を​考慮しておらず、​表示して​いる​学校に​通える​ことを​保証する​ものでは​ありません。​実際の​学区は​必ず​自治体へ​ご確認ください。

よくあるご質問

メイクスデザイン武蔵小杉アジールコートに住みたいと思っています。家賃はいくらですか?
メイクスデザイン武蔵小杉アジールコート周辺はどんな街ですか?どんなお店があるか知りたいです。
メイクスデザイン武蔵小杉アジールコート周辺はお買い物に便利ですか?近くのお店が知りたいです。
メイクスデザイン武蔵小杉アジールコート周辺エリアに住みたいです。募集中の物件はありますか?
メイクスデザイン武蔵小杉アジールコートの口コミが見たいです。どんな口コミがありますか?

メイクスデザイン武蔵小杉アジールコート周辺の物件情報

周辺の問合せ可能な物件

神奈川県川崎市中原区の問合せ可能な物件のうち、この物件の周辺にあるものから表示しています

一戸建て

川崎市中原区の一戸建て一覧から探す

神奈川県のアジールコートが含まれるマンション

不動産会社から探す

神奈川県の不動産会社一覧から検索できます

物件の種類から探す

川崎市中原区で募集中の物件のみを検索できます

建てる、修繕・改修する

注文住宅・一戸建て購入の相談をする

資金計画や注文住宅・一戸建て購入の進め方、注意点などをハウジングアドバイザーに相談できます

ご利用案内

掲載情報に誤りや問題がある場合

LIFULL HOME'Sは「不動産会社」ではなく「情報掲載サイト」です

  • ※管理会社の情報はLIFULL HOME'Sでは保持していないためお答えできません。お問合せはお控えください
  • ※最新の募集状況は掲載中の不動産会社があれば、不動産会社へ直接お問合せください

掲載情報の誤りを指摘する
訂正の依頼をする

掲載情報の訂正依頼 専用ダイヤル

0120-987-243

  • 専用ダイヤル受付時間:10:00〜18:00
  • ※土日・祝日、臨時休業日は除く

不動産データのご利用について

不動産事業におけるDX、サービスの改善、新規事業開発等をご検討中の方へ不動産データの活用をご提案します。LIFULL HOME'Sで集約した不動産情報や外部データは、不動産事業DX、不正決済防止、ローン審査、事業開発、研究等さまざまな事業でご活用いただいています。詳しくは以下よりご確認ください。

不動産データ活用について詳細をみる

不動産アーカイブご利用アンケートにご協力ください

ご利用アンケートに回答する

不動産アーカイブの掲載情報は、LIFULL HOME'S掲載の不動産情報および提携先の不動産情報を統計情報として集積したものであり、その存在や信憑性を保証するものではありません。

ページTOPへ