このページは物件の広告情報ではありません。
過去にLIFULL HOME'Sへ掲載された不動産情報と提携先の地図情報を元に生成した参考情報です。また、一般から投稿された情報など主観的な情報も含みます。
情報更新日: 2026/01/20
八星ハイツ の賃貸情報
| 所在地 | 京都府京都市左京区聖護院蓮華蔵町21-5 |
|---|---|
| 交通 |
|
スポンサーリンク
希望のお部屋が見つからないあなたへ
このエリアを得意とする会社に問合せしてみませんか?当サイト内に掲載がない物件に出会える可能性も。
賃貸を取扱う会社
-
アパマンショップ出町柳店 ウインズリンク株式会社
出町柳駅徒歩3分、今出川通沿いの南側にございます。学生さんから社会人・ご家族向け物件まで幅広くご紹介中、条件・ご希望、何でもお申し付け下さい。営業時間外のお部屋探しもご対応可能!ご相談下さい。
京都市左京区田中関田町
京阪本線 出町柳駅 徒歩3分
営業 09:30~19:00
定休 なし(盆休み8/13〜8/16・年末年始12/27〜1/4)
-
株式会社京都ライフ 出町柳店
かんたんお部屋探しの京都ライフ「出町柳店」です。左京区を中心に周辺エリアの賃貸物件を長年にわたりご紹介しております。どのエリアも熟知しておりますので、学生様、ファミリー様のお部屋探しもお任せ下さい。
京都市左京区田中関田町
京阪本線 出町柳駅 徒歩3分
営業 09:30~19:00
定休 年中無休(盆正月を除く)
-
株式会社エリッツ 出町柳店
京都市左京区のお部屋探しは「エリッツ出町柳店」にお任せ下さい。京都市内一の店舗数による豊富な情報でご満足頂けるお部屋をお探し致します。京都大学・京都芸術大学の関係者様、是非お越しください。
京都市左京区田中関田町
京阪本線 出町柳駅 徒歩4分
営業 10:00~19:00
定休 年中無休(年末年始を除く)
-
株式会社エリッツ 烏丸丸太町店
京都でお部屋探しなら、取り扱い物件数No.1「エリッツ」の烏丸丸太町店へ!学生様・社会人様・ご家族様、法人様などなど、豊富な物件情報と市内最多の店舗数ですべてのお客様の「夢」を叶えます!
京都市中京区丸太町
京都市営烏丸線 丸太町駅 徒歩1分
営業 10:00~19:00
定休 火・水曜日 (祝日を除く)、 ※部屋探しのお問い合わせは無休
-
株式会社アーサス
京都市左京区川端通夷川上る新生洲町
京阪本線 三条駅 徒歩6分
営業 09:00~18:00
定休 毎週水曜日
売買を取扱う会社
-
株式会社福屋不動産販売 京都御所東店
当店は左京区、東山区を中心に、地域に密着した営業を行っております。熱意をモットーにお客様のご相談に丁寧かつ迅速ご対応させていただきます。家を買うとき・売るとき、ご相談ください。福屋、仕事が早い!
京都市上京区河原町通丸太町上る桝屋町
京阪本線 神宮丸太町駅 徒歩3分
営業 10:00~19:00
定休 火・水曜日(例外有),GW,夏期,年末年始
-
株式会社アーサス
京都市左京区川端通夷川上る新生洲町
京阪本線 三条駅 徒歩6分
営業 09:00~18:00
定休 毎週水曜日
-
株式会社丸吉住宅
◆◆マンスリー◆◆家具、家電付 取扱店 レンタルBOX(倉庫)もあります。■京都大学周辺部■多数取扱いございます。不動産のご相談は、お気軽に・・・ご連絡下さいませ!
京都市左京区岡崎徳成町
京都地下鉄東西線 東山駅 徒歩8分
営業 09:00~18:00
定休 ゴールデンウィーク 年末年始
-
有限会社 イトー住販(プラネット)
イトー住販は、地域密着型営業で地域一番を目指している会社です。最新かつ選りすぐりの物件情報をお届けします。
京都市左京区松ケ崎海尻町
京都市営烏丸線 松ヶ崎駅 徒歩2分
営業 09:00~19:00
定休 毎週水曜日 第一・第三火曜日
-
有限会社ファーストクラス
京都市左京区下鴨北園町
京都市営烏丸線 北山駅 徒歩7分
営業 09:00~18:00
定休 毎週水曜日・日曜日 祝日 夏季・年末年始
八星ハイツの建物情報
LIFULL HOME'S 掲載履歴
八星ハイツの賃貸掲載履歴
全8件
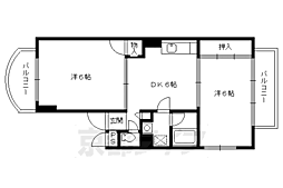
| 年/月 | 賃料 | 専有面積 間取り |
所在階 |
|---|---|---|---|
| 2026年1月 | 10万円 |
40.46m²
2DK |
4階 |
| 2021年11月〜2022年1月 | 9.5万円 |
42.12m²
2DK |
4階 |
| 2021年10月〜2021年12月 | 9.5万円 |
40.0m²
2DK |
2階 |
| 2021年2月〜2021年3月 | 9.5万円 |
42.12m²
2DK |
4階 |
| 2019年9月 | 9.5万円 |
42.12m²
2DK |
4階 |
| 2019年9月 | 9.5万円 |
42.12m²
2DK |
2階 |
| 2019年2月〜2019年8月 | 13.5万円 |
40.46m²
2DK |
4階 |
| 2019年2月〜2019年8月 | 13.5万円 |
40.46m²
2DK |
2階 |
売りたい不動産をお持ちの方へ
このエリアの所有不動産を査定する
売却査定手続きの流れ、費用相場や注意点など不動産売却について詳しく知りたい方は LIFULL HOME'S 不動産査定 へ
八星ハイツの周辺情報
周辺施設
-
買い物
日用品 -
- ファミリーマート 聖護院店
- ドラッグユタカ聖護院店
- ファミリーマート ロームシアター京都店
- ローソン 聖護院店
- 買い物
大型店 -
- 無印良品 ゼスト御池
- 無印良品 ゼスト御池店
- ハニーズ 御池店
- ハニーズ 御池店
- グルメ
-
- カレーハウススパイシー熊野神社店
- スターバックスコーヒー京都岡崎蔦屋書店
- タリーズコーヒー京都大学病院店
- マクドナルド 東山三条店
- 娯楽施設
-
- 京都市武道センター
- コナミスポーツクラブ京都丸太町
- 永原屋茂八
- 岡崎公園テニスコート
- 公園
-
- 岡崎公園
- 文化施設
-
- 細見美術館
- 日図デザイン博物館
- 国立美術館京都国立近代美術館
- 島津製作所創業記念資料館
- 役所
公共施設 -
- 川端警察署
- 京都二条川端郵便局
- 京都聖護院郵便局
- 京都丸太町川端郵便局
- 医療
-
- 貴順会吉川病院
- 京都大学医学部附属病院
- 京都大原記念病院グループ京都近衛リハビリテーション病院
- 保育施設
-
- 聖護院保育園
- 岡崎幼児園
- だん王保育園
- 幼稚園型認定こども園聖マリア幼稚園
- 学校
-
- 私立京都文教中学校
- 私立京都文教高校
- 京都市立錦林小学校
- 私立京都文教短期大学付属小学校
よくあるご質問
八星ハイツに住みたいと思っています。家賃はいくらですか?
八星ハイツ周辺はお買い物に便利ですか?近くのお店が知りたいです。
八星ハイツ周辺エリアに住みたいです。募集中の物件はありますか?
八星ハイツの口コミが見たいです。どんな口コミがありますか?
八星ハイツ周辺の物件情報
周辺の問合せ可能な物件
京都府京都市左京区の問合せ可能な物件のうち、この物件の周辺にあるものから表示しています
賃貸
-
募集中
- ラルーチェ聖護院
- 11万円
- 京阪本線 神宮丸太町駅 徒歩9分
- 京都府京都市左京区聖護院蓮華蔵町54-11
- 45.09m² / 1LDK
-
募集中
- 京阪本線 神宮丸太町駅 徒歩5分
- 11.82万円
- 京阪本線 神宮丸太町駅 徒歩5分
- 京都府京都市左京区聖護院蓮華蔵町
- 36.2m² / 1LDK
-
募集中
- ヴィラ聖護院
- 11.82万円
- 京阪本線 神宮丸太町駅 徒歩6分
- 京都府京都市左京区聖護院蓮華蔵町
- 36.2m² / 1LDK
-
募集中
- 一浦マンション
- 11万円
- 京阪本線 神宮丸太町駅 徒歩9分
- 京都府京都市左京区岡崎徳成町
- 55.8m² / 2LDK
-
募集中
- 京阪本線 神宮丸太町駅 徒歩9分
- 11万円
- 京阪本線 神宮丸太町駅 徒歩9分
- 京都府京都市左京区岡崎徳成町
- 55.8m² / 2LDK
-
募集中
- パレステート日生熊野
- 9万円
- 京阪本線 神宮丸太町駅 徒歩8分
- 京都府京都市左京区聖護院山王町
- 36.21m² / 2DK
-
募集中
- 京阪本線 神宮丸太町駅 徒歩8分
- 9万円
- 京阪本線 神宮丸太町駅 徒歩8分
- 京都府京都市左京区聖護院山王町
- 36.21m² / 2DK
-
募集中
- 東山二条貸家 西側
- 9万円
- 京都地下鉄東西線 東山駅 徒歩8分
- 京都府京都市左京区北門前町480
- 58.57m² / 4K
-
募集中
- ルミエール二条鴨川
- 9.5万円
- 京阪本線 神宮丸太町駅 徒歩5分
- 京都府京都市左京区大文字町
- 35.99m² / 1LDK
中古マンション
-
売出し中
- プレサンス京大南
- 4480万円
- 京阪本線 神宮丸太町駅 徒歩2分
- 京都府京都市左京区東丸太町
- 47.32m² / 1LDK
-
売出し中
- パレス洛北A棟
- 3180万円
- 叡山電鉄叡山本線 茶山・京都芸術大学駅 徒歩8分
- 京都府京都市左京区高野竹屋町
- 66.0m² / 3LDK
-
売出し中
- じょい下鴨
- 3590万円
- 京都市営烏丸線 松ヶ崎駅 徒歩11分
- 京都府京都市左京区下鴨高木町
- 76.02m² / 3LDK
-
売出し中
- ハイツ白川 4F
- 3290万円
- 叡山電鉄叡山本線 一乗寺駅 徒歩10分
- 京都府京都市左京区一乗寺野田町
- 74.53m² / 3LDK
-
売出し中
- ライオンズマンション修学院
- 3780万円
- 叡山電鉄叡山本線 修学院駅 徒歩6分
- 京都府京都市左京区山端大城田町
- 60.65m² / 3LDK
-
売出し中
- エスリード修学院
- 3299万円
- 叡山電鉄叡山本線 修学院駅 徒歩5分
- 京都府京都市左京区山端森本町
- 68.51m² / 3LDK
-
売出し中
- 宝ヶ池通パーク・ホームズ
- 3980万円
- 京都市営烏丸線 国際会館駅 徒歩10分
- 京都府京都市左京区岩倉西宮田町
- 55.52m² / 2LDK
一戸建て
-
売出し中
- 京都地下鉄東西線 東山駅 徒歩11分
- 2180万円
- 京都地下鉄東西線 東山駅 徒歩11分
- 京都府京都市左京区岡崎西天王町84-21
- 44.78m² / 3DK
-
売出し中
- 東門前町 中古戸建
- 1億2800万円
- 京都地下鉄東西線 東山駅 徒歩2分
- 京都府京都市左京区東門前町
- 76.29m² / 2DK
-
売出し中
- 京阪本線 神宮丸太町駅 徒歩13分
- 6780万円
- 京阪本線 神宮丸太町駅 徒歩13分
- 京都府京都市左京区聖護院東町
- 95.62m² / 5LDK
-
売出し中
- 岡崎西福ノ川町 中古戸建
- 4800万円
- 京阪本線 神宮丸太町駅 徒歩17分
- 京都府京都市左京区岡崎西福ノ川町
- 68.53m² / 2LDK
-
売出し中
- 左京区吉田二本松町 中古テラスハウス
- 780万円
- 京阪本線 出町柳駅 徒歩17分
- 京都府京都市左京区吉田二本松町
- 44.17m² / 3DK
-
売出し中
- 粟田口鳥居町 中古戸建
- 3380万円
- 京都地下鉄東西線 蹴上駅 徒歩8分
- 京都府京都市左京区粟田口鳥居町
- 44.54m² / 2LDK
エリア・駅で絞り込んで探す
賃貸
周辺の建物情報
物件の種類から探す
京都市左京区で募集中の物件のみを検索できます
掲載情報に誤りや問題がある場合
LIFULL HOME'Sは「不動産会社」ではなく「情報掲載サイト」です
- ※管理会社の情報はLIFULL HOME'Sでは保持していないためお答えできません。お問合せはお控えください
- ※最新の募集状況は掲載中の不動産会社があれば、不動産会社へ直接お問合せください
掲載情報の訂正依頼 専用ダイヤル
0120-987-243
- 専用ダイヤル受付時間:10:00〜18:00
- ※土日・祝日、臨時休業日は除く
不動産データのご利用について
不動産事業におけるDX、サービスの改善、新規事業開発等をご検討中の方へ不動産データの活用をご提案します。LIFULL HOME'Sで集約した不動産情報や外部データは、不動産事業DX、不正決済防止、ローン審査、事業開発、研究等さまざまな事業でご活用いただいています。詳しくは以下よりご確認ください。
不動産アーカイブご利用アンケートにご協力ください
不動産アーカイブの掲載情報は、LIFULL HOME'S掲載の不動産情報および提携先の不動産情報を統計情報として集積したものであり、その存在や信憑性を保証するものではありません。