このページは物件の広告情報ではありません。
過去にLIFULL HOME'Sへ掲載された不動産情報と提携先の地図情報を元に生成した参考情報です。また、一般から投稿された情報など主観的な情報も含みます。
情報更新日: 2026/04/03
【募集中あり】セレッソコート八戸ノ里ハートランドサウスビュー 3LDK 1階
部屋情報
| 所在地 | 大阪府東大阪市御厨東2丁目8-3 |
|---|---|
| 交通 |
|
| AI予測価格 |
2,585万円 〜 3,056万円
AI予測価格とは
※LIFULL HOME'Sが独自で計算した参考情報であり、実際の取引価格とは異なります。 (算出ロジックについて ) |
| 専有面積 | 75.5m² |
| バルコニー面積 | 11.4m² |
| 所在階/階数 | 1階/10階 |
| 主採光 | 南 |
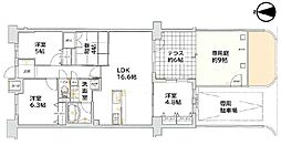
| 間取り | 3LDK (リビングダイニングキッチン17.6帖 洋室4.9帖 洋室6.9帖 和室4.5畳) |
スポンサーリンク
セレッソコート八戸ノ里ハートランドサウスビューの部屋情報
募集中1件
※AI予測賃料・AI予測価格はLIFULL HOME'Sが独自で計算した参考情報であり、実際の取引価格とは異なります(算出ロジックについて)
LIFULL HOME'S 掲載履歴
セレッソコート八戸ノ里ハートランドサウスビューの売買掲載履歴
全1件
| 年/月 | 価格 |
|---|---|
| 2018年11月〜2018年12月 | 2280万円 |
売りたい不動産をお持ちの方へ
このエリアの所有不動産を査定する
売却査定手続きの流れ、費用相場や注意点など不動産売却について詳しく知りたい方はLIFULL HOME'S 不動産査定へ
セレッソコート八戸ノ里ハートランドサウスビュー周辺の物件情報
周辺の問合せ可能な物件
大阪府東大阪市の問合せ可能な物件のうち、この物件の周辺にあるものから表示しています
賃貸
-
募集中
- シャーメゾン イデアル
- 14.7万円
- おおさか東線 JR俊徳道駅 徒歩7分
- 大阪府東大阪市永和2丁目
- 79.99m² / 3LDK
-
募集中
- リバーガーデン東大阪新庁舎アヴェニュー
- 14万円
- 近鉄けいはんな線 荒本駅 徒歩5分
- 大阪府東大阪市荒本北1丁目
- 69.0m² / 3LDK
-
募集中
- 近鉄大阪線 長瀬駅 徒歩12分
- 16万円
- 近鉄大阪線 長瀬駅 徒歩12分
- 大阪府東大阪市上小阪1丁目
- 70.06m² / 3LDK
-
募集中
- ユニキューブ上小阪
- 16万円
- 近鉄大阪線 長瀬駅 徒歩11分
- 大阪府東大阪市上小阪1丁目3-2
- 70.06m² / 3LDK
-
募集中
- シャーメゾン イデアル
- 14.7万円
- 近鉄奈良線 河内永和駅 徒歩7分
- 大阪府東大阪市永和2丁目
- 79.99m² / 3LDK
-
募集中
- 近鉄奈良線 河内永和駅 徒歩7分
- 14.7万円
- 近鉄奈良線 河内永和駅 徒歩7分
- 大阪府東大阪市永和2丁目
- 79.99m² / 3LDK
-
募集中
- 近鉄奈良線 河内花園駅 徒歩7分
- 14万円
- 近鉄奈良線 河内花園駅 徒歩7分
- 大阪府東大阪市花園本町2丁目
- 73.07m² / 3LDK
-
募集中
- シャーメゾン ブランシュ
- 14万円
- 近鉄奈良線 河内花園駅 徒歩7分
- 大阪府東大阪市花園本町2丁目
- 73.07m² / 3LDK
-
募集中
- 近鉄奈良線 河内花園駅 徒歩13分
- 13万円
- 近鉄奈良線 河内花園駅 徒歩13分
- 大阪府東大阪市玉串元町1丁目
- 84.42m² / 3LDK
-
募集中
- 玉串元町1丁目貸家
- 13万円
- 近鉄奈良線 河内花園駅 徒歩11分
- 大阪府東大阪市玉串元町1丁目
- 84.42m² / 3LDK
新築マンション
※完成後1年以上経過した未入居の物件が含まれている場合があります
中古マンション
-
売出し中
- エステムコート八戸ノ里ステーションプレッソ
- 2990万円
- 近鉄奈良線 八戸ノ里駅 徒歩3分
- 大阪府東大阪市御厨南1丁目1-32
- 61.94m² / 3LDK
-
売出し中
- グランドメゾン小阪
- 3399万円
- 近鉄奈良線 河内小阪駅 徒歩5分
- 大阪府東大阪市下小阪1丁目
- 74.89m² / 3LDK
-
売出し中
- グランドメゾン小阪 中古マンション
- 3500万円
- 近鉄奈良線 河内小阪駅 徒歩5分
- 大阪府東大阪市下小阪1丁目
- 70.42m² / 3LDK
-
売出し中
- サンメゾン若江岩田
- 2799万円
- 近鉄奈良線 若江岩田駅 徒歩3分
- 大阪府東大阪市岩田町3丁目
- 65.14m² / 3LDK
-
売出し中
- 小阪パークハイツ1号棟 中古マンション
- 2570万円
- 近鉄奈良線 河内小阪駅 徒歩8分
- 大阪府東大阪市菱屋西6丁目
- 81.67m² / 3SLDK
-
売出し中
- ライオンズマンション若江東一番館 中古マンション
- 2890万円
- 近鉄奈良線 若江岩田駅 徒歩14分
- 大阪府東大阪市若江東町2丁目
- 75.62m² / 3LDK
-
売出し中
- ディナスシティ東大阪アテンシアシティ
- 2830万円
- 近鉄けいはんな線 吉田駅 徒歩7分
- 大阪府東大阪市島之内1丁目
- 83.36m² / 3LDK
-
売出し中
- ローレルスクエア近鉄吉田1番館
- 2990万円
- 近鉄けいはんな線 吉田駅 徒歩3分
- 大阪府東大阪市吉田本町3丁目
- 67.16m² / 3LDK
-
売出し中
- シャルマンフジ鴻池新田グランフォーラム
- 2680万円
- JR片町線(学研都市線) 鴻池新田駅 徒歩6分
- 大阪府東大阪市鴻池町2丁目1-6
- 66.71m² / 3LDK
-
売出し中
- ライオンズマンション鴻池新田 中古マンション
- 2780万円
- JR片町線(学研都市線) 鴻池新田駅 徒歩7分
- 大阪府東大阪市鴻池町1丁目
- 65.47m² / 3LDK
一戸建て
-
売出し中
- 近鉄奈良線 八戸ノ里駅 徒歩12分
- 3480万円
- 近鉄奈良線 八戸ノ里駅 徒歩12分
- 大阪府東大阪市御厨東1丁目
- 99.37m² / 4LDK
-
売出し中
- 近鉄奈良線 八戸ノ里駅 徒歩10分
- 3780万円
- 近鉄奈良線 八戸ノ里駅 徒歩10分
- 大阪府東大阪市御厨東1丁目
- 99.37m² / 4LDK
-
売出し中
- 御厨東1丁目 中古一戸建て
- 3480万円
- 近鉄奈良線 八戸ノ里駅 徒歩10分
- 大阪府東大阪市御厨東1丁目
- 99.37m² / 4LDK
-
売出し中
- 東大阪市御厨東1丁目 中古戸建
- 2999万円
- 近鉄奈良線 八戸ノ里駅 徒歩10分
- 大阪府東大阪市御厨東1丁目
- 84.24m² / 3LDK
-
売出し中
- 御厨東2丁目 テラスハウス
- 430万円
- 近鉄奈良線 八戸ノ里駅 徒歩12分
- 大阪府東大阪市御厨東2丁目5-12
- 34.3m² / 3K
-
売出し中
- 東大阪市御厨東2丁目
- 770万円
- 近鉄奈良線 八戸ノ里駅 徒歩11分
- 大阪府東大阪市御厨東2丁目
- 69.29m² / 3DK
-
売出し中
- 東大阪市御厨東2丁目
- 420万円
- 近鉄奈良線 八戸ノ里駅 徒歩9分
- 大阪府東大阪市御厨東2丁目
- 35.41m² / 3K
-
売出し中
- 東大阪市御厨東2丁目 中古一戸建て
- 1480万円
- 近鉄奈良線 八戸ノ里駅 徒歩10分
- 大阪府東大阪市御厨東2丁目
- 72.77m² / 3LDK
-
売出し中
- 近鉄奈良線 八戸ノ里駅 徒歩5分
- 4780万円
- 近鉄奈良線 八戸ノ里駅 徒歩5分
- 大阪府東大阪市御厨南3丁目
- 136.08m² / 6LDK
-
売出し中
- 中古一戸建:御厨南2丁目
- 4899万円
- 近鉄奈良線 八戸ノ里駅 徒歩7分
- 大阪府東大阪市御厨南2丁目5-29
- 113.01m² / 3LDK
注文住宅
※表示価格は延べ床面積約132m²の場合の建物価格の参考値です
-
資料請求受付中
- 3200万円〜
- 大和ハウス
- 【大和ハウス】 xevoΣ<ジーヴォシグマ> ~天井高2m72cmの高さというゆとり空間~
-
資料請求受付中
- 2000万円〜
- 一条工務店
- 【一条工務店】 建築実例集3冊セット(HOME’S限定)
-
資料請求受付中
- -
- 積水ハウス
- BRAND BOOK
-
資料請求受付中
- 3000万円〜
- D'S STYLE 豊中モデルハウス
- 【 D'S STYLE 】STYLE@home
-
資料請求受付中
- 1868万円〜
- タマホーム株式会社
- 大安心の家シリーズ
-
資料請求受付中
- 3400万円〜
- へーベルハウス
- 【ヘーベルハウス】:ヘーベルハウス総合カタログ
-
資料請求受付中
- 2800万円〜
- ミサワホーム株式会社
- 【MISAWA】ミサワホーム代表カタログ3冊セット(HOME'S限定)
-
資料請求受付中
- 3000万円〜
- セキスイハイム
- 【セキスイハイム】総合カタログ(heimism)
物件の種類から探す
東大阪市で募集中の物件のみを検索できます
掲載情報に誤りや問題がある場合
LIFULL HOME'Sは「不動産会社」ではなく「情報掲載サイト」です
- ※管理会社の情報はLIFULL HOME'Sでは保持していないためお答えできません。お問合せはお控えください
- ※最新の募集状況は掲載中の不動産会社があれば、不動産会社へ直接お問合せください
掲載情報の訂正依頼 専用ダイヤル
0120-987-243
- 専用ダイヤル受付時間:10:00〜18:00
- ※土日・祝日、臨時休業日は除く
不動産データのご利用について
不動産事業におけるDX、サービスの改善、新規事業開発等をご検討中の方へ不動産データの活用をご提案します。LIFULL HOME'Sで集約した不動産情報や外部データは、不動産事業DX、不正決済防止、ローン審査、事業開発、研究等さまざまな事業でご活用いただいています。詳しくは以下よりご確認ください。
不動産アーカイブご利用アンケートにご協力ください
不動産アーカイブの掲載情報は、LIFULL HOME'S掲載の不動産情報および提携先の不動産情報を統計情報として集積したものであり、その存在や信憑性を保証するものではありません。