このページは物件の広告情報ではありません。
過去にLIFULL HOME'Sへ掲載された不動産情報と提携先の地図情報を元に生成した参考情報です。また、一般から投稿された情報など主観的な情報も含みます。
情報更新日: 2026/03/04
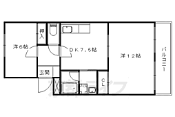
シャルム醍醐 3DK 2階
部屋情報
| 所在地 | 京都府京都市伏見区醍醐下端山町27 |
|---|---|
| 交通 |
|
| AI予測賃料 |
6.5万円 〜 7.5万円
AI予測賃料とは
※LIFULL HOME'Sが独自で計算した参考情報であり、実際の取引価格とは異なります。 (算出ロジックについて ) |
| 専有面積 | 57.8m² |
| 所在階/階数 | 2階/6階 |
| 主採光 | 南 |
| 間取り | 3DK (ダイニングキッチン8.0帖 洋室6.0帖 和室6.0畳 和室6.0畳) |
スポンサーリンク
LIFULL HOME'S 掲載履歴
シャルム醍醐の賃貸掲載履歴
全5件
| 年/月 | 賃料 |
|---|---|
| 2021年12月〜2022年5月 | 6.3万円 / 月 |
| 2021年11月 | 6.1万円 / 月 |
| 2018年12月〜2019年2月 | 6.1万円 / 月 |
| 2018年8月〜2018年10月 | 6.8万円 / 月 |
| 2018年4月〜2018年7月 | 6.6万円 / 月 |
売りたい不動産をお持ちの方へ
このエリアの所有不動産を査定する
売却査定手続きの流れ、費用相場や注意点など不動産売却について詳しく知りたい方はLIFULL HOME'S 不動産査定へ
シャルム醍醐周辺の物件情報
周辺の問合せ可能な物件
京都府京都市伏見区の問合せ可能な物件のうち、この物件の周辺にあるものから表示しています
賃貸
-
募集中
- パルアベニュー醍醐
- 6.5万円
- 京都地下鉄東西線 醍醐駅 徒歩9分
- 京都府京都市伏見区醍醐西大路町
- 59.94m² / 3DK
-
募集中
- 京都地下鉄東西線 醍醐駅 徒歩10分
- 6.5万円
- 京都地下鉄東西線 醍醐駅 徒歩10分
- 京都府京都市伏見区醍醐西大路町
- 58.0m² / 3DK
-
募集中
- 京都地下鉄東西線 醍醐駅 徒歩8分
- 6.4万円
- 京都地下鉄東西線 醍醐駅 徒歩8分
- 京都府京都市伏見区醍醐和泉町
- 47.54m² / 3DK
-
募集中
- グランシャリオ C棟
- 6.4万円
- 京都地下鉄東西線 醍醐駅 徒歩8分
- 京都府京都市伏見区醍醐和泉町
- 47.54m² / 3DK
-
募集中
- アトランティス醍醐
- 6.5万円
- 京都地下鉄東西線 醍醐駅 徒歩13分
- 京都府京都市伏見区醍醐御陵東裏町
- 54.0m² / 3DK
-
募集中
- 京都地下鉄東西線 醍醐駅 徒歩13分
- 6.5万円
- 京都地下鉄東西線 醍醐駅 徒歩13分
- 京都府京都市伏見区醍醐御陵東裏町
- 54.0m² / 3DK
-
募集中
- 一言寺団地A1棟
- 6.55万円
- 京都地下鉄東西線 石田駅 徒歩14分
- 京都府京都市伏見区醍醐下山口町
- 60.5m² / 3DK
-
募集中
- 京都地下鉄東西線 石田駅 徒歩14分
- 6.55万円
- 京都地下鉄東西線 石田駅 徒歩14分
- 京都府京都市伏見区醍醐下山口町
- 60.5m² / 3DK
-
募集中
- 京都地下鉄東西線 石田駅 徒歩14分
- 6.55万円
- 京都地下鉄東西線 石田駅 徒歩14分
- 京都府京都市伏見区醍醐下山口町
- 60.5m² / 3DK
-
募集中
- 京都地下鉄東西線 醍醐駅 徒歩10分
- 6万円
- 京都地下鉄東西線 醍醐駅 徒歩10分
- 京都府京都市伏見区醍醐上ノ山町
- 60.68m² / 3DK
一戸建て
-
売出し中
- 伏見区醍醐上端山町
- 2480万円
- 京都地下鉄東西線 醍醐駅 徒歩17分
- 京都府京都市伏見区醍醐上端山町38-17
- 98.73m² / 4LDK
-
売出し中
- 醍醐下端山町テラスハウス
- 1380万円
- 京都地下鉄東西線 醍醐駅 徒歩15分
- 京都府京都市伏見区醍醐下端山町11-28
- 72.65m² / 5SDK
-
売出し中
- 京都市伏見区醍醐勝口町 中古テラスハウス
- 1498万円
- 京都地下鉄東西線 醍醐駅 徒歩23分
- 京都府京都市伏見区醍醐勝口町
- 111.16m² / 4LDK
-
売出し中
- 中古戸建 京都市伏見区醍醐勝口町
- 1998万円
- 京都地下鉄東西線 醍醐駅 徒歩19分
- 京都府京都市伏見区醍醐勝口町
- 83.24m² / 5SLDK
-
売出し中
- 京都地下鉄東西線 醍醐駅 徒歩18分
- 1998万円
- 京都地下鉄東西線 醍醐駅 徒歩18分
- 京都府京都市伏見区醍醐勝口町
- 83.24m² / 5SDK
-
売出し中
- 伏見区醍醐勝口町 中古テラスハウス
- 1998万円
- 京都地下鉄東西線 醍醐駅 徒歩19分
- 京都府京都市伏見区醍醐勝口町
- 83.24m² / 4SLDK
-
売出し中
- 京都地下鉄東西線 醍醐駅 徒歩21分
- 2980万円
- 京都地下鉄東西線 醍醐駅 徒歩21分
- 京都府京都市伏見区醍醐勝口町
- 83.24m² / 4DK
-
売出し中
- 京都地下鉄東西線 醍醐駅 徒歩22分
- 3180万円
- 京都地下鉄東西線 醍醐駅 徒歩22分
- 京都府京都市伏見区醍醐南端山町
- 115.1m² / 4LDK
-
売出し中
- 伏見区醍醐南端山町 中古戸建
- 2200万円
- 京都地下鉄東西線 醍醐駅 徒歩21分
- 京都府京都市伏見区醍醐南端山町
- 100.44m² / 3LDK
注文住宅
※表示価格は延べ床面積約132m²の場合の建物価格の参考値です
-
資料請求受付中
- 3000万円〜
- セキスイハイム
- 【セキスイハイム|平屋】ザ・デザイナーズハイムD1
-
資料請求受付中
- 1868万円〜
- タマホーム株式会社
- 大安心の家シリーズ
-
資料請求受付中
- 3200万円〜
- 三井ホーム株式会社
- 三井ホームのご紹介
-
資料請求受付中
- -
- 積水ハウス
- BRAND BOOK
-
資料請求受付中
- 2432万円〜
- ヤマト住建株式会社
- 【LEGANTIA】邸宅の頂点がここにある。受け継がれる価値、未来へ続く邸宅
-
資料請求受付中
- 2800万円〜
- ミサワホーム株式会社
- 【MISAWA】ミサワホーム代表カタログ3冊セット(HOME'S限定)
-
資料請求受付中
- 2000万円〜
- 一条工務店
- 【一条工務店】 建築実例集3冊セット(HOME’S限定)
物件の種類から探す
京都市伏見区で募集中の物件のみを検索できます
掲載情報に誤りや問題がある場合
LIFULL HOME'Sは「不動産会社」ではなく「情報掲載サイト」です
- ※管理会社の情報はLIFULL HOME'Sでは保持していないためお答えできません。お問合せはお控えください
- ※最新の募集状況は掲載中の不動産会社があれば、不動産会社へ直接お問合せください
掲載情報の訂正依頼 専用ダイヤル
0120-987-243
- 専用ダイヤル受付時間:10:00〜18:00
- ※土日・祝日、臨時休業日は除く
不動産データのご利用について
不動産事業におけるDX、サービスの改善、新規事業開発等をご検討中の方へ不動産データの活用をご提案します。LIFULL HOME'Sで集約した不動産情報や外部データは、不動産事業DX、不正決済防止、ローン審査、事業開発、研究等さまざまな事業でご活用いただいています。詳しくは以下よりご確認ください。
不動産アーカイブご利用アンケートにご協力ください
不動産アーカイブの掲載情報は、LIFULL HOME'S掲載の不動産情報および提携先の不動産情報を統計情報として集積したものであり、その存在や信憑性を保証するものではありません。