このページは物件の広告情報ではありません。

過去にLIFULL HOME'Sへ掲載された不動産情報と提携先の地図情報を元に生成した参考情報です。また、一般から投稿された情報など主観的な情報も含みます。

情報更新日: 2025/12/21

ラ・メルカーサ 2LDK 2階

部屋情報

ラ・メルカーサの写真一覧

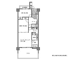
  • 間取り | ■専有面積:78.28平米■ご夫婦でゆったりとした休日を過ごすにふさわしい、広々とした2LDKタイプです

  • リビング/ダイニング | リビングの開口部には高さ約2.1mのハイサッシュが採用され、広く視界が抜ける開放的な窓からは時間ごとに変わる海の表情や心地よい潮風を存分に味わうことができます

  • リビング/ダイニング | 角住戸ならではの開放感あふれる2面採光のリビング・ダイニング

  • リビング/ダイニング | 海を眺めながらゆったりと過ごしたいリビング・ダイニングを広々と確保。和室の格子戸がより開放感を演出しています。

  • キッチン | コンパクトながらすっきりと使いやすいキッチンです。

  • 浴室 | お風呂に浸りながら、目の前の美しい景色を楽しめるビューバスルーム。天井まである大きな窓は開閉可能で、気持ちの良い陽射しと風を取り入れます。

  • 洗面 | 化粧台横には香水やお洒落なボトルなどをディスプレイ感覚で飾れるガラス製の飾り棚を設置するなど、ホテルライクなグルーミングスペースを演出しています。

  • 室内 | 収納付の落ち着いた和のスペースです。

  • 室内 | 仕切りが開放的な格子戸のため、リビングと一体感のある和スペースとなっています。

  • 玄関 | シューズボックス&ベンチ付の玄関ホール

  • その他 | 目の前にラグナマリーナのヨット群を臨み、雄大な三河湾が広がります。

  • その他 | 1階ラウンジは、南側全面ガラス張りで、マリーナと青空が織りなす美しい眺望を贅沢に取り入れた憩いの空間です。ホテルライクな細やかなサービスが受けられるフロントコンシェルジュが常駐しています。

  • その他 | 南仏テイストのパーティースペース~キッチンを備えているので、親しいご友人と共にできたての料理を楽しめます。オーシャンビューデッキに面した開口部を全開にすれば心地よいオープンエアスペースに!

  • その他 | パーティールームに面したオーシャンビューデッキ内には、大人数にも対応する本格仕様のバーベキュー炉2基が併設。海を眺めながらガーデンバーベキューがお楽しみいただけます。

  • その他 | ウッドデッキが心地いいオープンエアスペース~屋外の気持ち良さを存分に満喫できます。

  • その他 | マンションの目の前にある海沿いの遊歩道は、ジョギングやサイクリングに最適です!

  • その他 | 海と空の鮮やかな青の景色に白く輝く外観が映えます!

  • バルコニー | デッキチェアーを置いても十分にゆとりのある広さのテラスバルコニー

  • バルコニー | 海を眺めながら読書をしたり、美しいサンセットと共に潮風を感じながら寛ぎの時間を過ごすなど、非日常的なひとときを手軽に楽しめます!

物件概要

情報を編集する

所在地 愛知県蒲郡市海陽町2丁目7-1
交通
  • JR東海道本線 / 三河大塚駅 徒歩16分
  • バス バス9分 ラグーナ北下車 徒歩9分
AI予測価格

2,044万円 〜 2,740万円

AI予測価格とは

※LIFULL HOME'Sが独自で計算した参考情報であり、実際の取引価格とは異なります。 (算出ロジックについて

専有面積 78.28m²
バルコニー面積 21.36m²
所在階/階数 2階/12階
主採光
間取り 2LDK

想定最大浸水深

  • 5.0m以上
  • 2.0〜5.0m未満
  • 1.0〜2.0m未満
  • 0.5〜1.0m未満
  • 0〜0.5m未満
浸水リスクについて
  • データ出典:国土交通省 国土政策局 国土数値情報 「国土数値情報 浸水想定区域データ」(平成24年度)をもとに株式会社LIFULLが編集・加工
  • 出典元の国土数値情報(浸水想定区域データ)は、以下のような適用限界がある事にご注意ください
  • 最新の情報および詳細は、各自治体の公表しているデータをご確認ください。
  • 表示される浸水想定区域のデータは、原典データを加工したものであり、実際の法令の適用の範囲については、ご自身でご確認ください。
  • 原典資料に浸水想定区域がなかったものは整備の対象外となるため、データには欠落・誤差が含まれますのでご注意ください。
  • 河川により、浸水シミュレーションの前提となる計画降雨が異なります。また、計画降雨の異なる河川の浸水想定区域が同一レイヤに表示されることになるため、注意する必要があります。
  • データは、都道府県単位で提供しています。従って、浸水想定区域が複数都道府県にまたがる場合は、範囲に含まれる全ての都道府県のデータを確認する必要があります。
  • 一辺76mのメッシュ単位の中で、想定最大浸水深が最も高い地点の情報を表示しています。厳密に地点を特定した情報については各自治体のデータをご確認ください。
  • ハザードマップの利用により、ご利用者様又は第三者に生じた損害については、ご利用者様がその責任を負うものとし、当社および出典元である国土交通省国土情報課、各データの原典作成者は一切責任を負いません。
  • ハザードマップの詳細な情報は「ハザードマップポータルサイト」でご確認いただけます。

無料査定依頼(所有者の方のみ)

設備・条件

情報を編集する

※最新の状態と異なる場合があります

  • 水道その他
  • 都市ガス
  • 下水
  • オートロック
  • エレベーター
  • ごみ出し24時間OK
  • バイク置き場あり
  • 駐輪場あり
  • 宅配ボックス
  • EV充電設備
  • 追い焚き
  • 温水洗浄便座
  • 浴室乾燥機
  • オートバス
  • システムキッチン
  • トランクルーム
  • フローリング
  • 出窓
  • バルコニー
  • 角部屋

LIFULL HOME'S 掲載履歴

ラ・メルカーサの売買掲載履歴

1

年/月 価格
2021年7月〜2021年8月 2680万円

売買掲載履歴

売買掲載履歴とは、過去LIFULL HOME'Sに掲載された時点の情報を履歴として一覧にまとめたものです。

※最終的な成約価格とは異なる場合があります。また、将来の売出し価格を保証するものではありません。

蒲郡市の価格相場を見る (中古マンションの価格相場)

ラ・メルカーサの建物情報

物件概要

情報を編集する

物件種別 マンション
築年月(築年数) 2003年3月 (築23年)
建物構造 SRC(鉄骨鉄筋コンクリート)
建物階数 地上12階
総戸数 82戸
管理人 日勤
管理形態 全部委託
土地権利 所有権
建築確認番号 第H13確認建築愛知東三01174号

売りたい不動産をお持ちの方へ

このエリアの所有不動産を査定する

エリア
蒲郡市海陽町

売却査定手続きの流れ、費用相場や注意点など不動産売却について詳しく知りたい方はLIFULL HOME'S 不動産査定

ラ・メルカーサを売却査定する

ラ・メルカーサの不動産価値を調べる

ラ・メルカーサ周辺の物件情報

周辺の問合せ可能な物件

愛知県蒲郡市の問合せ可能な物件のうち、この物件の周辺にあるものから表示しています

賃貸

蒲郡市の賃貸一覧から探す

一戸建て

蒲郡市の一戸建て一覧から探す

注文住宅

※表示価格は延べ床面積約132m²の場合の建物価格の参考値です

蒲郡市の注文住宅一覧から探す

不動産会社から探す

愛知県の不動産会社一覧から検索できます

物件の種類から探す

蒲郡市で募集中の物件のみを検索できます

買う

建てる、修繕・改修する

注文住宅・一戸建て購入の相談をする

資金計画や注文住宅・一戸建て購入の進め方、注意点などをハウジングアドバイザーに相談できます

ご利用案内

掲載情報に誤りや問題がある場合

LIFULL HOME'Sは「不動産会社」ではなく「情報掲載サイト」です

  • ※管理会社の情報はLIFULL HOME'Sでは保持していないためお答えできません。お問合せはお控えください
  • ※最新の募集状況は掲載中の不動産会社があれば、不動産会社へ直接お問合せください

掲載情報の誤りを指摘する
訂正の依頼をする

掲載情報の訂正依頼 専用ダイヤル

0120-987-243

  • 専用ダイヤル受付時間:10:00〜18:00
  • ※土日・祝日、臨時休業日は除く

不動産データのご利用について

不動産事業におけるDX、サービスの改善、新規事業開発等をご検討中の方へ不動産データの活用をご提案します。LIFULL HOME'Sで集約した不動産情報や外部データは、不動産事業DX、不正決済防止、ローン審査、事業開発、研究等さまざまな事業でご活用いただいています。詳しくは以下よりご確認ください。

不動産データ活用について詳細をみる

不動産アーカイブご利用アンケートにご協力ください

ご利用アンケートに回答する

不動産アーカイブの掲載情報は、LIFULL HOME'S掲載の不動産情報および提携先の不動産情報を統計情報として集積したものであり、その存在や信憑性を保証するものではありません。

ページTOPへ