このページは物件の広告情報ではありません。

過去にLIFULL HOME'Sへ掲載された不動産情報と提携先の地図情報を元に生成した参考情報です。また、一般から投稿された情報など主観的な情報も含みます。

【募集中あり】レオパレスK&you2 の賃貸情報

最終更新日: 2024/05/26

レオパレスK&you2の写真一覧

  • 外観 |

  • 外観 |

  • 外観 |

  • 外観 |

  • エントランス |

  • エントランス |

  • 地図 |

  • 周辺 | 【コンビニエンスストア】ミニストップ 志免東3丁目店まで300m

  • 周辺 | 【ファミリーレストラン】リンガーハット 福岡志免田富店まで595m

  • 周辺 | 【弁当】ほっともっと 志免店まで626m

所在地 福岡県糟屋郡志免町志免東3丁目4-1
交通
  • JR香椎線 / 須恵中央駅 徒歩23分
  • 西鉄天神大牟田線 / 西鉄福岡駅 バス35分 西鉄福岡下車 徒歩4分

想定最大浸水深

  • 5.0m以上
  • 2.0〜5.0m未満
  • 1.0〜2.0m未満
  • 0.5〜1.0m未満
  • 0〜0.5m未満
浸水リスクについて
  • データ出典:国土交通省 国土政策局 国土数値情報 「国土数値情報 浸水想定区域データ」(平成24年度)をもとに株式会社LIFULLが編集・加工
  • 出典元の国土数値情報(浸水想定区域データ)は、以下のような適用限界がある事にご注意ください
  • 最新の情報および詳細は、各自治体の公表しているデータをご確認ください。
  • 表示される浸水想定区域のデータは、原典データを加工したものであり、実際の法令の適用の範囲については、ご自身でご確認ください。
  • 原典資料に浸水想定区域がなかったものは整備の対象外となるため、データには欠落・誤差が含まれますのでご注意ください。
  • 河川により、浸水シミュレーションの前提となる計画降雨が異なります。また、計画降雨の異なる河川の浸水想定区域が同一レイヤに表示されることになるため、注意する必要があります。
  • データは、都道府県単位で提供しています。従って、浸水想定区域が複数都道府県にまたがる場合は、範囲に含まれる全ての都道府県のデータを確認する必要があります。
  • 一辺76mのメッシュ単位の中で、想定最大浸水深が最も高い地点の情報を表示しています。厳密に地点を特定した情報については各自治体のデータをご確認ください。
  • ハザードマップの利用により、ご利用者様又は第三者に生じた損害については、ご利用者様がその責任を負うものとし、当社および出典元である国土交通省国土情報課、各データの原典作成者は一切責任を負いません。
  • ハザードマップの詳細な情報は「ハザードマップポータルサイト」でご確認いただけます。

無料査定依頼(所有者の方のみ)

希望のお部屋が見つからないあなたへ

このエリアを得意とする会社に問合せしてみませんか?当サイト内に掲載がない物件に出会える可能性も。

売買を取扱う会社

糟屋郡志免町の売買を取扱う会社一覧から探す

レオパレスK&you2の建物情報

物件概要

情報を編集する

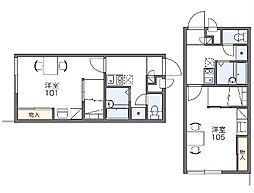
物件種別 アパート
築年月(築年数) 2003年5月 (築23年)
建物構造 鉄骨造
建物階数 地上2階
総戸数 14戸
管理人 巡回
管理形態 全部委託

この建物のすべての写真を見る

設備・条件

情報を編集する

  • 公営水道
  • プロパンガス
  • 下水
  • バイク置き場あり
  • 駐輪場あり
  • 宅配ボックス

※最新の状態と異なる場合があります

LIFULL HOME'S 掲載履歴

レオパレスK&you2の賃貸掲載履歴

127

年/月 賃料 専有面積
間取り
所在階
2025年10月〜2026年2月 4.9万円 23.18m²
1K
1階
2025年12月〜2026年2月 5万円 23.18m²
1K
2階
2025年12月〜2026年2月 4.9万円 23.18m²
1K
1階
2025年12月〜2026年1月 4.9万円 23.18m²
1K
1階
2025年10月〜2025年12月 5.1万円 23.18m²
1K
2階
2025年6月〜2025年9月 4.8万円 23.18m²
1K
1階
2025年7月〜2025年9月 5万円 23.18m²
1K
2階
2025年5月 4.7万円 23.18m²
1K
1階
2024年5月〜2025年4月 4.5万円 23.18m²
1K
1階
2025年4月 4.4万円 23.18m²
1K
1階
2025年2月〜2025年3月 4.7万円 23.18m²
1K
2階
2024年6月〜2024年11月 4.6万円 23.18m²
1K
2階
2024年7月〜2024年10月 4.7万円 23.18m²
1K
2階
2024年8月〜2024年10月 4.4万円 23.18m²
1K
1階
2024年9月〜2024年10月 4.7万円 23.18m²
1K
2階
2023年5月〜2024年4月 4.5万円 -
1K
1階
2023年9月〜2024年2月 4.4万円 -
1K
1階
2023年9月〜2023年10月 4.8万円 -
1K
2階
2023年4月〜2023年8月 4.7万円 -
1K
2階
2023年4月〜2023年8月 4.4万円 -
1K
1階
2023年3月 4.3万円 -
1K
1階
2022年11月〜2023年2月 4.2万円 -
1K
2階
2022年11月〜2023年2月 4.3万円 -
1K
2階
2022年12月〜2023年2月 4万円 -
1K
1階
2022年12月〜2023年1月 4.1万円 -
1K
1階
2022年10月〜2022年11月 3.9万円 -
1K
1階
2022年10月〜2022年11月 4万円 -
1K
1階
2022年10月 4.1万円 -
1K
2階
2022年10月 4.2万円 -
1K
2階
2022年9月 4万円 -
1K
2階
2022年9月 4.1万円 -
1K
2階
2022年7月〜2022年8月 4.2万円 -
1K
2階
2022年7月〜2022年8月 4.3万円 -
1K
2階
2021年11月〜2022年1月 3.8万円 23.18m²
1K
2階
2022年1月 3.8万円 23.18m²
1K
2階
2021年11月 3.6万円 23.18m²
1K
1階
2021年8月〜2021年9月 3.9万円 23.18m²
1K
2階
2021年4月〜2021年8月 3.8万円 23.18m²
1K
2階
2021年5月〜2021年8月 3.6万円 23.18m²
1K
1階
2021年5月〜2021年7月 3.6万円 23.18m²
1K
1階
2021年5月 3.9万円 23.18m²
1K
2階
2020年12月〜2021年2月 3.8万円 23.18m²
1K
2階
2020年12月〜2021年1月 3.9万円 23.18m²
1K
2階
2020年12月〜2021年1月 3.6万円 23.18m²
1K
1階
2020年10月〜2020年11月 4.45万円 23.18m²
1K
2階
2020年10月〜2020年11月 4.25万円 23.18m²
1K
1階
2020年10月〜2020年11月 4.25万円 23.18m²
1K
1階
2020年11月 4.45万円 23.18m²
1K
2階
2020年6月〜2020年7月 3.8万円 23.18m²
1K
1階
2020年7月 4万円 23.18m²
1K
2階
2020年5月〜2020年6月 4.1万円 23.18m²
1K
2階
2020年6月 4.45万円 23.18m²
1K
2階
2020年6月 3.8万円 23.18m²
1K
1階
2020年5月 4.25万円 23.18m²
1K
1階
2020年4月 4.45万円 23.18m²
1K
2階
2019年12月〜2020年1月 4万円 23.18m²
1K
2階
2019年12月〜2020年1月 3.9万円 23.18m²
1K
1階
2019年11月 3.8万円 23.18m²
1K
1階
2019年9月 3.8万円 23.18m²
1K
1階
2019年5月〜2019年7月 3.8万円 23.18m²
1K
1階
2019年6月〜2019年7月 4.05万円 23.18m²
1K
2階
2019年4月〜2019年5月 3.95万円 23.18m²
1K
1階
2019年5月 3.8万円 23.18m²
1K
1階
2019年3月〜2019年4月 4万円 23.18m²
1K
2階
2019年4月 3.95万円 23.18m²
1K
1階
2019年4月 3.7万円 23.18m²
1K
1階
2019年3月 4.55万円 23.18m²
1K
1階
2018年12月 4万円 23.18m²
1K
1階
2018年1月〜2018年8月 3.8万円 23.18m²
1K
1階
2018年2月〜2018年8月 4.2万円 23.18m²
1K
2階
2018年2月〜2018年8月 4.2万円 23.18m²
1K
2階
2018年6月〜2018年8月 4万円 23.18m²
1K
1階
2018年8月 4.05万円 23.18m²
1K
2階
2018年8月 3.75万円 23.18m²
1K
1階
2018年5月〜2018年6月 4.2万円 23.18m²
1K
2階
2018年1月 4.1万円 23.18m²
1K
2階
2018年1月 4万円 23.18m²
1K
2階
2018年1月 4万円 23.18m²
1K
2階
2018年1月 3.8万円 23.18m²
1K
1階
2017年11月〜2017年12月 4.2万円 23.18m²
1K
2階
2017年11月〜2017年12月 4.2万円 23.18m²
1K
2階
2017年12月 4.3万円 23.18m²
1K
2階
2017年12月 4万円 23.18m²
1K
1階
2017年12月 4万円 23.18m²
1K
1階
2017年8月〜2017年11月 4.5万円 23.18m²
1K
2階
2017年9月〜2017年11月 4.2万円 23.18m²
1K
1階
2017年7月〜2017年10月 4.3万円 23.18m²
1K
2階
2017年7月〜2017年10月 4.3万円 23.18m²
1K
2階
2017年8月〜2017年10月 4.2万円 23.18m²
1K
1階
2017年10月 4.3万円 23.18m²
1K
2階
2017年9月 4.75万円 23.18m²
1K
2階
2017年6月〜2017年8月 4.3万円 23.18m²
1K
2階
2017年5月〜2017年6月 4.65万円 23.18m²
1K
1階
2017年6月 4.4万円 23.18m²
1K
2階
2017年4月〜2017年5月 4.3万円 23.18m²
1K
2階
2017年5月 4.75万円 23.18m²
1K
2階
2017年5月 4.3万円 23.18m²
1K
2階
2017年2月〜2017年3月 4.1万円 23.18m²
1K
1階
2016年6月〜2016年7月 4.65万円 23.18m²
1K
1階
2016年2月〜2016年4月 4.5万円 23.18m²
1K
1階
2015年9月〜2016年3月 4.2万円 23.18m²
1K
1階
2015年12月〜2016年3月 4.3万円 23.18m²
1K
2階
2016年1月〜2016年3月 4.3万円 23.18m²
1K
2階
2016年2月 4.3万円 23.18m²
1K
2階
2015年11月〜2015年12月 4.7万円 23.18m²
1K
2階
2015年8月〜2015年11月 4.3万円 23.18m²
1K
2階
2015年8月〜2015年9月 4.8万円 23.18m²
1K
2階
2015年8月〜2015年9月 4.2万円 23.18m²
1K
1階
2015年4月〜2015年5月 4.7万円 23.18m²
1K
2階
2015年4月 4.3万円 23.18m²
1K
1階
2014年12月〜2015年1月 4.1万円 23.18m²
1K
1階
2014年10月 3.8万円 23.18m²
1K
1階
2013年11月〜2014年1月 3.7万円 23.18m²
1K
2階
2013年5月 4.05万円 23.18m²
1K
2階
2012年10月〜2013年4月 4.05万円 23.18m²
1K
2階
2012年10月〜2013年2月 4.05万円 23.18m²
1K
2階
2012年9月〜2013年1月 4.8万円 23.18m²
1K
2階
2012年10月〜2013年1月 4.05万円 23.18m²
1K
2階
2012年10月〜2013年1月 4.05万円 23.18m²
1K
2階
2012年1月〜2012年8月 4.05万円 23.18m²
1K
2階
2012年5月 4万円 23.18m²
1K
2階
2012年5月 3.95万円 23.18m²
1K
2階
2012年5月 3.85万円 23.18m²
1K
1階
2011年8月 4.2万円 23.18m²
1K
1階
2010年11月〜2011年7月 3.7万円 23.18m²
1K
2階
2010年9月〜2011年1月 3.95万円 23.18m²
1K
1階
2010年8月〜2010年11月 4.4万円 23.18m²
1K
2階

賃貸掲載履歴

賃貸掲載履歴とは、過去LIFULL HOME'Sに掲載された時点の情報を履歴として一覧にまとめたものです。

※最終的な成約賃料とは異なる場合があります。また、将来の募集賃料を保証するものではありません。

JR香椎線の家賃相場を見る

口コミ情報

レオパレスK&you2の口コミ

0

現在「レオパレスK&you2」に口コミはありません

この物件の口コミを投稿する

周辺物件の口コミ

1

ラビッシュコーポ名引

買い物・食事・周辺施設

○ 良い点

住人(賃貸)

隣の音丸聞こえ
投稿日:2025.07.25 投稿ID:7993

※一部の口コミは他社から提供されたもので、情報の信憑性を保証するものではありません。

売りたい不動産をお持ちの方へ

このエリアの所有不動産を査定する

エリア
糟屋郡志免町志免東

売却査定手続きの流れ、費用相場や注意点など不動産売却について詳しく知りたい方は LIFULL HOME'S 不動産査定

レオパレスK&you2の周辺情報

周辺施設

買い物
日用品
  • ミニストップ 志免東3丁目店
  • マルキョウ 志免店
  • ファミリーマート 志免寿町店
  • Seria志免田富店
買い物
大型店
  • ホームプラザナフコ 志免店
  • エディオン 志免店
  • コメリパワー 須恵店
グルメ
  • すき家 福岡志免店
  • リンガーハット 福岡志免田富店
  • スシロー 志免向ヶ丘店
  • ウエスト 志免店
娯楽施設
  • 志免東公園
  • タイセイゴルフセンター
  • 七夕谷古墳公園
役所
公共施設
  • 志免本通郵便局
  • 旅石郵便局
医療
  • 医療法人うえの病院
  • 医療法人社団緑風会水戸病院
  • 医療法人社団正信会水戸病院
保育施設
  • 志免町立志免東保育園
  • 認定こども園空とぶくじら幼児園志免園
  • 志免幼稚園
  • 須恵町立幼保連携型認定こども園アザレア幼児園
学校
  • 志免町立志免東小学校
  • 志免町立志免東中学校
  • 須恵町立須恵第三小学校
  • 福岡県立須恵高校

※学区外の​学校が​含まれる​場合が​あります。​実際の​学区は​必ず各自治体へ​ご確認ください。

周辺施設

物件から半径1km以内の周辺施設を表示しています。

  • ※該当カテゴリに半径1km以内の施設が5件以上ある時は、4件まで表示しています。
  • ※周辺情報は株式会社LIFULLが地図情報の提供事業者から提供を受けた情報と、LIFULL HOME'Sの物件情報を元に生成した参考情報であり、現況とは異なる場合があります。
  • ※特に​学校に​ついては​学区を​考慮しておらず、​表示して​いる​学校に​通える​ことを​保証する​ものでは​ありません。​実際の​学区は​必ず​自治体へ​ご確認ください。

よくあるご質問

レオパレスK&you2に住みたいと思っています。家賃はいくらですか?
レオパレスK&you2周辺はお買い物に便利ですか?近くのお店が知りたいです。
レオパレスK&you2周辺エリアに住みたいです。募集中の物件はありますか?
レオパレスK&you2の口コミが見たいです。どんな口コミがありますか?

レオパレスK&you2周辺の物件情報

周辺の問合せ可能な物件

福岡県糟屋郡志免町の問合せ可能な物件のうち、この物件の周辺にあるものから表示しています

賃貸

糟屋郡志免町の賃貸一覧から探す

中古マンション

糟屋郡志免町の中古マンション一覧から探す

一戸建て

糟屋郡志免町の一戸建て一覧から探す

不動産会社から探す

福岡県の不動産会社一覧から検索できます

物件の種類から探す

糟屋郡志免町で募集中の物件のみを検索できます

賃貸

買う

建てる、修繕・改修する

注文住宅・一戸建て購入の相談をする

資金計画や注文住宅・一戸建て購入の進め方、注意点などをハウジングアドバイザーに相談できます

ご利用案内

掲載情報に誤りや問題がある場合

LIFULL HOME'Sは「不動産会社」ではなく「情報掲載サイト」です

  • ※管理会社の情報はLIFULL HOME'Sでは保持していないためお答えできません。お問合せはお控えください
  • ※最新の募集状況は掲載中の不動産会社があれば、不動産会社へ直接お問合せください

掲載情報の誤りを指摘する
訂正の依頼をする

掲載情報の訂正依頼 専用ダイヤル

0120-987-243

  • 専用ダイヤル受付時間:10:00〜18:00
  • ※土日・祝日、臨時休業日は除く

不動産データのご利用について

不動産事業におけるDX、サービスの改善、新規事業開発等をご検討中の方へ不動産データの活用をご提案します。LIFULL HOME'Sで集約した不動産情報や外部データは、不動産事業DX、不正決済防止、ローン審査、事業開発、研究等さまざまな事業でご活用いただいています。詳しくは以下よりご確認ください。

不動産データ活用について詳細をみる

不動産アーカイブご利用アンケートにご協力ください

ご利用アンケートに回答する

不動産アーカイブの掲載情報は、LIFULL HOME'S掲載の不動産情報および提携先の不動産情報を統計情報として集積したものであり、その存在や信憑性を保証するものではありません。

ページTOPへ