1. LIFULL HOME'S トップ >
  2. リノベーション >
  3. 会社一覧 >
  4. イデキョウホーム株式会社 >
  5. 事例一覧 >
  6. ダイニングでの会話が楽しい我が家になりました。

イデキョウホーム株式会社

施工可能エリア:
静岡県
定休日:
水(事前連絡があれば対応)、年末年始、夏期
営業時間:
10:00 ~ 18:00
所在地:
静岡県 富士市 伝法1335

  0037-60032-5496 通話無料

※光IP電話、及びIP電話以外の固定電話、携帯電話からおかけください。

一戸建て ダイニングでの会話が楽しい我が家になりました。

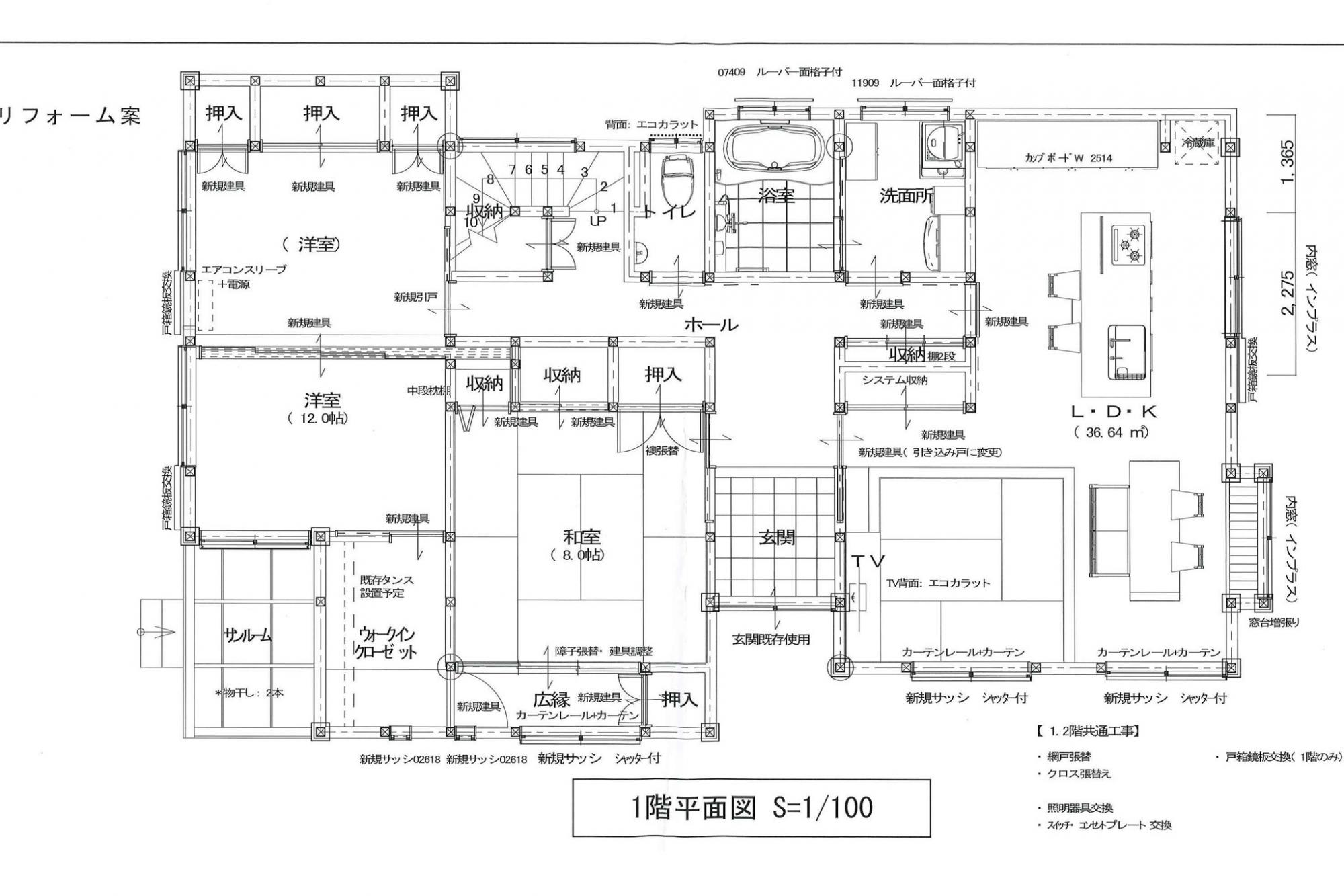
DK8帖に和室居間8帖、そして和室6帖を組み合わせ、広々とした24帖のLDKに改装
 
 

DK8帖に和室居間8帖、そして和室6帖を組み合わせ、広々とした24帖のLDKに改装

  • DK8帖に和室居間8帖、そして和室6帖を組み合わせ、広々とした24帖のLDKに改装

    リビングダイニング

  • TV裏壁に設置されたエコカラットが、リビングをより豪華に演出

    リビングダイニング

  • 和室の押入1.0帖を反対側の廊下部分からもアクセスできるように仕切り、収納を"ただ広い"から機能的なものに。これで洗面脱衣室・浴室・トイレで使うタオル・備品などを収納出来ます。

    収納・クローゼット

  • 広さも十分なゆったりとくつろげる浴室で

    お風呂・洗面所・トイレ

  • 琉球調のタタミを使用して、おしゃれな和室を演出。畳表は目積が細かく、高級感のあるものに。壁は塗り替え、障子はアルミ製に交換しましたが、天井は既存のままとした。

    その他

  • 和室続きの2間を洋室として父母の寝室に改造。
普段使いは6帖+6帖と間仕切りの引戸で分けて使用可能。

    寝室

  • フロアと壁の色を調和させ、おしゃれで落ち着いた雰囲気に仕上げた洗面脱衣室

    お風呂・洗面所・トイレ

  • 壁のクロスをかわいく仕上げたトイレ

    お風呂・洗面所・トイレ

  • 1
  • 2
この事例のポイント
築35年、親から子へバトンリレーのお宅。

お父様が左官屋さんの為、外壁、玄関、リビング、和室などお手伝いいただきながらリフォームをを進めました。お施主様は納得いくまで何度もショールーム見学に行き設備を悩みながら決められました。 ダイニングでの会話を大事にされており、キッチンのプランや間取りを特に工夫されて今回のプランに。


完成後、設備等を確認されて、とても満足されているようでした。

【概要】
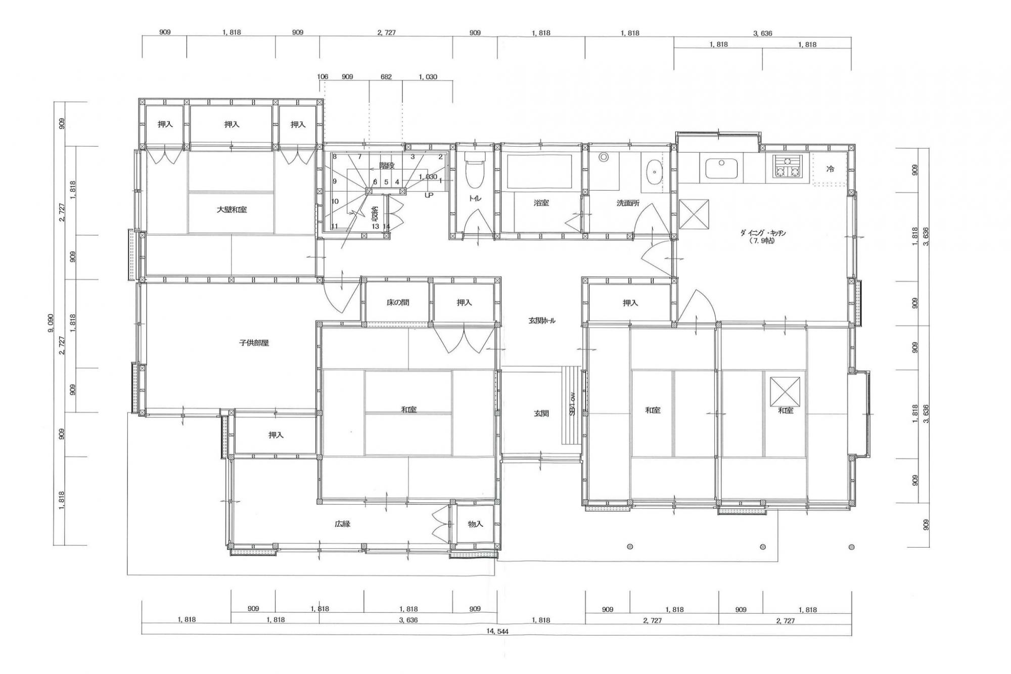
DK8帖+和室居間8帖+和室6帖
→大きく24帖のLDKに改造

  0037-60032-5496 通話無料

※光IP電話、及びIP電話以外の固定電話、携帯電話からおかけください。

ビフォー・アフター

間取り

リノベーション概要

リノベーション費用 非公開 物件価格 -
専有面積 非公開 間取り 4LDK以上
総期間・工期 3.5カ月 建物構造 -
建物完成年 - リノベーション竣工年 -
設計 イデキョウホーム株式会社
施工 イデキョウホーム株式会社
この事例の特長

このリノベーション事例について質問・相談する

リノベーション
希望エリア
必須
質問・相談内容 必須
お名前 必須
ご希望の連絡方法 必須
(いずれか1つ以上)
電話番号
※ハイフン不要
メールアドレス
送付先住所 必須
郵便番号
※ハイフン不要
住所
具体的な
質問・相談内容
任意

クリップした事例を一緒に

好みのリノベーションイメージを共有することで、今後の相談がスムーズに進みやすくなります。
クリップしていない場合は送信されません。

   個人情報の取り扱いについて

本フォームは、株式会社LIFULLが窓口となり、お客様からお問合せについて、情報提供元の会社に対して仲介・転送を行うものです。本フォームからお客様が記入された個人情報は、資料送付・電子メール送信・電話連絡などの目的で問合せ先会社が保管します。また株式会社LIFULLも、許諾いただいたお客様に対して、メールマガジン送付等の目的のため個人情報を保管します。個人情報の取扱いについては、各会社に直接お問合せください。ご記入の内容が不明瞭で会社からご連絡・資料送付等ができない場合、その他当社が本サービスを円滑に運用するために必要な範囲において、直接LIFULLから確認のご連絡をさせていただく場合がありますのであらかじめご了承ください。また、お問合せ内容等は集計処理のうえ、個人を特定できない形で統計として活用させていただきます。株式会社LIFULLの個人情報の取扱い方針については、こちらをご覧ください。

会社概要

  資料請求可

イデキョウホーム株式会社

対応物件種別
  • マンション可
  • 一戸建て可
  • 店舗可
対応エリア
  • 静岡県

    閉じる

    静岡県の対応エリア一覧

    沼津市、 三島市、 富士宮市、 富士市

施工価格帯
1500万以上
20%
1000~1500万
25%
800~1000万
10%
500~800万
10%
500万未満
35%
この会社の特長
  • リノベーション向き
    物件探し
  • ショールームあり
  • ファイナンシャル
    プランナー相談可
  • 中古・リフォーム
    一体型ローン
  • 建物検査
    (インスペクション)
  • 耐震診断
  • 瑕疵保証あり
  • 自社施工
  • 一級建築士在籍
  • 自由設計可
  • 施主支給可
  • 部分リノベーション
  • 定額・パッケージ
    プランあり
  • 断熱・省エネが得意
  • オリジナル家具製作可
  • インテリアコーディネーター在籍
住所
〒417-0061 静岡県富士市伝法1335
営業時間
10:00 ~ 18:00
定休日
水(事前連絡があれば対応)、年末年始、夏期

この会社への質問・相談はこちら

質問・相談する(無料)

資料請求する(無料)

  0037-60032-5496 通話無料

※光IP電話、及びIP電話以外の固定電話、携帯電話からおかけください

 
 

LIFULL HOME'Sリノベーションでできる3つのこと

まずはイメージを膨らませよう!

事例を見る

リノベーションについてもっと知ろう!

イベントを探す

自分好みの会社を探して直接相談するなら!

会社を探す

【ホームズ】ダイニングでの会話が楽しい我が家になりました。

リノベーションなら【LIFULL HOME'S/ライフルホームズ】リノベーション会社を地域・対応可能物件種別で絞り込み、「中古リフォーム一体型ローン」「リノベーション向き物件探し」「建物検査(インスペクション)」「耐震診断」など、リノベーションする際に気になる項目で比較検討できます。事例検索では、マンション、一戸建て、団地、店舗のリノベーション事例をスタイル・費用・面積を軸に絞り込んで自分の好みの事例を探すことができます。イベント検索では、リノベーション初心者の方向けのセミナーや相談会、実際の事例を見ることができる見学会などを場所・日付・種別・テーマで絞り込むことができます。お役立ち情報ではマンション・一戸建てのリノベーションに関する知識・ノウハウを掲載しております。気になる会社を見つけたら、メールか電話でお問合せが可能です(無料)。リノベーションをお考えなら、不動産・住宅情報サイト【LIFULL HOME'S/ライフルホームズ】

  • 不動産情報サイト事業者連絡協議会
    このサイトは「不動産情報サイト事業者連絡協議会」が定める情報公開の自主規制ルールに則ったサイトとして承認されています。
  • 情報セキュリティマネジメントシステム国際規格
    株式会社LIFULLは、情報セキュリティマネジメントシステムの国際規格「ISO/IEC 27001」および国内規格「JIS Q 27001」の認証を取得しています。