1. LIFULL HOME'S トップ >
  2. リノベーション >
  3. 会社一覧 >
  4. COMPANY TRUST(カンパニートラスト) >
  5. 事例一覧 >
  6. 無垢材やタイルの素材を感じるグレージュ空間

COMPANY TRUST(カンパニートラスト)

施工可能エリア:
京都府 / 大阪府 / 兵庫県 / 奈良県
定休日:
水・木 ※祝日の場合は営業日になります。
営業時間:
10:00 ~ 18:00
所在地:
大阪府 大阪市中央区 淡路町三丁目6番14号本町パートナーズビル

  0037-60032-9349 通話無料

※光IP電話、及びIP電話以外の固定電話、携帯電話からおかけください。

マンション 無垢材やタイルの素材を感じるグレージュ空間

全体をグレーでまとめながらも、明るく居心地の良い空間にデザインしました。
 
 

全体をグレーでまとめながらも、明るく居心地の良い空間にデザインしました。

  • 全体をグレーでまとめながらも、明るく居心地の良い空間にデザインしました。

    リビングダイニング

  • こだわりの造作キッチンはカフェ風のカウンターに。

    キッチン

  • 玄関から直接洗面室に移動出来る間取りに変更!お子様と外で遊んで汚れてしまっても安心です。リノベーションなら廊下の形も自由に変更可能です。

    玄関・土間

  • たくさんの靴を収納出来るシューズクローゼット。お気に入りのスニーカーを並べるのも楽しい♪

    玄関・土間

  • 洗面台はメーカー品を使用していますが、タイルを貼るだけでオリジナル洗面台に大変身!

    お風呂・洗面所・トイレ

  • 玄関は土間空間のように広いのでお出かけの準備もストレスなく出来ます。コートを掛けるクローゼット付です!

    玄関・土間

  • ちょっとした台にはお気に入りの物を並べで楽しむことも◎本棚もついているので勉強や仕事スペースにぴったり!

    書斎

  • 大きな窓から光が差し込む寝室には大容量のWICが付いています。

    寝室

  • リノベーションならお手持ちの荷物を収納しやすいように工夫出来ます!

    収納・クローゼット

  • 無垢材の温かさを感じるLDKにはオシャレなデザインと暮らしやすい空間が広がっています

    リビングダイニング

  • 1
  • 2
  • 3
この事例のポイント
3LDKの空間を贅沢なゆったり2LDKに変更。土間空間やWICなど収納を充実させました!造作キッチンは家族と会話が生まれるカウンター式に。椅子を置いてティータイムもゆっくり楽しめます。壁や床にタイルをふんだんに使用したオシャレなデザインに、こだわりの無垢材が温かい空間を演出してくれます。

  0037-60032-9349 通話無料

※光IP電話、及びIP電話以外の固定電話、携帯電話からおかけください。

ビフォー・アフター

部位

  • リビングダイニング
  • 玄関・土間
  • お風呂・洗面所・トイレ
  • その他
  • お風呂・洗面所・トイレ
リビングダイニング
リビングダイニング
玄関・土間
玄関・土間
お風呂・洗面所・トイレ
お風呂・洗面所・トイレ
その他
その他
お風呂・洗面所・トイレ
お風呂・洗面所・トイレ

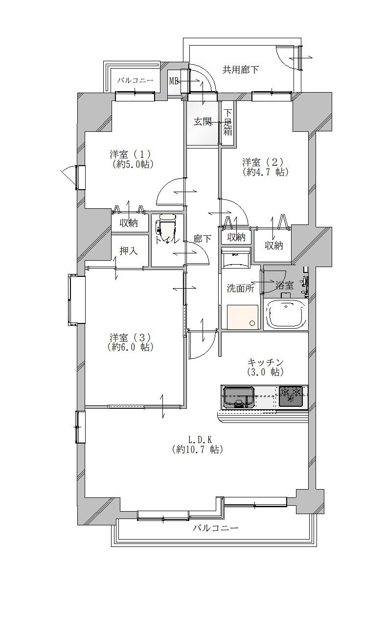
間取り

このリノベーション事例について質問・相談する

リノベーション
希望エリア
必須
質問・相談内容 必須
お名前 必須
ご希望の連絡方法 必須
(いずれか1つ以上)
電話番号
※ハイフン不要
メールアドレス
送付先住所 必須
郵便番号
※ハイフン不要
住所
具体的な
質問・相談内容
任意

クリップした事例を一緒に

好みのリノベーションイメージを共有することで、今後の相談がスムーズに進みやすくなります。
クリップしていない場合は送信されません。

   個人情報の取り扱いについて

本フォームは、株式会社LIFULLが窓口となり、お客様からお問合せについて、情報提供元の会社に対して仲介・転送を行うものです。本フォームからお客様が記入された個人情報は、資料送付・電子メール送信・電話連絡などの目的で問合せ先会社が保管します。また株式会社LIFULLも、許諾いただいたお客様に対して、メールマガジン送付等の目的のため個人情報を保管します。個人情報の取扱いについては、各会社に直接お問合せください。ご記入の内容が不明瞭で会社からご連絡・資料送付等ができない場合、その他当社が本サービスを円滑に運用するために必要な範囲において、直接LIFULLから確認のご連絡をさせていただく場合がありますのであらかじめご了承ください。また、お問合せ内容等は集計処理のうえ、個人を特定できない形で統計として活用させていただきます。株式会社LIFULLの個人情報の取扱い方針については、こちらをご覧ください。

会社概要

  資料請求可

COMPANY TRUST(カンパニートラスト)

対応物件種別
  • マンション可
  • 一戸建て可
  • 団地可
対応エリア
  • 京都府

    /
    閉じる

    京都府の対応エリア一覧

    京都市北区、 京都市上京区、 京都市左京区、 京都市中京区、 京都市東山区、 京都市下京区、 京都市南区、 京都市右京区、 京都市伏見区、 京都市山科区、 京都市西京区

  • 大阪府

    /
    閉じる

    大阪府の対応エリア一覧

    大阪市都島区、 大阪市福島区、 大阪市此花区、 大阪市西区、 大阪市港区、 大阪市大正区、 大阪市天王寺区、 大阪市浪速区、 大阪市西淀川区、 大阪市東淀川区、 大阪市東成区、 大阪市生野区、 大阪市旭区、 大阪市城東区、 大阪市阿倍野区、 大阪市住吉区、 大阪市東住吉区、 大阪市西成区、 大阪市淀川区、 大阪市鶴見区、 大阪市住之江区、 大阪市平野区、 大阪市北区、 大阪市中央区、 堺市堺区、 堺市中区、 堺市東区、 堺市西区、 堺市南区、 堺市北区、 堺市美原区、 岸和田市、 豊中市、 池田市、 吹田市、 泉大津市、 高槻市、 貝塚市、 守口市、 枚方市、 茨木市、 八尾市、 泉佐野市、 富田林市、 寝屋川市、 河内長野市、 松原市、 大東市、 和泉市、 箕面市、 柏原市、 羽曳野市、 門真市、 摂津市、 高石市、 藤井寺市、 東大阪市、 泉南市、 四條畷市、 交野市、 大阪狭山市、 阪南市、 三島郡島本町、 豊能郡豊能町、 豊能郡能勢町、 泉北郡忠岡町、 泉南郡熊取町、 泉南郡田尻町、 泉南郡岬町、 南河内郡太子町、 南河内郡河南町、 南河内郡千早赤阪村

  • 兵庫県

    /
    閉じる

    兵庫県の対応エリア一覧

    神戸市東灘区、 神戸市灘区、 神戸市兵庫区、 神戸市長田区、 神戸市須磨区、 神戸市垂水区、 神戸市北区、 神戸市中央区、 神戸市西区、 尼崎市、 西宮市、 洲本市、 芦屋市、 伊丹市、 宝塚市、 川西市

  • 奈良県

    閉じる

    奈良県の対応エリア一覧

    奈良市、 生駒市

施工価格帯
1500万以上
10%
1000~1500万
10%
800~1000万
40%
500~800万
10%
500万未満
30%
この会社の特長
  • リノベーション向き
    物件探し
  • ショールームあり
  • ファイナンシャル
    プランナー相談可
  • 中古・リフォーム
    一体型ローン
  • 建物検査
    (インスペクション)
  • 耐震診断
  • 瑕疵保証あり
  • 自社施工
  • 一級建築士在籍
  • 自由設計可
  • 施主支給可
  • 部分リノベーション
  • 定額・パッケージ
    プランあり
  • 断熱・省エネが得意
  • オリジナル家具製作可
  • インテリアコーディネーター在籍
住所
〒541-0047 大阪府大阪市中央区淡路町三丁目6番14号本町パートナーズビル
営業時間
10:00 ~ 18:00
定休日
水・木 ※祝日の場合は営業日になります。

この会社への質問・相談はこちら

質問・相談する(無料)

資料請求する(無料)

  0037-60032-9349 通話無料

※光IP電話、及びIP電話以外の固定電話、携帯電話からおかけください

同じ施工エリアから会社を探す

 
 

LIFULL HOME'Sリノベーションでできる3つのこと

まずはイメージを膨らませよう!

事例を見る

リノベーションについてもっと知ろう!

イベントを探す

自分好みの会社を探して直接相談するなら!

会社を探す

【ホームズ】無垢材やタイルの素材を感じるグレージュ空間

リノベーションなら【LIFULL HOME'S/ライフルホームズ】リノベーション会社を地域・対応可能物件種別で絞り込み、「中古リフォーム一体型ローン」「リノベーション向き物件探し」「建物検査(インスペクション)」「耐震診断」など、リノベーションする際に気になる項目で比較検討できます。事例検索では、マンション、一戸建て、団地、店舗のリノベーション事例をスタイル・費用・面積を軸に絞り込んで自分の好みの事例を探すことができます。イベント検索では、リノベーション初心者の方向けのセミナーや相談会、実際の事例を見ることができる見学会などを場所・日付・種別・テーマで絞り込むことができます。お役立ち情報ではマンション・一戸建てのリノベーションに関する知識・ノウハウを掲載しております。気になる会社を見つけたら、メールか電話でお問合せが可能です(無料)。リノベーションをお考えなら、不動産・住宅情報サイト【LIFULL HOME'S/ライフルホームズ】

  • 不動産情報サイト事業者連絡協議会
    このサイトは「不動産情報サイト事業者連絡協議会」が定める情報公開の自主規制ルールに則ったサイトとして承認されています。
  • 情報セキュリティマネジメントシステム国際規格
    株式会社LIFULLは、情報セキュリティマネジメントシステムの国際規格「ISO/IEC 27001」および国内規格「JIS Q 27001」の認証を取得しています。