1. LIFULL HOME'S トップ >
  2. リノベーション >
  3. 会社一覧 >
  4. リノベ不動産河内小阪駅店|山装株式会社 >
  5. 事例一覧 >
  6. 老朽化した賃貸マンションをシック&フェミニンな理想の住まいに

リノベ不動産河内小阪駅店|山装株式会社

施工可能エリア:
大阪府
定休日:
火・水、夏季休暇・年末年始休暇
営業時間:
10:00 ~ 19:00
所在地:
大阪府 東大阪市 御厨栄町1丁目3-13 小阪ハイライフ1階

  0037-60032-7116 通話無料

※光IP電話、及びIP電話以外の固定電話、携帯電話からおかけください。

マンション 老朽化した賃貸マンションをシック&フェミニンな理想の住まいに

2室のうち1室をまるまるLDKスペースに!
クロスとブラインド類には特にこだわって選定されました♪
掛け軸をたくさんお持ちだったので、それが映える床の間を何度も打合せして完成させました!!
 
 

2室のうち1室をまるまるLDKスペースに! クロスとブラインド類には特にこだわって選定されました♪ 掛け軸をたくさんお持ちだったので、それが映える床の間を何度も打合せして完成させました!!

  • 2室のうち1室をまるまるLDKスペースに!
クロスとブラインド類には特にこだわって選定されました♪
掛け軸をたくさんお持ちだったので、それが映える床の間を何度も打合せして完成させました!!

    リビングダイニング

  • 新しくキッチンを設置する場所の排水経路にとても悩まされました。
結果的にはパイプシャフト手前でスラブに埋まっていくというイレギュラーでした。
「どんな棚にしましょう?」と打合せを重ねていくうちに電子レンジを置けるサイズに広げて反対側をすっきりとさせました♪

    キッチン

  • Before写真のキッチンの左側が木製の壁になっていて、隣のお部屋と繋げることができるようになっています。
デザインだけでなく、取手や色にもこだわったリビングドアです♪

    その他

  • 2室を繋げたことで不要になったLDK側の玄関を家族のインフォメーションコーナーに家族の予定やお子様の工作を飾ったり、味のある小部屋になりました♪

    その他

  • 浴室換気暖房乾燥機は梁と天井の取り合いがギリギリで、職人さんが超薄型ではなく【薄型】なら何とか納まりますと言ってくれたので、無事浴室換気暖房乾燥機を設置出来ました♪

    お風呂・洗面所・トイレ

  • シンプルな洗面化粧台にアイアンのブラックがアクセントになっています♪

    お風呂・洗面所・トイレ

  • トイレもシンプルで機能的に!
便器は普通のマンションタイプですが、ウォッシュレットは高機能で家族の清潔をキープします♪

    お風呂・洗面所・トイレ

  • ボルドーカラーのチェストに合わせて、こちらの壁はラベンダー色に!
結露が酷かったので新たに断熱材を追加し、窓枠は樹脂製のモノにしました♪

    寝室

  • 小学生の男の子2人なので、爽やかな薄いブルーの壁紙に♪

    子供部屋

  • ボールや自転車なども置ける広い玄関に!
右側は家族の荷物をひとまとめに収納できる大型クローゼット♪
玄関ドアを開けたらお客様を迎える広い空間!!
家の中が丸見えなんてこともありません♪

    玄関・土間

  • 1
  • 2
  • 3
この事例のポイント
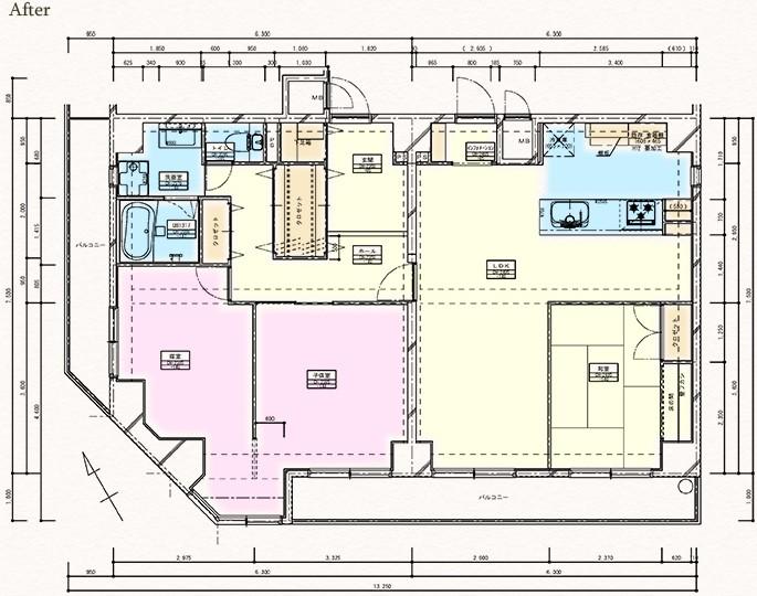
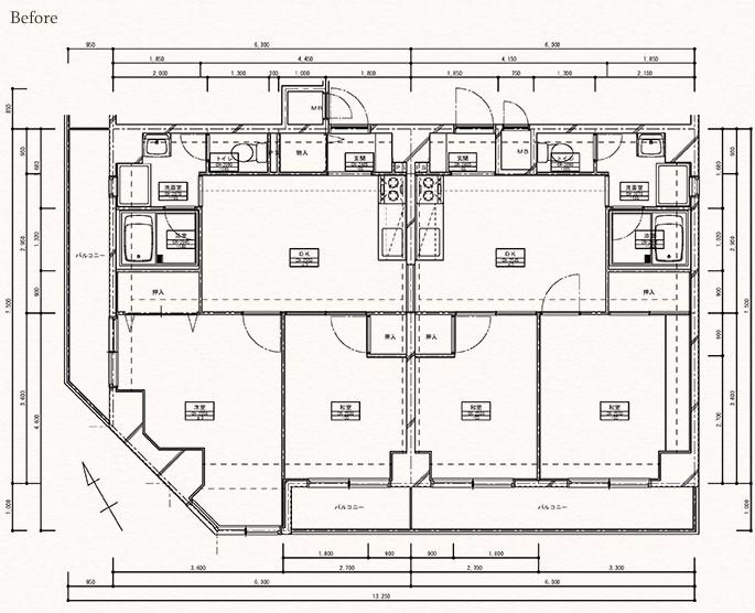
賃貸マンションオーナーの娘さんからご依頼でした。
新築の時から二間続きに出来るように設計されていた建物で、オーナーであるお父様の先見の明に只々感服いたしました!
同じような間取りが反転して並んでいる一般的なファミリー向け賃貸マンション。
マンションリフォームは排水経路が大きなカギを握るのですがこちらのマンション、設計図から変更になったのかかなり違っていたので、排水経路を調査をしながら工事を進めていきました。

  0037-60032-7116 通話無料

※光IP電話、及びIP電話以外の固定電話、携帯電話からおかけください。

ビフォー・アフター

間取り

リノベーション概要

リノベーション費用 非公開 物件価格 -
専有面積 非公開 間取り 3LDK
総期間・工期 - 建物構造 -
建物完成年 - リノベーション竣工年 -
この事例の特長

このリノベーション事例について質問・相談する

リノベーション
希望エリア
必須
質問・相談内容 必須
お名前 必須
ご希望の連絡方法 必須
(いずれか1つ以上)
電話番号
※ハイフン不要
メールアドレス
送付先住所 必須
郵便番号
※ハイフン不要
住所
具体的な
質問・相談内容
任意

クリップした事例を一緒に

好みのリノベーションイメージを共有することで、今後の相談がスムーズに進みやすくなります。
クリップしていない場合は送信されません。

   個人情報の取り扱いについて

本フォームは、株式会社LIFULLが窓口となり、お客様からお問合せについて、情報提供元の会社に対して仲介・転送を行うものです。本フォームからお客様が記入された個人情報は、資料送付・電子メール送信・電話連絡などの目的で問合せ先会社が保管します。また株式会社LIFULLも、許諾いただいたお客様に対して、メールマガジン送付等の目的のため個人情報を保管します。個人情報の取扱いについては、各会社に直接お問合せください。ご記入の内容が不明瞭で会社からご連絡・資料送付等ができない場合、その他当社が本サービスを円滑に運用するために必要な範囲において、直接LIFULLから確認のご連絡をさせていただく場合がありますのであらかじめご了承ください。また、お問合せ内容等は集計処理のうえ、個人を特定できない形で統計として活用させていただきます。株式会社LIFULLの個人情報の取扱い方針については、こちらをご覧ください。

会社概要

  資料請求可

リノベ不動産河内小阪駅店|山装株式会社

対応物件種別
  • マンション可
  • 一戸建て可
  • 団地可
  • 店舗可
対応エリア
  • 大阪府

    閉じる

    大阪府の対応エリア一覧

    大阪市都島区、 大阪市東成区、 大阪市生野区、 大阪市旭区、 大阪市城東区、 大阪市鶴見区、 大阪市平野区、 八尾市、 東大阪市

施工価格帯
1500万以上
5%
1000~1500万
10%
800~1000万
50%
500~800万
30%
500万未満
5%
この会社の特長
  • リノベーション向き
    物件探し
  • ショールームあり
  • ファイナンシャル
    プランナー相談可
  • 中古・リフォーム
    一体型ローン
  • 建物検査
    (インスペクション)
  • 耐震診断
  • 瑕疵保証あり
  • 自社施工
  • 一級建築士在籍
  • 自由設計可
  • 施主支給可
  • 部分リノベーション
  • 定額・パッケージ
    プランあり
  • 断熱・省エネが得意
  • オリジナル家具製作可
  • インテリアコーディネーター在籍
住所
〒577-0036 大阪府東大阪市御厨栄町1丁目3-13 小阪ハイライフ1階
営業時間
10:00 ~ 19:00
定休日
火・水、夏季休暇・年末年始休暇

この会社への質問・相談はこちら

質問・相談する(無料)

資料請求する(無料)

  0037-60032-7116 通話無料

※光IP電話、及びIP電話以外の固定電話、携帯電話からおかけください

 
 

LIFULL HOME'Sリノベーションでできる3つのこと

まずはイメージを膨らませよう!

事例を見る

リノベーションについてもっと知ろう!

イベントを探す

自分好みの会社を探して直接相談するなら!

会社を探す

【ホームズ】老朽化した賃貸マンションをシック&フェミニンな理想の住まいに

リノベーションなら【LIFULL HOME'S/ライフルホームズ】リノベーション会社を地域・対応可能物件種別で絞り込み、「中古リフォーム一体型ローン」「リノベーション向き物件探し」「建物検査(インスペクション)」「耐震診断」など、リノベーションする際に気になる項目で比較検討できます。事例検索では、マンション、一戸建て、団地、店舗のリノベーション事例をスタイル・費用・面積を軸に絞り込んで自分の好みの事例を探すことができます。イベント検索では、リノベーション初心者の方向けのセミナーや相談会、実際の事例を見ることができる見学会などを場所・日付・種別・テーマで絞り込むことができます。お役立ち情報ではマンション・一戸建てのリノベーションに関する知識・ノウハウを掲載しております。気になる会社を見つけたら、メールか電話でお問合せが可能です(無料)。リノベーションをお考えなら、不動産・住宅情報サイト【LIFULL HOME'S/ライフルホームズ】

  • 不動産情報サイト事業者連絡協議会
    このサイトは「不動産情報サイト事業者連絡協議会」が定める情報公開の自主規制ルールに則ったサイトとして承認されています。
  • 情報セキュリティマネジメントシステム国際規格
    株式会社LIFULLは、情報セキュリティマネジメントシステムの国際規格「ISO/IEC 27001」および国内規格「JIS Q 27001」の認証を取得しています。