1. LIFULL HOME'S トップ >
  2. リノベーション >
  3. 会社一覧 >
  4. IEIRO by assist|株式会社アシスト >
  5. 事例一覧 >
  6. ニャンダFULL HOUSE

IEIRO by assist|株式会社アシスト

施工可能エリア:
神奈川県
定休日:
年末年始
営業時間:
9:00 ~ 18:00
所在地:
神奈川県 伊勢原市 伊勢原4‐635‐1 ヤマキ第一ビル101

  0037-60032-8300 通話無料

※光IP電話、及びIP電話以外の固定電話、携帯電話からおかけください。

一戸建て ニャンダFULL HOUSE

「ニャンダFULL HOUSE」のアウトドア
 
 

「ニャンダFULL HOUSE」のアウトドア

  • 「ニャンダFULL HOUSE」のアウトドア

    アウトドア

  • 「ニャンダFULL HOUSE」の玄関・土間

    玄関・土間

  • 「ニャンダFULL HOUSE」のリビングダイニング

    リビングダイニング

  • 「ニャンダFULL HOUSE」のリビングダイニング

    リビングダイニング

  • 「ニャンダFULL HOUSE」のリビングダイニング

    リビングダイニング

  • 「ニャンダFULL HOUSE」のリビングダイニング

    リビングダイニング

  • 「ニャンダFULL HOUSE」のキッチン

    キッチン

  • 「ニャンダFULL HOUSE」のお風呂・洗面所・トイレ

    お風呂・洗面所・トイレ

  • 「ニャンダFULL HOUSE」の寝室

    寝室

  • 「ニャンダFULL HOUSE」の寝室

    寝室

  • 1
  • 2
  • 3
この事例のポイント
〜猫も人も、のびのび過ごせる住まい〜
舞台は、味わい深い旧耐震の戸建て。
でも事前インスペクションでは傾きほぼゼロ!
実は某ハウスメーカーの「パネル工法」だったのです。

壁を壊せない制約の中で、水まわりの移動や間取り変更を実現。
テーマは“猫好きがつくる、猫のためのおうち”。
もちろん、人の動線にもこだわりました。

気になる方はIEIROへ!

  0037-60032-8300 通話無料

※光IP電話、及びIP電話以外の固定電話、携帯電話からおかけください。

ビフォー・アフター

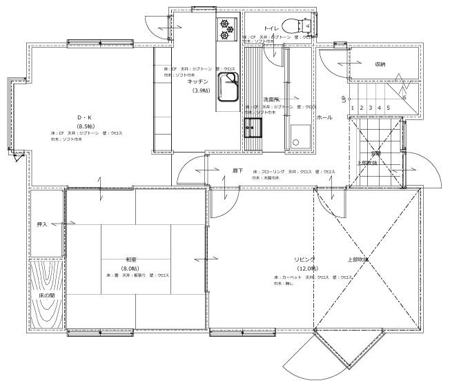
間取り

このリノベーション事例について質問・相談する

リノベーション
希望エリア
必須
質問・相談内容 必須
お名前 必須
ご希望の連絡方法 必須
(いずれか1つ以上)
電話番号
※ハイフン不要
メールアドレス
送付先住所 必須
郵便番号
※ハイフン不要
住所
具体的な
質問・相談内容
任意

クリップした事例を一緒に

好みのリノベーションイメージを共有することで、今後の相談がスムーズに進みやすくなります。
クリップしていない場合は送信されません。

   個人情報の取り扱いについて

本フォームは、株式会社LIFULLが窓口となり、お客様からお問合せについて、情報提供元の会社に対して仲介・転送を行うものです。本フォームからお客様が記入された個人情報は、資料送付・電子メール送信・電話連絡などの目的で問合せ先会社が保管します。また株式会社LIFULLも、許諾いただいたお客様に対して、メールマガジン送付等の目的のため個人情報を保管します。個人情報の取扱いについては、各会社に直接お問合せください。ご記入の内容が不明瞭で会社からご連絡・資料送付等ができない場合、その他当社が本サービスを円滑に運用するために必要な範囲において、直接LIFULLから確認のご連絡をさせていただく場合がありますのであらかじめご了承ください。また、お問合せ内容等は集計処理のうえ、個人を特定できない形で統計として活用させていただきます。株式会社LIFULLの個人情報の取扱い方針については、こちらをご覧ください。

会社概要

  資料請求可

IEIRO by assist|株式会社アシスト

対応物件種別
  • マンション可
  • 一戸建て可
  • 団地可
  • 店舗可
対応エリア
  • 神奈川県

    閉じる

    神奈川県の対応エリア一覧

    横浜市鶴見区、 横浜市神奈川区、 横浜市西区、 横浜市中区、 横浜市南区、 横浜市保土ケ谷区、 横浜市磯子区、 横浜市金沢区、 横浜市港北区、 横浜市戸塚区、 横浜市港南区、 横浜市旭区、 横浜市緑区、 横浜市瀬谷区、 横浜市栄区、 横浜市泉区、 横浜市青葉区、 横浜市都筑区、 相模原市中央区、 相模原市南区、 平塚市、 鎌倉市、 藤沢市、 小田原市、 茅ヶ崎市、 秦野市、 厚木市、 大和市、 伊勢原市、 海老名市、 座間市、 南足柄市、 綾瀬市、 高座郡寒川町、 中郡大磯町、 中郡二宮町、 足柄上郡中井町、 足柄上郡大井町、 足柄上郡松田町、 足柄上郡山北町、 足柄上郡開成町、 愛甲郡愛川町、 愛甲郡清川村

施工価格帯
1500万以上
20%
1000~1500万
30%
800~1000万
30%
500~800万
10%
500万未満
10%
この会社の特長
  • リノベーション向き
    物件探し
  • ショールームあり
  • ファイナンシャル
    プランナー相談可
  • 中古・リフォーム
    一体型ローン
  • 建物検査
    (インスペクション)
  • 耐震診断
  • 瑕疵保証あり
  • 自社施工
  • 一級建築士在籍
  • 自由設計可
  • 施主支給可
  • 部分リノベーション
  • 定額・パッケージ
    プランあり
  • 断熱・省エネが得意
  • オリジナル家具製作可
  • インテリアコーディネーター在籍
住所
〒259-1131 神奈川県伊勢原市伊勢原4‐635‐1 ヤマキ第一ビル101
営業時間
9:00 ~ 18:00
定休日
年末年始

この会社への質問・相談はこちら

質問・相談する(無料)

資料請求する(無料)

  0037-60032-8300 通話無料

※光IP電話、及びIP電話以外の固定電話、携帯電話からおかけください

 
 

LIFULL HOME'Sリノベーションでできる3つのこと

まずはイメージを膨らませよう!

事例を見る

リノベーションについてもっと知ろう!

イベントを探す

自分好みの会社を探して直接相談するなら!

会社を探す

【ホームズ】ニャンダFULL HOUSE

リノベーションなら【LIFULL HOME'S/ライフルホームズ】リノベーション会社を地域・対応可能物件種別で絞り込み、「中古リフォーム一体型ローン」「リノベーション向き物件探し」「建物検査(インスペクション)」「耐震診断」など、リノベーションする際に気になる項目で比較検討できます。事例検索では、マンション、一戸建て、団地、店舗のリノベーション事例をスタイル・費用・面積を軸に絞り込んで自分の好みの事例を探すことができます。イベント検索では、リノベーション初心者の方向けのセミナーや相談会、実際の事例を見ることができる見学会などを場所・日付・種別・テーマで絞り込むことができます。お役立ち情報ではマンション・一戸建てのリノベーションに関する知識・ノウハウを掲載しております。気になる会社を見つけたら、メールか電話でお問合せが可能です(無料)。リノベーションをお考えなら、不動産・住宅情報サイト【LIFULL HOME'S/ライフルホームズ】

  • 不動産情報サイト事業者連絡協議会
    このサイトは「不動産情報サイト事業者連絡協議会」が定める情報公開の自主規制ルールに則ったサイトとして承認されています。
  • 情報セキュリティマネジメントシステム国際規格
    株式会社LIFULLは、情報セキュリティマネジメントシステムの国際規格「ISO/IEC 27001」および国内規格「JIS Q 27001」の認証を取得しています。