1. LIFULL HOME'S トップ >
  2. リノベーション >
  3. 会社一覧 >
  4. リフォームプライス(ホームテック株式会社) >
  5. 事例一覧 >
  6. マンションdeロフト 2つのロフトで毎日快適!

リフォームプライス(ホームテック株式会社)

施工可能エリア:
埼玉県 / 東京都 / 神奈川県
定休日:
営業時間:
10:00 ~ 18:00
所在地:
東京都 多摩市 関戸1-1-5 ザ・スクエアE棟6F

  0037-60032-2148 通話無料

※光IP電話、及びIP電話以外の固定電話、携帯電話からおかけください。

マンション マンションdeロフト 2つのロフトで毎日快適!

もと和室の押入れだったスペースを活用して趣味の裁縫をいつでも楽しめるスペースを作りました。上部はロフトになっていて季節ものなどの収納に大活躍。
 
 

もと和室の押入れだったスペースを活用して趣味の裁縫をいつでも楽しめるスペースを作りました。上部はロフトになっていて季節ものなどの収納に大活躍。

  • もと和室の押入れだったスペースを活用して趣味の裁縫をいつでも楽しめるスペースを作りました。上部はロフトになっていて季節ものなどの収納に大活躍。

    その他

  • 絶賛作業中でも扉を閉めるとあら すっきり。

    その他

  • 元和室はリビングと一体になった寝室に。引戸を閉めると落ち着いた寝室。開放していれば広々リビングとして使えます。

    リビングダイニング

  • カラフルなクロスで仕上げた秘密基地の様なロフトベッドつきの子ども部屋はお嬢様自身にクロスを選んでもらいました。大胆な柄のクロスですが、組み合わせの妙で仲良く納まっています。

    子供部屋

  • 奥様イチオシの洗面室のアクセサリーコーナー。埋込収納ですっきり、そして何より出し入れしやすい優れものです。

    お風呂・洗面所・トイレ

  • 家族のものを収納するクローゼットは思い切って大胆なクロスで仕上げると気分が上がります!収納が少ないことがお悩みでしたが、居室を少し削ってでも必要な量の収納を設けることでお部屋がすっきり使えて広く感じられます。

    収納・クローゼット

  • ほっと一息くつろげる可愛らしい雰囲気に仕上げました。

    お風呂・洗面所・トイレ

  • 1
  • 2
この事例のポイント
経年劣化が気になってきたマンション。
お子さまの成長に伴って子ども部屋も造りたい。
趣味をいつでも気兼ねなく楽しめる空間も欲しい。

そんな「お家あるある」を縦方向の空間を生かして解決しました。
いろんな悩み事も上を向いて考えましょう!

  0037-60032-2148 通話無料

※光IP電話、及びIP電話以外の固定電話、携帯電話からおかけください。

ビフォー・アフター

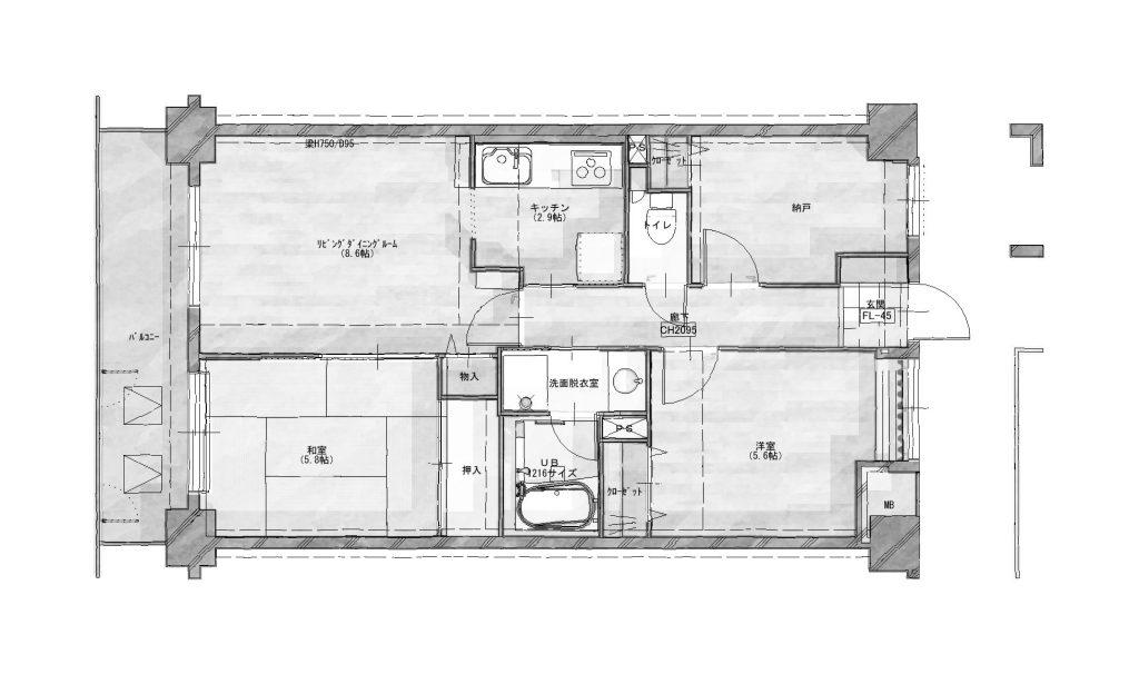
間取り

リノベーション概要

リノベーション費用 870万円 物件価格 -
専有面積 62㎡ 間取り 3LDK→3LDK
総期間・工期 2か月 建物構造 RC(鉄筋コンクリート)
建物完成年 - リノベーション竣工年 -
この事例の特長

このリノベーション事例について質問・相談する

リノベーション
希望エリア
必須
質問・相談内容 必須
お名前 必須
ご希望の連絡方法 必須
(いずれか1つ以上)
電話番号
※ハイフン不要
メールアドレス
送付先住所 必須
郵便番号
※ハイフン不要
住所
具体的な
質問・相談内容
任意

クリップした事例を一緒に

好みのリノベーションイメージを共有することで、今後の相談がスムーズに進みやすくなります。
クリップしていない場合は送信されません。

   個人情報の取り扱いについて

本フォームは、株式会社LIFULLが窓口となり、お客様からお問合せについて、情報提供元の会社に対して仲介・転送を行うものです。本フォームからお客様が記入された個人情報は、資料送付・電子メール送信・電話連絡などの目的で問合せ先会社が保管します。また株式会社LIFULLも、許諾いただいたお客様に対して、メールマガジン送付等の目的のため個人情報を保管します。個人情報の取扱いについては、各会社に直接お問合せください。ご記入の内容が不明瞭で会社からご連絡・資料送付等ができない場合、その他当社が本サービスを円滑に運用するために必要な範囲において、直接LIFULLから確認のご連絡をさせていただく場合がありますのであらかじめご了承ください。また、お問合せ内容等は集計処理のうえ、個人を特定できない形で統計として活用させていただきます。株式会社LIFULLの個人情報の取扱い方針については、こちらをご覧ください。

会社概要

  資料請求可

リフォームプライス(ホームテック株式会社)

対応物件種別
  • マンション可
  • 一戸建て可
  • 団地可
対応エリア
  • 埼玉県

    /
    閉じる

    埼玉県の対応エリア一覧

    さいたま市西区、 さいたま市北区、 さいたま市大宮区、 さいたま市見沼区、 さいたま市中央区、 さいたま市桜区、 さいたま市浦和区、 さいたま市南区、 さいたま市緑区、 さいたま市岩槻区、 川口市、 狭山市、 上尾市、 蕨市、 戸田市、 入間市、 桶川市、 北本市、 蓮田市

  • 東京都

    /
    閉じる

    東京都の対応エリア一覧

    新宿区、 品川区、 目黒区、 大田区、 世田谷区、 渋谷区、 中野区、 杉並区、 練馬区、 八王子市、 立川市、 武蔵野市、 三鷹市、 青梅市、 府中市、 昭島市、 調布市、 町田市、 小金井市、 小平市、 日野市、 東村山市、 国分寺市、 国立市、 福生市、 狛江市、 東大和市、 清瀬市、 東久留米市、 多摩市、 稲城市、 あきる野市、 西東京市

  • 神奈川県

    閉じる

    神奈川県の対応エリア一覧

    横浜市緑区、 横浜市青葉区、 横浜市都筑区、 川崎市幸区、 川崎市中原区、 川崎市高津区、 川崎市多摩区、 川崎市宮前区、 川崎市麻生区、 相模原市緑区、 相模原市中央区、 相模原市南区

施工価格帯
1500万以上
5%
1000~1500万
25%
800~1000万
30%
500~800万
30%
500万未満
10%
この会社の特長
  • リノベーション向き
    物件探し
  • ショールームあり
  • ファイナンシャル
    プランナー相談可
  • 中古・リフォーム
    一体型ローン
  • 建物検査
    (インスペクション)
  • 耐震診断
  • 瑕疵保証あり
  • 自社施工
  • 一級建築士在籍
  • 自由設計可
  • 施主支給可
  • 部分リノベーション
  • 定額・パッケージ
    プランあり
  • 断熱・省エネが得意
  • オリジナル家具製作可
  • インテリアコーディネーター在籍
住所
〒206-0011 東京都多摩市関戸1-1-5 ザ・スクエアE棟6F
営業時間
10:00 ~ 18:00
定休日

この会社への質問・相談はこちら

質問・相談する(無料)

資料請求する(無料)

  0037-60032-2148 通話無料

※光IP電話、及びIP電話以外の固定電話、携帯電話からおかけください

リフォームプライス(ホームテック株式会社)の他の事例

 
 

同じ施工エリアから会社を探す

 
 

LIFULL HOME'Sリノベーションでできる3つのこと

まずはイメージを膨らませよう!

事例を見る

リノベーションについてもっと知ろう!

イベントを探す

自分好みの会社を探して直接相談するなら!

会社を探す

【ホームズ】マンションdeロフト 2つのロフトで毎日快適!

リノベーションなら【LIFULL HOME'S/ライフルホームズ】リノベーション会社を地域・対応可能物件種別で絞り込み、「中古リフォーム一体型ローン」「リノベーション向き物件探し」「建物検査(インスペクション)」「耐震診断」など、リノベーションする際に気になる項目で比較検討できます。事例検索では、マンション、一戸建て、団地、店舗のリノベーション事例をスタイル・費用・面積を軸に絞り込んで自分の好みの事例を探すことができます。イベント検索では、リノベーション初心者の方向けのセミナーや相談会、実際の事例を見ることができる見学会などを場所・日付・種別・テーマで絞り込むことができます。お役立ち情報ではマンション・一戸建てのリノベーションに関する知識・ノウハウを掲載しております。気になる会社を見つけたら、メールか電話でお問合せが可能です(無料)。リノベーションをお考えなら、不動産・住宅情報サイト【LIFULL HOME'S/ライフルホームズ】

  • 不動産情報サイト事業者連絡協議会
    このサイトは「不動産情報サイト事業者連絡協議会」が定める情報公開の自主規制ルールに則ったサイトとして承認されています。
  • 情報セキュリティマネジメントシステム国際規格
    株式会社LIFULLは、情報セキュリティマネジメントシステムの国際規格「ISO/IEC 27001」および国内規格「JIS Q 27001」の認証を取得しています。