1. LIFULL HOME'S トップ >
  2. リノベーション >
  3. 会社一覧 >
  4. リノベーションスタジオKULABO >
  5. 事例一覧 >
  6. 抜け感のあるスタイリッシュなインダストリアルスタイル

リノベーションスタジオKULABO

施工可能エリア:
東京都 / 岐阜県 / 愛知県
定休日:
火曜日・水曜日
営業時間:
10:00 ~ 18:00
所在地:
愛知県 名古屋市中村区 名駅3丁目28-12 大名古屋ビルヂング21F

  0037-60032-5311 通話無料

※光IP電話、及びIP電話以外の固定電話、携帯電話からおかけください。

マンション 抜け感のあるスタイリッシュなインダストリアルスタイル

躯体現しとむき出しの配線、ダクトがインダストリアルな雰囲気を演出し、ミッドセンチュリーな家具がどこか温かみを感じさせます。
 
 

躯体現しとむき出しの配線、ダクトがインダストリアルな雰囲気を演出し、ミッドセンチュリーな家具がどこか温かみを感じさせます。

  • 躯体現しとむき出しの配線、ダクトがインダストリアルな雰囲気を演出し、ミッドセンチュリーな家具がどこか温かみを感じさせます。

    リビングダイニング

  • 空間の広がりを感じられるように、LDKと寝室を壁ではなくガラス戸で仕切りました。扉を閉めたままでも緩やかに繋がりを感じます。

    リビングダイニング

  • ダイニングカウンター正面の壁は、ブルーグレーの石目調のクロスを貼り空間にアクセントを。

    リビングダイニング

  • 天井のみ躯体現しにしてコンクリートの質感を感じられながらも、壁はクロスで仕上げたので殺風景になり過ぎません。

    リビングダイニング

  • 躯体現しと相性の良いステンレスキッチンを選定し、スタイリッシュで洗練された空間に。

    キッチン

  • 住まい全体に統一感が生まれるようカップボードもステンレス製で合わせています。

    キッチン

  • ミッドセンチュリーな家具が無骨さの中に温かな印象をプラスします。

    キッチン

  • ベースの照明器具は裸電球にすることで天井面をスッキリとさせ、ダイニングのペンダントライトを際立たせています。

    リビングダイニング

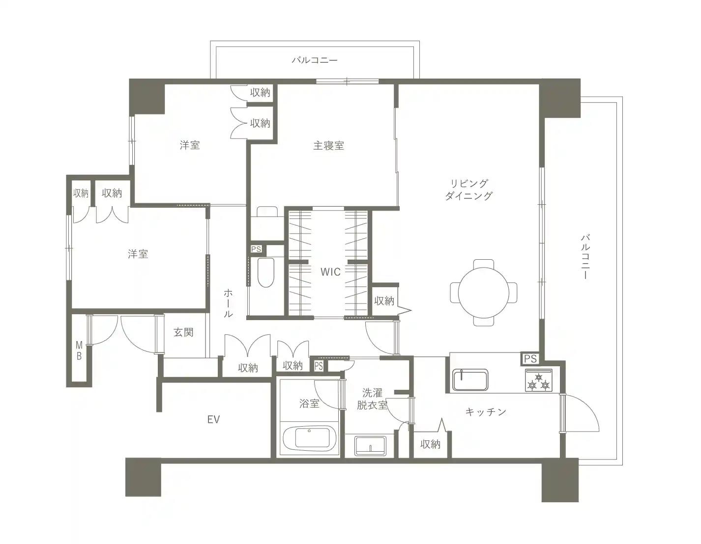
  • WICは廊下と主寝室から行き来できる生活動線が考えられた間取りです。

    収納・クローゼット

  • 寝室の一角にはカウンターデスクを設置。読書をしたり仕事をしたりと使い方は自由自在です。

    書斎

  • 1
  • 2
  • 3
この事例のポイント
もともと4LDKだった間取りをライフスタイルに合わせて3LDK+WICにリノベーション。LDKの天井を躯体現しにすることで天井高を上げ、LDKから主寝室に繋がる扉はガラスの3枚引き違い戸で視線の抜ける空間へ。開放的なLDKにするために様々な工夫が凝らされています。

  0037-60032-5311 通話無料

※光IP電話、及びIP電話以外の固定電話、携帯電話からおかけください。

ビフォー・アフター

間取り

リノベーション概要

リノベーション費用 非公開 物件価格 -
専有面積 非公開 間取り 4LDK以上→3LDK
総期間・工期 約3ヶ月 建物構造 -
建物完成年 - リノベーション竣工年 2022年
この事例の特長

このリノベーション事例について質問・相談する

リノベーション
希望エリア
必須
質問・相談内容 必須
お名前 必須
ご希望の連絡方法 必須
(いずれか1つ以上)
電話番号
※ハイフン不要
メールアドレス
送付先住所 必須
郵便番号
※ハイフン不要
住所
具体的な
質問・相談内容
任意

クリップした事例を一緒に

好みのリノベーションイメージを共有することで、今後の相談がスムーズに進みやすくなります。
クリップしていない場合は送信されません。

   個人情報の取り扱いについて

本フォームは、株式会社LIFULLが窓口となり、お客様からお問合せについて、情報提供元の会社に対して仲介・転送を行うものです。本フォームからお客様が記入された個人情報は、資料送付・電子メール送信・電話連絡などの目的で問合せ先会社が保管します。また株式会社LIFULLも、許諾いただいたお客様に対して、メールマガジン送付等の目的のため個人情報を保管します。個人情報の取扱いについては、各会社に直接お問合せください。ご記入の内容が不明瞭で会社からご連絡・資料送付等ができない場合、その他当社が本サービスを円滑に運用するために必要な範囲において、直接LIFULLから確認のご連絡をさせていただく場合がありますのであらかじめご了承ください。また、お問合せ内容等は集計処理のうえ、個人を特定できない形で統計として活用させていただきます。株式会社LIFULLの個人情報の取扱い方針については、こちらをご覧ください。

会社概要

  資料請求可

リノベーションスタジオKULABO

対応物件種別
  • マンション可
  • 一戸建て可
  • 団地可
  • 店舗可
対応エリア
  • 東京都

    /
    閉じる

    東京都の対応エリア一覧

    千代田区、 中央区、 港区、 新宿区、 文京区、 台東区、 墨田区、 江東区、 品川区、 目黒区、 大田区、 世田谷区、 渋谷区、 中野区、 杉並区、 豊島区、 北区、 荒川区、 板橋区、 練馬区、 足立区、 葛飾区、 江戸川区

  • 岐阜県

    /
    閉じる

    岐阜県の対応エリア一覧

    多治見市、 羽島市、 土岐市、 各務原市、 可児市

  • 愛知県

    閉じる

    愛知県の対応エリア一覧

    名古屋市千種区、 名古屋市東区、 名古屋市北区、 名古屋市西区、 名古屋市中村区、 名古屋市中区、 名古屋市昭和区、 名古屋市瑞穂区、 名古屋市熱田区、 名古屋市中川区、 名古屋市港区、 名古屋市南区、 名古屋市守山区、 名古屋市緑区、 名古屋市名東区、 名古屋市天白区、 豊橋市、 岡崎市、 一宮市、 瀬戸市、 半田市、 春日井市、 豊川市、 津島市、 碧南市、 刈谷市、 豊田市、 安城市、 西尾市、 蒲郡市、 犬山市、 常滑市、 江南市、 小牧市、 稲沢市、 東海市、 大府市、 知多市、 知立市、 尾張旭市、 高浜市、 岩倉市、 豊明市、 日進市、 愛西市、 清須市、 北名古屋市、 弥富市、 みよし市、 あま市、 長久手市、 愛知郡東郷町、 西春日井郡豊山町、 丹羽郡大口町、 丹羽郡扶桑町、 海部郡大治町、 海部郡蟹江町、 海部郡飛島村、 知多郡阿久比町、 知多郡東浦町、 額田郡幸田町

施工価格帯
1500万以上
25%
1000~1500万
30%
800~1000万
20%
500~800万
15%
500万未満
10%
この会社の特長
  • リノベーション向き
    物件探し
  • ショールームあり
  • ファイナンシャル
    プランナー相談可
  • 中古・リフォーム
    一体型ローン
  • 建物検査
    (インスペクション)
  • 耐震診断
  • 瑕疵保証あり
  • 自社施工
  • 一級建築士在籍
  • 自由設計可
  • 施主支給可
  • 部分リノベーション
  • 定額・パッケージ
    プランあり
  • 断熱・省エネが得意
  • オリジナル家具製作可
  • インテリアコーディネーター在籍
住所
〒450-6419 愛知県名古屋市中村区名駅3丁目28-12 大名古屋ビルヂング21F
営業時間
10:00 ~ 18:00
定休日
火曜日・水曜日

この会社への質問・相談はこちら

質問・相談する(無料)

資料請求する(無料)

  0037-60032-5311 通話無料

※光IP電話、及びIP電話以外の固定電話、携帯電話からおかけください

リノベーションスタジオKULABOの他の事例

 
 

同じ施工エリアから会社を探す

 
 

LIFULL HOME'Sリノベーションでできる3つのこと

まずはイメージを膨らませよう!

事例を見る

リノベーションについてもっと知ろう!

イベントを探す

自分好みの会社を探して直接相談するなら!

会社を探す

【ホームズ】抜け感のあるスタイリッシュなインダストリアルスタイル

リノベーションなら【LIFULL HOME'S/ライフルホームズ】リノベーション会社を地域・対応可能物件種別で絞り込み、「中古リフォーム一体型ローン」「リノベーション向き物件探し」「建物検査(インスペクション)」「耐震診断」など、リノベーションする際に気になる項目で比較検討できます。事例検索では、マンション、一戸建て、団地、店舗のリノベーション事例をスタイル・費用・面積を軸に絞り込んで自分の好みの事例を探すことができます。イベント検索では、リノベーション初心者の方向けのセミナーや相談会、実際の事例を見ることができる見学会などを場所・日付・種別・テーマで絞り込むことができます。お役立ち情報ではマンション・一戸建てのリノベーションに関する知識・ノウハウを掲載しております。気になる会社を見つけたら、メールか電話でお問合せが可能です(無料)。リノベーションをお考えなら、不動産・住宅情報サイト【LIFULL HOME'S/ライフルホームズ】

  • 不動産情報サイト事業者連絡協議会
    このサイトは「不動産情報サイト事業者連絡協議会」が定める情報公開の自主規制ルールに則ったサイトとして承認されています。
  • 情報セキュリティマネジメントシステム国際規格
    株式会社LIFULLは、情報セキュリティマネジメントシステムの国際規格「ISO/IEC 27001」および国内規格「JIS Q 27001」の認証を取得しています。