1. LIFULL HOME'S トップ >
  2. リノベーション >
  3. 会社一覧 >
  4. マイリノ by グローバルベイス >
  5. 事例一覧 >
  6. 日中と夜で空間を分ける、心地よい1日の導線を考えた設計

マイリノ by グローバルベイス

施工可能エリア:
埼玉県 / 千葉県 / 東京都 / 神奈川県 / 京都府 / 大阪府 / 兵庫県 / 奈良県
定休日:
火曜日、水曜日
営業時間:
10:00 ~ 19:00 営業時間帯以外でもあらかじめお問い合わせいただければ対応させていただきます。
所在地:
東京都 渋谷区 桜丘町3-2 渋谷サクラステージSAKURAタワー6F

  0037-60032-5068 通話無料

※光IP電話、及びIP電話以外の固定電話、携帯電話からおかけください。

マンション 日中と夜で空間を分ける、心地よい1日の導線を考えた設計

お部屋の中で最も目を引く、プールとその向こうの壁に描かれている色鮮やかなアートです。
たまたま店頭で見つけたアート作品の作者に壁に描くを依頼し、快く引き受けてくださったとのことです。
テラスには以前は池がありましたが、プールに作り替えられました。海外の一流リゾートのような雰囲気を醸し出しています。
 
 

お部屋の中で最も目を引く、プールとその向こうの壁に描かれている色鮮やかなアートです。 たまたま店頭で見つけたアート作品の作者に壁に描くを依頼し、快く引き受けてくださったとのことです。 テラスには以前は池がありましたが、プールに作り替えられました。海外の一流リゾートのような雰囲気を醸し出しています。

  • お部屋の中で最も目を引く、プールとその向こうの壁に描かれている色鮮やかなアートです。
たまたま店頭で見つけたアート作品の作者に壁に描くを依頼し、快く引き受けてくださったとのことです。
テラスには以前は池がありましたが、プールに作り替えられました。海外の一流リゾートのような雰囲気を醸し出しています。

    その他

  • TVが主役ではない、心地良い空間と自分たちらしさを兼ね備えた空間です。

    リビングダイニング

  • 日中は自然光で明るいリビングダイニングです。テラスやプールと隣接しているので開放感も非常にあります。

    リビングダイニング

  • オリジナルで作ったキッチンです。吊戸棚は一切設けずに、収納はすべてカウンターの下に設置しています。キッチンカウンターはかなり広い天板で、ワインセラーは4台すっぽり入るように特注しました。

    キッチン

  • キッチン側から寝室側までグルっと回遊できるテラスには、人工芝が敷かれていたり、タイル石をディスプレイしてあります。さらに、バーベキュー用のグリルも置かれ、外で食事ができるテーブルも設置されているのですが、これらはすべてY様とA様の手作りによるものです。

    その他

  • 廊下から抜けたところのラウンジです。寝る前に読書をしたり、お酒を飲むスペースです。
リビングダイニングで活動する日中から、少しずつリラックスしながら眠りにつけるよう確保された動線上の空間です。

    その他

  • 廊下、ラウンジの先にある洗面室と浴室です。

    お風呂・洗面所・トイレ

  • 幅広めの洗面化粧台の後ろには、こちらは黒を基調としたシックなデザインの洗面化粧台を設置しています。

    お風呂・洗面所・トイレ

  • 陽が沈む西側にある寝室です。ウォークインクローゼットがあります。

    寝室

  • 寝室側のテラスには筋トレマシンが置かれ、青空ジムスペースになっています。

    その他

  • 1
  • 2
  • 3
この事例のポイント
以前暮らしていた住戸より、もっと開放感のある部屋で暮らしたいと考えるようになりこだわりを持って数えきれないくらいの物件を見てきたと言う施主様。
▼こだわりポイント① 日中と夜で生活する空間をキッチリ分ける
日中光が入りやすい東側にキッチンとリビング、プールを挟んで陽が沈む西側を寝室に。廊下の先のラウンジでは寝る前に読書をしたり、お酒を飲むスペースとのこと。少しずつリラックスしながら眠りにつける動線にしたそうです。
▼こだわりポイント② TVが主役じゃないリビング造り
日本の一般的なリビングダイニングはTVが主役になっている印象ですが、そこに囚われず、ソファを壁に寄せ、くつろぎ空間も確保しながらTVが主役じゃないリビング造りで自分たちらしさを表現されました。
▼こだわりポイント③ 無駄な動線を作らず、家の隅から隅までを使う
ウォークインクローゼットは寝室の奥側にして、毎日家の中を隅々まで歩くようにしているという施主様。広さがあっても、スペースの無駄は作らないと感じさせてくれます。
▼こだわりポイント④ 壁色
室内と室外が一体型するよう壁色は白とグレーを使い分け一体感を演出されました。

  0037-60032-5068 通話無料

※光IP電話、及びIP電話以外の固定電話、携帯電話からおかけください。

ビフォー・アフター

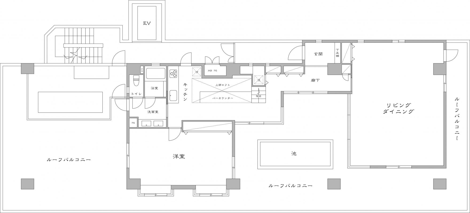
間取り

リノベーション概要

リノベーション費用 非公開 物件価格 -
専有面積 117㎡ 間取り 2LDK
総期間・工期 3か月 建物構造 -
建物完成年 - リノベーション竣工年 -
施工 リノベイスデザイン株式会社
この事例の特長

このリノベーション事例について質問・相談する

リノベーション
希望エリア
必須
質問・相談内容 必須
お名前 必須
ご希望の連絡方法 必須
(いずれか1つ以上)
電話番号
※ハイフン不要
メールアドレス
送付先住所 必須
郵便番号
※ハイフン不要
住所
具体的な
質問・相談内容
任意

クリップした事例を一緒に

好みのリノベーションイメージを共有することで、今後の相談がスムーズに進みやすくなります。
クリップしていない場合は送信されません。

   個人情報の取り扱いについて

本フォームは、株式会社LIFULLが窓口となり、お客様からお問合せについて、情報提供元の会社に対して仲介・転送を行うものです。本フォームからお客様が記入された個人情報は、資料送付・電子メール送信・電話連絡などの目的で問合せ先会社が保管します。また株式会社LIFULLも、許諾いただいたお客様に対して、メールマガジン送付等の目的のため個人情報を保管します。個人情報の取扱いについては、各会社に直接お問合せください。ご記入の内容が不明瞭で会社からご連絡・資料送付等ができない場合、その他当社が本サービスを円滑に運用するために必要な範囲において、直接LIFULLから確認のご連絡をさせていただく場合がありますのであらかじめご了承ください。また、お問合せ内容等は集計処理のうえ、個人を特定できない形で統計として活用させていただきます。株式会社LIFULLの個人情報の取扱い方針については、こちらをご覧ください。

会社概要

  資料請求可

マイリノ by グローバルベイス

対応物件種別
  • マンション可
  • 団地可
対応エリア
  • 埼玉県

    /
    閉じる

    埼玉県の対応エリア一覧

    さいたま市西区、 さいたま市北区、 さいたま市大宮区、 さいたま市見沼区、 さいたま市中央区、 さいたま市桜区、 さいたま市浦和区、 さいたま市南区、 さいたま市緑区、 さいたま市岩槻区、 川越市、 川口市

  • 千葉県

    /
    閉じる

    千葉県の対応エリア一覧

    千葉市中央区、 千葉市花見川区、 千葉市稲毛区、 千葉市若葉区、 千葉市緑区、 千葉市美浜区、 市川市、 船橋市、 浦安市

  • 東京都

    /
    閉じる

    東京都の対応エリア一覧

    千代田区、 中央区、 港区、 新宿区、 文京区、 台東区、 墨田区、 江東区、 品川区、 目黒区、 大田区、 世田谷区、 渋谷区、 中野区、 杉並区、 豊島区、 北区、 荒川区、 板橋区、 練馬区、 足立区、 葛飾区、 江戸川区、 八王子市、 立川市、 武蔵野市、 三鷹市、 青梅市、 府中市、 昭島市、 調布市、 町田市、 小金井市、 小平市、 日野市、 東村山市、 国分寺市、 国立市、 福生市、 狛江市、 東大和市、 清瀬市、 東久留米市、 武蔵村山市、 多摩市、 稲城市、 羽村市、 あきる野市、 西東京市、 西多摩郡瑞穂町、 西多摩郡日の出町、 西多摩郡檜原村、 西多摩郡奥多摩町

  • 神奈川県

    /
    閉じる

    神奈川県の対応エリア一覧

    横浜市鶴見区、 横浜市神奈川区、 横浜市西区、 横浜市中区、 横浜市南区、 横浜市保土ケ谷区、 横浜市磯子区、 横浜市金沢区、 横浜市港北区、 横浜市戸塚区、 横浜市港南区、 横浜市旭区、 横浜市緑区、 横浜市瀬谷区、 横浜市栄区、 横浜市泉区、 横浜市青葉区、 横浜市都筑区、 川崎市川崎区、 川崎市幸区、 川崎市中原区、 川崎市高津区、 川崎市多摩区、 川崎市宮前区、 川崎市麻生区、 相模原市緑区、 相模原市中央区、 相模原市南区、 横須賀市、 平塚市、 鎌倉市、 藤沢市、 小田原市、 茅ヶ崎市、 逗子市、 三浦市、 秦野市、 厚木市、 大和市、 伊勢原市、 海老名市、 座間市、 綾瀬市、 三浦郡葉山町、 高座郡寒川町、 中郡大磯町、 中郡二宮町

  • 京都府

    /
    閉じる

    京都府の対応エリア一覧

    京都市北区、 京都市上京区、 京都市左京区、 京都市中京区、 京都市東山区、 京都市下京区、 京都市南区、 京都市右京区、 京都市伏見区、 京都市山科区、 京都市西京区、 宇治市、 乙訓郡大山崎町

  • 大阪府

    /
    閉じる

    大阪府の対応エリア一覧

    大阪市都島区、 大阪市福島区、 大阪市此花区、 大阪市西区、 大阪市港区、 大阪市大正区、 大阪市天王寺区、 大阪市浪速区、 大阪市西淀川区、 大阪市東淀川区、 大阪市東成区、 大阪市生野区、 大阪市旭区、 大阪市城東区、 大阪市阿倍野区、 大阪市住吉区、 大阪市東住吉区、 大阪市西成区、 大阪市淀川区、 大阪市鶴見区、 大阪市住之江区、 大阪市平野区、 大阪市北区、 大阪市中央区、 堺市堺区、 堺市中区、 堺市東区、 堺市西区、 堺市南区、 堺市北区、 堺市美原区、 岸和田市、 豊中市、 池田市、 吹田市、 泉大津市、 高槻市、 貝塚市、 守口市、 枚方市、 茨木市、 八尾市、 泉佐野市、 富田林市、 寝屋川市、 河内長野市、 松原市、 大東市、 和泉市、 箕面市、 柏原市、 羽曳野市、 門真市、 摂津市、 高石市、 藤井寺市、 東大阪市、 泉南市、 四條畷市、 交野市、 大阪狭山市、 阪南市、 泉南郡熊取町

  • 兵庫県

    /
    閉じる

    兵庫県の対応エリア一覧

    神戸市東灘区、 神戸市灘区、 神戸市兵庫区、 神戸市長田区、 神戸市須磨区、 神戸市垂水区、 神戸市北区、 神戸市中央区、 神戸市西区、 尼崎市、 明石市

  • 奈良県

    閉じる

    奈良県の対応エリア一覧

    生駒市

施工価格帯
1500万以上
20%
1000~1500万
50%
800~1000万
15%
500~800万
10%
500万未満
5%
この会社の特長
  • リノベーション向き
    物件探し
  • ショールームあり
  • ファイナンシャル
    プランナー相談可
  • 中古・リフォーム
    一体型ローン
  • 建物検査
    (インスペクション)
  • 耐震診断
  • 瑕疵保証あり
  • 自社施工
  • 一級建築士在籍
  • 自由設計可
  • 施主支給可
  • 部分リノベーション
  • 定額・パッケージ
    プランあり
  • 断熱・省エネが得意
  • オリジナル家具製作可
  • インテリアコーディネーター在籍
住所
〒150-0031 東京都渋谷区桜丘町3-2 渋谷サクラステージSAKURAタワー6F
営業時間
10:00 ~ 19:00 営業時間帯以外でもあらかじめお問い合わせいただければ対応させていただきます。
定休日
火曜日、水曜日

この会社への質問・相談はこちら

質問・相談する(無料)

資料請求する(無料)

  0037-60032-5068 通話無料

※光IP電話、及びIP電話以外の固定電話、携帯電話からおかけください

マイリノ by グローバルベイスの他の事例

 
 

同じ施工エリアから会社を探す

 
 

LIFULL HOME'Sリノベーションでできる3つのこと

まずはイメージを膨らませよう!

事例を見る

リノベーションについてもっと知ろう!

イベントを探す

自分好みの会社を探して直接相談するなら!

会社を探す

【ホームズ】日中と夜で空間を分ける、心地よい1日の導線を考えた設計

リノベーションなら【LIFULL HOME'S/ライフルホームズ】リノベーション会社を地域・対応可能物件種別で絞り込み、「中古リフォーム一体型ローン」「リノベーション向き物件探し」「建物検査(インスペクション)」「耐震診断」など、リノベーションする際に気になる項目で比較検討できます。事例検索では、マンション、一戸建て、団地、店舗のリノベーション事例をスタイル・費用・面積を軸に絞り込んで自分の好みの事例を探すことができます。イベント検索では、リノベーション初心者の方向けのセミナーや相談会、実際の事例を見ることができる見学会などを場所・日付・種別・テーマで絞り込むことができます。お役立ち情報ではマンション・一戸建てのリノベーションに関する知識・ノウハウを掲載しております。気になる会社を見つけたら、メールか電話でお問合せが可能です(無料)。リノベーションをお考えなら、不動産・住宅情報サイト【LIFULL HOME'S/ライフルホームズ】

  • 不動産情報サイト事業者連絡協議会
    このサイトは「不動産情報サイト事業者連絡協議会」が定める情報公開の自主規制ルールに則ったサイトとして承認されています。
  • 情報セキュリティマネジメントシステム国際規格
    株式会社LIFULLは、情報セキュリティマネジメントシステムの国際規格「ISO/IEC 27001」および国内規格「JIS Q 27001」の認証を取得しています。