1. LIFULL HOME'S トップ >
  2. リノベーション >
  3. 会社一覧 >
  4. ハコリノベ >
  5. 事例一覧 >
  6. シックなタイルで深みのある空間に

ハコリノベ

施工可能エリア:
東京都 / 神奈川県 / 京都府 / 大阪府 / 兵庫県
定休日:
日・祝日
営業時間:
10:00 ~ 18:00
所在地:
大阪府 大阪市西区 立売堀1丁目9番38号 小林ビル

  0037-60032-7056 通話無料

※光IP電話、及びIP電話以外の固定電話、携帯電話からおかけください。

マンション シックなタイルで深みのある空間に

「シックなタイルで深みのある空間に」のリビングダイニング
 
 

「シックなタイルで深みのある空間に」のリビングダイニング

  • 「シックなタイルで深みのある空間に」のリビングダイニング

    リビングダイニング

  • 「シックなタイルで深みのある空間に」のリビングダイニング

    リビングダイニング

  • 「シックなタイルで深みのある空間に」のキッチン

    キッチン

  • 「シックなタイルで深みのある空間に」のキッチン

    キッチン

  • 「シックなタイルで深みのある空間に」のリビングダイニング

    リビングダイニング

  • 「シックなタイルで深みのある空間に」のお風呂・洗面所・トイレ

    お風呂・洗面所・トイレ

  • 「シックなタイルで深みのある空間に」の玄関・土間

    玄関・土間

  • 「シックなタイルで深みのある空間に」のお風呂・洗面所・トイレ

    お風呂・洗面所・トイレ

  • 「シックなタイルで深みのある空間に」のその他

    その他

  • 1
  • 2
  • 3
この事例のポイント
ご結婚を機に中古マンションを購入。
万博公園にほど近い緑溢れる立地を選ばれました。

リノベーションでは、深みある色合いのタイルを中心に、クロスや家具塗装の色味など
全体的にシックなカラーでまとめました。

  0037-60032-7056 通話無料

※光IP電話、及びIP電話以外の固定電話、携帯電話からおかけください。

ビフォー・アフター

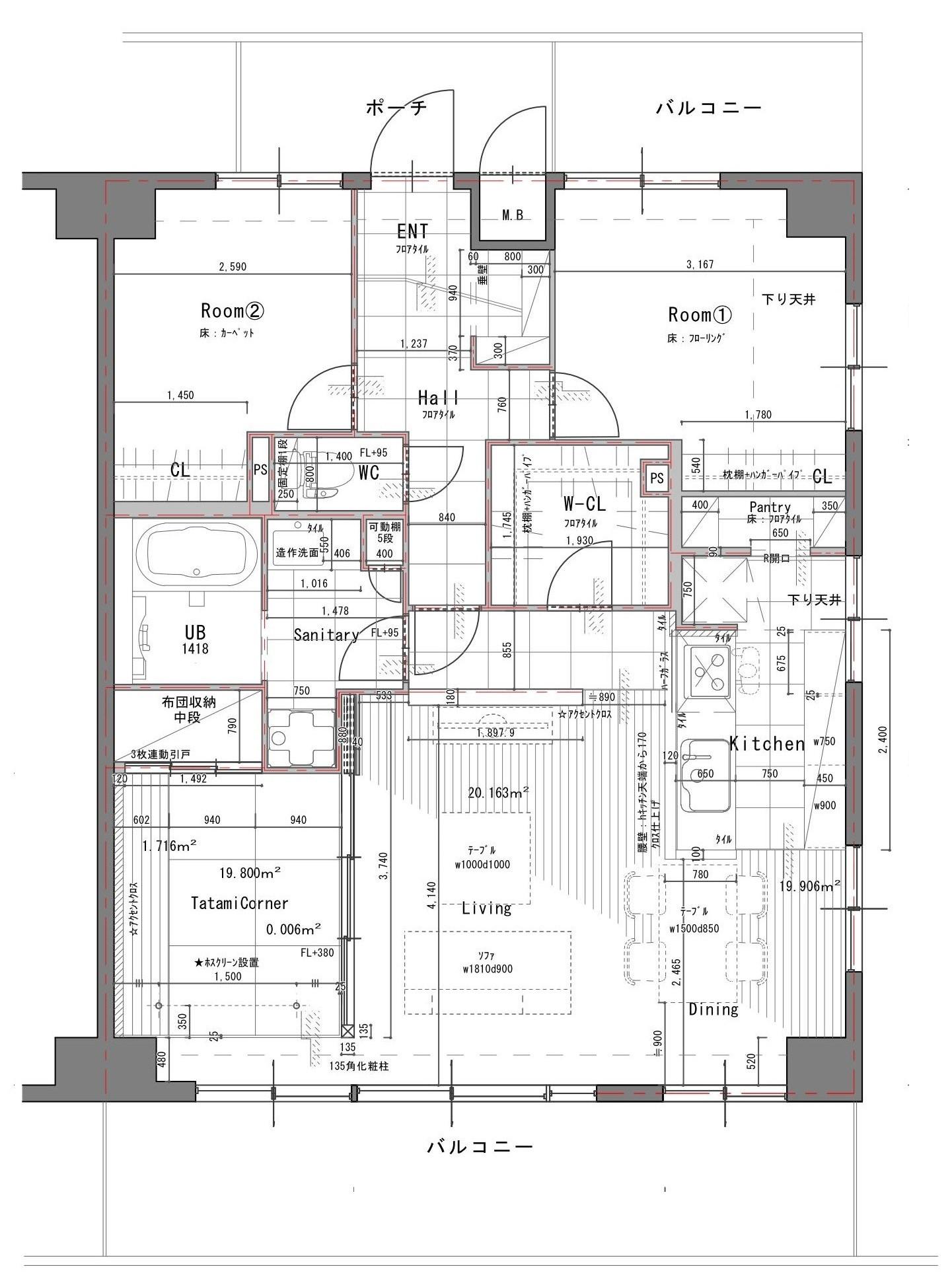
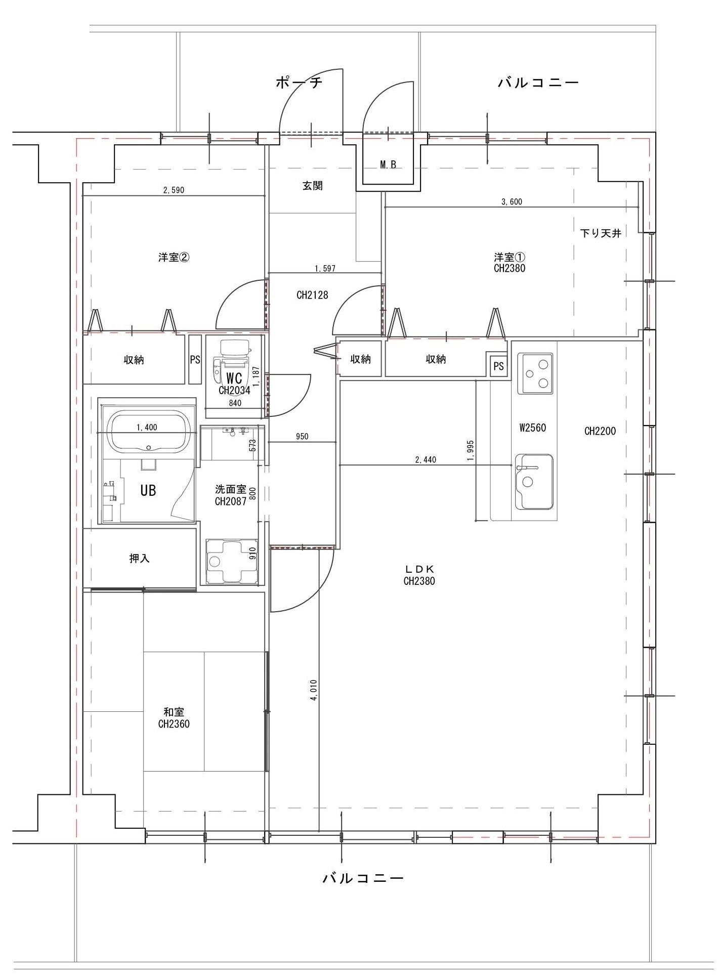
間取り

リノベーション概要

リノベーション費用 非公開 物件価格 -
専有面積 81㎡ 間取り 2LDK
総期間・工期 2ヶ月 建物構造 SRC(鉄筋鉄骨コンクリート)
建物完成年 - リノベーション竣工年 2016年
設計 ハコリノベ不動産(株式会社サンリフォーム)
施工 ハコリノベ不動産(株式会社サンリフォーム)
この事例の特長

このリノベーション事例について質問・相談する

リノベーション
希望エリア
必須
質問・相談内容 必須
お名前 必須
ご希望の連絡方法 必須
(いずれか1つ以上)
電話番号
※ハイフン不要
メールアドレス
送付先住所 必須
郵便番号
※ハイフン不要
住所
具体的な
質問・相談内容
任意

クリップした事例を一緒に

好みのリノベーションイメージを共有することで、今後の相談がスムーズに進みやすくなります。
クリップしていない場合は送信されません。

   個人情報の取り扱いについて

本フォームは、株式会社LIFULLが窓口となり、お客様からお問合せについて、情報提供元の会社に対して仲介・転送を行うものです。本フォームからお客様が記入された個人情報は、資料送付・電子メール送信・電話連絡などの目的で問合せ先会社が保管します。また株式会社LIFULLも、許諾いただいたお客様に対して、メールマガジン送付等の目的のため個人情報を保管します。個人情報の取扱いについては、各会社に直接お問合せください。ご記入の内容が不明瞭で会社からご連絡・資料送付等ができない場合、その他当社が本サービスを円滑に運用するために必要な範囲において、直接LIFULLから確認のご連絡をさせていただく場合がありますのであらかじめご了承ください。また、お問合せ内容等は集計処理のうえ、個人を特定できない形で統計として活用させていただきます。株式会社LIFULLの個人情報の取扱い方針については、こちらをご覧ください。

会社概要

  資料請求可

ハコリノベ

対応物件種別
  • マンション可
  • 一戸建て可
  • 団地可
  • 店舗可
対応エリア
  • 東京都

    /
    閉じる

    東京都の対応エリア一覧

    千代田区、 中央区、 港区、 江東区、 品川区、 目黒区、 大田区、 世田谷区、 渋谷区、 江戸川区、 町田市、 狛江市、 多摩市

  • 神奈川県

    /
    閉じる

    神奈川県の対応エリア一覧

    横浜市鶴見区、 横浜市神奈川区、 横浜市西区、 横浜市中区、 横浜市南区、 横浜市保土ケ谷区、 横浜市磯子区、 横浜市金沢区、 横浜市港北区、 横浜市戸塚区、 横浜市港南区、 横浜市旭区、 横浜市緑区、 横浜市瀬谷区、 横浜市栄区、 横浜市泉区、 横浜市青葉区、 横浜市都筑区、 川崎市川崎区、 川崎市幸区、 川崎市中原区、 川崎市高津区、 川崎市多摩区、 川崎市宮前区、 川崎市麻生区、 相模原市南区、 横須賀市、 鎌倉市、 藤沢市、 茅ヶ崎市、 逗子市、 大和市、 海老名市、 座間市、 綾瀬市、 三浦郡葉山町、 高座郡寒川町

  • 京都府

    /
    閉じる

    京都府の対応エリア一覧

    京都市上京区、 京都市中京区、 京都市東山区、 京都市下京区、 京都市南区、 京都市伏見区、 京都市山科区、 京都市西京区

  • 大阪府

    /
    閉じる

    大阪府の対応エリア一覧

    大阪市都島区、 大阪市福島区、 大阪市此花区、 大阪市西区、 大阪市港区、 大阪市大正区、 大阪市天王寺区、 大阪市浪速区、 大阪市西淀川区、 大阪市東淀川区、 大阪市東成区、 大阪市生野区、 大阪市旭区、 大阪市城東区、 大阪市阿倍野区、 大阪市住吉区、 大阪市東住吉区、 大阪市西成区、 大阪市淀川区、 大阪市鶴見区、 大阪市住之江区、 大阪市平野区、 大阪市北区、 大阪市中央区、 堺市堺区、 堺市中区、 堺市東区、 堺市西区、 堺市南区、 堺市北区、 堺市美原区、 岸和田市、 豊中市、 池田市、 吹田市、 泉大津市、 高槻市、 貝塚市、 守口市、 枚方市、 茨木市、 八尾市、 泉佐野市、 富田林市、 寝屋川市、 河内長野市、 松原市、 大東市、 和泉市、 箕面市、 柏原市、 羽曳野市、 門真市、 摂津市、 高石市、 藤井寺市、 東大阪市、 四條畷市、 交野市、 大阪狭山市

  • 兵庫県

    閉じる

    兵庫県の対応エリア一覧

    神戸市東灘区、 神戸市灘区、 神戸市兵庫区、 神戸市長田区、 神戸市須磨区、 神戸市垂水区、 神戸市北区、 神戸市中央区、 神戸市西区、 尼崎市、 西宮市、 芦屋市、 伊丹市、 宝塚市、 川西市

施工価格帯
1500万以上
20%
1000~1500万
40%
800~1000万
35%
500~800万
5%
500万未満
0%
この会社の特長
  • リノベーション向き
    物件探し
  • ショールームあり
  • ファイナンシャル
    プランナー相談可
  • 中古・リフォーム
    一体型ローン
  • 建物検査
    (インスペクション)
  • 耐震診断
  • 瑕疵保証あり
  • 自社施工
  • 一級建築士在籍
  • 自由設計可
  • 施主支給可
  • 部分リノベーション
  • 定額・パッケージ
    プランあり
  • 断熱・省エネが得意
  • オリジナル家具製作可
  • インテリアコーディネーター在籍
住所
〒550-0012 大阪府大阪市西区立売堀1丁目9番38号 小林ビル
営業時間
10:00 ~ 18:00
定休日
日・祝日

この会社への質問・相談はこちら

質問・相談する(無料)

資料請求する(無料)

  0037-60032-7056 通話無料

※光IP電話、及びIP電話以外の固定電話、携帯電話からおかけください

ハコリノベの他の事例

 
 

同じ施工エリアから会社を探す

 
 

LIFULL HOME'Sリノベーションでできる3つのこと

まずはイメージを膨らませよう!

事例を見る

リノベーションについてもっと知ろう!

イベントを探す

自分好みの会社を探して直接相談するなら!

会社を探す

【ホームズ】シックなタイルで深みのある空間に

リノベーションなら【LIFULL HOME'S/ライフルホームズ】リノベーション会社を地域・対応可能物件種別で絞り込み、「中古リフォーム一体型ローン」「リノベーション向き物件探し」「建物検査(インスペクション)」「耐震診断」など、リノベーションする際に気になる項目で比較検討できます。事例検索では、マンション、一戸建て、団地、店舗のリノベーション事例をスタイル・費用・面積を軸に絞り込んで自分の好みの事例を探すことができます。イベント検索では、リノベーション初心者の方向けのセミナーや相談会、実際の事例を見ることができる見学会などを場所・日付・種別・テーマで絞り込むことができます。お役立ち情報ではマンション・一戸建てのリノベーションに関する知識・ノウハウを掲載しております。気になる会社を見つけたら、メールか電話でお問合せが可能です(無料)。リノベーションをお考えなら、不動産・住宅情報サイト【LIFULL HOME'S/ライフルホームズ】

  • 不動産情報サイト事業者連絡協議会
    このサイトは「不動産情報サイト事業者連絡協議会」が定める情報公開の自主規制ルールに則ったサイトとして承認されています。
  • 情報セキュリティマネジメントシステム国際規格
    株式会社LIFULLは、情報セキュリティマネジメントシステムの国際規格「ISO/IEC 27001」および国内規格「JIS Q 27001」の認証を取得しています。